Trong những năm gần đây, nhà 2 tầng mái Nhật 4 phòng ngủ đang trở thành xu hướng được nhiều gia đình lựa chọn nhờ thiết kế hài hòa, công năng tiện nghi và tính thẩm mỹ cao. Nắm bắt nhu cầu đó, dịch vụ bán thiết kế nhà 2 tầng mái Nhật với bảng màu “cực trend” không chỉ mang đến giải pháp kiến trúc hiện đại, tối ưu không gian sống mà còn giúp gia chủ tiết kiệm chi phí, dễ dàng triển khai thi công và sở hữu một ngôi nhà đẹp, bền vững theo thời gian.
Thông tin nhà 2 tầng mái Nhật hiện đại mặt tiền 10,9m
| Chủ đầu tư: Chị Lê Thị Nhung | Địa chỉ: Lục Nam, Bắc Giang |
| Mặt tiền: 10,9m | Kích thước xây dựng: 10,9 x 15,8m |
| Số tầng: 2 | Loại hình: Nhà mái Nhật hiện đại |
| Tổng diện tích: 268m2 | |
Công năng:
| |
| Đơn vị thiết kế: CÔNG TY TNHH MAXHOME ARCHITECT & DESIGN | |
Ngoại thất nhà 2 tầng mái Nhật HOT nhất 2026
Nếu gia chủ đang tìm kiếm mẫu nhà 2 tầng mái Nhật theo phong cách hiện đại, thiết kế gọn gàng, vuông vức, hạn chế chi tiết rườm rà nhưng vẫn toát lên vẻ đẹp sang trọng, tinh tế và bền vững theo thời gian, thì công trình dưới đây chắc chắn là gợi ý không nên bỏ qua. Thiết kế không chỉ đáp ứng yêu cầu thẩm mỹ mà còn tối ưu công năng, phù hợp với xu hướng xây dựng nhà ở năm 2026.

Nhà 2 tầng mái Nhật gây ấn tượng với cách phối màu thời thượng, lấy gam trắng làm chủ đạo kết hợp hài hòa cùng sắc xanh nhẹ nhàng, mang đến cảm giác thanh thoát và hiện đại. Ngoại thất còn được nâng tầm thẩm mỹ nhờ việc sử dụng các vật liệu cao cấp như gạch granit ốp tầng 1 tạo sự bề thế, sang trọng, kết hợp gạch giả gỗ ở các mảng nhấn giúp tổng thể công trình vừa ấm áp, vừa bền đẹp theo thời gian, phù hợp với xu hướng kiến trúc nhà ở hiện nay.

Nhìn từ góc bên hông, ngôi nhà 2 tầng mái Nhật nổi bật với sảnh phụ được thiết kế chỉn chu, sang trọng, hài hòa và không hề thua kém sảnh chính. Phía cuối nhà còn bố trí thêm cửa hậu tiện lợi, giúp tăng khả năng lưu thông không khí và kết nối không gian sử dụng. Với định hướng thiết kế của Maxhome, yếu tố thông thoáng và tối ưu trải nghiệm sống luôn được đặt lên hàng đầu, mang đến môi trường sinh hoạt thoải mái, dễ chịu cho gia đình.

Toàn bộ hệ cửa của công trình đều sử dụng nhôm hệ Xingfa cao cấp kết hợp kính cường lực, giúp đón tối đa ánh sáng tự nhiên và tăng cường khả năng thông gió cho không gian bên trong. Giải pháp này không chỉ mang lại cảm giác thoáng đãng, hiện đại mà còn góp phần tiết kiệm điện năng cho chiếu sáng và điều hòa. Nhờ độ bền cao, khả năng cách âm – cách nhiệt tốt cùng tính thẩm mỹ vượt trội, hệ nhôm kính Xingfa luôn là lựa chọn ưu tiên hàng đầu trong các mẫu nhà ở hiện đại.

Hệ thống cổng của ngôi nhà 2 tầng mái Nhật được thiết kế bằng sắt mỹ thuật cao cấp, gia công tinh xảo với hoa văn hài hòa, vừa đảm bảo an ninh vừa nâng tầm giá trị thẩm mỹ cho tổng thể công trình. Phần tường bao xung quanh sử dụng kết cấu bê tông kiên cố, kết hợp khéo léo với các khoảng thoáng hợp lý, giúp không gian luôn thông gió, thoáng đãng mà vẫn giữ được sự riêng tư cần thiết, đồng thời tạo cảm giác nhẹ nhàng, hiện đại cho khuôn viên ngôi nhà.

Khám phá công năng của mẫu nhà mái Nhật
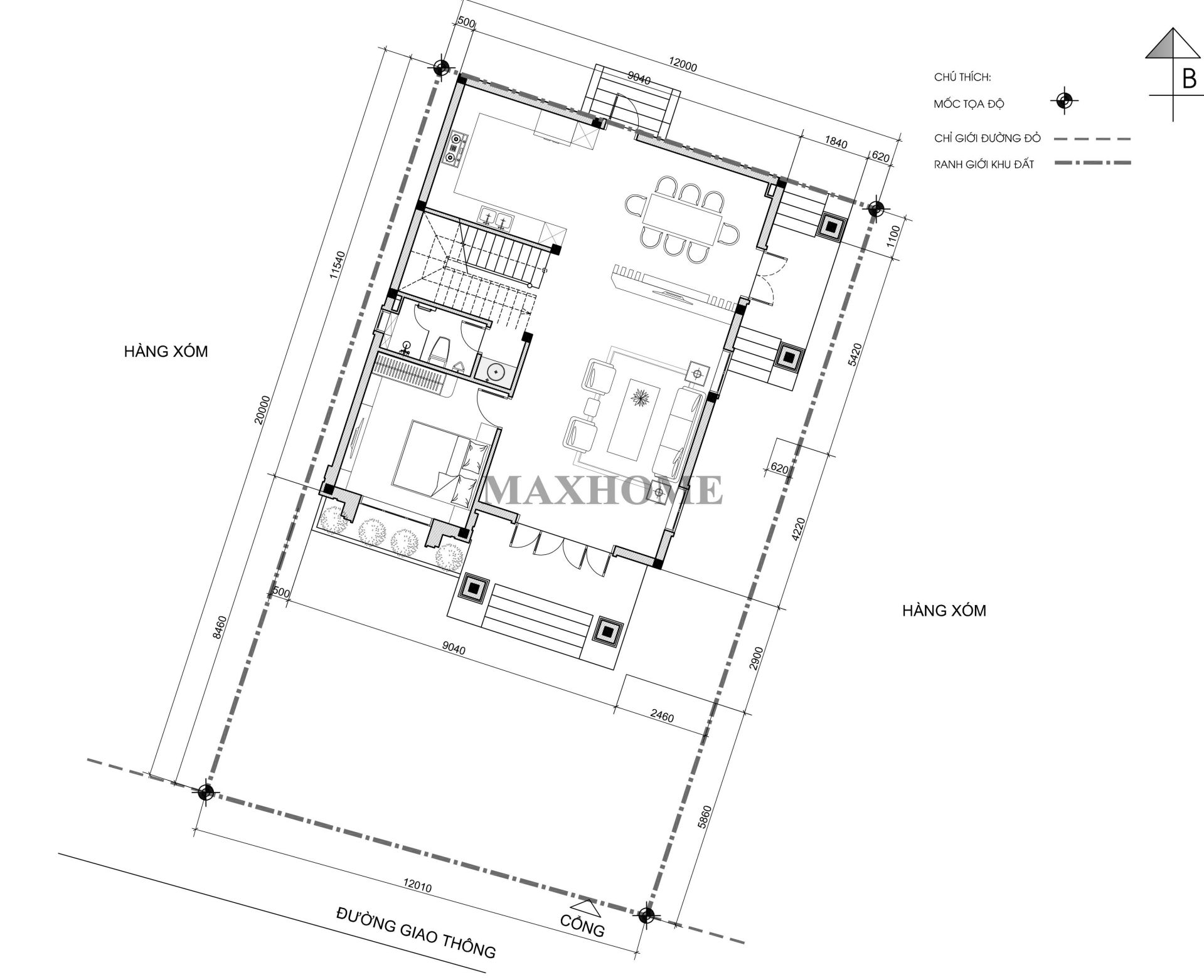
Mặt bằng định vị thể hiện rõ khuôn viên đất của ngôi nhà 2 tầng mái Nhật, với khoảng lùi từ cổng vào đến sảnh chính được chừa rộng khoảng 5,8m, tạo không gian sân trước thoáng đãng, thuận tiện cho việc để xe, sinh hoạt ngoài trời và tăng tính thẩm mỹ cho tổng thể công trình. Ngôi nhà được xây dựng với kích thước 10,9 x 15,8m, bố trí công năng khoa học, tối ưu diện tích sử dụng, nâng tổng diện tích sàn lên khoảng 268m², đáp ứng đầy đủ nhu cầu sinh hoạt tiện nghi cho gia đình đông thành viên.

Từ sảnh chính bước vào là không gian phòng khách rộng rãi, được bố trí thông thoáng, tạo cảm giác sang trọng và đón tiếp khách thuận tiện. Liền kề phía trong là khu vực phòng ăn, đối diện là phòng bếp được sắp xếp gọn gàng, đảm bảo sự tiện nghi trong quá trình sử dụng và lưu thông. Ngoài ra, tầng 1 còn bố trí một phòng ngủ riêng tư, phù hợp cho người lớn tuổi hoặc khách ở lại, cùng nhà vệ sinh chung đặt cạnh bên, đáp ứng đầy đủ nhu cầu sinh hoạt cho cả gia đình.

Tầng 2 được bố trí phòng thờ trang nghiêm, đặt ở vị trí trang trọng và hướng ra ban công, vừa đảm bảo yếu tố phong thủy vừa tạo sự thông thoáng, yên tĩnh. Khu vực xung quanh là 3 phòng ngủ được sắp xếp khoa học; trong đó phòng ngủ 02 sở hữu nhà vệ sinh khép kín, mang lại sự riêng tư và tiện nghi. Hai phòng ngủ còn lại bố trí đối diện nhau, sử dụng chung một nhà vệ sinh đặt gọn gàng ở cuối nhà. Bên cạnh đó, khu vực giặt phơi nhỏ được thiết kế hợp lý, tách biệt với không gian sinh hoạt, giúp tối ưu công năng và đảm bảo sự ngăn nắp cho toàn bộ tầng.







