Những mẫu biệt thự 2 tầng hiện đại mái bằng đang trở thành “tâm điểm” khiến nhiều gia chủ săn đón bởi vẻ đẹp sang trọng, tinh tế và cực kỳ tối ưu công năng. Không chỉ sở hữu hình khối kiến trúc mạnh mẽ, cuốn hút từ cái nhìn đầu tiên, mẫu biệt thự này còn mang đến không gian sống thoáng rộng, gần gũi với thiên nhiên – đúng chuẩn phong cách sống mà nhiều gia đình trẻ đang hướng tới.
Thông tin biệt thự 2 tầng hiện đại mái bằng
| Chủ đầu tư: Anh Đào Mạnh Hiến | Địa chỉ: Phú Xuyên, Hà Nội |
| Mặt tiền: 15m | Kích thước xây dựng: 15 x 20,6m |
| Số tầng: 2 tầng | Loại hình: Biệt thự mái bằng hiện đại |
| Tổng diện tích: 240m2 | |
Công năng:
| |
| Đơn vị thiết kế: CÔNG TY TNHH MAXHOME ARCHITECT & DESIGN | |
Ngoại thất biệt thự 2 tầng hiện đại mái bằng HOT 2026
Mẫu biệt thự 2 tầng hiện đại mái bằng được thiết kế với phối cảnh kiến trúc nổi bật, khỏe khoắn và đầy linh hoạt. Các chi tiết kiến trúc được chăm chút tỉ mỉ, từ hình khối vuông vức, đường nét phẳng mượt cho đến những mảng ốp vật liệu hiện đại, tạo nên tổng thể vừa tinh tế, sang trọng, vừa hài hòa và gần gũi với cảnh quan xung quanh. Thiết kế này không chỉ làm nổi bật vẻ đẹp thẩm mỹ mà còn tối ưu hóa công năng sử dụng, mang đến không gian sống tiện nghi và thoải mái cho gia đình.

Mẫu biệt thự 2 tầng hiện đại gây ấn tượng với sự kết hợp tinh tế giữa tông màu ghi của sơn giả đá và sắc trắng sang trọng từ gạch granite ốp quanh nhà. Mặt tiền được thiết kế với hình khối vuông vức, mạnh mẽ, tạo cảm giác vững chãi nhưng vẫn thanh thoát. Điểm nhấn của công trình là các chi tiết ốp đá trang trí, lan can kính cường lực trong suốt và những đường nét phào chỉ nhẹ nhàng, giúp tổng thể trở nên hiện đại, sang trọng và hài hòa với không gian đô thị. Hệ thống ánh sáng mặt tiền được bố trí khoa học, nhấn mạnh các góc kiến trúc và tạo hiệu ứng nổi bật vào ban đêm, đồng thời mang lại cảm giác ấm cúng và tiện nghi cho gia đình.

Xung quanh biệt thự 2 tầng hiện đại, toàn bộ hệ thống cửa được thiết kế bằng kính cường lực cao cấp kết hợp với khung nhôm hệ Xingfa bền chắc. Các cửa sổ, cửa đi và cửa ban công được bố trí đồng đều khắp công trình, mang lại tầm nhìn rộng rãi, tăng cường ánh sáng tự nhiên và sự thông thoáng cho không gian bên trong. Đồng thời, vật liệu hiện đại này còn góp phần tạo điểm nhấn kiến trúc sang trọng, tinh tế và nâng cao tính thẩm mỹ tổng thể cho ngôi nhà.

Biệt thự 2 tầng sở hữu khoảng sân rộng thoáng, được bố trí hợp lý để tận dụng tối đa không gian ngoài trời cho sinh hoạt và vui chơi. Từ ban công, gia chủ có thể dễ dàng chiêm ngưỡng toàn cảnh sân vườn xanh mát, mang lại cảm giác thư giãn và gần gũi với thiên nhiên, đồng thời tạo sự kết nối hài hòa giữa không gian sống bên trong và cảnh quan ngoại thất.

Trong kiến trúc hiện đại, mái bằng luôn là lựa chọn ưu tiên nhờ sự đơn giản, vuông vức và đồng bộ với các mảng miếng kiến trúc. Kết cấu mái bằng vững chắc với lớp bê tông kiên cố không chỉ mang lại độ bền bỉ theo thời gian mà còn bảo vệ an toàn cho biệt thự 2 tầng trước mọi điều kiện thời tiết khắc nghiệt. Bên cạnh đó, thiết kế mái phẳng còn tạo điều kiện thuận lợi cho việc bố trí sân thượng, giếng trời hoặc các tiện ích ngoài trời, góp phần tối ưu công năng và tăng tính thẩm mỹ tổng thể cho ngôi nhà.

Khám phá công năng biệt thự 2 tầng hiện đại
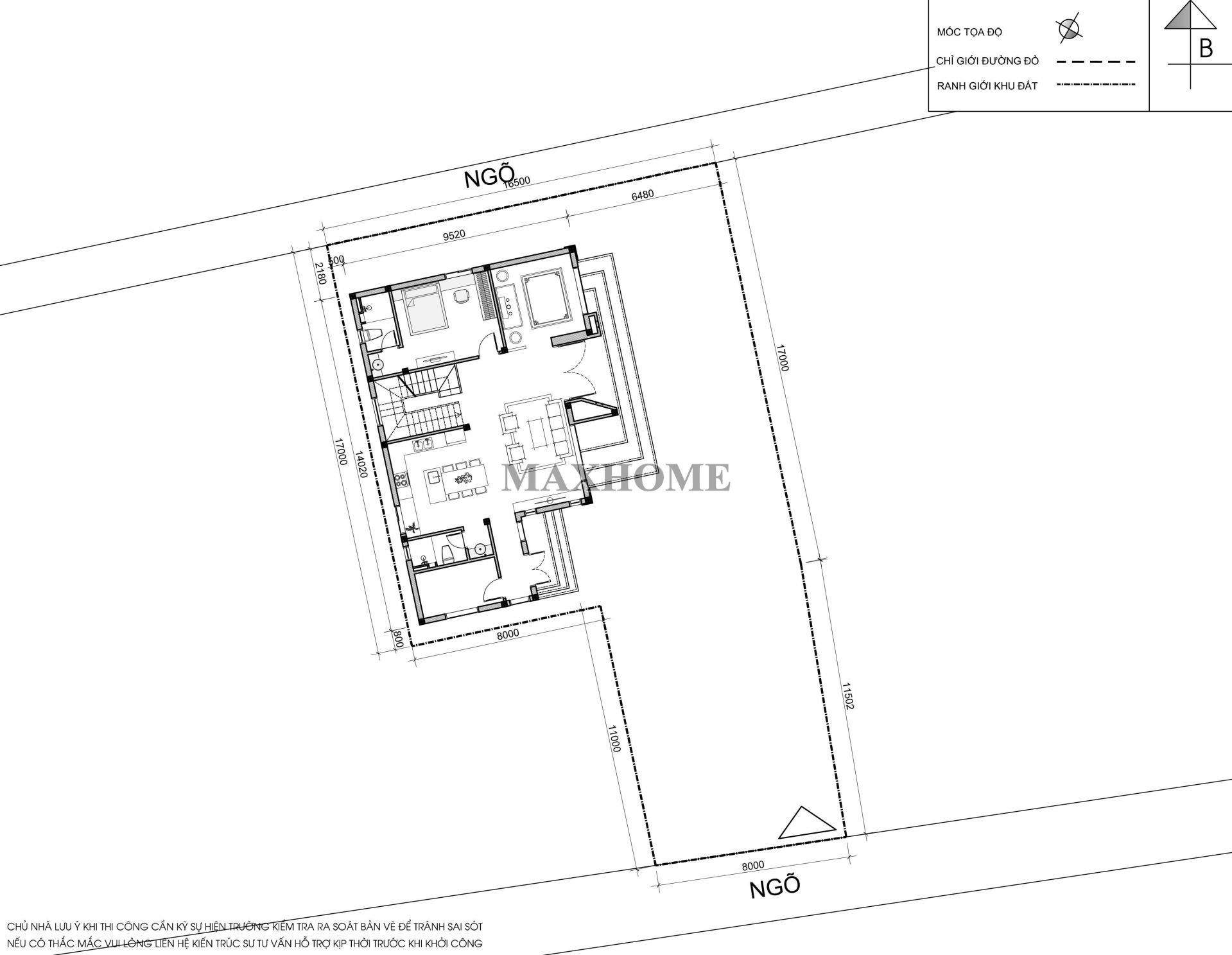
Dưới đây là hình ảnh mặt bằng định vị công trình, cho thấy toàn bộ khuôn viên đất khi nhìn từ trên cao. Khu đất có kích thước 14 x 9,5m, được quy hoạch hợp lý để tối ưu không gian xây dựng. Tổng diện tích sử dụng của công trình vào khoảng 240m², phù hợp để bố trí đầy đủ các phòng chức năng và đảm bảo sự tiện nghi trong quá trình sinh hoạt của gia đình.

Từ cửa chính bước vào là khu vực phòng khách rộng rãi với diện tích 27m², được thiết kế thông thoáng, thuận tiện cho sinh hoạt chung và đón tiếp khách. Trên tầng 1, phòng thờ được bố trí riêng biệt, trang nghiêm và yên tĩnh. Tiếp nối phòng khách là không gian bếp – ăn hiện đại, tiện nghi. Phòng ngủ 01 được thiết kế với nhà vệ sinh khép kín bên trong, đảm bảo sự riêng tư. Ngoài ra, tầng 1 còn bao gồm một phòng kho và một nhà vệ sinh chung, tối ưu hóa công năng và mang lại sự thuận tiện cho cả gia đình.

Tầng 2 được bố trí phòng làm việc riêng biệt, yên tĩnh, thuận tiện cho sinh hoạt và công việc tại gia. Bao quanh tầng là ba phòng ngủ rộng rãi, mỗi phòng đều có cửa sổ lấy sáng tự nhiên, mang lại không gian thoáng đãng và thoải mái cho các thành viên. Ở cuối nhà, phòng giặt – phơi được sắp xếp gọn gàng, kết hợp với một nhà vệ sinh chung, tối ưu hóa công năng và đảm bảo sự tiện nghi trong sinh hoạt hằng ngày.







