Giữa những dãy nhà phố quen thuộc, mẫu nhà phố hiện đại với thiết kế bo cong mềm mại này nổi bật như một điểm nhấn kiến trúc đầy khác biệt. Không đi theo lối mòn của các khối vuông cứng nhắc, công trình gây ấn tượng mạnh bởi hình khối uốn lượn tinh tế, mặt tiền thanh thoát nhưng vẫn giữ được sự sang trọng và cá tính riêng, đáp ứng trọn vẹn nhu cầu sống tiện nghi của gia đình đô thị ngày nay.
Thông tin nhà phố hiện đại bo cong độc đáo
| Chủ đầu tư: Anh Đặng Văn Dương | Địa chỉ: Giao Thuỷ, Ninh Bình |
| Mặt tiền: 6,5m | Kích thước xây dựng: 6,5 × 14m |
| Số tầng: 3 tầng | Loại hình: Nhà lô phố hiện đại |
| Tổng diện tích: 270m2 | |
Công năng:
| |
| Đơn vị thiết kế: CÔNG TY TNHH MAXHOME ARCHITECT & DESIGN | |
Ngoại thất nhà phố hiện đại 3 tầng
Mẫu nhà phố dưới đây được thiết kế với quy mô 3 tầng, mang đậm phong cách hiện đại, nổi bật nhờ các đường bo cong điểm nhấn thay cho những góc cạnh cứng nhắc thường thấy. Dù sở hữu mặt tiền rộng 6,5m, KTS vẫn khéo léo bố trí hình khối và không gian sao cho tổng thể ngôi nhà trở nên cân đối, thông thoáng và giàu tính thẩm mỹ. Thiết kế này không chỉ giúp công trình dễ dàng bố trí công năng bên trong mà còn tạo nên diện mạo khác biệt, phù hợp với xu hướng kiến trúc nhà phố hiện đại ngày nay.

Màu sắc chủ đạo của công trình nhà phố là lớp sơn giả bê tông tông ghi xám, mang đến vẻ đẹp hiện đại, cá tính và khá khác biệt so với các gam màu truyền thống. Riêng khu vực mặt tiền tầng 1 được ốp gạch giả đá, giúp tăng cảm giác chắc chắn, sang trọng và tạo điểm nhấn rõ rệt cho tổng thể kiến trúc. Sự phối hợp hài hòa giữa các chất liệu và màu sắc không chỉ nâng cao giá trị thẩm mỹ mà còn góp phần bảo vệ công trình, đảm bảo độ bền đẹp và phù hợp với điều kiện sử dụng lâu dài trong môi trường đô thị.

Lan can ban công tầng 2 được thiết kế khá độc đáo với sự kết hợp hài hòa giữa bê tông và kính, vừa đảm bảo độ chắc chắn vừa tạo cảm giác thông thoáng, hiện đại cho mặt tiền. Lên đến tầng 3, hệ lan can được sử dụng hoàn toàn bằng kính cường lực, giúp mở rộng tầm nhìn và tăng khả năng đón sáng tự nhiên. Để giảm bớt cảm giác khô cứng của môi trường đô thị, gia chủ có thể bố trí thêm cây xanh tại khu vực ban công, tạo mảng xanh thư giãn, mang lại không khí trong lành và góp phần cân bằng tổng thể kiến trúc của ngôi nhà.

Toàn bộ hệ thống cửa chính, cửa phụ và cửa sổ của mẫu nhà phố hiện đại này đều được thiết kế với dạng ô kính bo tròn mềm mại, giúp giảm cảm giác thô cứng thường thấy ở các công trình nhà phố cao tầng. Hệ cửa sử dụng nhôm hệ Xingfa cao cấp, kết hợp kính cường lực, không chỉ đảm bảo độ bền, an toàn trong quá trình sử dụng mà còn tăng khả năng lấy sáng, thông gió tự nhiên. Thiết kế này góp phần tạo nên diện mạo tinh tế, hiện đại và hài hòa cho tổng thể kiến trúc ngôi nhà.

Quan sát từ góc nhìn trên cao, có thể thấy mẫu nhà phố hiện đại này sử dụng hệ mái bằng phẳng, một giải pháp kiến trúc phổ biến và phù hợp với những khuôn viên đất trong đô thị. Thiết kế mái bằng không chỉ giúp tối ưu chiều cao công trình, dễ dàng bố trí các hệ thống kỹ thuật như bồn nước, pin năng lượng mặt trời hay sân thượng xanh, mà còn góp phần tạo nên tổng thể kiến trúc gọn gàng, hiện đại và linh hoạt trong quá trình sử dụng lâu dài.

Khám phá công năng nhà phố hiện đại bo cong độc đáo
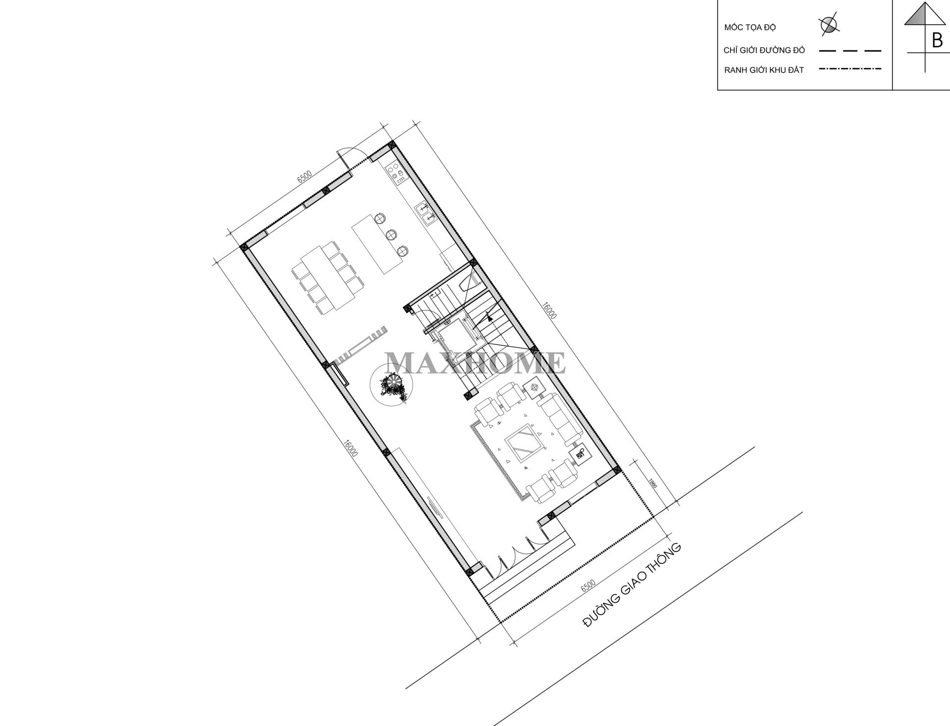
Mặt bằng định vị công trình cho thấy mẫu nhà phố hiện đại được xây dựng tiếp giáp trực tiếp với mặt đường giao thông, thuận tiện cho việc di chuyển và sinh hoạt hằng ngày. Ngôi nhà có kích thước xây dựng 6,5 × 14m, được tính toán hợp lý nhằm tối ưu diện tích sử dụng trên lô đất đô thị. Với quy mô nhiều tầng, tổng diện tích sử dụng của công trình vào khoảng 270m², đáp ứng đầy đủ nhu cầu sinh hoạt, nghỉ ngơi và làm việc của gia đình.

Từ cửa chính bước vào là không gian phòng khách rộng rãi, được bố trí thoáng đãng, tạo cảm giác chào đón ngay từ khi vào nhà. Tiến sâu vào bên trong, khu vực cầu thang được thiết kế kết hợp với khoảng tiểu cảnh xanh, giúp lấy sáng, lưu thông không khí và mang lại cảm giác gần gũi với thiên nhiên. Phòng bếp – ăn được bố trí về cuối nhà, đảm bảo sự riêng tư, thoáng mát và thuận tiện trong quá trình sinh hoạt hằng ngày. Nhà vệ sinh chung được đặt gọn gàng dưới chân cầu thang, tối ưu diện tích sử dụng. Đặc biệt, công trình còn được trang bị thang máy, giúp việc di chuyển giữa các tầng trở nên dễ dàng và phù hợp với gia đình có người lớn tuổi.

Tầng 2 được bố trí 03 phòng ngủ với cách sắp xếp khoa học, đáp ứng đầy đủ nhu cầu nghỉ ngơi và sinh hoạt của các thành viên trong gia đình. Trong đó, phòng ngủ số 01 và phòng ngủ số 02 được đặt đối diện nhau, thuận tiện cho việc sử dụng và dùng chung một nhà vệ sinh, giúp tối ưu diện tích mặt bằng. Phòng ngủ số 03 được thiết kế rộng rãi hơn, tích hợp khu vực thay đồ riêng cùng nhà vệ sinh khép kín bên trong, mang lại sự riêng tư, tiện nghi và thoải mái trong quá trình sử dụng.

Không gian tầng 3 được bố trí hợp lý, đáp ứng cả nhu cầu sinh hoạt và tâm linh của gia đình. Phòng thờ được thiết kế trang nghiêm, đặt ở vị trí yên tĩnh và hướng ra khu vực sân chơi, giúp không gian luôn thông thoáng, đón gió và ánh sáng tự nhiên. Về phía cuối nhà là 01 phòng ngủ, cạnh bên là sân phơi được bố trí gọn gàng, thuận tiện cho sinh hoạt hằng ngày. Ngoài ra, một nhà vệ sinh chung được sắp xếp hợp lý trên tầng, đảm bảo sự tiện nghi và tối ưu công năng sử dụng.







