Chủ nhà chốt ngay bản vẽ nhà chữ L chuẩn đẹp theo phong thuỷ không phải là một quyết định ngẫu nhiên mà đến từ cảm giác vừa nhìn đã thấy ưng khi anh Thế Anh ở Hà Nội được tiếp cận phương án thiết kế do Maxhome đề xuất. Với những gia đình đang tìm kiếm một bản vẽ nhà chữ L đẹp, dễ ứng dụng và không lỗi thời theo năm tháng, đây thực sự là một mẫu đáng tham khảo.
Thông tin nhà chữ L chuẩn đẹp theo phong thuỷ
| Chủ đầu tư: Anh Trịnh Thế Anh | Địa chỉ: Mỹ Đức, Hà Nội |
| Mặt tiền: 10,4m | Kích thước xây dựng: 10,4 x 8,7m |
| Số tầng: 2 tầng | Loại hình: Nhà mái Nhật hiện đại |
| Tổng diện tích: 142m2 | |
Công năng:
| |
| Đơn vị thiết kế: CÔNG TY TNHH MAXHOME ARCHITECT & DESIGN | |
Ngoại thất nhà chữ L hiện đại mái Nhật
Căn nhà 2 tầng chữ L sở hữu mặt tiền rộng tới 10,4m, một lợi thế lớn để kiến trúc sư Maxhome khai thác hình khối. Phần khối nhà được xử lý nhô ra 2,9m hình thành bố cục nhà chữ L rõ nét giúp công trình vừa có chiều sâu vừa tạo được khoảng đệm thoáng đãng phía trước. Với cách tổ chức này, bản vẽ nhà chữ L không chỉ đáp ứng yếu tố thẩm mỹ mà còn rất chuẩn về phong thuỷ, giúp dòng khí lưu thông hài hoà và tránh cảm giác bí bách thường thấy ở những ngôi nhà ống.

Về màu sắc, ngôi nhà 2 tầng nổi bật với sự kết hợp giữa hai gam màu chủ đạo là trắng và nâu. Màu trắng được sử dụng làm nền giúp công trình trông sáng sủa, cao ráo và luôn giữ được vẻ thanh lịch theo thời gian. Điểm nhấn nằm ở các mảng sơn giả gỗ màu nâu được bố trí xen kẽ tạo cảm giác ấm áp và gần gũi đồng thời làm giảm sự đơn điệu của khối nhà.
Hệ cửa chính và cửa phụ được đầu tư sử dụng gỗ tự nhiên giúp tăng tính thẩm mỹ và thể hiện sự chỉn chu, khang trang của ngôi nhà. Trong khi đó, các ô cửa sổ sử dụng kính giúp không gian bên trong luôn ngập tràn ánh sáng tự nhiên, hạn chế cảm giác bí bách và tăng sự kết nối giữa trong và ngoài nhà, một điểm cộng lớn trong các bản vẽ nhà chữ L hiện đại.

Ban công tầng 2 là một chi tiết được nhiều người đánh giá cao khi nhìn vào tổng thể ngoại thất. Ban công trải dài theo phương ngang được sử dụng lan can kính cường lực kết hợp tay vịn inox chắc chắn, an toàn mà không bị chắn tầm nhìn. Nhờ đó, mặt tiền mẫu nhà đẹp luôn giữ được sự thông thoáng, nhẹ nhàng và hiện đại. Khi đứng từ ngoài nhìn vào, ban công kính tạo hiệu ứng mở rộng không gian rất tốt giúp công trình trông rộng rãi hơn so với diện tích thực. Đây cũng là một giải pháp thường xuyên xuất hiện trong các bản vẽ nhà chữ L do Maxhome thực hiện, bởi nó phù hợp với khí hậu và thói quen sinh hoạt của gia đình Việt.

Nhìn lên phía trên, hệ mái Nhật là lựa chọn hoàn toàn hợp lý cho tổng thể kiến trúc này. Dù phần mái không đua ra quá nhiều nhưng độ dốc vẫn đạt chuẩn để đảm bảo khả năng thoát nước mưa nhanh, chống nắng nóng hiệu quả và tăng độ bền cho công trình. Mái Nhật giúp ngôi nhà anh Thế Anh trông thanh thoát hơn, không bị nặng nề, đồng thời rất hài hoà với hình khối nhà chữ L bên dưới. Ngoài ra, do ngôi nhà 2 tầng mái Nhật này có nền đất cao ráo nên đội ngũ thiết kế Maxhome chỉ nâng nền lên vừa phải và thiết kế 3 bậc thềm dẫn lối vào nhà, tạo cảm giác bước vào nhẹ nhàng, thuận tiện cho cả người già và trẻ nhỏ.


Hệ cửa cổng và tường rào được thiết kế đồng bộ với kiến trúc ngôi nhà, từ màu sắc đến vật liệu đều có sự liên kết chặt chẽ. Cổng sử dụng nan kim loại kết hợp mảng tường đặc giúp đảm bảo an ninh mà vẫn giữ được sự thông thoáng cần thiết. Với bản vẽ nhà chữ L này, không khó hiểu khi anh Thế Anh chốt phương án ngay từ những ngày đầu, bởi đây là một thiết kế hội tụ đủ yếu tố đẹp, bền, thoáng và chuẩn phong thuỷ cho cuộc sống lâu dài.
Công năng vừa đẹp vừa khoa học

Từ cổng đi vào nhà anh Thế Anh là khoảng sân rộng lớn, trước khi bước vào nhà là đi qua bậc thềm và sảnh chính như một bước đệm nhỏ chào đón một cách trang trọng. Phòng khách đặt ngay gần cửa chính với không gian rộng rãi, thoáng sáng, thuận tiện cho việc tiếp đón khách cũng như sinh hoạt chung hằng ngày. Phòng thờ được sắp xếp trang trọng, tách biệt tương đối nhưng vẫn nằm trong tổng thể hài hoà của tầng 1 để đảm bảo sự yên tĩnh và chuẩn mực về yếu tố tâm linh.

Khu vực bếp và phòng ăn bố trí ngay tại khu vực sảnh phụ, đây cũng là khu vực nhô ra tạo nên kiến trúc kiểu nhà chữ L độc đáo. Ngoài ra, tầng này còn có 1 đặt cạnh phòng khách và 1 nhà vệ sinh chung đặt dưới vị trí cầu thang rất đặt gọn gàng, thuận tiện cho việc sử dụng mà không ảnh hưởng đến các không gian khác.


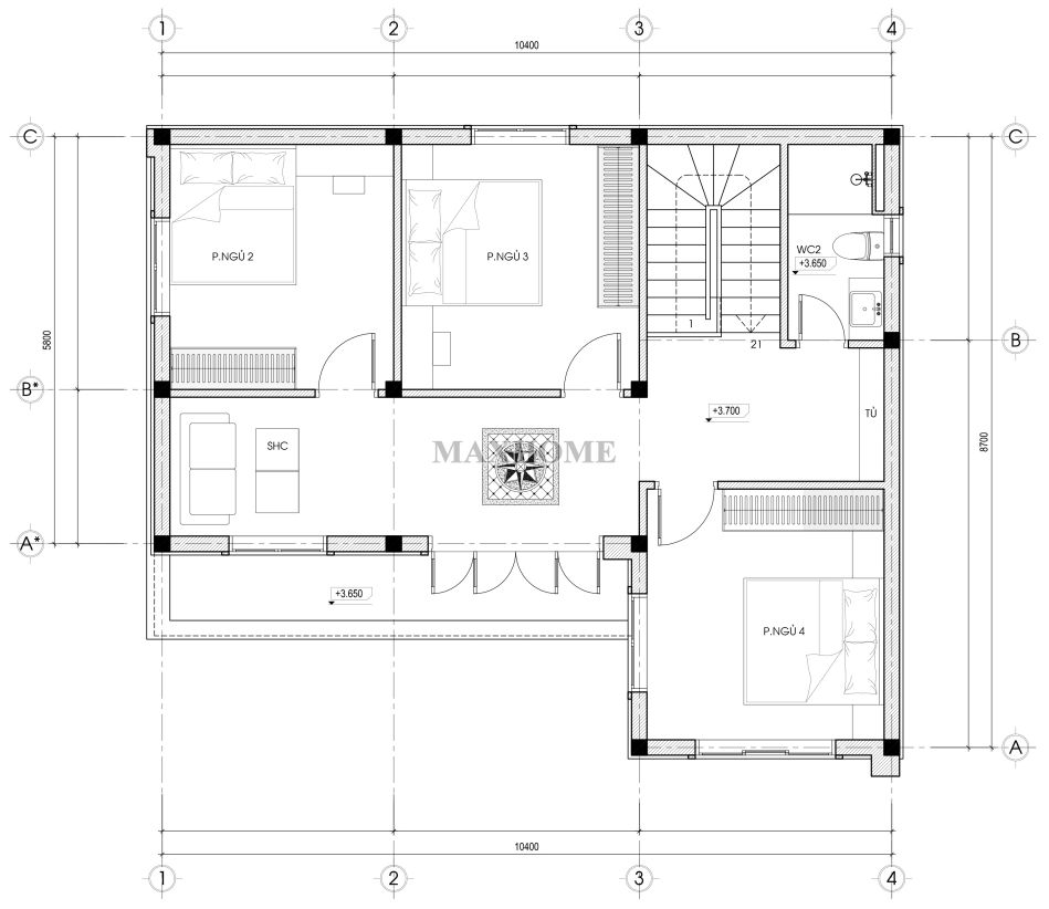
Lên tầng 2, không gian phòng sinh hoạt chung đóng vai trò kết nối các phòng ngủ giúp tầng 2 không bị chia cắt rời rạc mà vẫn giữ được sự ấm áp và gần gũi. Nhờ hệ cửa sổ lớn và ban công phía trước nên khu vực sinh hoạt chung luôn đón được ánh sáng tự nhiên, tạo cảm giác dễ chịu và thoáng đãng.

Ba phòng ngủ còn lại được bố trí hợp lý xung quanh giúp đảm bảo mỗi thành viên đều có không gian riêng tư cần thiết. Các phòng đều có cửa sổ để lấy sáng và thông gió để không gian nghỉ ngơi luôn khô ráo, dễ chịu. Nhà vệ sinh chung trên tầng 2 được đặt ở vị trí thuận tiện cho việc sử dụng, giảm tối đa việc di chuyển xa giữa các phòng.








