Siêu phẩm biệt thự phố 2 tầng 1 tum mái Mansard của gia đình chị Liên tại Thanh Hóa gây ấn tượng bởi vẻ đẹp nguy nga và sang trọng. Công trình tái hiện trọn vẹn tinh hoa kiến trúc tân cổ điển kiểu Pháp, đồng thời thể hiện rõ gu thẩm mỹ và vị thế của gia chủ. Mời quý bạn đọc cùng khám phá vẻ đẹp lung linh, nổi bật và không gian sống đầy đẳng cấp của thiết kế này.
Thông tin công trình biệt thự phố 2 tầng 1 tum mái Mansard
| Chủ đầu tư: Chị Ngô Thị Liên | Địa chỉ: Biện Thượng, Thanh Hoá |
| Mặt tiền: 8,7m | Kích thước xây dựng: 8,7 x 17,7m |
| Số tầng: 2 tầng 1 tum | Loại hình: Biệt thự phố mái Mansard |
| Tổng diện tích: 230m² | |
Công năng:
| |
| Đơn vị thiết kế: CÔNG TY TNHH MAXHOME ARCHITECT & DESIGN | |
Mẫu biệt thự phố 2 tầng 1 tum mái Mansard sang trọng, đẳng cấp
Mẫu biệt thự phố 2 tầng 1 tum mái Mansard cuốn hút ngay từ ánh nhìn đầu tiên nhờ vẻ ngoài bề thế, sang trọng và đầy khí chất. Từng chi tiết vòm cong, cột trụ, hoa văn, phào chỉ được trau chuốt tỉ mỉ, góp phần tôn lên vẻ đẹp kiêu sa và tinh tế của công trình, thể hiện dấu ấn thẩm mỹ vượt thời gian.

Gam màu chủ đạo của biệt thự là trắng kem trang nhã, kết hợp với mái, khung cửa và đá ốp ghi xám tạo nên tổng thể hài hòa và hiện đại. Sắc trắng mang ý nghĩa khởi đầu thuận lợi, mái ghi giúp nhấn mạnh chiều cao, còn ánh vàng ấm từ đèn chùm pha lê làm nổi bật sự sang trọng. Tất cả hòa quyện để thể hiện phong cách thanh lịch và vị thế của gia chủ.
Vật liệu ngoại thất được lựa chọn kỹ lưỡng, đảm bảo tính bền vững và sang trọng lâu dài. Từ đá ốp, hệ cửa kính khung nhôm cao cấp đến lớp sơn chống bám bẩn, mọi chi tiết đều hướng đến sự chắc chắn và tinh tế, giúp công trình giữ được vẻ đẹp sang trọng theo thời gian.

Mặt tiền căn biệt thự 2 tầng 1 tum mái Mansard tân cổ điển hiện lên đầy cuốn hút với hệ trụ cột cao thông tầng tạo cảm giác bề thế và vững chãi. Mái sảnh vòm kết hợp cùng ô cửa sổ cong mềm mại giúp tổng thể vừa sang trọng vừa thanh thoát.
Lan can sắt sơn tĩnh điện nổi bật nhờ hoa văn tinh xảo, hòa cùng các đường phào chỉ được xử lý kỹ tạo chiều sâu và độ tinh tế cho từng mảng tường. Đặc biệt, phù điêu đắp nổi ở mái sảnh như điểm nhấn nghệ thuật, tôn lên vẻ nguy nga và chuẩn chất kiến trúc tân cổ điển của cả công trình.

Cửa kính cường lực khung nhôm cao cấp góp phần mang ánh sáng tự nhiên tràn ngập các tầng, đồng thời tạo cảm giác rộng mở và kết nối hài hòa với thiên nhiên. Bề mặt tường được xử lý phẳng mịn, kết hợp các đường chỉ tinh tế, tạo chiều sâu cho không gian mặt đứng. Hệ thống đèn tường được bố trí cân đối, vừa có tác dụng chiếu sáng vừa tôn vinh nét đẹp kiến trúc về đêm.

Điểm nhấn của công trình nằm ở hệ mái Mansard, đặc trưng của phong cách kiến trúc tân cổ điển Pháp. Mái được thiết kế cao, phủ ngói xám ghi sang trọng, kết hợp cùng phào chỉ trắng tinh tế tạo nên vẻ quý phái hiếm có. Hình khối mái được xử lý mềm mại với các ô cửa sổ vòm vừa giúp tăng thẩm mỹ vừa tạo không gian thông thoáng cho tầng tum phía trên.
Bên cạnh tính thẩm mỹ, hệ mái Mansard còn có tác dụng cách nhiệt, chống thấm và tận dụng được diện tích bên trong làm kho hoặc phòng ngủ phụ. Chính sự kết hợp giữa yếu tố kỹ thuật và nghệ thuật đã làm nên linh hồn của căn biệt thự, nơi mỗi chi tiết đều mang giá trị thẩm mỹ và công năng song hành.

Bộ cổng của biệt thự nổi bật với hoa văn sắt mỹ thuật tinh xảo, tạo cảm giác sang và chắc. Tường bao đồng bộ với kiến trúc tổng thể, sử dụng các đường phào chỉ sắc nét giúp không gian thêm bề thế. Sự kết hợp giữa màu sắc hài hòa và hình khối cân đối khiến toàn bộ mặt tiền trở nên cuốn hút và đậm chất biệt thự phố cao cấp.
Khám phá công năng tiện nghi vượt trội

Sau khi tiếp nhận yêu cầu từ gia đình chị Liên, đội ngũ kiến trúc sư Maxhome đã trực tiếp khảo sát hiện trạng khu đất để đưa ra phương án thiết kế tối ưu. Biệt thự có mặt tiền hướng Đông Bắc, diện tích xây dựng 8,7 x 17,7m, tổng diện tích sử dụng lên tới 300m². Thiết kế không chỉ đảm bảo đầy đủ công năng tiện nghi mà còn hài hòa về thẩm mỹ, đáp ứng toàn diện nhu cầu sinh hoạt và gu thẩm mỹ riêng của gia chủ.

Tầng 1 được sắp xếp gọn và hợp lý với phòng khách rộng phía trước, mang lại cảm giác thoáng và sáng ngay khi bước vào. Khu bếp và phòng ăn nối liền nhau giúp việc nấu nướng và di chuyển trở nên thuận tiện. Tầng này cũng có một phòng ngủ khép kín mang lại sự riêng tư, cùng một nhà vệ sinh chung đặt cuối nhà để tiện dùng mà không ảnh hưởng đến không gian khác.

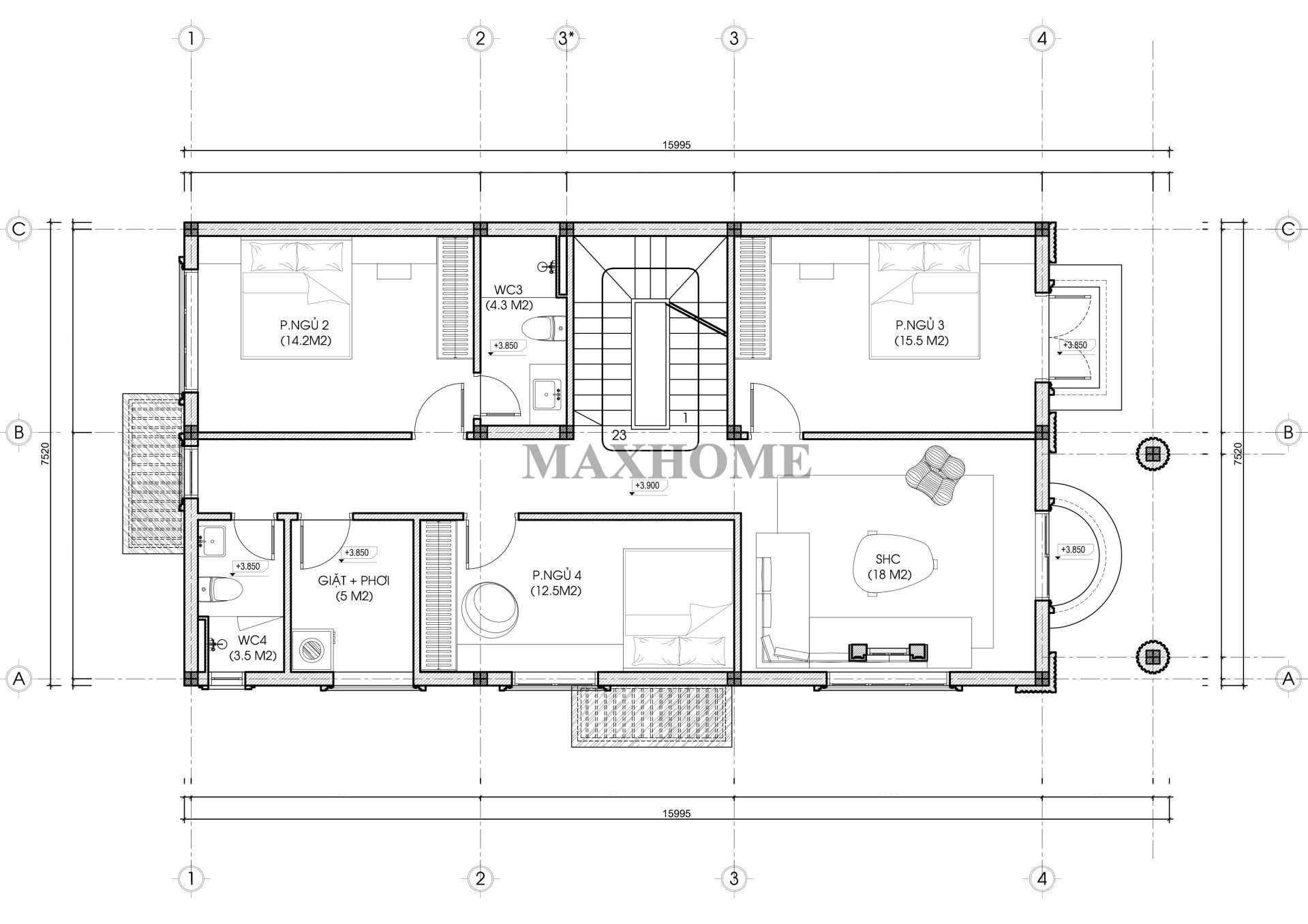
Tầng 2 gồm ba phòng ngủ có diện tích hợp lý, mỗi phòng đều có cửa sổ để lấy sáng tự nhiên và tạo cảm giác thoải mái. Phòng ngủ 02 được thiết kế tương tự phòng ngủ 1, mang lại sự đồng nhất trong không gian nghỉ ngơi. Khu sinh hoạt chung nằm ở trung tâm giúp các thành viên dễ kết nối, trong khi khu giặt phơi và WC chung được bố trí gọn và hợp lý để phục vụ trọn vẹn nhu cầu của cả tầng.







