Những ngôi nhà 2 tầng mái Nhật vẫn luôn chiếm trọn cảm tình của chủ đầu tư nhờ vẻ đẹp thanh lịch và sự cân đối hoàn hảo. Tuy nhiên, để tạo nên một dấu ấn khác biệt, không hòa lẫn với số đông thì cần đến sự sáng tạo đột phá từ đội ngũ kiến trúc sư. Hôm nay, Maxhome mời bạn cùng chiêm ngưỡng một tác phẩm như thế của gia đình chú Tuyến tại Hưng Yên, nơi nghệ thuật màu sắc và hình khối hòa quyện tạo nên không gian sống đầy kiêu hãnh.
Thông tin nhà nhà 2 tầng mái Nhật phá cách
| Chủ đầu tư: Chú Nguyễn Văn Tuyến | Địa chỉ: Thần Khê, Hưng Yên |
| Mặt tiền: 7,5m | Kích thước xây dựng: 7,5 x 12,4m |
| Số tầng: 2 tầng | Loại hình: Nhà mái Nhật hiện đại |
| Tổng diện tích: 174m2 | |
Công năng:
|
|
| Đơn vị thiết kế: CÔNG TY TNHH MAXHOME ARCHITECT & DESIGN | |
Đội ngũ thiết kế Maxhome tạo nên bản vẽ nhà 2 tầng tuyệt đẹp
Công trình 2 tầng mái Nhật của chú Tuyến gây ấn tượng mạnh bởi cách phối màu độc nhất vô nhị. Thay vì sử dụng những tông màu trung tính phổ biến, mặt tiền ngôi nhà được khoác lên mình lớp sơn giả đá vàng vân mây trắng đầy tinh tế. Những đường vân mềm mại, tự nhiên như được tạc từ khối đá quý mang lại cảm giác quyền quý và sang trọng tuyệt đối cho mặt tiền.

Để tối ưu hóa chi phí mà vẫn đảm bảo tính thẩm mỹ cao nhất, Maxhome đã khéo léo sử dụng sơn trắng cho các mặt tường còn lại. Giải pháp này giúp dồn toàn bộ sự chú ý vào mặt tiền của công trình, nơi các chi tiết trang trí được chăm chút tỉ mỉ nhất.
Một trong những nét phá cách lớn nhất ở mẫu nhà 2 tầng mái Nhật này chính là tông màu đỏ gạch nổi bật. Sắc đỏ không quá rực rỡ nhưng đủ để tạo nên chiều sâu được sử dụng đồng điệu cho hệ cửa gỗ cao cấp và các mảng tường nhấn. Đặc biệt, màu sơn này còn được tinh tế đưa vào phần viền dưới diềm mái vẽ nên một đường kẻ chỉ sắc nét, bao bọc và tôn vinh vẻ đẹp của hệ mái xanh thanh lịch.

Đi sâu vào chi tiết, chúng ta không thể rời mắt khỏi hệ cột trụ uy nghi chạy thẳng từ tầng 1 lên tầng 2. Phần thân cột được sơn đỏ ở giữa, hai bên viền trắng đắp nổi tạo nên một hiệu ứng thị giác mạnh mẽ giúp ngôi nhà trông cao ráo và bề thế hơn hẳn. Tại vị trí ban công tầng 2, sự xuất hiện của lan can nhôm đúc nghệ thuật với những đường nét hoa văn cầu kỳ đã nâng tầm đẳng cấp cho ngôi nhà của chú Tuyến.

Vào thời điểm hoàng hôn, ngôi nhà 2 tầng mái Nhật sẽ trở nên lung linh hơn bao giờ hết nhờ hệ thống đèn trang trí ngoại thất được lắp đặt đối xứng hai bên cột. Ánh sáng vàng ấm áp hắt ra từ những chiếc đèn cổ điển không chỉ soi rọi những đường phào chỉ trắng đắp nổi quanh các ô cửa mà còn làm tôn lên vẻ đẹp của khu tiểu cảnh xanh mát ngay chân tường.

Mỗi ô cửa sổ được kiến trúc sư thiết kế với kích thước lớn và sử dụng kính cường lực khung gỗ giúp đón trọn ánh sáng tự nhiên vào không gian nội thất. Những đường phào chỉ trắng bao quanh cửa sổ như những khung tranh đã biến mỗi góc nhìn từ trong nhà ra ngoài đều trở thành một tác phẩm nghệ thuật.

Đối với công trình này, hệ mái Nhật được xây dựng với sự tính toán vô cùng kỹ lưỡng. Do đặc thù diện tích đất và để không làm ảnh hưởng đến các công trình lân cận nên phần mái nhà chú Tuyến không đua ra quá nhiều, tuy nhiên, độ dốc của mái vẫn được đảm bảo đủ cao để tạo sự thanh thoát và quan trọng nhất là giúp thoát nước mưa cực tốt. Sự kết hợp giữa màu ngói xanh than trầm mặc với tông màu ấm nóng của sơn tường tạo nên một tổng thể hài hòa, bền vững với thời gian.
Không gian sống tiện nghi trong căn nhà 2 tầng

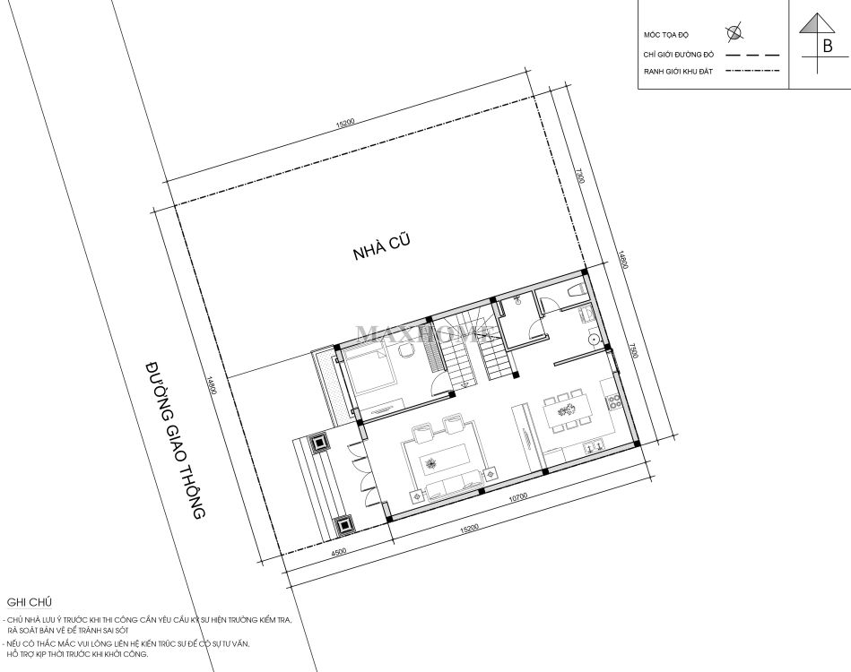
Căn nhà 2 tầng mái Nhật được quy hoạch gọn gàng trên một khuôn đất có chiều ngang khoảng 15,2m và chiều sâu gần 15m. Ngôi nhà mới được đặt sát về phía góc phải của khu đất, song song với một nhà cũ hiện có, tạo nên một khoảng sân chung rộng rãi phía trước và bên hông. Việc định vị này rất thông minh khi dành ra một khoảng lùi tầm 4,5m so với trục đường giao thông giúp không gian sống tránh được tiếng ồn và khói bụi trực tiếp, đồng thời tạo ra khu vực để xe và sân chơi thoáng đãng cho gia đình.

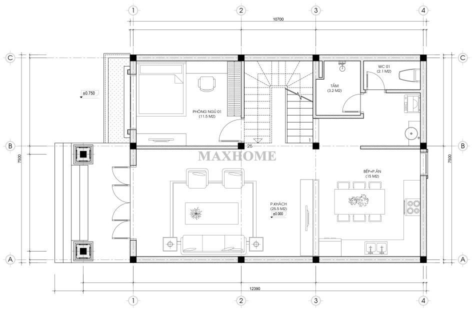
Bước qua bậc tam cấp uy nghi là không gian tầng 1 được tối ưu hóa cho sinh hoạt chung với diện tích 2 mặt sàn 174m2. Ngay sảnh chính đi vào là phòng khách rộng rãi có diện tích 25,5m2 được ngăn cách nhẹ nhàng với khu vực bếp và phòng ăn 15m2 bằng một hệ vách trang trí hiện đại. Phía bên trong là một phòng ngủ tiện nghi rộng 11,5m, rất phù hợp cho người lớn tuổi trong nhà để hạn chế việc di chuyển cầu thang. Khu vực vệ sinh và phòng tắm được tách riêng biệt 2,1m2 và 3,2m2 đặt cuối hành lang giúp đảm bảo tính thẩm mỹ và sự kín đáo khi sử dụng.

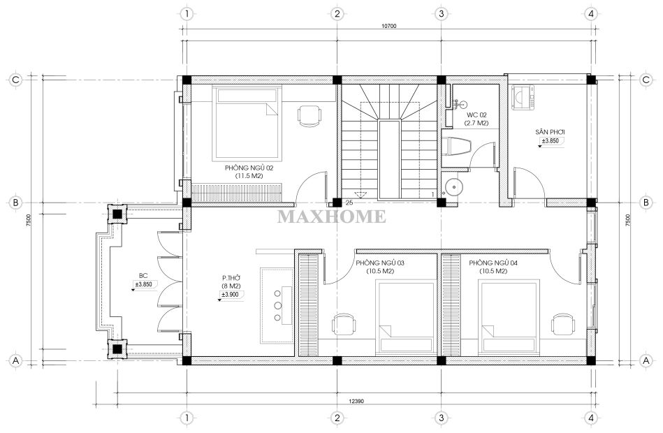
Tầng 2 là không gian nghỉ ngơi yên tĩnh và nơi thờ tự trang nghiêm của gia đình. Phòng thờ 8m2 được ưu tiên đặt ở vị trí trang trọng nhất có cửa mở ra khu vực ban công rộng thoáng để đón khí tiết. Ba phòng ngủ còn lại được bố trí khoa học xung quanh sảnh tầng: phòng ngủ 02 11,5m2, phòng ngủ 03 và 04 có diện tích đồng đều 10,5m2. Đặc biệt, tầng này còn có một khu vực sân phơi tiện lợi phía sau và 1 nhà vệ sinh chung diện tích 2,7m2 phục vụ cho cả tầng. Cách sắp xếp này giúp ngôi nhà 2 tầng mái Nhật có tổng cộng 4 phòng ngủ, đáp ứng hoàn hảo nhu cầu cho gia đình nhiều thế hệ.

