Khi nhắc đến nhà cấp 4 mặt tiền 11m, nhiều người sẽ nghĩ ngay đến một không gian sống rộng rãi, thoáng đãng và mang đậm phong cách hiện đại. Để đạt được sự cân bằng giữa tính thẩm mỹ và công năng thì mỗi chi tiết trong thiết kế đều cần được tính toán kỹ lưỡng. Đó cũng chính là điểm nổi bật trong công trình nhà anh Chiến ở Hà Tĩnh do Maxhome thiết kế, mẫu nhà đẹp đã thể hiện rõ gu thẩm mỹ tinh tế qua từng đường nét ngoại thất.
Thông tin nhà cấp 4 mặt tiền 11m rộng rãi
| Chủ đầu tư: Anh Phan Văn Chiến | Địa chỉ: Lộc Hà, Hà Tĩnh |
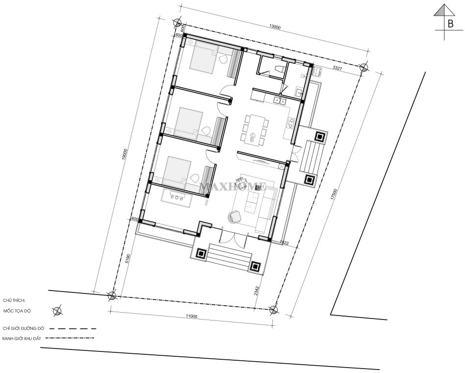
| Mặt tiền: 11m | Kích thước xây dựng: 11 x 14,6m |
| Số tầng: 1 tầng | Loại hình: Nhà mái Nhật hiện đại |
| Tổng diện tích: 116m2 | |
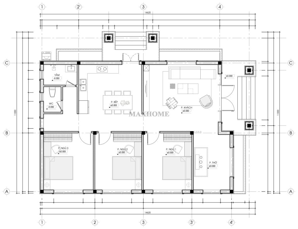
| Công năng: Phòng khách, phòng thờ, phòng bếp, 3 phòng ngủ, 1 phòng tắm, 1 wc | |
| Đơn vị thiết kế: CÔNG TY TNHH MAXHOME ARCHITECT & DESIGN | |
Chi tiết mẫu nhà cấp 4 siêu chất ở Hà Tĩnh
Khác với những ngôi nhà cấp 4 mặt tiền 11m thường sơn trắng trơn đơn giản, nhà anh Chiến chọn hướng đi khác biệt hơn. Toàn bộ mặt tiền tầng 1 mẫu nhà đẹp được sơn trắng giả đá vân mây cách điệu nhẹ nhàng tạo cảm giác mềm mại nhưng vẫn toát lên sự sang trọng. Xen giữa những mảng trắng ấy là màu sơn xám được phối tinh tế giúp ngôi nhà vừa nổi bật vừa hài hòa với cảnh quan xung quanh. Sự kết hợp khéo léo này mang đến cảm giác hiện đại, đẳng cấp mà vẫn gần gũi, đúng tinh thần của một mẫu nhà cấp 4 mặt tiền 11m tinh gọn và tinh tế.

Một điểm nhấn đáng kể của thiết kế này là nền nhà được nâng cao 750mm và tạo nên 5 bậc thềm dẫn lối vào nhà. Mỗi bậc đều được ốp đá Granite đen ở phần mặt, trong khi phần cổ bậc dùng màu trắng sáng làm nổi bật sự tương phản và nhấn mạnh cảm giác cao ráo, bề thế. Độ dày mặt đá đạt 20mm giúp đảm bảo độ bền, độ chắc chắn và khiến tổng thể thêm phần sang trọng. Đây là chi tiết thể hiện sự chỉn chu của Maxhome trong việc xử lý từng hạng mục ngoại thất giúp ngôi nhà cấp 4 mặt tiền 11m này vừa đẹp vừa thực dụng.

Phần mặt tiền 11m được bố trí hợp lý với cửa chính rộng 3,3m, cao 2,7m mang lại cảm giác thông thoáng và cân đối. Chất liệu gỗ Lim kết hợp pano kính không chỉ làm tăng tính thẩm mỹ mà còn thể hiện rõ phong cách sang trọng của gia chủ. Cửa sổ và cửa phụ sử dụng nhôm kính hiện đại giúp tối ưu ánh sáng tự nhiên, tạo cảm giác không gian mở và thoáng đãng cho toàn bộ ngôi nhà. Đây cũng là yếu tố khiến mẫu nhà cấp 4 của anh Chiến trở nên nổi bật so với nhiều mẫu nhà khác cùng phân khúc.

Hệ mái Nhật là lựa chọn hoàn hảo cho khí hậu miền Trung, cụ thể là tỉnh Hà Tĩnh quê anh Chiến. Mái được thiết kế có sê nô rãnh thoát nước và trát sika chống thấm giúp tăng tuổi thọ và hạn chế tình trạng thấm dột trong mùa mưa. Phần kết cấu mái thi công bằng xà gồ và li tô hợp kim nhôm siêu nhẹ, đảm bảo độ chắc chắn nhưng vẫn giảm tải trọng lên kết cấu nhà. Toàn bộ mái được lợp ngói màu theo đúng phối cảnh thiết kế mang đến sự đồng bộ và hài hòa cho tổng thể. Nhờ đó, mẫu nhà cấp 4 mặt tiền 11m này vừa có tính thẩm mỹ cao vừa tối ưu công năng sử dụng lâu dài.


Nhìn tổng thể từ trên cao, mẫu nhà cấp 4 mái Nhật của anh Chiến ở Hà Tĩnh là minh chứng cho phong cách thiết kế tối giản nhưng tinh tế của Maxhome. Từng chi tiết từ sơn giả đá, hệ bậc thềm, cửa chính gỗ Lim pano kính cho đến mái Nhật chắc chắn đều được tính toán kỹ lưỡng để mang đến sự hài hòa giữa thẩm mỹ và công năng. Đây chắc chắn là một trong những mẫu nhà cấp 4 mặt tiền 11m đáng tham khảo nhất hiện nay cho những ai yêu thích không gian sống tiện nghi, bền đẹp và đậm dấu ấn cá nhân.

Công năng tiện nghi cho nhà cấp 4 đẹp

Công trình có diện tích sàn là 116m2 với kích thước xây dựng 11×14,6m, một tỷ lệ lý tưởng cho mẫu nhà cấp 4 mặt tiền 11m. Nhờ cách bố trí thông minh và cân đối, ngôi nhà cấp 4 vừa đảm bảo sự rộng rãi trong sinh hoạt vừa giữ được vẻ ngoài tinh gọn và phù hợp với nhiều khu đất khác nhau. Maxhome đã khai thác triệt để lợi thế mặt tiền 11m để tạo nên hình khối kiến trúc mạnh mẽ, không cầu kỳ nhưng vẫn toát lên nét hiện đại và bề thế.

Ngôi nhà cấp 4 mặt tiền 11m của anh Chiến được bố trí công năng khoa học và đảm bảo đầy đủ tiện nghi cho sinh hoạt gia đình. Từ sảnh chính bước vào là phòng khách rộng rãi, thoáng mát vì đặt gần cửa ra vào và sở hữu ô cửa sổ lớn trong phòng, liền kề đó là phòng thờ được đặt ở vị trí trang trọng thể hiện sự tôn kính với tổ tiên.

Khu vực phòng bếp kết hợp ăn được bố trí gọn gàng phía sau phòng khách nhưng vẫn có thêm lối đi ra sảnh phụ giúp thuận tiện cho việc nấu nướng và di chuyển hơn. Ngoài ra, ngôi nhà còn có 3 phòng ngủ được sắp xếp hợp lý tạo không gian riêng tư và thoải mái cho từng thành viên. Cuối cùng là khu vực vệ sinh riêng gồm 1 phòng tắm và 1 nhà vệ sinh giúp tối ưu sinh hoạt hằng ngày, đảm bảo sự tiện lợi và thoải mái cho cả gia đình anh Chiến.








