Những năm gần đây, nhà 2 tầng mái Nhật ngày càng được nhiều gia đình tại Hà Tĩnh lựa chọn nhờ sự hài hòa giữa thẩm mỹ hiện đại và công năng sử dụng tối ưu. Trong bài viết này, chúng tôi giới thiệu bản vẽ nhà 2 tầng mái Nhật 179m² ở Hà Tĩnh, được thiết kế dựa trên nhu cầu sinh hoạt thực tế của gia chủ, đảm bảo bố cục khoa học, thông thoáng và thuận tiện trong quá trình sử dụng.
Thông tin nhà 2 tầng mái Nhật 179m² đẹp
| Chủ đầu tư: Chú Thái Hữu Nuôi | Địa chỉ: Xuân Lộc, Hà Tĩnh |
| Mặt tiền: 8m | Kích thước xây dựng: 8 x 12,8m |
| Số tầng: 2 tầng | Loại hình: Nhà mái Nhật hiện đại |
| Tổng diện tích: 179m2 | |
Công năng:
| |
| Đơn vị thiết kế: CÔNG TY TNHH MAXHOME ARCHITECT & DESIGN | |
Ngoại thất nhà 2 tầng mái Nhật hiện đại
Nhà 2 tầng mái Nhật là một trong những mẫu nhà được nhiều gia đình ưa chuộng hiện nay nhờ thiết kế đẹp, công năng hợp lý và chi phí đầu tư ở mức vừa phải. Trong công trình này, gia chủ là chú Nuôi đã lựa chọn phong cách hiện đại, ưu tiên sự đơn giản trong hình khối, đường nét tinh gọn nhưng vẫn đảm bảo tính thẩm mỹ và tiện nghi. Sự kết hợp hài hòa giữa kiến trúc mái Nhật thanh thoát và bố cục không gian khoa học không chỉ mang lại diện mạo sang trọng cho ngôi nhà mà còn đáp ứng tốt nhu cầu sinh hoạt lâu dài của gia đình.

Màu sắc đóng vai trò quan trọng, có thể quyết định tới khoảng 70% ấn tượng ban đầu của một công trình kiến trúc, bởi đây là yếu tố đầu tiên thu hút ánh nhìn tổng thể. Đối với mẫu nhà 2 tầng mái Nhật, kiến trúc sư lựa chọn tông trắng làm màu sắc chủ đạo, giúp công trình toát lên vẻ hiện đại, tinh tế và luôn giữ được sự bền đẹp theo thời gian. Bên cạnh đó, màu xanh được sử dụng làm điểm nhấn tại các mảng tường, tạo chiều sâu cho mặt đứng, đồng thời mang lại cảm giác tươi mới, hài hòa với cảnh quan xung quanh, góp phần nâng cao giá trị thẩm mỹ cho toàn bộ ngôi nhà.

Bên cạnh màu sắc chủ đạo, công trình còn được hoàn thiện bằng các vật liệu trang trí hiện đại như gỗ nhựa và gạch thẻ, được ốp khéo léo xung quanh khu vực cửa sổ tầng 1, góp phần tạo điểm nhấn thẩm mỹ và tăng chiều sâu cho mặt đứng ngôi nhà. Phần chân tường được ốp đá chẻ tự nhiên, vừa giúp bảo vệ công trình trước tác động của thời tiết, vừa mang lại cảm giác chắc chắn, bền vững. Đồng thời, cao độ nền nhà được nâng cao hơn so với mặt đường, giúp hạn chế tình trạng ẩm thấp, thoát nước tốt hơn và đảm bảo sự khô ráo, an toàn trong quá trình sử dụng lâu dài.

Quan sát từ góc nhìn phía sau, có thể thấy nhà 2 tầng mái Nhật được bố trí nhiều ô cửa sổ nhằm tăng khả năng đón gió và ánh sáng tự nhiên cho các không gian bên trong. Toàn bộ hệ cửa đều sử dụng nhôm hệ Xingfa cao cấp kết hợp kính cường lực, không chỉ đảm bảo độ bền chắc, an toàn khi sử dụng mà còn giúp cách âm, cách nhiệt hiệu quả. Thiết kế cửa sổ phân bố hợp lý còn góp phần tạo sự thông thoáng, mang lại cảm giác thoải mái và nâng cao chất lượng sinh hoạt cho gia đình.

Quan sát nhà 2 tầng mái Nhật từ góc nhìn trên cao, có thể thấy rõ khoảng sân trước được bố trí gọn gàng, tạo không gian thông thoáng và thuận tiện cho việc di chuyển, đỗ xe cũng như tổ chức các hoạt động sinh hoạt ngoài trời. Bên cạnh đó, khu vực sảnh phụ được thiết kế ở bên hông ngôi nhà, dù diện tích không quá rộng nhưng vẫn đảm bảo công năng sử dụng, giúp tăng sự kết nối giữa các không gian bên trong và bên ngoài, đồng thời mang lại sự linh hoạt, thuận tiện trong sinh hoạt hằng ngày.

Khám phá công năng nhà 2 tầng mái Nhật 3 phòng ngủ
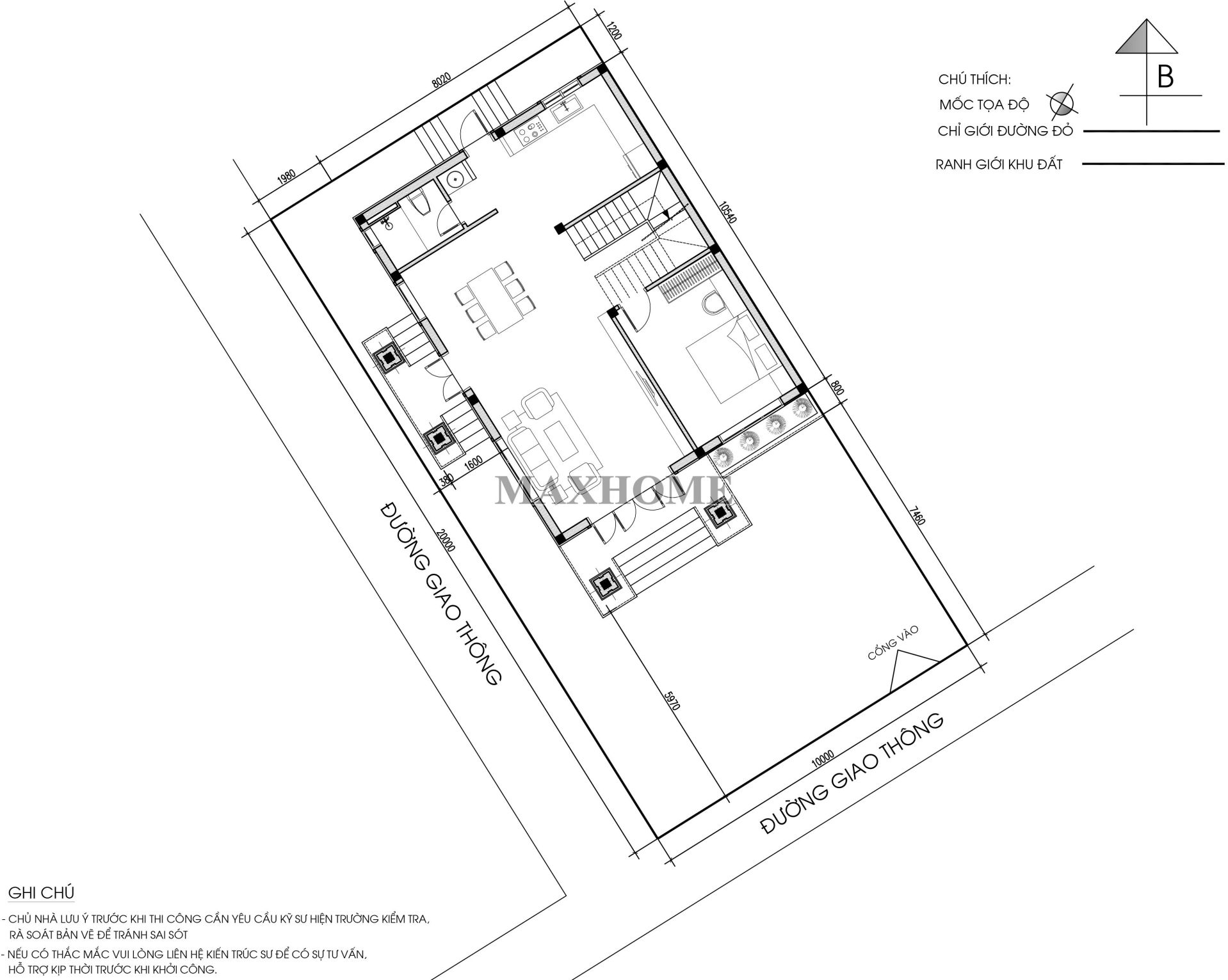
Mặt bằng định vị công trình thể hiện rõ khuôn viên đất của nhà 2 tầng mái Nhật được xây dựng trên lô đất tiếp giáp hai mặt đường giao thông, mang lại lợi thế lớn về tầm nhìn, khả năng tiếp cận và thông thoáng tự nhiên. Công trình có kích thước xây dựng 8 x 12,8m, được tính toán hợp lý để tối ưu không gian sử dụng. Với quy mô 2 tầng, tổng diện tích sử dụng của ngôi nhà vào khoảng 170m², đáp ứng đầy đủ nhu cầu sinh hoạt cho gia đình nhiều thế hệ, đồng thời đảm bảo sự tiện nghi, khoa học và thuận lợi trong quá trình sử dụng lâu dài.

Từ sảnh chính bước vào là không gian phòng khách được bố trí rộng rãi, thiết kế liên thông với khu vực phòng ăn nhằm tạo cảm giác thông thoáng và tăng sự kết nối trong sinh hoạt gia đình. Phòng bếp được sắp xếp gọn gàng tại góc bên trái của ngôi nhà, đảm bảo thuận tiện trong quá trình nấu nướng và lưu thông không khí. Phòng ngủ số 01 được đặt gần khu vực cầu thang, phù hợp cho người lớn tuổi hoặc khách đến chơi nhà. Toàn bộ các không gian tầng 1 sử dụng chung một nhà vệ sinh bố trí cuối nhà, vừa kín đáo vừa thuận tiện cho việc sử dụng hằng ngày.

Không gian tầng 2 được bố trí hợp lý, đáp ứng nhu cầu sinh hoạt và nghỉ ngơi của các thành viên trong gia đình. Tại đây, phòng thờ được thiết kế trang nghiêm, đặt ở vị trí yên tĩnh, đảm bảo yếu tố riêng tư và phong thủy. Bên cạnh đó là 02 phòng ngủ có diện tích vừa phải, bố trí thông thoáng và sử dụng chung một nhà vệ sinh, thuận tiện trong quá trình sinh hoạt hằng ngày. Khu vực cuối nhà được dành cho không gian giặt phơi, thiết kế gọn gàng, tách biệt với khu sinh hoạt chính, giúp đảm bảo sự ngăn nắp và tối ưu công năng sử dụng cho toàn bộ tầng.







