Ở vị trí giao nhau của hai con phố, căn nhà phố lô góc 2 mặt tiền của anh Hiệp hiện lên nổi bật giữa không gian đô thị hiện đại, xuất hiện tinh tế như một điểm nhấn giữa bản đồ thành phố Ninh Bình. Thiết kế của Maxhome không chỉ tận dụng ánh sáng và gió tự nhiên mà còn biến mọi đường cong, mọi góc cạnh thành điểm nhấn nghệ thuật khiến người xem mê mẩn.
Thông tin nhà phố lô góc 2 mặt tiền siêu đẹp
| Chủ đầu tư: Anh Vũ Quang Hiệp | Địa chỉ: Ninh Sơn, Hoa Lư, Ninh Bình |
| Mặt tiền: 7m | Kích thước xây dựng: 7 x 10m |
| Số tầng: 2 tầng 1 tum | Loại hình: Nhà mái Nhật hiện đại |
| Tổng diện tích: 190m2 | |
Công năng:
| |
| Đơn vị thiết kế: CÔNG TY TNHH MAXHOME ARCHITECT & DESIGN | |
Không gian ngoại thất của mẫu nhà phố 2 mặt tiền độc đáo
Ngôi nhà phố lô góc 2 mặt tiền này được thiết kế trên kích thước 7x10m với tổng diện tích sử dụng khoảng 190m2 chia đều cho 2 tầng 1 tum. Dù nằm ở vị trí giao nhau của hai tuyến phố, căn nhà vẫn giữ được vẻ tinh gọn, mềm mại và cân đối nhờ các đường nét bo tròn tinh tế ở phần góc. Đây là điểm nhấn khiến công trình trở nên khác biệt nhờ sự phá cách trong thiết kế mà vẫn đảm bảo tính an toàn và thẩm mỹ cao.

Tông màu trắng sơn chủ đạo được kết hợp khéo léo với phần mặt tiền tầng 1 ốp gạch giả đá xám trắng tạo nên hiệu ứng thị giác sang trọng mà vẫn gần gũi. Những viên gạch hình chữ nhật được xếp xen kẽ tạo chiều sâu giúp phần đế công trình trở nên chắc chắn và nổi bật hơn. Thiết kế nhà phố lô góc 2 mặt tiền này không chỉ ghi điểm về vẻ ngoài tinh tế mà còn thể hiện sự tỉ mỉ trong từng chi tiết thi công.
Ngôi nhà phố 2 tầng 1 tum không có bậc thềm cao như những mẫu truyền thống mà thay vào đó nền được nâng nhẹ 150mm so với mặt đường. Chi tiết này tuy nhỏ nhưng giúp tách biệt rõ ràng không gian sống với đường phố đồng thời tạo cảm giác tinh tế, gọn gàng và hiện đại.

Một chi tiết đáng chú ý là hệ tường được soi chỉ đều đặn ở tầng 2 và tầng tum với kích thước 30x15mm cùng khoảng cách 600mm giữa các đường soi tạo nên nhịp điệu nhẹ nhàng cho mặt đứng. Dưới ánh sáng tự nhiên, những đường chỉ này phản chiếu tinh tế giúp căn nhà phố lô góc 2 mặt tiền không bị phẳng mà có chiều sâu và độ nổi khối vừa phải.

Điểm cộng lớn của mẫu nhà phố lô góc của anh Hiệp còn nằm ở cách bố trí mảng miếng hài hòa giữa các tầng. Tầng 2 và tầng tum được ốp nhựa giả gỗ ở tường và trần tạo nên cảm giác ấm áp, sang trọng và cân bằng sắc độ với tổng thể trắng sáng. Đây là chi tiết thiết kế đặc trưng của Maxhome giúp mẫu nhà đẹp vừa mang nét hiện đại vừa giữ được sự thân thiện và gần gũi.

Với lợi thế hai mặt tiền, đội ngũ thiết kế Maxhome đã khai thác triệt để khả năng đón sáng tự nhiên cho căn nhà. Toàn bộ hệ cửa được sử dụng khung nhôm kết hợp kính cường lực để giúp không gian bên trong luôn thông thoáng và tăng độ sang trọng cho ngoại thất. Đặc biệt, ngoài cửa chính mang dáng hình chữ nhật mạnh mẽ thì các khung cửa còn lại đều được bo vòm nhẹ giúp tạo cảm giác mềm mại, góp phần tôn lên nét đặc trưng của kiểu nhà phố lô góc 2 mặt tiền vuông vức nhưng không hề khô cứng.

Khi nhìn từ trên cao, khu vực tầng tum là điểm nổi bật nhất của ngôi nhà phố lô góc 2 mặt tiền này. Phần sân thượng được thiết kế có mái lam sắt uốn cong nhẹ đồng điệu với các chi tiết bo tròn ở thân nhà. Sự nhất quán này mang lại tổng thể mềm mại, thanh thoát và cực kỳ tinh tế. Phía dưới lam sắt là khoảng không gian mở lý tưởng vừa có thể làm nơi thư giãn vừa tăng tính thẩm mỹ cho mặt tiền. Ngoài ra, phần mái còn được lợp tôn sóng vuông kết hợp hệ thống thoát nước và bồn inox gọn gàng đảm bảo tính kỹ thuật và độ bền cao.
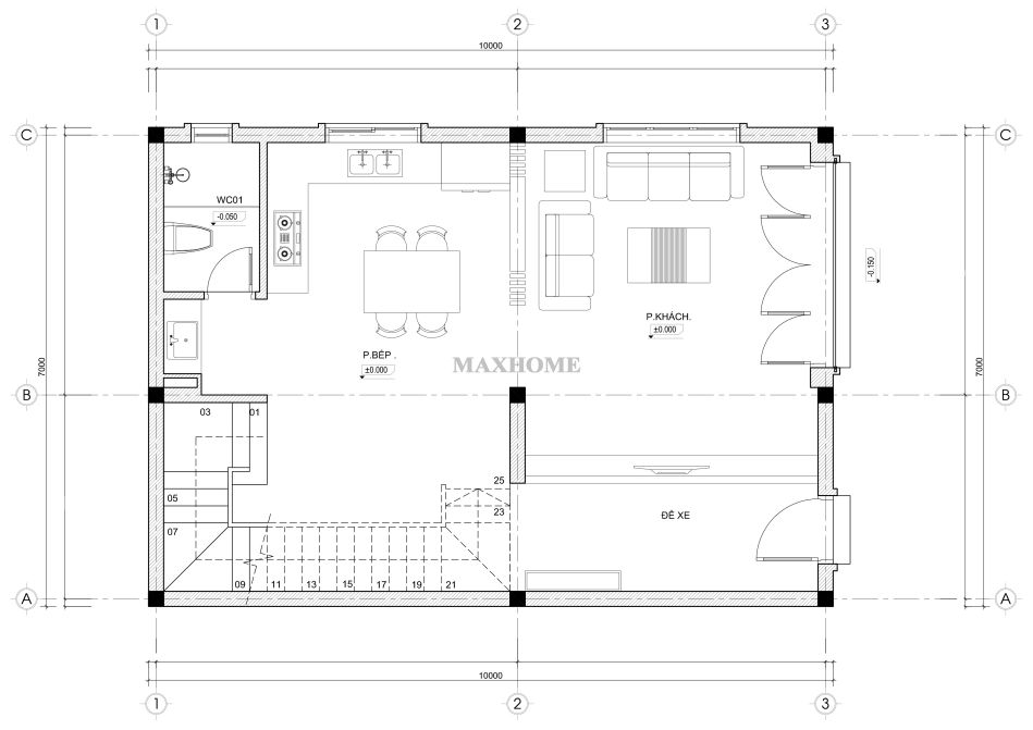
Hình ảnh công năng chi tiết qua góc nhìn 3D


Tầng 1 của ngôi nhà phố lô góc 2 mặt tiền được Maxhome bố trí khoa học, tận dụng tối đa kích thước xây dựng 7x10m để đảm bảo sự thuận tiện trong sinh hoạt. Khu vực để xe được thiết kế gọn gàng ngay phía trước và kết nối liền mạch với cửa chính giúp việc di chuyển dễ dàng và giữ cho không gian luôn sạch sẽ. Phòng khách nằm ngay trung tâm được mở rộng bằng hệ cửa kính lớn và đón trọn ánh sáng tự nhiên từ hai mặt tiền. Bên trong, khu bếp và bàn ăn được đặt khéo léo phía sau rất ấm cúng và riêng tư. Một nhà vệ sinh chung nhỏ được bố trí cuối nhà giúp thuận tiện cho cả gia đình và khách ghé thăm.


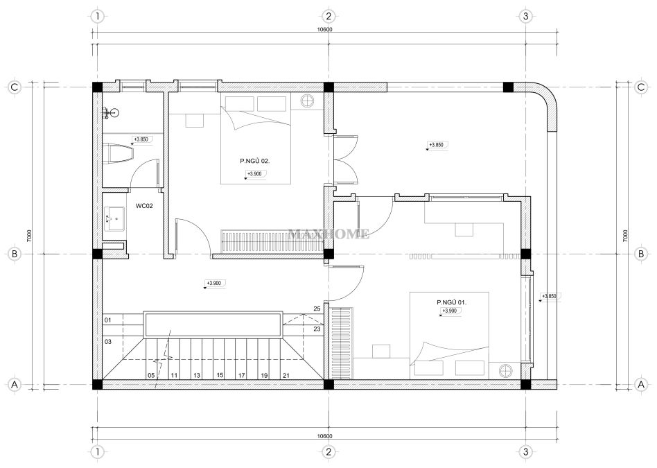
Lên đến tầng 2, Maxhome dành trọn không gian cho sự nghỉ ngơi và thư giãn. Hai phòng ngủ được bố trí hai phía, mỗi phòng đều có cửa sổ lớn hướng ra mặt tiền và ban công giúp đón gió cũng như ánh sáng tự nhiên suốt cả ngày. Một nhà vệ sinh chung cũng được đặt đồng trục với tầng 1 để thuận tiện cho việc đi đường điện, nước mà vẫn rất riêng tư và kín đáo.


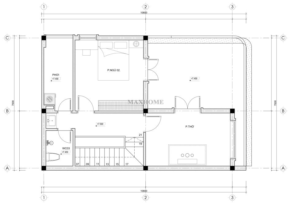
Tầng tum của căn nhà phố lô góc 2 mặt tiền là sự kết hợp tinh tế giữa truyền thống và hiện đại. Phòng thờ được đặt ở vị trí trang trọng, hướng ra khoảng sân thượng thoáng đãng phía trước, thể hiện sự tôn nghiêm mà vẫn đón được ánh sáng tự nhiên. Bên cạnh đó là 1 phòng ngủ nhỏ được bày trí nội thất cơ bản đầy đủ như giường nằm, tủ quần áo và bàn làm việc. Nhà vệ sinh riêng được bố trí hợp lý cạnh cầu thang và sân phơi, đảm bảo tiện nghi mà không phá vỡ tổng thể kiến trúc.

Từ mọi góc nhìn, căn nhà phố của anh Hiệp toát lên vẻ thanh lịch, tinh tế và hiện đại. Từng chi tiết từ đường bo mềm mại đến màu sắc vật liệu đều được tính toán kỹ lưỡng để mang lại vẻ đẹp bền vững theo thời gian. Nếu bạn cũng đang tìm kiếm một mẫu nhà phố lô góc 2 mặt tiền vừa hiện đại vừa khác biệt, hãy liên hệ ngay với Maxhome để được tư vấn và hiện thực hóa ngôi nhà trong mơ của mình nhé!









