Trong bối cảnh quỹ đất đô thị ngày càng thu hẹp, nhà phố 3 tầng mặt tiền 4,6m đang trở thành lựa chọn phổ biến nhờ khả năng tối ưu không gian trên diện tích hạn chế mà vẫn đảm bảo đầy đủ công năng sử dụng. Với thiết kế hiện đại, bố cục mặt bằng khoa học và cách xử lý kiến trúc tinh tế, mẫu nhà này không chỉ đáp ứng nhu cầu sinh hoạt của gia đình mà còn mang đến vẻ đẹp thẩm mỹ hài hòa, thông thoáng và tiện nghi, phù hợp với nhịp sống năng động nơi đô thị.
Thông tin nhà lô phố hiện đại mặt tiền 4,6m
| Chủ đầu tư: Chị Phạm Thị Thương | Địa chỉ: Nghĩa Lộ, Lào Cai |
| Mặt tiền: 4,6m | Kích thước xây dựng: 4,6 x 23m |
| Số tầng: 3 | Loại hình: Nhà lô phố hiện đại |
| Tổng diện tích: 262m2 | |
Công năng:
|
|
| Đơn vị thiết kế: CÔNG TY TNHH MAXHOME ARCHITECT & DESIGN | |
Ngắm nhìn nhà phố 3 tầng hiện đại
Đối với những gia chủ sở hữu khuôn viên đất có mặt tiền hạn chế nhưng vẫn mong muốn xây dựng một không gian sống hiện đại, tiện nghi, nhà phố chính là giải pháp tối ưu. Các mẫu nhà phố mái bằng được nhiều người ưa chuộng nhờ thiết kế gọn gàng, không đua mái, hạn chế tối đa việc ảnh hưởng đến các công trình liền kề, đặc biệt phù hợp với đặc thù nhà xây sát nhau. Nhờ đó, kiểu nhà này có thể linh hoạt áp dụng cho cả khu vực đô thị lẫn nông thôn, nhất là những lô đất phố, vừa đảm bảo tính thẩm mỹ, vừa thuận tiện trong thi công và sử dụng lâu dài.

Không chỉ gây ấn tượng bởi những đường nét vuông vức, khỏe khoắn đặc trưng của kiến trúc hiện đại, công trình còn được điểm xuyết những đường cong mềm mại ở khu vực mặt tiền, tạo nên sự cân bằng hài hòa và cảm giác thanh thoát cho tổng thể. Gam màu trắng được sử dụng làm chủ đạo, kết hợp tinh tế với màu xanh ở các đường viền, mang đến vẻ đẹp trẻ trung, tươi mới. Bên cạnh đó, gỗ nhựa trang trí tại khu vực ban công giúp tăng thêm sự ấm áp, gần gũi, trong khi mặt tiền tầng 1 được ốp đá Granite cao cấp không chỉ tạo điểm nhấn sang trọng mà còn nâng cao độ bền, khả năng chống bám bẩn và bảo vệ công trình theo thời gian.

Với diện tích mặt tiền hạn chế chỉ 4,3m, việc tính toán phương án thiết kế lấy sáng và thông gió tự nhiên đóng vai trò vô cùng quan trọng, ảnh hưởng trực tiếp đến chất lượng không gian sống. Do đó, các mẫu nhà phố hiện đại thường ưu tiên sử dụng vật liệu kính cường lực cho hệ cửa và ô thoáng, giúp tận dụng tối đa ánh sáng tự nhiên, giảm cảm giác chật hẹp và tiết kiệm năng lượng chiếu sáng ban ngày. Bên cạnh đó, việc kết hợp bố trí ban công, cửa sổ và giếng trời hợp lý còn giúp luồng gió lưu thông hiệu quả, mang lại không gian sống thoáng đãng, dễ chịu và tiện nghi cho gia đình.

Từ góc nhìn này, có thể thấy nhà phố 3 tầng được thiết kế lan can bằng kính cường lực, mang lại cảm giác thông thoáng và hiện đại cho tổng thể công trình. Vật liệu kính không chỉ giúp mở rộng tầm nhìn, tăng khả năng đón sáng tự nhiên mà còn tạo hiệu ứng không gian rộng rãi hơn cho mặt tiền nhà phố. Bên cạnh đó, lan can kính cường lực đảm bảo độ an toàn, bền chắc và góp phần tôn lên vẻ đẹp tinh tế, phù hợp với xu hướng kiến trúc nhà phố hiện đại ngày nay.

Hệ mái bằng của ngôi nhà được thiết kế với độ dốc thoát nước nhẹ, đảm bảo khả năng thoát nước hiệu quả và hạn chế tình trạng đọng nước khi mưa lớn. Trên mái còn được bố trí téc nước và hệ thống năng lượng mặt trời, góp phần tối ưu công năng sử dụng và hướng đến giải pháp tiết kiệm năng lượng bền vững. Bên cạnh đó, hệ mái kính tại khu vực tầng 3 được thiết kế hợp lý, giúp tăng cường ánh sáng tự nhiên cho không gian bên dưới, tạo cảm giác thông thoáng và nâng cao chất lượng sinh hoạt cho toàn bộ ngôi nhà.

Khám phá công năng của mẫu nhà phố 3 tầng hiện đại
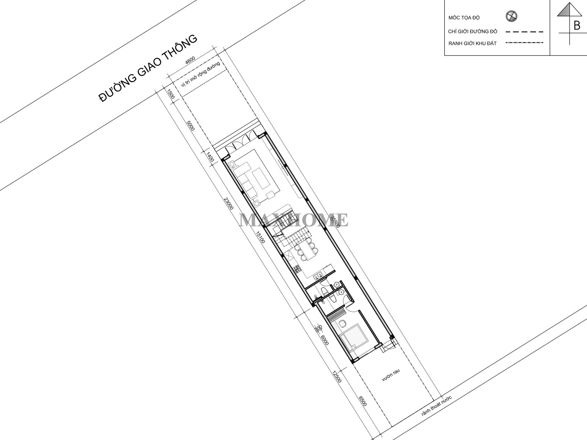
Dựa trên mặt bằng định vị, có thể dễ dàng nhận thấy khuôn viên đất xây dựng nhà phố 3 tầng nằm tiếp giáp trực tiếp với trục đường giao thông chính, thuận tiện cho việc di chuyển và sinh hoạt hằng ngày. Lô đất sở hữu mặt tiền rộng 4,6m, chiều sâu 23m, phù hợp với đặc trưng nhà ống đô thị. Với quy mô xây dựng 3 tầng, tổng diện tích sử dụng của công trình ước đạt khoảng 262m², đáp ứng đầy đủ nhu cầu không gian sinh hoạt, nghỉ ngơi và các công năng tiện ích cho gia đình hiện đại.

Từ cửa chính bước vào là không gian phòng khách được bố trí gọn gàng, tạo cảm giác thông thoáng và thuận tiện cho việc tiếp đón khách. Di chuyển qua khu vực cầu thang là phòng bếp kết hợp phòng ăn, được sắp xếp khoa học nhằm tối ưu diện tích sử dụng. Ngay cạnh khu vực bếp là nhà vệ sinh chung, đảm bảo sự tiện lợi trong sinh hoạt hằng ngày. Về cuối nhà bố trí một phòng ngủ yên tĩnh, bên trong được tích hợp nhà vệ sinh riêng, mang đến sự riêng tư và thoải mái cho người sử dụng.

Tầng 2 được bố trí khoa học với không gian sinh hoạt chung ấm cúng, là nơi các thành viên trong gia đình quây quần và thư giãn. Khu vực này kết nối thuận tiện với 3 phòng ngủ, mỗi phòng đều được thiết kế thông thoáng. Các phòng ngủ sử dụng chung một nhà vệ sinh được đặt ở vị trí trung tâm, giúp việc di chuyển trở nên dễ dàng. Về cuối nhà còn bố trí thêm một sân phơi nhỏ, tận dụng tối đa ánh sáng và gió tự nhiên, đáp ứng nhu cầu sinh hoạt hằng ngày.

Tầng 3 được thiết kế với phòng thờ trang nghiêm, bố trí ở vị trí yên tĩnh và hướng ra khu vực sân chơi, vừa đảm bảo yếu tố phong thủy vừa tạo sự thông thoáng, thanh tịnh. Phía cuối nhà là một phòng ngủ riêng tư, phù hợp cho khách hoặc các thành viên lớn tuổi. Bên cạnh đó, không gian sân chơi được bố trí hợp lý, tận dụng ánh sáng và gió tự nhiên, mang đến nơi thư giãn, sinh hoạt ngoài trời thoải mái cho cả gia đình.


