Có bao giờ bạn tự hỏi tại sao giữa muôn vàn phong cách kiến trúc hiện đại, mẫu nhà 2 tầng mái Nhật vẫn luôn chiếm trọn trái tim của các chủ đầu tư từ Bắc chí Nam? Trong bài viết này, mời bạn cùng Maxhome ghé thăm mảnh đất Quảng Ngãi đầy nắng và gió để chiêm ngưỡng siêu phẩm của gia đình chú Thức. Đây không chỉ đơn thuần là một công trình nhà ở mà còn là một tác phẩm nghệ thuật đại diện cho sự giao thoa hoàn hảo giữa nét tĩnh tại của kiến trúc Á Đông và sự phóng khoáng, tiện nghi của lối sống thời đại mới.
Thông tin nhà 2 tầng mái Nhật đẹp ở Quảng Ngãi
| Chủ đầu tư: Chú Đoàn Mậu Thức | Địa chỉ: Nghĩa Thương, Tư Nghĩa, Quảng Ngãi |
| Mặt tiền: 13,8m | Kích thước xây dựng: 13,8 x 11,7m |
| Số tầng: 2 tầng | Loại hình: Nhà mái Nhật hiện đại |
| Tổng diện tích: 210m2 | |
Công năng:
| |
| Đơn vị thiết kế: CÔNG TY TNHH MAXHOME ARCHITECT & DESIGN | |
Khám phá cảnh quan công trình 2 tầng
Ngay từ cái nhìn đầu tiên, ngôi nhà 2 tầng mái Nhật đã toát lên một vẻ đẹp vững chãi, bình yên, hứa hẹn sẽ là tổ ấm lý tưởng trường tồn với thời gian mà bất cứ ai cũng khao khát sở hữu. Về mặt hình khối, ngôi nhà được kiến trúc sư Maxhome tính toán tỉ mỉ với những mảng miếng vuông vức, khỏe khoắn. Toàn bộ tầng 1 và tầng 2 được liên kết bởi hệ thống cột trụ uy nghi, bề thế và an tâm cho gia chủ.

Đặc biệt, sự phối hợp màu sắc ở ngoại thất cực kỳ thông minh khi sử dụng các mảng tường ốp đá trang trí màu xám ghi nhấn nhá tại chân cột và các đường kẻ chỉ âm tường chạy dọc quanh nhà. Những chi tiết này không hề rườm rà mà lại cực kỳ hiệu quả trong việc tạo chiều sâu giúp bức tường trắng không còn đơn điệu. Tiếp đó, mẫu nhà 2 tầng mái Nhật này còn ghi điểm bởi thiết kế ban công rộng thoáng với hệ lan can sắt hiện đại màu đen huyền bí, vừa đảm bảo an toàn vừa tạo không gian thư giãn lý tưởng để gia chủ có thể nhâm nhi tách trà và ngắm nhìn cảnh vật xung quanh vào mỗi buổi sớm mai.

Không gian mở là một yếu tố không thể thiếu trong các thiết kế của Maxhome và căn nhà của chú Thức cũng không ngoại lệ. Chúng tôi đã sử dụng hệ thống cửa kính khung nhôm xingfa cao cấp cho toàn bộ hệ cửa sổ và cửa ra vào. Việc thay thế các mảng tường đặc bằng kính cường lực không chỉ giúp ngôi nhà đón trọn ánh sáng tự nhiên và gió trời mà còn tạo ra sự kết nối không giới hạn giữa con người và thiên nhiên.
Buổi tối, khi ánh đèn led âm trần và đèn trang trí ngoại thất được thắp lên, ngôi nhà 2 tầng mái Nhật sẽ hiện lên lung linh, huyền ảo như một căn biệt thự nghỉ dưỡng sang trọng. Ánh sáng vàng dịu nhẹ hắt lên các mảng tường đá và kính tạo nên một không gian ấm cúng, mời gọi bất cứ ai đi ngang qua cũng phải dừng chân chiêm ngưỡng vẻ đẹp tinh tế này.


Điểm nhấn đắt giá nhất làm nên linh hồn của công trình chính là hệ mái Nhật màu xanh than thanh lịch. Màu xanh của ngói Fuji cao cấp nổi bật trên nền trời mang lại cảm giác mát mẻ, dễ chịu và có khả năng thoát nước cực tốt, bảo vệ ngôi nhà khỏi những cơn mưa miền Trung khắc nghiệt. Sự kết hợp giữa tông màu trầm ấm của mái và sắc trắng tinh khôi của sơn tường đã tạo nên một hiệu ứng thị giác cực kỳ thu hút, khiến ngôi nhà trở nên nổi bật nhất khu phố nhưng vẫn giữ được sự khiêm nhường, nhã nhặn vốn có của phong cách kiến trúc Nhật Bản.

Cuối cùng, không thể không nhắc đến sự hài hòa giữa công trình và cảnh quan xung quanh. Phần sân vườn được lát gạch sạch sẽ kết hợp cùng các bồn hoa nhỏ xinh xắn chạy dọc chân tường giúp điều hòa không khí và mang lại sức sống xanh mát cho ngôi nhà. Từ cổng tường rào cho đến những chi tiết nhỏ nhất như đèn trụ cổng, tất cả đều được thiết kế đồng bộ theo phong cách hiện đại, tối giản nhưng vô cùng đẳng cấp.
Bố trí công năng tiện ích cho căn nhà 2 tầng

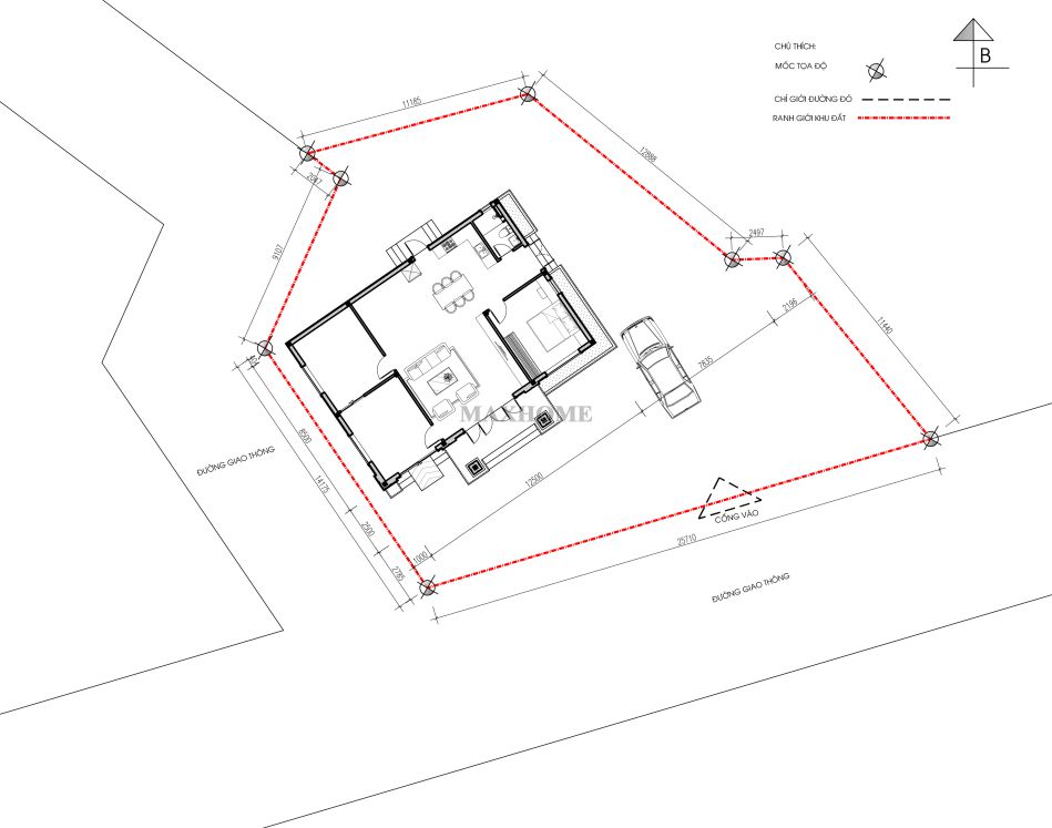
Phối cảnh 3D khớp với mặt bằng định vị và hình ảnh hiện trạng công trình, nhờ đội ngũ kỹ thuật Maxhome đã trực tiếp tới tận nhà chú Thức đo đạc nên công trình 3D sẽ chuẩn xác với thực tế nhất. Nhìn vào hình ảnh có thể thấy được căn nhà 2 tầng mái Nhật được xây dựng trên mảnh đất rất rộng lớn và còn khoảng trống làm sân vườn cực kỳ rộng rãi, thoải mái.

Bước qua cánh cửa chính bề thế, không gian tầng 1 của ngôi nhà mở ra một sự sắp xếp cực kỳ khoa học và đa năng, đáp ứng trọn vẹn nhu cầu sinh hoạt lẫn công việc hiện đại của gia đình chú Thức. Ngay vị trí trung tâm là phòng khách rộng rãi và sang trọng. Tiếp nối với phòng khách là không gian bếp ấm cúng để cả nhà quây quần cùng nhau ăn uống. Điểm đặc biệt nhất trong thiết kế tầng 1 chính là sự xuất hiện của một phòng làm việc chuyên dụng để livestream và một phòng kho tiện lợi. Bên cạnh đó, tầng 1 còn khéo léo bố trí 1 phòng ngủ yên tĩnh và 1 nhà vệ sinh chung được thiết kế tinh tế gọn gàng ở góc nhà để đảm bảo sự tiện nghi tối đa trong sinh hoạt hàng ngày.

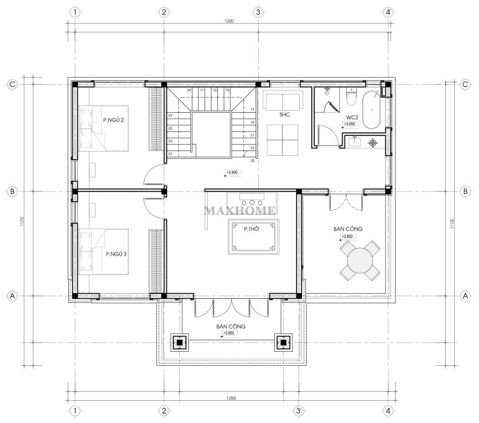
Di chuyển lên tầng 2, không gian được dành riêng cho việc nghỉ ngơi và duy trì những giá trị truyền thống với một nhịp sống thư thái hơn. Vị trí trang trọng nhất được dành cho phòng thờ, nơi có hướng nhìn thoáng đãng và trang nghiêm để thể hiện lòng thành kính của con cháu đối với tổ tiên. Phía sau có thêm phòng sinh hoạt chung tạo ra một khoảng không gian mở nơi cả gia đình có thể quây quần xem phim và trò chuyện vui vẻ. Hai phòng ngủ còn lại được bố trí cạnh nhau, mỗi phòng đều sở hữu cửa sổ lớn giúp không gian riêng tư luôn tràn ngập sức sống và không khí trong lành.






