Mẫu biệt thự mái Thái tân cổ điển thanh lịch đang được nhiều gia chủ đánh giá là lựa chọn đáng thiết kế nhất hiện nay nhờ sự kết hợp hài hòa giữa thẩm mỹ sang trọng và công năng sử dụng khoa học. Không chạy theo xu hướng ngắn hạn, thiết kế hướng đến vẻ đẹp bền vững với thời gian, dễ thích nghi với nhiều quy mô đất và nhu cầu sinh hoạt khác nhau. Biệt thự đẹp dưới đây được nghiên cứu kỹ lưỡng từ tỷ lệ kiến trúc, hình khối mái Thái đến cách bố trí không gian bên trong, mang lại trải nghiệm sống tiện nghi, thoáng đãng và giá trị sử dụng lâu dài cho gia đình Việt.
Thông tin biệt thự mái Thái tân cổ điển
| Chủ đầu tư: Anh Trần Văn Mười | Địa chỉ: Vĩnh Thanh, Cà Mau |
| Mặt tiền: 8,3m | Kích thước xây dựng: 8,3 × 14,8m |
| Số tầng: 2 tầng | Loại hình: Nhà mái bằng hiện đại |
| Tổng diện tích: 228m2 | |
Công năng:
| |
| Đơn vị thiết kế: CÔNG TY TNHH MAXHOME ARCHITECT & DESIGN | |
Ngoại thất biệt thự mái Thái tân cổ điển
Tại khu vực miền Tây sông nước, đặc biệt là tỉnh Cà Mau, lợi thế quỹ đất rộng rãi tạo điều kiện thuận lợi cho việc thiết kế và xây dựng các công trình biệt thự quy mô, thông thoáng. Với mong muốn sở hữu một không gian sống tiện nghi, bền vững và mang dấu ấn thẩm mỹ riêng, gia chủ là anh Mười đã lựa chọn mẫu biệt thự mái Thái tân cổ điển sang trọng làm tổ ấm cho gia đình. Thiết kế không chỉ khai thác tối đa lợi thế khu đất rộng mà còn hài hòa giữa kiến trúc tinh tế, công năng khoa học và cảnh quan xung quanh, mang đến một không gian sống đẳng cấp, phù hợp với điều kiện khí hậu và lối sống đặc trưng của miền Tây.

Mẫu biệt thự mái Thái mang phong cách tân cổ điển được thể hiện rõ nét thông qua ngôn ngữ kiến trúc tinh tế và cân đối. Các hình khối vòm cong mềm mại được sử dụng khéo léo, kết hợp cùng hệ phào chỉ trang trí nhẹ nhàng tại thân cột vuông và cột tròn, tạo nên vẻ đẹp sang trọng nhưng không rườm rà. Điểm nhấn kiến trúc còn nằm ở hệ ban công phụ thiết kế dạng vòm, vừa tăng tính thẩm mỹ vừa giúp mặt tiền trở nên thanh thoát, hài hòa. Tất cả các chi tiết được tiết chế hợp lý, góp phần tôn lên phong cách tân cổ điển đặc trưng và giá trị bền vững theo thời gian cho công trình.

Công trình sử dụng gam màu trắng làm màu sắc chủ đạo, phù hợp với tinh thần thanh lịch và sang trọng của phong cách tân cổ điển. Trên nền trắng trang nhã, các mảng sơn giả đá tông vàng được khéo léo nhấn nhá tại hệ vòm, tạo chiều sâu và tăng giá trị thẩm mỹ cho mặt tiền. Bên cạnh đó, chi tiết lan can ban công được chế tác từ sắt mỹ thuật, sơn tĩnh điện màu vàng đồng, vừa đảm bảo độ bền theo thời gian vừa góp phần tôn lên vẻ đẹp nổi bật, đẳng cấp cho tổng thể biệt thự mái Thái. Sự phối hợp hài hòa giữa màu sắc và vật liệu giúp công trình trở nên cuốn hút, sang trọng nhưng vẫn giữ được nét tinh tế, không phô trương.

Khu vực sảnh phụ của biệt thự mái Thái tân cổ điển được đầu tư thiết kế chỉn chu, sang trọng và tinh tế, không hề kém cạnh so với sảnh chính. Từ hình khối kiến trúc, vật liệu hoàn thiện đến các chi tiết trang trí đều được đồng bộ theo phong cách chung của công trình, vừa đảm bảo tính thẩm mỹ vừa nâng cao sự tiện nghi trong quá trình sử dụng. Sảnh phụ không chỉ đóng vai trò là lối tiếp cận thuận tiện cho sinh hoạt hằng ngày mà còn góp phần hoàn thiện vẻ đẹp tổng thể, tạo cảm giác bề thế và đẳng cấp cho ngôi biệt thự.

Từ góc nhìn trên cao, toàn bộ khuôn viên biệt thự mái Thái hiện lên với khoảng sân rộng rãi, được quy hoạch gọn gàng và khoa học. Không gian sân cho phép bố trí nhiều mảng xanh, trồng cây cảnh, thảm cỏ, góp phần mang lại bầu không khí trong lành và cảm giác gần gũi với thiên nhiên. Khu vực gara ô tô được sắp xếp hợp lý, thuận tiện cho việc di chuyển nhưng vẫn đảm bảo tính thẩm mỹ chung. Tổng thể các khu vực chức năng trong biệt thự được kết nối hài hòa, tạo nên một không gian sống đồng bộ, cân đối và dễ chịu.

Hệ thống mái Thái được thiết kế cao ráo, cân đối, đặc biệt phù hợp với phong cách tân cổ điển sang trọng và tinh tế. Kiểu mái này không chỉ giúp tôn lên dáng vẻ bề thế, thanh thoát cho công trình mà còn phát huy hiệu quả trong việc thoát nước mưa, chống nóng và thích ứng tốt với điều kiện khí hậu nhiệt đới. Nhờ đó, biệt thự vừa đảm bảo giá trị thẩm mỹ lâu dài, vừa mang lại không gian sống mát mẻ và bền vững theo thời gian.

Khám phá công năng biệt thự mái Thái tân cổ điển siêu đẹp
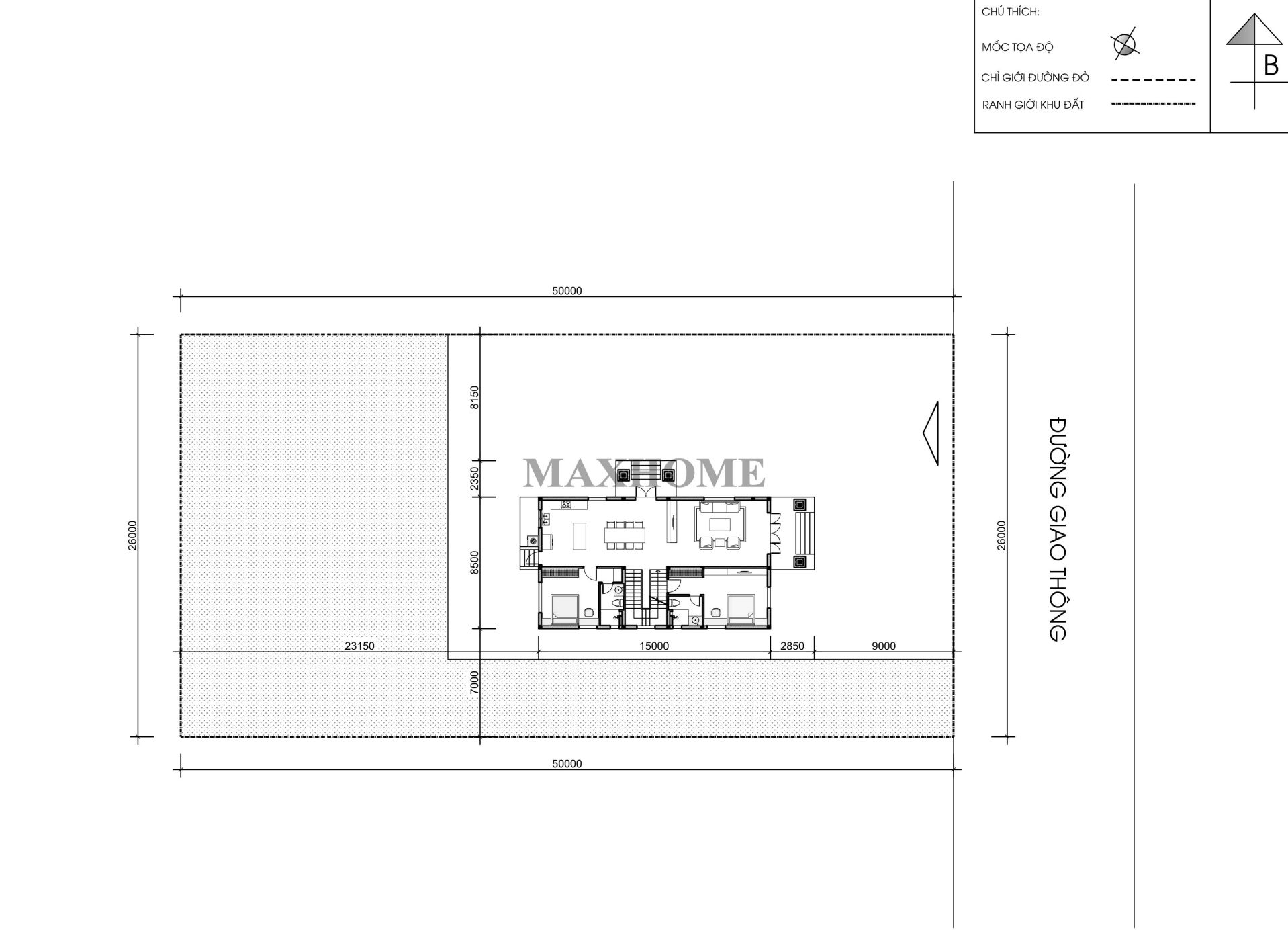
Mặt bằng định vị cho thấy mẫu biệt thự mái Thái tân cổ điển được xây dựng trên khuôn viên đất rộng rãi, thuận lợi cho việc bố trí công trình và cảnh quan xung quanh. Ngôi nhà có kích thước xây dựng khoảng 8,3 × 14,8m, hình khối cân đối, dễ tổ chức mặt bằng công năng khoa học. Với cách bố trí hợp lý và khai thác tối đa diện tích sử dụng, tổng diện tích sàn của công trình ước tính vào khoảng 228m², đáp ứng đầy đủ nhu cầu sinh hoạt tiện nghi, thoải mái cho gia đình nhiều thế hệ.

Từ cửa chính bước vào là không gian phòng khách rộng rãi, thoáng mát, được bố trí hợp lý để đón gió và ánh sáng tự nhiên. Liền kề với phòng khách là khu vực bếp kết hợp phòng ăn, thiết kế mở giúp không gian sinh hoạt chung trở nên thông suốt và tiện nghi hơn, đồng thời có lối đi ra sảnh phụ bên hông, thuận tiện cho việc di chuyển và thông gió. Tầng 1 được bố trí 2 phòng ngủ riêng tư, cả hai đều có nhà vệ sinh khép kín bên trong, mang lại sự tiện lợi và thoải mái trong quá trình sử dụng.

Tầng 2 được bố trí với không gian phòng thờ trang nghiêm, đặt ở vị trí yên tĩnh và hướng thẳng ra ban công, vừa đảm bảo yếu tố phong thủy vừa tạo sự thông thoáng, thanh tịnh. Phía sau là khu vực phòng sinh hoạt chung, cũng được thiết kế mở ra ban công bên hông, mang lại không gian thoải mái để các thành viên quây quần, thư giãn. Bên cạnh đó, tầng 2 còn có 2 phòng ngủ được bố trí hợp lý, mỗi phòng đều tích hợp nhà vệ sinh khép kín bên trong, đáp ứng nhu cầu sinh hoạt riêng tư và nâng cao tiện nghi cho gia đình.








