Giữa nhịp sống hiện đại, mẫu nhà 2 tầng 1 tum mái Nhật phong cách Địa Trung Hải của gia đình anh Tuấn tại Thanh Hóa gây ấn tượng mạnh bởi vẻ đẹp phóng khoáng, tinh tế và đầy cảm xúc. Công trình là sự giao thoa hài hòa giữa kiến trúc Á Đông gọn gàng và tinh thần Địa Trung Hải nhẹ nhàng, gần gũi với thiên nhiên, mang đến không gian sống thư thái, đúng chất nghỉ dưỡng. Phương án thiết kế được kiến trúc sư Maxhome nghiên cứu kỹ lưỡng, đảm bảo cả thẩm mỹ, công năng và dấu ấn cá nhân riêng biệt của gia chủ.
Thông tin công trình nhà 2 tầng 1 tum mái Nhật
| Chủ đầu tư: Anh Phạm Thanh Tuấn | Địa chỉ: Nông Cống, Thanh Hoá |
| Mặt tiền: 9,8m | Kích thước xây dựng: 9,8 x 8,6m |
| Số tầng: 2 tầng 1 tum | Loại hình: Nhà mái Nhật phong cách Địa Trung Hải |
| Tổng diện tích: 220m² | |
Công năng:
|
|
| Đơn vị thiết kế: CÔNG TY CỔ PHẦN KIẾN TRÚC VÀ XÂY DỰNG MAXHOME VIỆT NAM | |
Mẫu nhà 2 tầng 1 tum mái Nhật phong cách Địa Trung Hải đẹp cuốn hút
Mẫu nhà 2 tầng 1 tum mái Nhật phong cách Địa Trung Hải này là lựa chọn lý tưởng cho những gia chủ yêu thích vẻ đẹp tinh tế, sang trọng nhưng vẫn gần gũi thiên nhiên. Công trình không phô trương bằng chi tiết cầu kỳ mà chinh phục người nhìn bằng sự hài hòa trong tỷ lệ kiến trúc, hình khối và màu sắc, đúng tinh thần sống chậm, an yên của phong cách Địa Trung Hải kết hợp nét hiện đại của mái Nhật.

Tổng thể ngôi nhà được tổ chức theo hình khối vuông vức, gọn gàng và mạch lạc. Các khối kiến trúc được xếp lớp có tính toán, tạo nên cảm giác vững chãi, ổn định nhưng vẫn giữ được sự thanh thoát, không hề nặng nề hay thô cứng. Mặt tiền được phân chia rõ ràng theo từng tầng, mỗi tầng đều có điểm nhấn riêng, giúp công trình nổi bật khi nhìn từ xa và càng trở nên cuốn hút khi quan sát ở khoảng cách gần.
Hệ trụ cột lớn tại sảnh chính được thiết kế bề thế với tỷ lệ hài hòa, vừa đóng vai trò nâng đỡ kết cấu, vừa tôn lên vẻ sang trọng cho toàn bộ công trình. Những đường nét dứt khoát của trụ cột không chỉ tạo cảm giác chắc chắn, an toàn mà còn như một lời khẳng định tinh tế về sự vững vàng, gu thẩm mỹ và đẳng cấp sống của gia chủ.

Công trình sử dụng gam trắng kem chủ đạo, đây là màu sắc kinh điển của kiến trúc Địa Trung Hải, vừa thanh lịch vừa giúp ngôi nhà nổi bật giữa không gian xanh xung quanh.
Màu trắng còn có tác dụng phản xạ ánh sáng tốt, giúp công trình luôn sáng sủa, thoáng đãng, đặc biệt phù hợp với khí hậu nhiệt đới. Trên nền trắng ấy, mái Nhật màu đỏ nâu trở thành điểm nhấn đắt giá, mang đến cảm giác ấm áp, sang trọng và rất “ăn ảnh”.

Một trong những điểm làm nên “linh hồn” của mẫu nhà 2 tầng 1 tum mái Nhật chính là hệ cửa mái vòm cong mềm mại. Các ô cửa vòm được bố trí nhịp nhàng ở các tầng, tạo nên sự uyển chuyển, đối lập thú vị với hình khối vuông vức của ngôi nhà.
Những đường cong này không chỉ mang đậm dấu ấn kiến trúc Địa Trung Hải mà còn giúp công trình trở nên nhẹ nhàng, lãng mạn và có chiều sâu thẩm mỹ. Khi ánh nắng chiếu qua lớp kính, những vòm cong này tạo nên hiệu ứng ánh sáng rất đẹp, mang lại cảm giác ấm áp và dễ chịu cho không gian sống.

Ngoại thất của ngôi nhà được hoàn thiện bằng những vật liệu quen thuộc nhưng được lựa chọn kỹ lưỡng. Lan can sắt sơn tĩnh điện với hoa văn đơn giản, tinh tế không chỉ đảm bảo an toàn mà còn góp phần tôn lên vẻ đẹp thanh lịch của các ban công.
Hệ cửa kính khung gỗ nâu là một điểm cộng lớn về mặt thẩm mỹ. Kính giúp lấy sáng tối đa, mở rộng tầm nhìn ra không gian sân vườn bên ngoài, trong khi khung gỗ nâu mang lại cảm giác ấm cúng, sang trọng. Sự kết hợp giữa kính hiện đại và gỗ truyền thống giúp ngôi nhà giữ được vẻ đẹp bền vững, không lỗi thời. Đây cũng là chi tiết rất “được lòng” những gia chủ yêu thích không gian sống vừa tiện nghi, vừa giàu cảm xúc.

Hệ mái Nhật được thiết kế với độ dốc vừa phải, các lớp mái xếp gọn gàng, tạo nên sự thanh thoát và cân đối cho tổng thể kiến trúc. Màu đỏ nâu của mái không quá rực, thiên về tông trầm, giúp công trình toát lên vẻ sang trọng, bền vững theo thời gian.
Bao quanh ngôi nhà là không gian xanh được quy hoạch gọn gàng, khoa học. Hàng cây, thảm cỏ và các mảng xanh lớn giúp công trình như được “ôm trọn” bởi thiên nhiên. Nhìn từ trên cao, ngôi nhà nổi bật giữa khuôn viên xanh mát, mang lại cảm giác yên bình, thư thái, tách biệt khỏi sự ồn ào của phố thị.
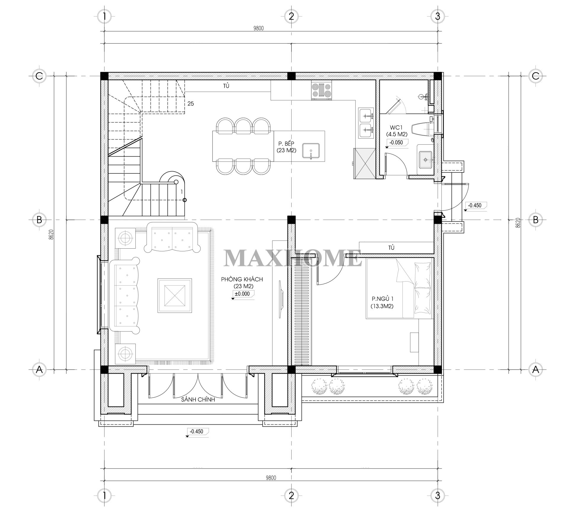
Bản vẽ công năng nhà 2 tầng 1 tum

Dựa trên mặt bằng định vị, mẫu nhà 2 tầng 1 tum mái Nhật được bố trí theo hướng Tây Nam với kích thước xây dựng 9,8 x 8,6m, mang lại tỷ lệ cân đối và phù hợp với khu đất. Tổng diện tích sử dụng khoảng 220m², đáp ứng trọn vẹn nhu cầu sinh hoạt của gia đình hiện đại.
Toàn bộ hồ sơ thiết kế, từ kiến trúc tổng thể đến cách sắp xếp công năng từng phòng, đều được kiến trúc sư tính toán và tư vấn kỹ lưỡng theo yếu tố phong thủy. Nhờ đó, ngôi nhà không chỉ đạt sự hài hòa về thẩm mỹ và công năng mà còn góp phần thu hút tài lộc và mang lại cuộc sống êm ấm, hạnh phúc cho gia chủ.

Tầng 1 được tổ chức công năng hợp lý, đề cao sự tiện nghi và tính liên kết giữa các không gian sinh hoạt chung. Từ sảnh chính bước vào là phòng khách rộng rãi, ngập tràn ánh sáng, bố trí ở vị trí trung tâm, vừa tạo cảm giác đón tiếp trang nhã vừa trở thành không gian sum họp của gia đình.
Phía sau phòng khách là khu bếp và phòng ăn thiết kế mở, gọn gàng, đầy đủ tiện nghi, đáp ứng tốt nhu cầu sinh hoạt hằng ngày. Một phòng ngủ tại tầng 1 được sắp xếp tách biệt, đảm bảo sự riêng tư, phù hợp cho ông bà hoặc khách lưu trú. Khu vệ sinh chung đặt cuối nhà, kín đáo và thuận tiện trong quá trình sử dụng.

Phòng thờ cúng được bố trí trang nghiêm tại tầng 2, đặt ở vị trí trang trọng, với bàn thờ chế tác từ gỗ tự nhiên cao cấp, hướng ra mặt tiền nhằm đón sinh khí và mang ý nghĩa phong thủy tốt lành.
Cùng trên tầng này là hai phòng ngủ được thiết kế rộng rãi, mang lại cảm giác thoải mái và riêng tư. Nội thất được sắp xếp gọn gàng, hiện đại, đáp ứng đầy đủ nhu cầu sinh hoạt. Mỗi phòng đều có ban công hoặc cửa sổ mở ra tầm nhìn thoáng đãng, giúp không gian luôn tràn ngập ánh sáng và không khí trong lành.

Không gian tầng tum được bố trí như một khoảng thở thư thái cho toàn bộ ngôi nhà, nơi công năng hướng nhiều hơn đến nghỉ ngơi và tận hưởng. Khu vực này được thiết kế linh hoạt, cho phép bố trí 1 phòng ngủ dành cho khách nghỉ lại, 1 phòng giặt phơi gọn gàng, cùng khu sân thượng rộng rãi mở ra không gian sinh hoạt ngoài trời nhẹ nhàng, lý tưởng để thưởng trà chill trong ánh nắng và gió tự nhiên. Đây chính là không gian giúp các thành viên trong gia đình cân bằng cảm xúc, tái tạo năng lượng và tận hưởng trọn vẹn giá trị sống an yên mỗi ngày.

