Sở hữu vẻ đẹp sang trọng, tinh tế và đầy cuốn hút, mẫu nhà mái Nhật 2 tầng phong cách Tân Cổ điển đang trở thành lựa chọn lý tưởng cho những gia đình yêu thích kiến trúc nhẹ nhàng nhưng vẫn toát lên sự bề thế. Với thiết kế 4 phòng ngủ rộng rãi, bố cục công năng khoa học cùng chi phí thiết kế hợp lý, mẫu nhà này không chỉ đáp ứng nhu cầu thẩm mỹ mà còn mang đến không gian sống tiện nghi, thoải mái cho cả gia đình.
Thông tin nhà 2 tầng tân cổ điển mái Nhật
| Chủ đầu tư: Anh Đỗ Viết Xuyên | Địa chỉ: Nông Cống, Thanh Hoá |
| Mặt tiền: 10,2m | Kích thước xây dựng: 10,2 x 15,7m |
| Số tầng: 2 tầng | Loại hình: Nhà mái Nhật hiện đại |
| Tổng diện tích: 295m2 | |
Công năng:
| |
| Đơn vị thiết kế: CÔNG TY TNHH MAXHOME ARCHITECT & DESIGN | |
Ngoại thất nhà 2 tầng tân cổ điển mái Nhật có 4 phòng ngủ
Mẫu nhà mái Nhật 2 tầng phong cách Tân Cổ điển mà Maxhome vừa hoàn thiện cho gia đình anh Xuyên tại Thanh Hóa sở hữu vẻ đẹp sang trọng, thanh lịch và đầy cuốn hút. Công trình được thiết kế theo tỷ lệ hài hòa, chú trọng từng chi tiết phào chỉ và hình khối kiến trúc, mang đến tổng thể bề thế nhưng vẫn nhẹ nhàng, phù hợp với gu thẩm mỹ của nhiều gia đình Việt hiện nay.

Đối với những công trình mang phong cách Tân Cổ điển, vẻ đẹp không chỉ đến từ các chi tiết vòm cong mềm mại mà còn nằm ở hệ phào chỉ được đắp nổi tinh xảo trên bề mặt tường. Hệ cột ở cả tầng 1 và tầng 2 cũng được nhấn nhá bằng các đường phào chỉ sắc nét, tạo điểm nhấn sang trọng cho mặt tiền. Đặc biệt, lan can ban công thiết kế dạng bán nguyệt độc đáo giúp tổng thể công trình trở nên hài hòa, mềm mại nhưng vẫn toát lên sự bề thế và đẳng cấp.

Mẫu nhà mái Nhật 2 tầng phong cách Tân Cổ điển lựa chọn gam màu trắng làm chủ đạo, đây luôn là tông màu được ưa chuộng bởi khả năng tôn lên vẻ tinh tế và làm nổi bật các chi tiết trang trí đặc trưng của kiến trúc Tân Cổ điển. Bên cạnh những đường phào chỉ và vòm cong mềm mại, điểm nhấn nổi bật của công trình chính là hệ lan can ban công sử dụng sắt nghệ thuật sơn giả mạ vàng. Sự kết hợp này không chỉ tăng tính thẩm mỹ mà còn mang đến cảm giác sang trọng, đẳng cấp cho tổng thể ngôi nhà.

Cửa của nhà mái Nhật 2 tầng phong cách Tân Cổ điển đều được sử dụng cửa nhôm hệ xingfa kết hợp với kính cường lực và cửa chính có thể thay đổi theo nhu cầu của gia chủ, nhưng sử dụng cửa kính sẽ giúp ngôi nhà thêm thu hút ánh sáng tự nhiên.

Nhờ áp dụng thiết kế bậc tam cấp 5 cấp, tổng thể nhà mái Nhật 2 tầng phong cách Tân Cổ điển trở nên hài hòa hơn giữa phần mái, thân nhà và khu vực sảnh chính. Sảnh phụ cũng được chăm chút kỹ lưỡng với hình khối vuông vắn, hệ cột chắc chắn và các chi tiết trang trí thanh thoát, góp phần tôn lên vẻ sang trọng và bề thế cho toàn bộ công trình.

Hệ mái Nhật được thiết kế đua ra nhiều hướng, tạo nên những lớp mái xếp chồng tinh tế giúp tổng thể công trình trở nên bề thế và cân đối hơn. Trên mái còn được bố trí thêm chi tiết chuồng chim, vừa tăng chiều sâu kiến trúc, vừa tạo điểm nhấn độc đáo cho diện mạo ngôi nhà. Bên cạnh đó, hệ mái Nhật nổi bật với khả năng thoát nước nhanh nhờ độ dốc hợp lý, hạn chế đọng nước và rêu mốc. Ở phía sau mái, Maxhome còn sắp xếp gọn gàng khu vực đặt téc nước và hệ thống thái dương năng, đảm bảo tiện nghi sinh hoạt mà vẫn giữ được tính thẩm mỹ chung.

Khám phá công năng nhà mái Nhật sang trọng
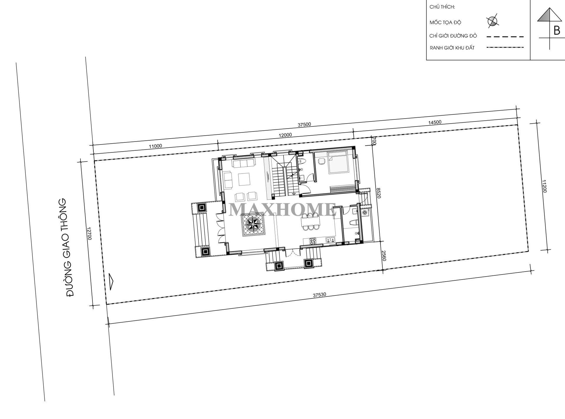
Bản vẽ mặt bằng định vị cho thấy khuôn viên đất khá rộng rãi, thuận lợi để bố trí công trình và không gian sân vườn xung quanh. Ngôi nhà 2 tầng mái Nhật phong cách Tân Cổ điển được xây dựng với kích thước 10,2 x 15,7m, đảm bảo hình khối cân đối và phù hợp với quy mô của lô đất. Tổng diện tích sử dụng của ngôi nhà khoảng 295m², đáp ứng đầy đủ nhu cầu sinh hoạt cho gia đình nhiều thế hệ.

Từ sảnh chính bước vào là không gian phòng khách rộng rãi, được bố trí thoáng và liên kết thuận tiện với các khu vực sinh hoạt khác. Tiếp nối là phòng bếp ăn ấm cúng, đảm bảo sự tiện lợi trong quá trình sử dụng hằng ngày. Ở tầng này còn có phòng ngủ số 01 với nhà vệ sinh khép kín, mang đến sự riêng tư cho gia chủ hoặc khách lưu trú. Nhà vệ sinh chung được đặt ở cuối nhà, giúp tối ưu giao thông di chuyển và đảm bảo tính sạch sẽ, thông thoáng cho toàn bộ tầng 1.

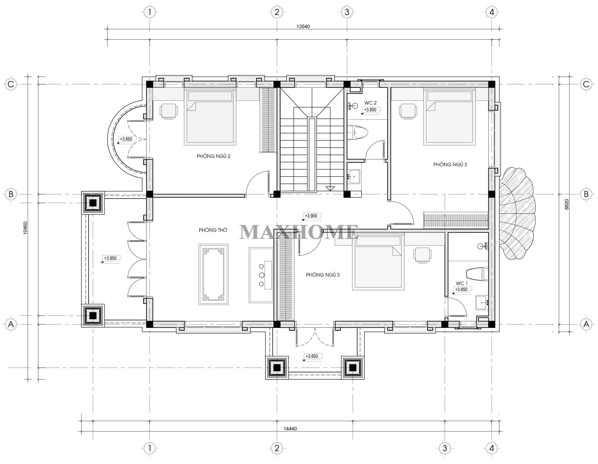
Tầng 2 được bố trí phòng thờ trang nghiêm, hướng ra ban công phía trước, tạo không gian thông thoáng và phù hợp với yếu tố phong thủy. Bên cạnh đó, tầng này có 3 phòng ngủ, mỗi phòng đều được thiết kế cửa sổ riêng để đón gió và ánh sáng tự nhiên. Riêng phòng ngủ 02 và 03 còn sở hữu ban công riêng, mang đến sự thoải mái và không gian thư giãn cho các thành viên. Nhà vệ sinh chung được đặt cạnh khu vực cầu thang, thuận tiện cho việc sử dụng hằng ngày và tối ưu giao thông di chuyển trong ngôi nhà.








