Tại vùng đất Bến Tre thanh bình, gia đình anh Hà đã cùng đội ngũ Maxhome kiến tạo nên một không gian sống lý tưởng, một mẫu nhà cấp 4 3 phòng ngủ mang phong cách hiện đại, trẻ trung, vừa đảm bảo sự sang trọng vừa tối ưu công năng cho một gia đình trẻ.
Thông tin nhà 4 3 phòng ngủ hiện đại ở Bến Tre
| Chủ đầu tư: Anh Nguyễn Đông Hà | Địa chỉ: Phú Nhuận, TP Bến Tre |
| Mặt tiền: 10,2m | Kích thước xây dựng: 10,2 x 17,8m |
| Số tầng: 1 tầng | Loại hình: Nhà mái Nhật hiện đại |
| Tổng diện tích: 138m2 | |
| Công năng: Phòng khách, phòng thờ, phòng bếp, 3 phòng ngủ, 2 wc, 1 phòng tắm | |
| Đơn vị thiết kế: CÔNG TY TNHH MAXHOME ARCHITECT & DESIGN | |
Ngoại thất căn nhà đẹp lung linh và thanh lịch
Trên nền sơn trắng tinh khôi của mẫu nhà cấp 4 3 phòng ngủ, đội ngũ thiết kế Maxhome đã khéo léo sử dụng tone màu xanh than làm điểm nhấn chủ đạo. Đây là sự lựa chọn thông minh giúp công trình toát lên vẻ cứng cáp và hiện đại mà không hề bị đơn điệu, để lại ấn tượng mạnh bởi sự kết hợp màu sắc vô cùng tinh tế và thời thượng.

Điểm nhấn đặc sắc nhất trên diện tường chính là hệ thống chỉ âm tường kích thước 40x20mm được kẻ cách đều nhau một khoảng 420mm. Những đường chỉ này chạy xuyên suốt bao quanh toàn bộ ngôi nhà tạo nên một nhịp điệu kiến trúc liền mạch và chỉn chu. Màu xanh than của các rãnh chỉ tương đồng hoàn hảo với màu mái mang đến một tổng thể thống nhất, cảm giác bền vững và chắc chắn cho mẫu nhà cấp 4 3 phòng ngủ này.

Để tăng thêm vẻ bề thế, phần chân tường của ngôi nhà được ốp gạch xám sẫm màu. Lớp gạch này không chỉ có tác dụng bảo vệ công trình khỏi tác động của thời tiết, chống rêu mốc mà còn tạo cảm giác chân đế vững chãi, nâng đỡ toàn bộ khối nhà.
Sự tỉ mỉ của Maxhome còn thể hiện ở việc sử dụng gạch inax cao cấp để trang trí tại các vị trí chiến lược như xung quanh khung cửa sổ, phía trên cửa chính và dưới chân các cột trụ. Những mảng gạch inax xám với bề mặt vân sần tự nhiên tạo nên chiều sâu cho mặt đứng giúp các chi tiết kiến trúc trở nên sắc nét và có hồn hơn.

Ở mọi góc nhìn của ngôi nhà, từ mặt tiền cho đến các mặt bên đều được trau chuốt kỹ lưỡng và đảm bảo tính thẩm mỹ không góc chết. Mẫu nhà cấp 4 3 phòng ngủ của gia đình anh Hà được thiết kế với ba lối tiếp cận linh hoạt để mang tới sự thông thoáng tối đa. Sảnh chính được ưu ái lắp đặt hệ cửa thép vân gỗ sang trọng với những đường chạm khắc giả tinh xảo và màu gỗ ấm áp, cánh cửa không chỉ là ranh giới bảo vệ mà còn là lời chào nồng hậu của gia chủ dành cho khách đến chơi nhà.

Ngược lại, sảnh phụ bên hông và cửa hậu phía sau nhà lại sử dụng hệ cửa kính khung nhôm hiện đại giúp tận dụng tối đa ánh sáng tự nhiên, mở ra tầm nhìn thoáng đãng ra khoảng sân vườn xanh mát xung quanh. Những ô cửa kính lớn không chỉ giúp ngôi nhà luôn tràn ngập sức sống mà còn tạo ra sự kết nối mềm mại giữa không gian sinh hoạt bên trong và thiên nhiên bên ngoài.
Nhìn từ trên cao, hệ mái Nhật xanh than hiện ra đầy ấn tượng với độ dốc vừa phải, cân đối, rất phù hợp với khí hậu Việt Nam nhờ khả năng thoát nước nhanh và chống nóng tốt. Đặc biệt, đội ngũ thiết kế Maxhome đã thể hiện sự chuyên nghiệp qua việc tính toán chi tiết từng bộ phận trong hồ sơ kiến trúc từ hệ lito, xà gồ đến cầu phong,… Việc bản vẽ được thể hiện chi tiết giúp quá trình thi công trở nên chuẩn xác, đảm bảo ngôi nhà thực tế của gia đình anh Hà sẽ mang vẻ đẹp trọn vẹn, sắc nét đúng như những gì được thể hiện trên bản phối cảnh 3D.

Trên mái nhà cấp 4 mái Nhật này, vị trí đặt tép nước và thái dương năng cũng được xử lý kỹ thuật gọn gàng, kín đáo để không làm ảnh hưởng đến thẩm mỹ chung của công trình. Sự kết hợp giữa các cột thu lôi thanh mảnh trên đỉnh mái không chỉ đảm bảo an toàn mà còn tạo thêm nét thanh thoát cho diện mạo ngôi nhà.
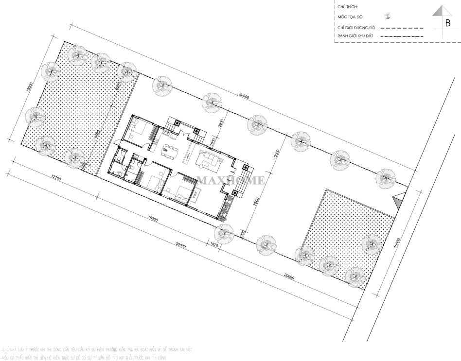
Mặt bằng công năng chi tiết

Bản vẽ mặt bằng tổng thể cho thấy ngôi nhà cấp 4 3 phòng ngủ của anh Hà được đặt trên một khuôn viên đất vô cùng rộng rãi với chiều dài lên đến 50m và chiều rộng 15m rất lý tưởng để thiết kế một không gian sống xanh bao quanh. Công trình chính có kích thước xây dựng 10,2×17,8m được đặt lùi về phía sau để dành một khoảng sân trước rất lớn phục vụ cho việc đỗ xe và vui chơi, đồng thời đảm bảo sự yên tĩnh và tách biệt khỏi khói bụi đường phố. Maxhome cũng đã khéo léo quy hoạch hệ thống cây xanh chạy dọc theo ranh giới đất và các khu vực sân vườn trước sau tạo bóng mát và giúp điều hòa không khí, biến mẫu nhà cấp 4 3 phòng ngủ này thành một khu nghỉ dưỡng mini thực thụ giữa thành phố Bến Tre.

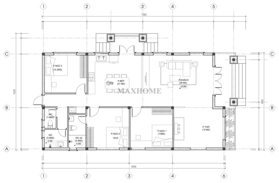
Đi sâu vào chi tiết công năng bên trong, ngôi nhà được tính toán kỹ lưỡng để tối ưu hóa diện tích sử dụng và đảm bảo sự tiện nghi cho các thành viên trong gia đình anh Hà. Từ sảnh chính bước vào là không gian phòng khách rộng 28m2 sang trọng kết nối gián tiếp với khu vực phòng thờ 15m2 được đặt ở vị trí trang trọng nhất hướng ra mặt tiền. Tâm điểm của ngôi nhà là phòng bếp kết hợp phòng ăn rộng 21m2 liên thông với sảnh phụ giúp không gian luôn thoáng đãng và không bị ám mùi khi nấu nướng. Hệ thống nghỉ ngơi của mẫu nhà cấp 4 3 phòng ngủ này bao gồm phòng ngủ 01 và 02 đồng diện tích 13m2 cùng phòng ngủ 03 rộng 12,2m2 được bố trí khoa học ở cuối nhà để đảm bảo sự riêng tư. Đặc biệt, khu vực vệ sinh được tách biệt tinh tế với một nhà vệ sinh chung 1,8m2, một khu vực tắm riêng 3,5m2 và một phòng vệ sinh master 4,3m2 giúp việc sinh hoạt của gia đình đông người trở nên vô cùng thuận tiện và linh hoạt.





