Nhà phố tân cổ điển 3 tầng 1 tum ngày càng được nhiều gia chủ ưu ái nhờ vẻ đẹp sang trọng, tinh tế cùng khả năng khai thác không gian hiệu quả. Sự kết hợp hài hòa giữa đường nét cổ điển chuẩn mực và tiện nghi hiện đại mang đến một tổng thể kiến trúc bền vững với thời gian, vừa đẹp mắt vừa tiện dụng. Mẫu thiết kế này còn được xem là biểu tượng của sự đẳng cấp và thể hiện tiềm lực kinh tế vững mạnh của gia đình anh Thắng, chủ đầu tư tại Hải Phòng. Mời quý bạn đọc cùng tham khảo phối cảnh 3D và phương án bố trí công năng chi tiết của công trình.
Thông tin công trình nhà phố tân cổ điển 3 tầng 1 tum
| Chủ đầu tư: Anh Cao Văn Thắng | Địa chỉ: Nguyễn Lương Bằng, Hải Phòng |
| Mặt tiền: 4,4m | Kích thước xây dựng: 4,4 x 17m |
| Số tầng: 3 tầng 1 tum | Loại hình: Nhà phố tân cổ điển |
| Tổng diện tích: 270m² | |
Công năng:
| |
| Đơn vị thiết kế: CÔNG TY TNHH MAXHOME ARCHITECT & DESIGN | |
Mẫu nhà phố tân cổ điển 3 tầng 1 tum đẹp lộng lẫy, kiêu sa giữa lòng đô thị
Ngôi nhà phố tân cổ điển 3 tầng 1 tum mái Mansard cuốn hút ngay từ ánh nhìn đầu tiên nhờ vẻ ngoài lộng lẫy và đầy khí chất. Các chi tiết hoa văn, phào chỉ được chăm chút kỹ lưỡng, tạo nên vẻ đẹp thanh lịch, kiêu sa nhưng không phô trương. Tổng thể công trình vừa mang giá trị thẩm mỹ bền vững vừa phản ánh rõ phong cách sống đẳng cấp và gu thẩm mỹ tinh tế của gia chủ.

Mặt tiền ngôi nhà gây ấn tượng bởi vẻ đẹp thanh lịch đặc trưng của phong cách tân cổ điển, nơi từng đường nét kiến trúc được chăm chút kỹ lưỡng, hài hòa như một tác phẩm nghệ thuật hoàn chỉnh. Hệ cột tròn và cột vuông được sắp xếp nhịp nhàng, kết hợp cùng các đường phào chỉ chạy dọc tinh tế, không chỉ tôn lên chiều cao lý tưởng của công trình mà còn tạo cảm giác mềm mại, uyển chuyển và đầy khí chất.
Phần mái sảnh chính được thiết kế cầu kỳ với những họa tiết đắp nổi sắc sảo, trở thành điểm nhấn sang trọng, thể hiện rõ sự quyền quý nơi mặt tiền. Ban công bán nguyệt duyên dáng tại tầng 3 góp phần cân bằng hình khối kiến trúc, đồng thời mở ra sự kết nối nhẹ nhàng giữa không gian sinh hoạt bên trong và cảnh quan bên ngoài, mang đến cảm giác thoáng đãng và giàu thẩm mỹ.

Hệ thống đèn ngoại thất được bố trí tinh tế trên các diện tường của từng tầng, tạo nên hiệu ứng ánh sáng lung linh và đầy cuốn hút. Ánh sáng vàng ấm áp từ đèn tường không chỉ làm nổi bật các chi tiết hoa văn tân cổ điển mà còn mang lại cảm giác sang trọng, ấm cúng đồng thời giúp cho toàn bộ kiến trúc ngôi nhà phố 3 tầng 1 tum trở nên nổi bật khi về đêm.

Tọa lạc tại vị trí đắc địa gần trục đường giao thông chính và do các mặt bên tiếp giáp công trình lân cận, kiến trúc sư đã khai thác tối đa lợi thế mặt tiền bằng hệ thống cửa kính khung nhôm xingfa giúp mở rộng tầm nhìn và tăng cường ánh sáng tự nhiên.
Khung cửa được viền phào chỉ sắc nét, kết hợp cùng ban công thiết kế lan can nhôm đúc nghệ thuật mạ vàng tạo điểm nhấn đắt giá cho mặt tiền thêm sang trọng và quý phái, là tâm điểm thu hút mọi ánh nhìn.

Điểm nhấn nổi bật trên tổng thể ngôi nhà phố 3 tầng 1 tum chính là hệ mái Mansard bề thế, khoác lên mình sắc ngói xanh than sang trọng, kết hợp đường viền trắng tinh khôi tạo nên cảm giác thanh lịch và cân đối. Hình khối mái cao ráo không chỉ tôn lên vẻ uy nghi cho công trình mà còn góp phần hoàn thiện diện mạo tân cổ điển đặc trưng.
Bên cạnh đó, các ban công được bố trí cây xanh một cách khéo léo, vừa làm mềm các mảng kiến trúc cứng cáp, vừa mang đến không gian sống trong lành, hài hòa giữa thiên nhiên và kiến trúc.

Khám phá công năng khoa học của nhà phố tân cổ điển
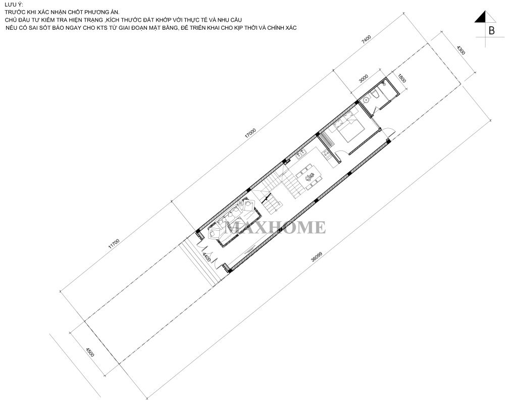
Sau khi tiếp nhận yêu cầu từ gia đình anh Thắng, đội ngũ kiến trúc sư Maxhome đã trực tiếp khảo sát hiện trạng khu đất để đưa ra phương án thiết kế tối ưu. Ngôi nhà có mặt tiền hướng Tây Nam, diện tích xây dựng 4,4 x 17m, tổng diện tích sử dụng khoảng 270m². Thiết kế không chỉ đảm bảo đầy đủ công năng tiện nghi mà còn hài hòa về thẩm mỹ, đáp ứng toàn diện nhu cầu sinh hoạt và gu thẩm mỹ riêng của gia chủ.

Bước qua cánh cửa chính là không gian phòng khách – khu vực trung tâm của ngôi nhà, được ưu ái diện tích rộng rãi và thiết kế nội thất sang trọng, hiện đại để tạo ấn tượng cho các vị khách quý.
Khu vực cầu thang bộ được bố trí hợp lý ở giữa nhà, vừa phân tách chức năng không gian, vừa đảm bảo sự lưu thông mạch lạc trong tổng thể bố cục. Tiến sâu vào bên trong là phòng bếp – ăn gọn gàng, tiện nghi, kết nối hài hòa với phòng khách. Một phòng ngủ được đặt phía cuối đảm bảo sự riêng tư và yên tĩnh.

Tầng 2 được bố trí khoa học với hai phòng ngủ khép kín, đảm bảo sự riêng tư và tiện nghi cho các thành viên trong gia đình. Các phòng ngủ được thiết kế rộng rãi, thoáng đãng, tích hợp đầy đủ nhà vệ sinh và khu vực thay đồ, mang lại sự thoải mái tối đa.

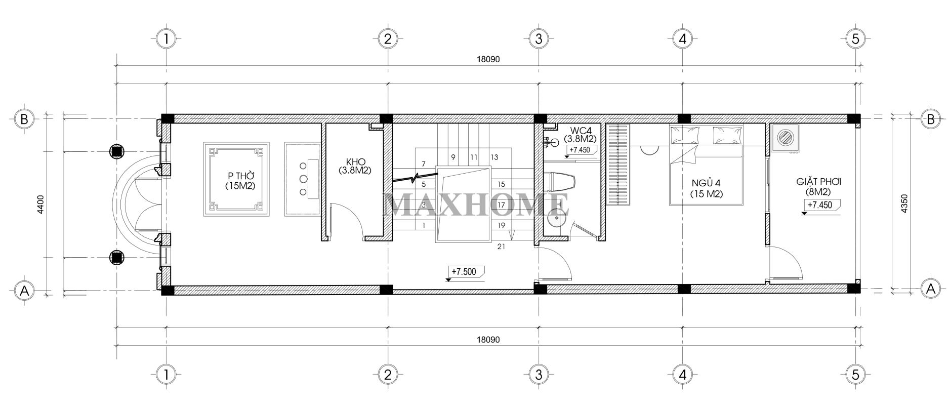
Tầng 3 thiết kế với phòng thờ trang trọng, đặt tại vị trí đẹp và hợp phong thủy, thể hiện lòng thành kính của gia chủ. Từ phòng thờ, lối cửa dẫn ra khu vực ban công thoáng đãng giúp đón sinh khí hút tài lộc. Phía sau là 1 phòng ngủ khép kín cùng khu giặt phơi giúp tối ưu hóa công năng sử dụng và giữ cho không gian sống luôn gọn gàng, ngăn nắp.

Trên tầng tum, không gian được dành trọn cho các hoạt động sinh hoạt và thư giãn ngoài trời của cả gia đình, mang đến khoảng thở thoáng đãng giữa nhịp sống đô thị. Khu vực này có thể bố trí bàn trà, tiểu cảnh xanh hoặc góc BBQ ấm cúng, đáp ứng nhu cầu vui chơi, sum họp và nghỉ ngơi. Nhờ sự kết hợp hài hòa giữa công năng và cảnh quan, tầng tum trở thành điểm nhấn giá trị, góp phần nâng tầm chất lượng sống cho gia chủ.







