Mẫu nhà phố tân cổ điển mái Nhật 2 tầng do Maxhome thiết kế cho gia đình chú Mai là phương án lý tưởng dành cho những gia chủ yêu thích vẻ đẹp sang trọng, chỉn chu nhưng vẫn hài hòa với nhịp sống đô thị hiện đại. Công trình ghi điểm nhờ ngôn ngữ kiến trúc chuẩn mực, không phô trương hình thức cũng không sử dụng những chi tiết rườm rà. Chính sự cân đối trong bố cục cùng những đường nét tinh tế đã tạo nên sức hút bền bỉ và giá trị thẩm mỹ lâu dài cho ngôi nhà.
Thông tin công trình nhà phố tân cổ điển mái Nhật
| Chủ đầu tư: Chú Lê Văn Mai | Địa chỉ: Nguyệt Đức, Phú Thọ |
| Mặt tiền: 5,5m | Kích thước xây dựng: 5,5 x 18,3m |
| Số tầng: 2 tầng | Loại hình: Nhà phố mái Nhật tân cổ điển |
| Tổng diện tích: 170m² | |
Công năng:
| |
| Đơn vị thiết kế: CÔNG TY TNHH MAXHOME ARCHITECT & DESIGN | |
Mẫu nhà phố tân cổ điển mái Nhật 2 tầng đẹp xuất sắc tại Phú Thọ
Ngay từ cái nhìn đầu tiên, mẫu nhà phố tân cổ điển mái Nhật 2 tầng gây ấn tượng bởi bố cục hình khối vuông vắn, rõ ràng. Khối nhà được chia thành hai tầng mạch lạc, tỷ lệ chiều cao hợp lý, tạo cảm giác bề thế. Đây là điểm rất “đắt” của kiến trúc tân cổ điển khi áp dụng cho nhà phố, nơi mặt tiền thường bị giới hạn về chiều ngang. Các mảng khối đặc – rỗng được xử lý khéo léo. Tầng 1 vững chãi với hệ cột lớn và bậc tam cấp cao ráo. Tầng 2 nhẹ nhàng hơn với ban công thoáng, lan can sắt mỹ thuật và những đường cong mềm mại, giúp tổng thể ngôi nhà vừa có chiều sâu, vừa có điểm nhấn thị giác rõ ràng.

Một trong những yếu tố làm nên “linh hồn” của nhà phố tân cổ điển mái Nhật 2 tầng chính là hệ trụ cột. Công trình sử dụng linh hoạt cả cột vuông và cột tròn, đúng tinh thần tân cổ nhưng không rập khuôn.
Cột vuông ở tầng 1 mang lại cảm giác chắc chắn, nâng đỡ toàn bộ khối nhà phía trên. Phần chân cột được ốp đá màu tối, vừa tăng độ bền, vừa tạo sự tương phản rõ nét với gam sơn trắng chủ đạo. Lên đến tầng 2, cột tròn xuất hiện với tỷ lệ thon gọn, đầu cột bo tròn mềm mại, giúp công trình trở nên thanh thoát và sang trọng hơn. Sự kết hợp này không chỉ đẹp về mặt thẩm mỹ mà còn thể hiện rõ tư duy thiết kế tinh tế, tránh sự đơn điệu thường thấy ở nhiều mẫu nhà phố hiện nay.

Khác với những mẫu tân cổ điển cầu kỳ, nhiều chi tiết rườm rà, mẫu nhà đẹp này chọn cách tiết chế hoa văn phào chỉ. Các đường phào chạy ngang phân tầng, viền mái, khung cửa được thiết kế gọn gàng, sắc nét.
Phào chỉ không quá dày, không chồng lớp nặng nề mà vừa đủ để tạo chiều sâu cho mặt đứng. Chính sự “vừa đủ” này giúp ngôi nhà giữ được nét cổ điển sang trọng nhưng vẫn hợp với nhịp sống hiện đại, không gây cảm giác lỗi thời.

Toàn bộ ngoại thất sử dụng gam trắng chủ đạo, một lựa chọn kinh điển trong kiến trúc tân cổ điển. Màu trắng giúp ngôi nhà nổi bật, sạch sẽ và làm nền hoàn hảo để các chi tiết phào chỉ, cột trụ và lan can được tôn lên rõ nét.
Phần chân tường và chân cột được ốp đá tự nhiên màu tối, vừa tạo cảm giác vững chắc, vừa tăng độ sang trọng. Lan can ban công sử dụng sắt nghệ thuật mạ vàng với hoa văn uốn lượn tinh xảo, trở thành điểm nhấn đắt giá cho mặt tiền. Hệ cửa kính khung nhôm màu đen giúp công trình đón ánh sáng tự nhiên tối đa, đồng thời tạo sự kết nối hài hòa giữa không gian bên trong và bên ngoài.

Phần mái là một trong những chi tiết khiến người xem dễ “phải lòng”. Mái Nhật với độ dốc nhẹ, đua rộng đều các phía, tạo cảm giác cân bằng và thanh thoát cho tổng thể công trình. So với mái Thái, mái Nhật có độ dốc vừa phải hơn, phù hợp với nhà phố, không quá cao nhưng vẫn đảm bảo khả năng thoát nước tốt.
Màu ngói xanh than được lựa chọn rất khéo. Gam màu này vừa sang, vừa dễ phối với tông trắng của tường và sắc đen của đá ốp, tạo nên một tổng thể hài hòa, bền màu theo thời gian.

Những cậu tiểu cảnh xanh được bố trí tinh tế tại khu vực sảnh và ban công, vừa làm mềm các mảng khối kiến trúc, vừa tạo cảm giác cân bằng và hài hòa cho tổng thể mặt tiền. Chính yếu tố này góp phần quan trọng tạo nên cảm giác thư thái, dễ chịu, giúp ngôi nhà trở nên thân thiện và cuốn hút ngay từ ánh nhìn đầu tiên.
Bộ cổng nhôm đúc mạ vàng được thiết kế tinh xảo với hoa văn mềm mại, sắc nét, không chỉ tạo điểm nhấn sang trọng mà còn khẳng định đẳng cấp và gu thẩm mỹ của gia chủ. Kết hợp cùng hệ tường bao bê tông kiên cố, cao ráo, công trình vừa đảm bảo sự an toàn, riêng tư, vừa hoàn thiện vẻ đẹp bề thế và chỉn chu cho tổng thể ngôi nhà.
Khám phá công năng tiện nghi vượt trội

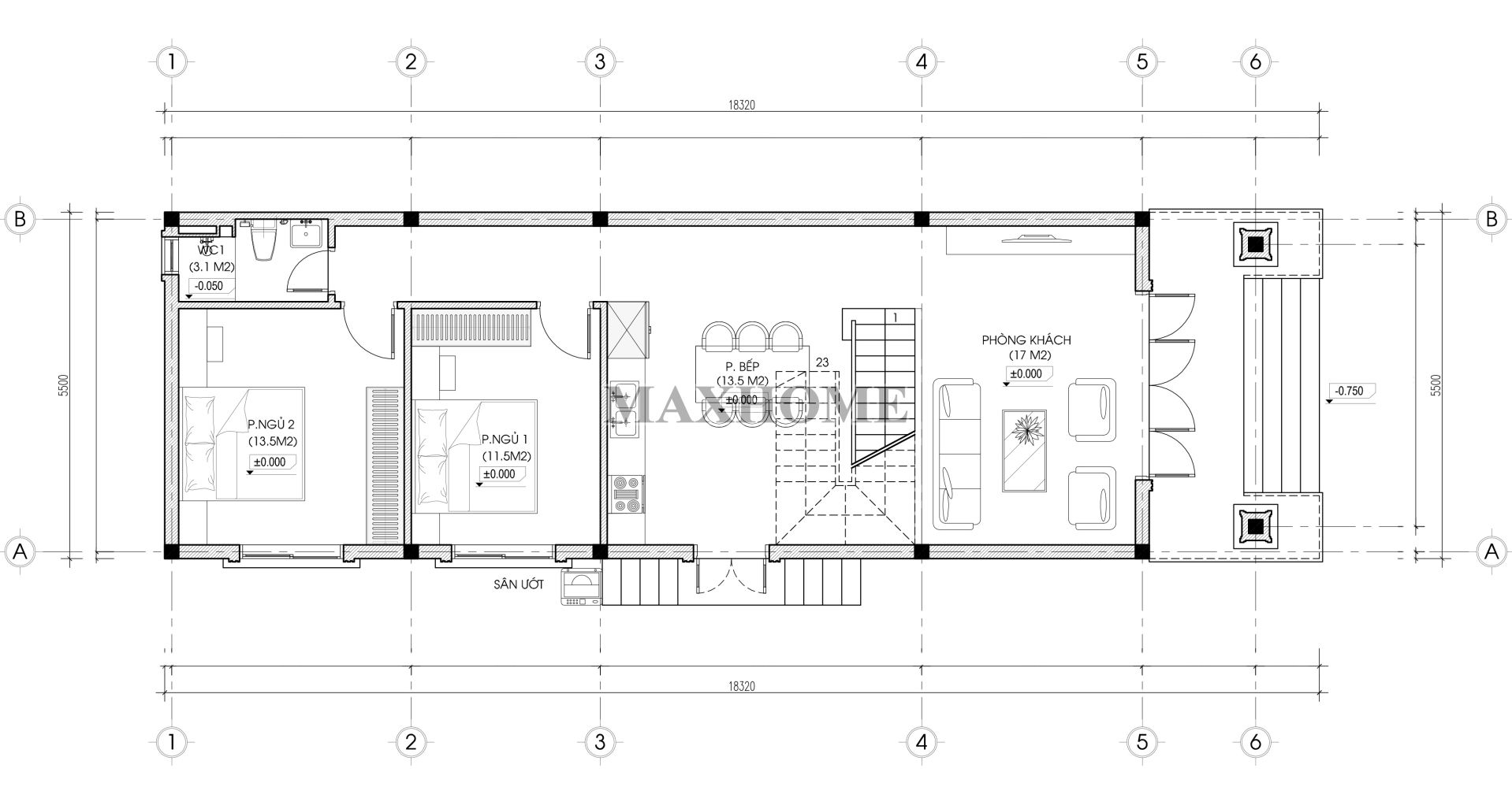
Về vị trí, ngôi nhà phố tân cổ điển mái Nhật tọa lạc tại hướng Đông Bắc, với kích thước xây dựng 5,5 x 18,3m và tổng diện tích sử dụng khoảng 170m². Để đảm bảo không gian sống tiện nghi, thoải mái và phù hợp với nhu cầu sinh hoạt của từng thành viên, phương án bố trí công năng được KTS tính toán kỹ lưỡng, dựa trên mong muốn cụ thể của gia chủ và đặc điểm diện tích thực tế.
Ngoài ra, yếu tố phong thủy cũng được chú trọng xuyên suốt quá trình thiết kế, nhằm mang đến sự hài hòa về năng lượng, thu hút vượng khí và kiến tạo một tổ ấm lý tưởng cả về tinh thần lẫn vật chất.

Tầng 1 bố trí công năng khoa học, đáp ứng trọn vẹn nhu cầu sinh hoạt của gia đình. Không gian gồm phòng khách sang trọng ở phía trước, đi tiếp qua sảnh thang đến khu bếp ăn rộng thoáng. Phía cuối nhà là 2 phòng ngủ và 1 nhà vệ sinh chung, tạo sự thuận tiện trong sử dụng đồng thời tối ưu diện tích trên quỹ đất hạn chế.

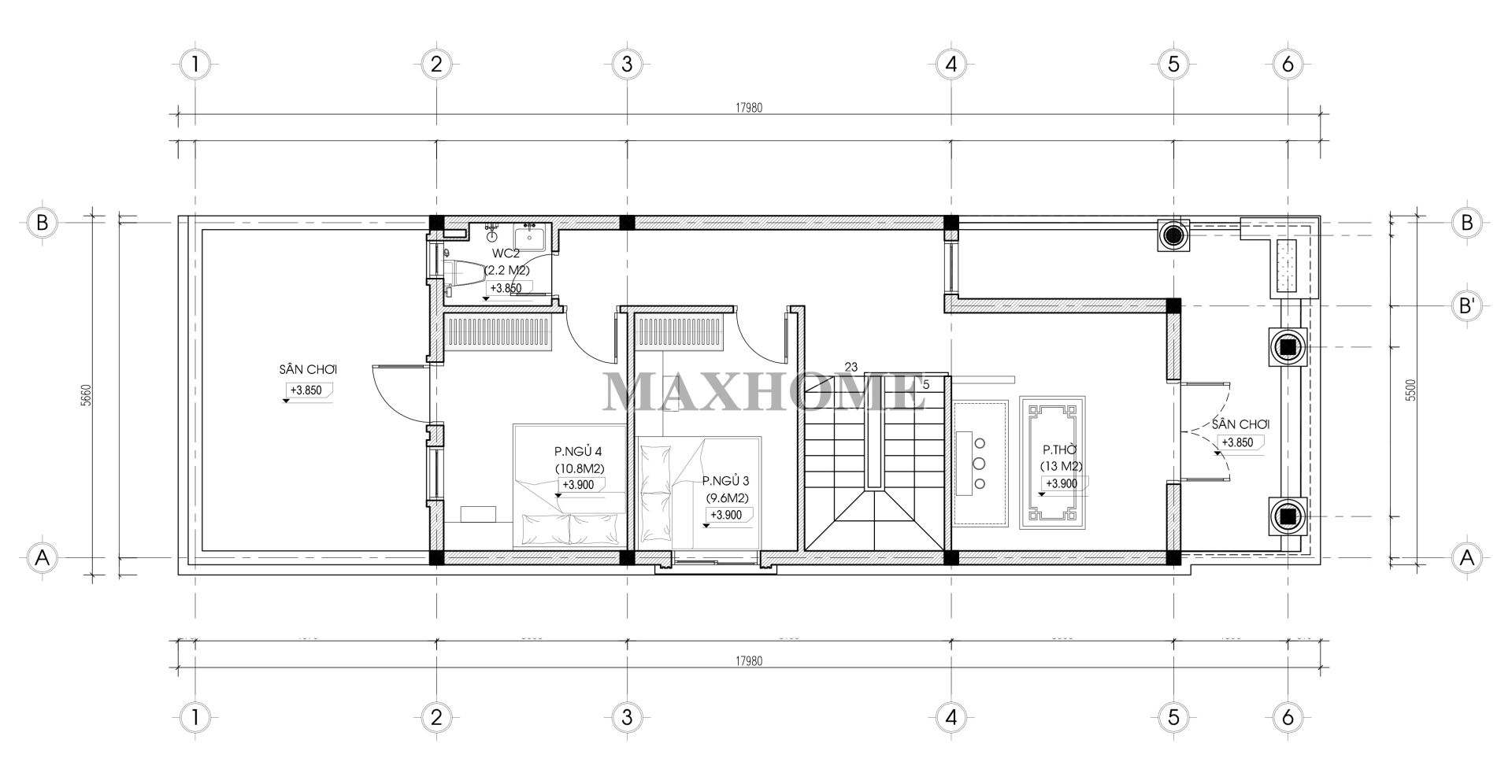
Tiến lên tầng 2, không gian phòng thờ được đặt ở vị trí đắc địa hợp phong thủy, hướng ra ban công rộng thoáng, giúp không gian luôn đón nhận ánh sáng, sinh khí và tài lộc.
Hai phòng ngủ được bố trí liền kề nhau, đảm bảo giữ được sự kết nối và hài hòa giữa các thành viên. Nhà vệ sinh chung đặt gọn gàng gần 2 phòng ngủ, cùng sân chơi rộng rãi đáp ứng đầy đủ nhu cầu sinh hoạt và giải trí cho cả gia đình.






