Maxhome giới thiệu mẫu nhà phố sang trọng và phù hợp với mặt tiền khiêm tốn chỉ 5m, công trình nhà phố tân cổ 2 tầng dưới đây thuộc sở hữu của anh Quốc tại Bà Rịa – Vũng Tàu sẽ khiến bạn phải trầm trồ ngay từ cái nhìn đầu tiên. Với phong cách tân cổ điển lộng lẫy, tinh tế như một phiên bản thu nhỏ của những căn biệt thự châu Âu giữa lòng thành phố.
Thông tin nhà phố tân cổ 2 tầng 3 phòng ngủ
| Chủ đầu tư: Anh Võ Quốc | Địa chỉ: Ngãi Giao, Châu Đức, Bà Rịa – Vũng Tàu |
| Mặt tiền: 5m | Kích thước xây dựng: 5 x 20,8m |
| Số tầng: 2 tầng | Loại hình: Nhà mái bằng tân cổ điển |
| Tổng diện tích: 194m2 | |
Công năng:
|
|
| Đơn vị thiết kế: CÔNG TY TNHH MAXHOME ARCHITECT & DESIGN | |
Đẹp lộng lẫy với mẫu nhà phố 2 tầng
Maxhome đã xử lý mặt tiền 5m của căn nhà phố tân cổ 2 tầng một cách cực kỳ khéo léo giúp công trình nổi bật giữa khu phố mà vẫn giữ được sự hài hòa với cảnh quan xung quanh. Chỉ cần ngắm qua những đường nét ngoại thất nhà anh Quốc, bạn sẽ hiểu vì sao mẫu nhà này gây ấn tượng mạnh đến vậy.

Bước tới căn nhà anh Quốc, thứ cuốn hút mắt nhìn chính là phong cách tân cổ điển được thể hiện đầy chỉn chu. Hệ phào chỉ chạy dọc mặt tiền được làm sắc nét, chia khối rõ ràng và giữ tỷ lệ chuẩn. Tầng 2 với ba mái vòm đặc trưng giúp tổng thể ngôi nhà phố tân cổ 2 tầng trở nên mềm mại hơn. Các đường cong bo nhẹ kết hợp chi tiết trang trí đắp nổi ở vị trí trung tâm mái tạo nên điểm nhấn quý phái nhưng không hề cầu kỳ quá mức. Maxhome giữ tinh thần tân cổ theo hướng tinh gọn, sang trọng mà phù hợp với xu hướng thiết kế hiện đại ngày nay. Với một mặt tiền hẹp chỉ 5m, việc cân đối họa tiết và mảng khối như vậy là cả một nghệ thuật.

Một điểm làm nên sự sang trọng của ngôi nhà chính là hệ cột tròn đắp tường ở tầng 2. Những chiếc cột kiểu Corinth được dựng lên đầy kiêu hãnh tạo cảm giác vững chãi và nâng tầm mặt tiền. Từng chân cột, đầu cột đều được làm chi tiết nhưng vẫn giữ sự thanh thoát nhất định để không khiến mặt đứng bị nặng nề. Lan can con tiện kết hợp với mảng kính sau vòm cửa tạo nên tổng thể hài hòa và lịch lãm. Đây chính là lý do khiến mẫu nhà phố tân cổ 2 tầng của anh Quốc trông nổi bật dù đặt cạnh bất kỳ kiểu nhà hiện đại nào.

Hệ cửa kính khung tối màu ở căn nhà phố mang hơi thở hiện đại tạo sự đối lập thú vị với màu sơn trắng tinh khôi của tổng thể ngôi nhà. Sự pha trộn này giúp ngôi nhà 2 tầng không trở nên quá cổ điển mà vẫn giữ được độ trẻ trung và phù hợp với phong cách sống của các gia đình hiện nay. Cửa chính cao 2,9m sử dụng vách kính rộng 4 cánh mở quay giúp không gian bên trong luôn sáng và thông thoáng đồng thời tạo hiệu ứng kéo dài chiều cao mặt tiền.

Phần màu sắc cũng là điểm khiến ngôi nhà ghi điểm mạnh. Maxhome chọn toàn bộ tông trắng cho ngoại thất căn nhà anh Quốc tạo cảm giác sạch sẽ và sang trọng. Tông trắng giúp phào chỉ nổi bật hơn giúp ánh sáng phản chiếu đẹp hơn và giúp mặt tiền trông thoáng rộng hơn. Khi kết hợp với hệ đèn vàng hai bên tường, tổng thể trở nên ấm áp và lung linh vào buổi tối. Chỉ cần bật đèn lên, ngôi nhà như được phủ một lớp ánh sáng mềm khiến ai đi ngang cũng phải ngoái nhìn.

Một yếu tố đáng chú ý nữa là cách bố trí mặt bằng và không gian xung quanh. Khoảng sân trước không quá lớn nhưng được lát đá gọn gàng, sạch sẽ. Bậc tam cấp được thiết kế rộng tạo thế nhà cao ráo và sang trọng hơn ngay từ cổng. Hai bên tường rào thẳng và gọn giúp ánh nhìn tập trung hoàn toàn vào mặt tiền. Nhờ cách thiết kế này mà tổng thể ngôi nhà trở nên có chiều sâu và hút ánh nhìn hơn rất nhiều.

Nhìn từ trên cao, phần mái bằng kết hợp mái tôn mang lại sự tiện lợi cho gia chủ. Phía sau mái có bồn nước và máy năng lượng mặt trời được đặt gọn gàng và không ảnh hưởng đến thẩm mỹ mặt tiền. Khu vực mái tôn được thiết kế dốc mái thấp dần phía sau, tránh gây ứ đọng nước làm thấm dột công trình. Đây là một trong những ưu điểm thực tế mà mẫu thiết kế này mang lại.
Công năng nhà phố tiện nghi

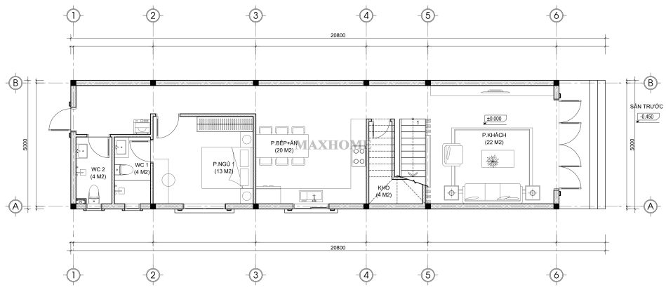
Dựa vào mặt bằng định vị công trình và hình ảnh thực tế cho thấy, căn nhà phố tân cổ 2 tầng nằm trên khuôn đất sâu tới 46m, ngôi nhà chính chiếm chưa tới một nửa nên phía trước và phía sau nhà đều rất rộng rãi và thoải mái. Cổng nhà cũng được làm lệch sang một bên để tránh phạm lỗi phong thuỷ nếu hướng thẳng trực tiếp vào cửa chính ngôi nhà.

Tầng 1 được bố trí theo hướng tiện dụng và dễ di chuyển, phù hợp với sinh hoạt hằng ngày của gia đình anh Quốc. Bước vào nhà là phòng khách rộng 22m2 giữ vai trò trung tâm để tiếp khách và sinh hoạt chung. Bên cạnh là cầu thang, đi ngang qua vị trí này là tới khu bếp ăn được lắp đặt hệ tủ bếp chữ L cùng bộ bàn ăn 6 ghế đầu tư cho không gian dùng bữa ấm cúng. Cuối nhà là 1 phòng ngủ 13m2 sở hữu riêng nhà vệ sinh bên trong, bên ngoài là nhà vệ sinh chung cho mọi người dưới tầng 1 dễ sử dụng.


Tiến lên tầng 2, phòng thờ 12m2 được đặt ở vị trí trang trọng hướng ra mặt tiền rất thoáng và yên tĩnh. Phía sau là phòng sinh hoạt chung giúp các thành viên trong nhà anh Quốc có không gian trò chuyện riêng tư và thư giãn thoải mái sau một ngày làm việc. Hai phòng ngủ nằm tách biệt để đảm bảo riêng tư và nhà vệ sinh đều được thiết kế đồng trục với tầng 1. Nhờ cách bố trí khoa học này mà tầng 2 vừa là không gian nghỉ ngơi vừa là nơi kết nối giúp mang lại sự cân bằng cho ngôi nhà tân cổ 2 tầng giữa thành phố nhộn nhịp.


