Trong bộ sưu tập những mẫu biệt thự đẹp của Maxhome có một mẫu biệt thự 3 tầng mái Thái ấn tượng thuộc sở hữu của gia đình anh Giáp ở Bắc Ninh, công trình nổi bật với vẻ đẹp sang trọng, cổ kính pha lẫn sự tinh tế hiện đại. Từng đường nét kiến trúc được trau chuốt tỉ mỉ, thể hiện đẳng cấp của gia chủ và khẳng định dấu ấn riêng biệt trong không gian sống.
Thông tin biệt thự 3 tầng mái Thái sang trọng
| Chủ đầu tư: Anh Hà Huy Giáp | Địa chỉ: Phường Hồ, Thuận Thành, Bắc Ninh |
| Mặt tiền: 11,5m | Kích thước xây dựng: 11,5 x 15,8m |
| Số tầng: 3 tầng | Loại hình: Biệt thự mái Thái tân cổ điển |
| Tổng diện tích: 340m2 | |
Công năng:
| |
| Đơn vị thiết kế: CÔNG TY TNHH MAXHOME ARCHITECT & DESIGN | |
Khám phá thiết kế ấn tượng của mẫu biệt thự 3 tầng tân cổ điển
Mẫu biệt thự 3 tầng mái Thái gây ấn tượng mạnh nhờ hình khối cân đối, kiên cố và đầy tính thẩm mỹ. Tông màu trắng chủ đạo mang đến cảm giác sang trọng, làm nổi bật những chi tiết phào chỉ và lan can nhôm đúc nghệ thuật. Đây là sự kết hợp hoàn hảo giữa kiến trúc châu Âu cổ điển và phong cách sống hiện đại của người Việt.

Điểm nhấn nổi bật nhất của căn biệt thự nằm ở khu vực sảnh chính với hệ cột trụ tròn lớn chạy thẳng từ tầng 1 lên tầng 2 được đắp phào tinh xảo và nâng đỡ phần mái vòm cong mềm mại. Từng chi tiết đều thể hiện sự chỉn chu trong thiết kế, từ hoa văn đắp nổi trên đỉnh cột đến các gờ chỉ tinh tế chạy dọc theo khung cửa. Dưới ánh nắng, khối kiến trúc trở nên sống động hơn, có cảm giác vững chãi và bề thế cho toàn bộ công trình.
Bên cạnh sảnh chính, khu vực gara được bố trí gọn gàng bên hông nhà và có mái che riêng biệt đồng thời cũng là ban công. Hệ cột sân gara được thiết kế đồng bộ với phong cách tân cổ điển cùng những đường phào nhẹ, không gian này rất tiện lợi cho việc di chuyển và giúp khuôn viên biệt thự thêm phần cân đối.

Phào chỉ hoa văn đắp nổi được Maxhome xử lý khéo léo ở mặt tiền công trình giúp tổng thể không bị rối mà vẫn giữ được chiều sâu nghệ thuật. Chính nhờ điều này, mẫu biệt thự 3 tầng mái Thái của anh Giáp trở thành minh chứng rõ ràng cho phong cách tân cổ điển được ứng dụng đúng mực, vừa sang vừa tinh tế mà lại không hề phô trương.

Một trong những chi tiết làm nên sức hút của căn biệt thự 3 tầng này chính là hệ lan can sắt được chế tác công phu với những hoa văn mềm mại, uốn lượn theo phong cách châu Âu cổ điển không chỉ giúp đảm bảo độ an toàn mà còn mang tính thẩm mỹ cao. Lan can màu đen nổi bật trên nền trắng của tường giúp mặt tiền càng thêm phần cuốn hút.

Bên cạnh đó, phần mái kính ở ban công cũng được thiết kế tinh tế để tạo điểm nhấn trang trí mà vẫn có tác dụng che mưa nắng. Khung sắt uốn cong nghệ thuật kết hợp cùng lớp kính trong suốt thể hiện sự hiện đại xen lẫn nét cổ điển, nhờ chi tiết này khiến ngôi biệt thự 3 tầng mái Thái thêm phần mềm mại, sang trọng và đầy sức sống. Ngôi biệt thự nhà anh Giáp không chỉ đẹp về hình thức mà còn bộc lộ phong cách sống tinh tế, yêu nghệ thuật và đề cao giá trị bền vững.

Phần mái Thái cao 2,55m sở hữu độ dốc lớn không chỉ giúp thoát nước nhanh mà còn tạo nên vẻ thanh thoát, cao ráo cho tổng thể công trình. Gam màu xanh than của mái tương phản nhẹ với nền sơn trắng mang lại sự hài hòa và sang trọng. Dưới mỗi góc nhìn của biệt thự 3 tầng mái Thái đều toát lên vẻ uy nghi, thể hiện sự bề thế và quyền quý.
Mặt bằng công năng mẫu thiết kế biệt thự cao tầng

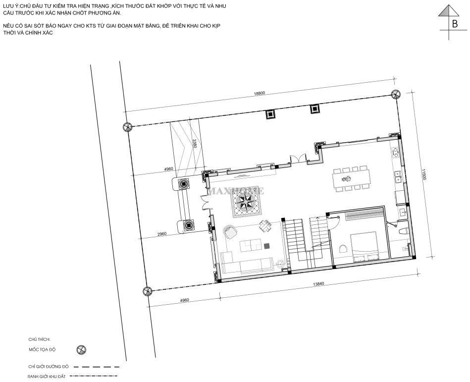
Công trình được bố trí lệch nhẹ về phía bên phải khu đất để tạo khoảng sân phía trước và bên hông vừa đủ cho gara ô tô có mái che và khoảng xanh tiểu cảnh. Khoảng lùi này không chỉ giúp mặt tiền thoáng đãng mà còn mang lại cảm giác bề thế, cân đối cho toàn bộ khối nhà. Kích thước tổng thể khu đất dài 18,8m chiều dài và 11,5m mặt tiền rộng làm tôn lên sự hoành tráng của mẫu biệt thự 3 tầng mái Thái.

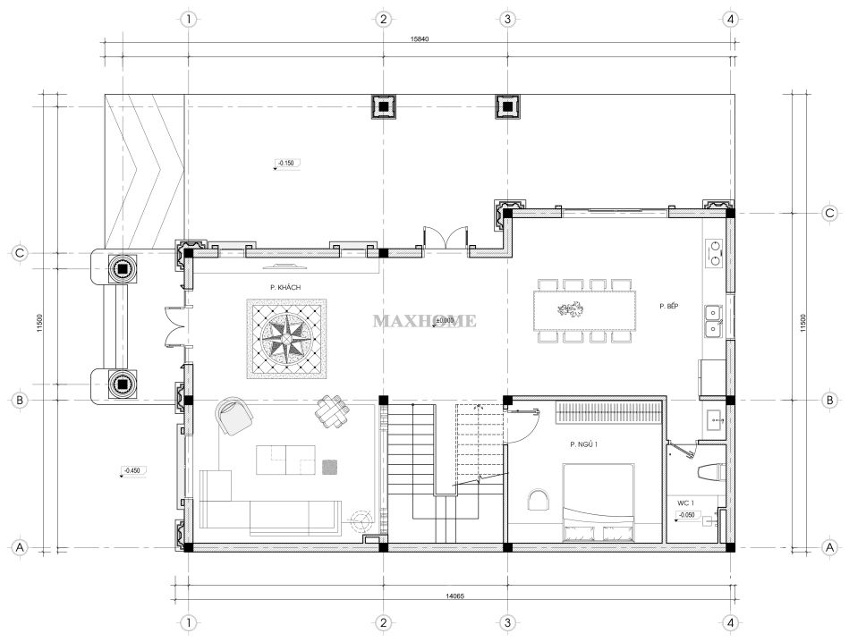
Tầng 1 được bố trí khoa học, tối ưu hóa diện tích sử dụng và mang lại cảm giác rộng thoáng. Bước qua sảnh chính là phòng khách sang trọng, rộng rãi được thiết kế ở vị trí trung tâm. Không gian này nổi bật với điểm nhấn là khu vực lát gạch hoa văn trang trí tinh tế giữa phòng rất đẳng cấp và cuốn hút. Liền kề phòng khách là phòng bếp kết hợp phòng ăn, tại đây đặt bàn ăn hình chữ nhật dài có sức chứa lên tới 8 người. Gần đó là 1 phòng ngủ được bố trí đầy đủ tiện nghi, kế bên là nhà vệ sinh chung nhỏ gọn và khu vực bồn rửa được tách riêng. Ngoài ra, khu vực bên hông nhà có gara ô tô có mái che cùng lối ra vào tách biệt giúp di chuyển dễ dàng và an toàn.

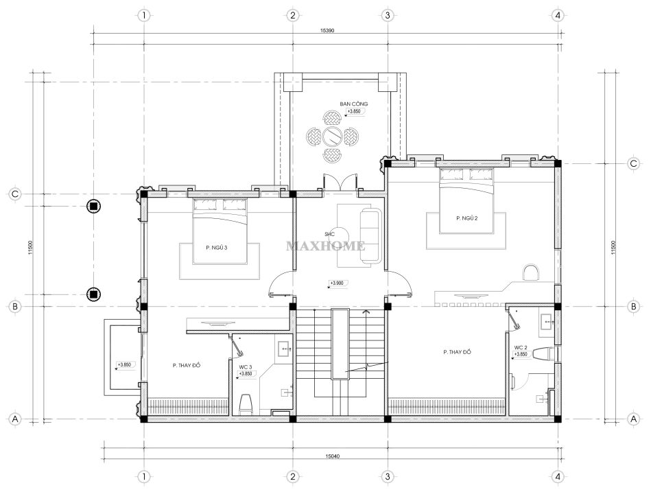
Tầng 2 là nơi dành riêng cho sinh hoạt và nghỉ ngơi của các thành viên trong gia đình anh Giáp gồm 2 phòng ngủ Master rộng lớn, mỗi phòng đều có phòng thay đồ riêng và nhà vệ sinh khép kín, thể hiện sự tiện nghi và sang trọng của căn biệt thự 3 tầng mái Thái. Ở giữa hai phòng được ngăn cách bởi phòng sinh hoạt chung mở ra ban công rộng bên ngoài.

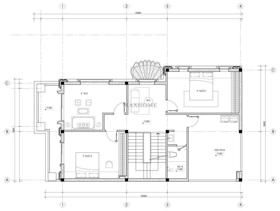
Nổi bật nhất trên tầng 3 là căn phòng thờ được đặt ở vị trí trang trọng, đặt bàn thờ hướng đúng chuẩn phong thủy với gia chủ. Không gian này thông thoáng được thiết kế yên tĩnh để thể hiện sự tôn nghiêm và lòng thành kính của gia chủ đối với tổ tiên. Bên cạnh đó là 2 phòng ngủ nhỏ gọn nhưng tiện nghi, phù hợp cho khách hoặc con cái trong gia đình anh Giáp. Tầng này còn khu vực giặt phơi được bố trí hợp lý ở phía sau giúp đảm bảo tiện lợi cho sinh hoạt hằng ngày mà vẫn giữ tính thẩm mỹ cho mặt ngoài.






