Nhà 2 tầng mái Nhật hiện đại full kính đang trở thành xu hướng được nhiều gia chủ yêu thích nhờ kiến trúc tinh tế, sang trọng và không gian sống mở thoáng đãng. Mẫu nhà này chinh phục người nhìn bằng sự cân đối trong hình khối, sự tinh tế trong phối màu và đặc biệt là giải pháp thiết kế full kính giúp ngôi nhà luôn tràn ngập ánh sáng và gió trời. Phương án thiết kế do Maxhome thực hiện cho gia đình anh Khanh tại Quảng Ninh là một ví dụ tiêu biểu, thể hiện rõ tư duy kiến trúc hiện đại gắn liền với trải nghiệm sống thực tế.
Thông tin công trình nhà 2 tầng mái Nhật hiện đại
| Chủ đầu tư: Anh Nguyễn Văn Khanh | Địa chỉ: Vành Danh, Quảng Ninh |
| Mặt tiền: 10,1m | Kích thước xây dựng: 10,1 x 12,4m |
| Số tầng: 2 tầng | Loại hình: Nhà mái Nhật hiện đại |
| Tổng diện tích: 190m² | |
Công năng:
| |
| Đơn vị thiết kế: CÔNG TY TNHH MAXHOME ARCHITECT & DESIGN | |
Nhà 2 tầng mái Nhật hiện đại full kính – Không gian mở, sang trọng chuẩn xu hướng
Ngay từ cái nhìn đầu tiên, tổng thể kiến trúc của ngôi nhà mái Nhật 2 tầng full kính gây ấn tượng bởi bố cục mạch lạc, rõ ràng. Hình khối vuông vắn, chắc chắn được xử lý khéo léo để không tạo cảm giác nặng nề. Các mảng đặc và rỗng được phân chia hợp lý, giúp mặt tiền vừa có chiều sâu, vừa tạo được điểm nhấn thị giác. Mái Nhật với độ dốc vừa phải, đua rộng ra các phía không chỉ mang lại giá trị thẩm mỹ mà còn giúp che nắng, che mưa hiệu quả, rất phù hợp với điều kiện khí hậu Việt Nam.

Màu sắc ngoại thất của ngôi nhà được lựa chọn theo phong cách hiện đại, nhẹ nhàng nhưng không đơn điệu. Tông trắng chủ đạo mang lại cảm giác tinh khôi, sạch sẽ, đồng thời làm nền hoàn hảo để tôn lên các chi tiết vật liệu khác.
Những mảng ốp gạch thẻ màu xám ghi và gỗ nhựa màu nâu trầm xuất hiện vừa đủ, tạo sự tương phản tinh tế và giúp tổng thể công trình trở nên sang trọng hơn. Đây là cách phối màu rất được ưa chuộng trong các mẫu nhà 2 tầng mái nhật hiện đại hiện nay, bởi nó không lỗi thời và dễ thích nghi với nhiều bối cảnh khu đất.

Điểm nhấn nổi bật nhất của công trình chính là thiết kế full kính được ứng dụng xuyên suốt ở hệ cửa và lan can ban công. Các khung cửa kính lớn giúp mở rộng tối đa tầm nhìn từ trong nhà ra bên ngoài, xóa nhòa ranh giới giữa không gian nội thất và thiên nhiên xung quanh. Ban công tầng 2 sử dụng lan can kính cường lực trong suốt, không chỉ đảm bảo an toàn mà còn tạo cảm giác nhẹ nhàng, thanh thoát cho mặt tiền.
Hệ cửa được thiết kế đồng bộ, sử dụng kính kết hợp với khung nhôm mang lại vẻ đẹp hiện đại. Việc bố trí cửa hợp lý giúp các không gian bên trong luôn thông thoáng, tận dụng tối đa ánh sáng tự nhiên giúp tiết kiệm năng lượng. Đây là yếu tố được nhiều gia đình đánh giá cao khi lựa chọn nhà full kính, bởi nó không chỉ đẹp mà còn mang lại giá trị sử dụng lâu dài.

Ngoại thất ngôi nhà 2 tầng mái Nhật full kính còn ghi điểm nhờ cách xử lý vật liệu tinh tế. Các mảng tường được hoàn thiện phẳng, kết hợp cùng những chi tiết ốp trang trí ở khu vực chân tường và cổng rào, tạo sự đồng nhất cho tổng thể kiến trúc.
Cổng và hàng rào được thiết kế hiện đại, thông thoáng, vừa đảm bảo an ninh, vừa không che khuất vẻ đẹp của ngôi nhà bên trong. Khu vực để xe được bố trí gọn gàng, có mái che bằng lam sắt kết hợp kính nhẹ nhàng, hài hòa với kiến trúc chung.

Không gian xanh là một yếu tố không thể thiếu trong thiết kế nhà 2 tầng mái nhật hiện đại này. Cây xanh được bố trí khéo léo ở sân trước, dọc theo tường rào và trên ban công, giúp công trình trở nên mềm mại và gần gũi hơn với thiên nhiên.
Những mảng xanh nhỏ nhưng được sắp xếp hợp lý góp phần điều hòa không khí, giảm bớt cảm giác nóng bức và mang lại sự thư giãn cho các thành viên sau những giờ làm việc căng thẳng. Đây cũng là xu hướng sống xanh đang được nhiều gia chủ yêu thích.
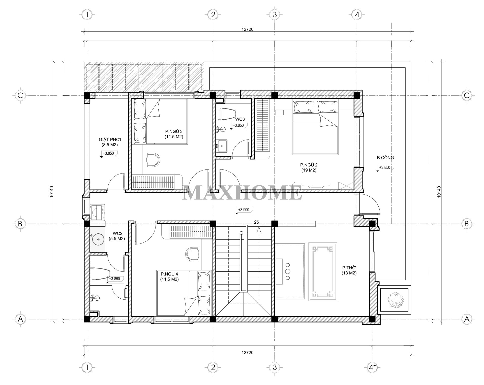
Mặt bằng công năng nhà mái Nhật hiện đại
Theo hoa tiêu chữ B trên bản vẽ định vị, ngôi nhà mái Nhật 2 tầng full kính được đặt theo hướng Đông Bắc. Công trình có kích thước 10,1 x 12,4m, tối ưu diện tích trên khu đất một cách khoa học và hợp lý. Với tổng diện tích sử dụng khoảng 190m², mang đến không gian sống rộng rãi, tiện nghi, đáp ứng hoàn hảo nhu cầu sinh hoạt của gia đình.

Tầng 1 được bố trí khoa học với phòng khách rộng 30m², là không gian trung tâm sang trọng để đón tiếp và quây quần bên gia đình. Liền kề phòng ăn diện tích 20m² và khu bếp nấu 11,5m² vừa tiện nghi vừa đảm bảo sự thoáng đãng, mang đến những bữa cơm ấm áp. Cạnh cầu thang là một phòng ngủ riêng tư 13m² cùng nhà vệ sinh chung 5,5m², tạo nên tổng thể công năng hài hòa, tối ưu cho sinh hoạt hằng ngày.

Tầng 2 được thiết kế với không gian tiện nghi và tinh tế, đáp ứng đầy đủ nhu cầu sinh hoạt cũng như giá trị tinh thần của gia chủ. Nơi đây bố trí 3 phòng ngủ rộng rãi, đảm bảo sự riêng tư và thoải mái, đi kèm nhà vệ sinh chung hiện đại.
Phòng thờ trang nghiêm đặt thẳng hướng mặt tiền ngôi nhà giúp tăng sinh khí, hút tài lộc, căn phòng này kết nối hài hòa cùng ban công thoáng đãng. Phía sau là khu giặt phơi 8,5m² sạch sẽ.






