Bản vẽ nhà 2 tầng tân cổ điển của chú Thạnh tại Hà Nội gây ấn tượng ngay từ cái nhìn đầu tiên bởi vẻ đẹp sang trọng, chỉn chu và đầy khí chất nhưng vẫn giữ được sự gần gũi, ấm áp của kiến trúc nhà ở truyền thống nhờ màu mái ngói đỏ. Hãy cùng Maxhome khám phả bản thiết kế nhà đẹp này ngay dưới đây nhé!
Thông tin nhà 2 tầng tân cổ điển mái ngói đỏ đẹp mê mẩn
| Chủ đầu tư: Chú Vũ Văn Thạnh | Địa chỉ: Chuyên Mỹ, Hà Nội |
| Mặt tiền: 9,9m | Kích thước xây dựng: 9,9 x 13,9m |
| Số tầng: 2 tầng | Loại hình: Nhà mái Nhật tân cổ điển |
| Tổng diện tích: 206m2 | |
Công năng:
| |
| Đơn vị thiết kế: CÔNG TY TNHH MAXHOME ARCHITECT & DESIGN | |
Dạo quanh mẫu nhà đẹp ở Hà Nội
Tổng thể mẫu nhà 2 tầng mang đậm phong cách tân cổ điển thể hiện rõ qua bố cục đối xứng, hình khối vuông vức và các chi tiết phào chỉ được xử lý tinh tế. Khác với kiến trúc cổ điển cầu kỳ, ngôi nhà của chú Thạnh tiết chế trang trí vừa đủ, rất thanh lịch, nhẹ nhàng và dễ nhìn.

Hệ cột trụ lớn ở mặt tiền là điểm nhấn nổi bật với thiết kế thẳng, khỏe và thiết kế đồng điệu cả hai tầng giúp công trình trông cao ráo, bề thế hơn. Những đường kẻ chỉ dọc trên cột và mảng tường tạo chiều sâu thị giác, đồng thời tôn lên vẻ sang trọng đặc trưng của phong cách tân cổ điển mà ngôi nhà hướng tới.
Mặt tiền ngôi nhà chú Thạnh được đội ngũ thiết kế Maxhome chăm chút kỹ lưỡng từ màu sắc đến vật liệu. Gam màu trắng chủ đạo giúp công trình luôn sáng, sạch và không lỗi thời theo thời gian kết hợp cùng hệ cửa gỗ lớn ở khu vực sảnh chính tạo điểm nhấn mạnh mẽ, mang lại cảm giác chắc chắn và đẳng cấp.


Điểm khiến ngôi nhà 2 tầng tân cổ điển dễ dàng chinh phục người nhìn chính là hệ mái ngói đỏ truyền thống. Sắc ngói ấm áp nổi bật trên nền tường trắng thanh thoát tạo nên sự tương phản vừa đủ để công trình trở nên cuốn hút mà không hề rối mắt. Hệ mái Nhật quen thuộc không chỉ nâng tầm thẩm mỹ tổng thể mà còn gợi lên cảm giác gần gũi, thân thuộc, rất phù hợp với kiến trúc nhà ở tại Việt Nam.


Phần mái Nhật được thiết kế gọn gàng với tỷ lệ đua mái 710mm cân đối và kết hợp cùng các chi tiết chóp mái nhỏ tạo điểm nhấn tinh tế. Nhờ đó, tổng thể công trình luôn giữ được sự hài hòa, thanh thoát khi nhìn từ mọi góc độ. Từ xa, ngôi nhà mái Nhật mang dáng vẻ của một căn biệt thự sang trọng nhưng khi lại gần vẫn toát lên sự ấm cúng, yên bình của một tổ ấm gia đình.
Không gian xung quanh được bố trí cây xanh hợp lý góp phần làm mềm các mảng khối kiến trúc và mang thiên nhiên đến gần hơn với cuộc sống thường ngày. Những hàng cây, tiểu cảnh nhỏ đan xen giúp ngôi nhà trở nên sinh động, thoáng đãng và tạo cảm giác thư giãn, dễ chịu, đúng với mong muốn an cư lâu dài của gia đình chú Thạnh.

Hệ cổng và hàng rào được thiết kế đồng bộ với kiến trúc tổng thể giúp đảm bảo tính riêng tư cần thiết mà vẫn giữ trọn vẻ sang trọng và chỉn chu. Có thể khẳng định, mẫu nhà 2 tầng tân cổ điển mái ngói đỏ của chú Thạnh tại Hà Nội là lựa chọn lý tưởng cho những gia chủ yêu thích vẻ đẹp bền vững, tinh tế và không chạy theo xu hướng ngắn hạn, đáng để bạn tham khảo cho ngôi nhà mơ ước của mình sau này.
Khảo sát và lên phương án bố trí công năng hợp lý

Công trình nhà 2 tầng tân cổ điển có 2 lối ra vào từ sảnh chính và sảnh phụ giúp không khí trong nhà được lưu thông tốt. Ngoài ra, sân nhà phía trước và bên hông đều có khoảng trống thoáng mát để xe cũng như bố trí thêm cây xanh cho căn nhà tươi mát hơn.

Từ sảnh chính 8m2 đi qua đại sảnh lớn trong nhà với sàn lát gạch hoa văn khổ lớn đón tiếp trang trọng khách quý vào nhà chơi, bên trong là phòng khách rộng 31,5m2 với bộ sofa êm ái có kệ TV sát vách tường giúp tối ưu diện tích. Sảnh phụ thì dẫn trực tiếp tới gian bếp nấu nướng và khu vực ăn uống, phía sau có nhà vệ sinh chung 5m2 rộng rãi. Tiến gần tới cầu thang là phòng ngủ master có nhà vệ sinh riêng dành cho chủ nhà.

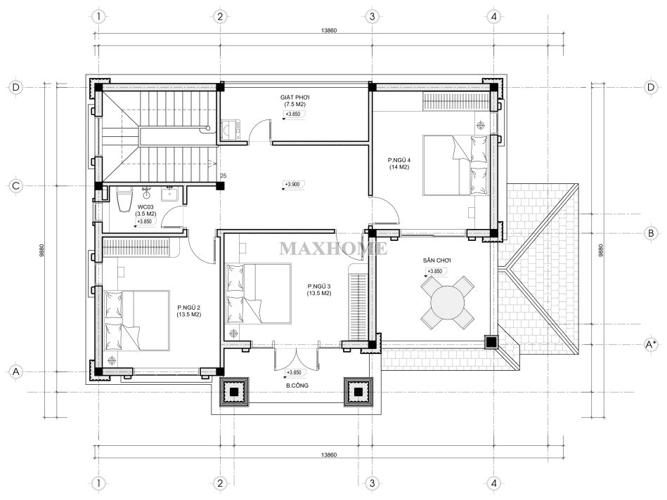
Đi lên tầng 2 có 2 phòng ngủ 03 và 04 đều sỡ hữu riêng một ban công phía trước rất thoáng. Phòng ngủ 02 tuy không có ban công riêng nhưng lại có nhà vệ sinh chung đặt bên cạnh giúp cho việc sử dụng được thuận tiện hơn. Cuối nhà là sân phơi rộng 7,5m2 thoải mái để phơi đồ và để máy giặt.







