Trong những năm gần đây, các mẫu nhà cấp 4 mái Nhật phong cách tân cổ điển ngày càng được nhiều gia chủ ở nông thôn lựa chọn nhờ sự hài hòa giữa thẩm mỹ sang trọng, công năng tiện nghi và yếu tố phong thủy vượng khí. Mẫu nhà cấp 4 mái Nhật tân cổ điển 4 phòng ngủ không chỉ gây ấn tượng bởi hình khối bề thế, đường nét tinh tế mà còn được nghiên cứu kỹ lưỡng về hướng nhà, bố cục không gian và luồng sinh khí, giúp gia chủ an cư bền vững, gia đạo êm ấm và tài lộc hanh thông.
Thông tin nhà cấp 4 mái Nhật tân cổ điển
| Chủ đầu tư: Chị Vũ Thị Nhung | Địa chỉ: Gia Hưng, Ninh Bình |
| Mặt tiền: 10,7m | Kích thước xây dựng: 10,7 x 17,3m |
| Số tầng: 1 tầng | Loại hình: Nhà mái Nhật tân cổ điển |
| Tổng diện tích: 191m2 | |
| Công năng: Phòng khách, phòng thờ, phòng bếp ăn, 4 phòng ngủ, 1 phòng tắm, 1 wc | |
| Đơn vị thiết kế: CÔNG TY TNHH MAXHOME ARCHITECT & DESIGN | |
Ngoại thất nhà cấp 4 mái Nhật tân cổ điển sang trọng
Mẫu nhà cấp 4 mái Nhật tân cổ điển 4 phòng ngủ được định hướng thiết kế nhằm mang đến một không gian sống tiện nghi, thoải mái và hài hòa với thiên nhiên xung quanh. Kiến trúc chú trọng sự cân đối trong hình khối, kết hợp hệ mái Nhật thanh thoát giúp ngôi nhà luôn mát mẻ, bền vững theo thời gian. Đây là lựa chọn phù hợp cho những gia chủ yêu thích lối sống gọn gàng, nhẹ nhàng nhưng vẫn đề cao tính thẩm mỹ, công năng và sự an yên trong không gian ở.

Hệ phào chỉ được thiết kế tinh tế, chạy dọc theo các cột vuông mặt tiền và các cột giả, tạo điểm nhấn rõ nét trên nền sơn trắng trang nhã, qua đó làm nổi bật vẻ đẹp đặc trưng của phong cách tân cổ điển. Các chi tiết trang trí được tiết chế vừa đủ, không cầu kỳ nhưng vẫn toát lên sự sang trọng và bề thế cho tổng thể công trình. Bảng màu ngoại thất được lựa chọn kỹ lưỡng, đảm bảo sự hài hòa giữa kiến trúc ngôi nhà với cảnh quan xung quanh, đồng thời giúp công trình luôn giữ được vẻ thanh lịch, bền đẹp theo thời gian.

Các mẫu nhà cấp 4 mái Nhật phong cách tân cổ điển thường ưu tiên sự tinh giản trong vật liệu ốp lát để giữ được nét thanh lịch và trang nhã cho tổng thể kiến trúc. Thay vì sử dụng quá nhiều vật liệu trang trí, phần chân công trình được ốp đá chẻ tự nhiên nhằm tăng độ bền, hạn chế bám bẩn và bảo vệ ngôi nhà trước tác động của thời tiết. Khu vực bậc tam cấp được hoàn thiện bằng đá hoặc gạch Granite cao cấp, không chỉ mang lại vẻ đẹp sang trọng mà còn đảm bảo độ chắc chắn, chống trơn trượt, góp phần nâng cao tính an toàn và giá trị thẩm mỹ cho công trình.

Mẫu nhà cấp 4 mái Nhật phong cách tân cổ điển được bố trí thêm sảnh phụ rộng rãi, thông thoáng, vừa tăng tính tiện nghi trong sinh hoạt hằng ngày vừa góp phần tạo nên vẻ sang trọng cho tổng thể công trình. Khu vực xung quanh nhà được thiết kế hệ bồn hoa chạy dọc, thi công chống thấm kỹ lưỡng, đảm bảo độ bền và an toàn trong quá trình sử dụng. Việc trồng cây xanh, hoa cảnh không chỉ giúp không gian luôn mát mẻ, trong lành mà còn tạo sự kết nối hài hòa với thiên nhiên, giảm cảm giác bê tông hóa và mang lại môi trường sống thư thái, dễ chịu cho gia đình.

Đối với các mẫu thiết kế nhà vườn, đội ngũ KTS Maxhome luôn chú trọng bố trí hệ cửa sổ bao quanh công trình nhằm tối ưu khả năng đón ánh sáng tự nhiên và lưu thông không khí. Cách sắp xếp này không chỉ giúp không gian bên trong luôn thông thoáng, tiết kiệm năng lượng chiếu sáng mà còn mở rộng tầm nhìn ra khu sân vườn xanh mát bên ngoài. Nhờ đó, ngôi nhà trở nên gần gũi hơn với thiên nhiên, mang lại cảm giác thư giãn, dễ chịu và nâng cao chất lượng sống cho gia chủ.


Đối với các mẫu thiết kế nhà vườn, đội ngũ KTS Maxhome luôn chú trọng bố trí hệ cửa sổ bao quanh công trình nhằm tối ưu khả năng đón ánh sáng tự nhiên và lưu thông không khí. Cách sắp xếp này không chỉ giúp không gian bên trong luôn thông thoáng, tiết kiệm năng lượng chiếu sáng mà còn mở rộng tầm nhìn ra khu sân vườn xanh mát bên ngoài. Nhờ đó, ngôi nhà trở nên gần gũi hơn với thiên nhiên, mang lại cảm giác thư giãn, dễ chịu và nâng cao chất lượng sống cho gia chủ.

Khám phá công năng nhà cấp 4 mái Nhật có 4 phòng ngủ
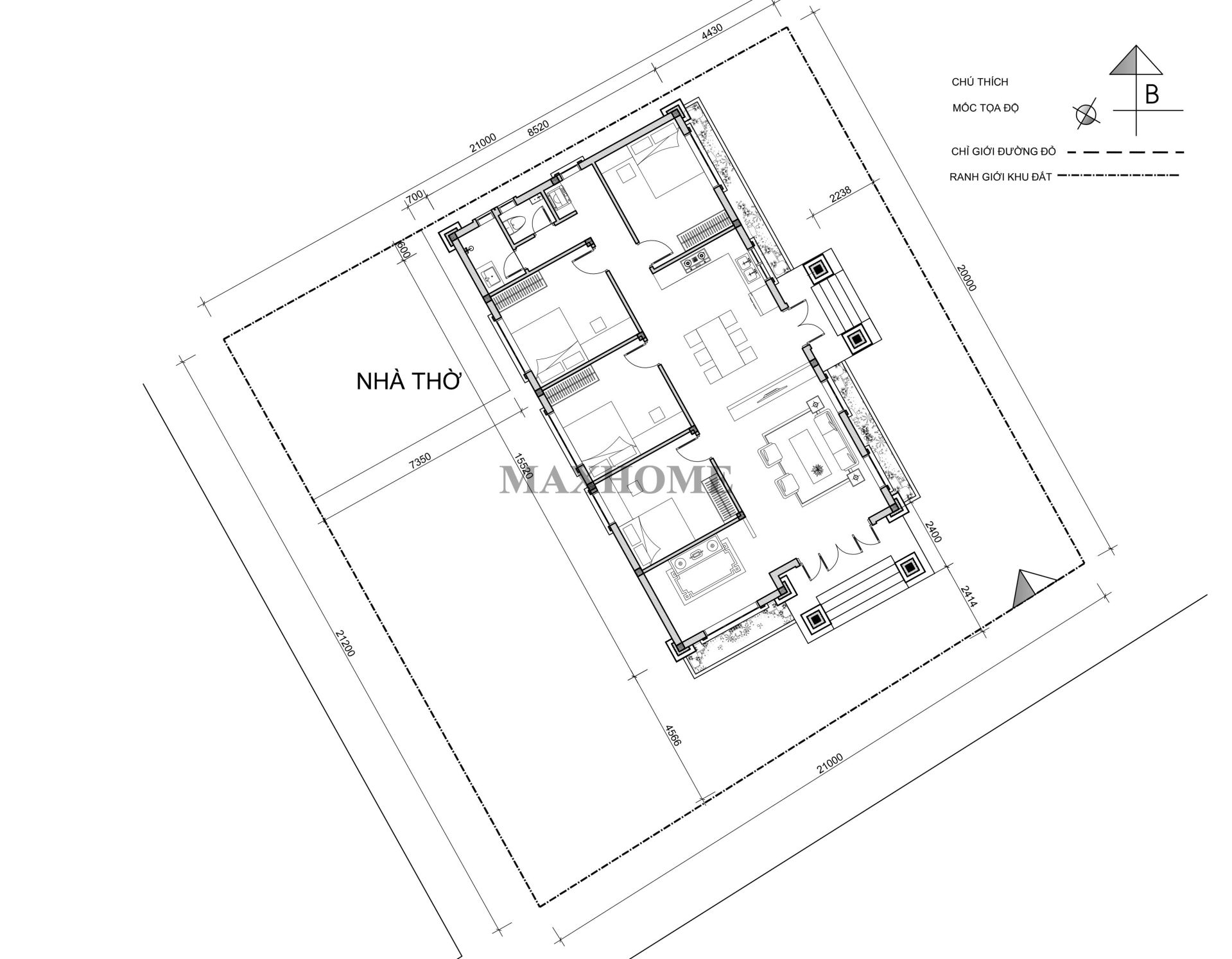
Dựa trên bản vẽ mặt bằng định vị, có thể thấy rõ quy mô khuôn viên và vị trí xây dựng của ngôi nhà trên lô đất thực tế. Công trình được triển khai với kích thước 10,7 x 17,3m, bố trí gọn gàng và khoa học, phù hợp với điều kiện sử dụng cũng như cảnh quan xung quanh. Tổng diện tích sử dụng của ngôi nhà vào khoảng 111m², đáp ứng tốt nhu cầu sinh hoạt của gia đình, đồng thời vẫn đảm bảo sự thông thoáng, thuận tiện trong quá trình di chuyển và bố trí công năng.

Từ sảnh chính bước vào là không gian phòng khách được bố trí rộng rãi, thông thoáng, đóng vai trò trung tâm kết nối các khu vực sinh hoạt chung của ngôi nhà. Liền kề phía trong là phòng bếp kết hợp phòng ăn, sắp xếp khoa học, thuận tiện cho quá trình sử dụng và có lối đi ra sảnh phụ bên hông, giúp tăng khả năng thông gió và lưu thông không khí.
Khu vực phòng thờ được đặt gần phòng khách, đảm bảo sự trang nghiêm, tôn kính nhưng vẫn hài hòa với tổng thể không gian chung. Ngôi nhà cấp 4 được thiết kế 4 phòng ngủ với diện tích hợp lý, phù hợp cho gia đình nhiều thế hệ, tất cả cùng sử dụng một khu vệ sinh và phòng tắm chung bố trí ở cuối nhà, vừa thuận tiện sinh hoạt vừa đảm bảo sự riêng tư và gọn gàng cho toàn bộ mặt bằng.









