Nhà mái Thái 1 tầng 1 lửng có gara ô tô đang là lựa chọn được nhiều gia đình tại An Giang quan tâm nhờ sự kết hợp hài hòa giữa thẩm mỹ kiến trúc và công năng sử dụng tiện nghi. Sở hữu hình khối cân đối, hệ mái Thái cao ráo cùng cách bố trí không gian khoa học, mẫu nhà đẹp này không chỉ mang lại vẻ ngoài bề thế, sang trọng mà còn đáp ứng đầy đủ nhu cầu sinh hoạt cho gia đình hiện đại.
Thông tin nhà mái Thái 1 tầng 1 lửng
| Chủ đầu tư: Chị Lê Thị Bích Tuyền | Địa chỉ: Vĩnh Điều, An Giang |
| Mặt tiền: 7,9m | Kích thước xây dựng: 7,9 x 21,8m |
| Số tầng: 2 | Loại hình: Nhà mái Thái tân cổ điển |
| Tổng diện tích: 224m2 | |
Công năng:
| |
| Đơn vị thiết kế: CÔNG TY TNHH MAXHOME ARCHITECT & DESIGN | |
Ngoại thất nhà mái Thái 1 tầng 1 lửng có gara ô tô
Công trình dưới đây được đánh giá là một mẫu nhà mái Thái 1 tầng 1 lửng khá đặc biệt, nổi bật nhờ sự kết hợp hài hòa giữa kiến trúc truyền thống và nhu cầu sử dụng hiện đại. Việc tích hợp gara ô tô ngay trong tổng thể ngôi nhà không chỉ mang lại sự thuận tiện trong sinh hoạt mà còn góp phần tạo nên dáng vẻ cao ráo, bề thế và cân đối cho công trình. Hệ mái Thái được thiết kế vươn cao, kết hợp cùng hình khối chắc chắn giúp ngôi nhà trở nên nổi bật, sang trọng và phù hợp với điều kiện khí hậu cũng như thói quen sinh hoạt của gia đình Việt.

Mẫu nhà mái Thái 1 tầng 1 lửng được thiết kế theo phong cách tân cổ điển, thể hiện rõ nét qua các chi tiết kiến trúc tinh tế và cân đối. Hệ vòm cong mềm mại được sử dụng khéo léo, tạo điểm nhấn sang trọng cho mặt tiền. Tại tầng 1, cột chính được thiết kế dạng cột vuông chắc chắn, mang lại cảm giác vững chãi và bề thế, trong khi đó, lên tầng 2, hệ cột tròn được xử lý mềm mại hơn, góp phần tạo sự thanh thoát cho tổng thể công trình. Các đường phào chỉ trang trí được bố trí chạy quanh thân cột một cách tinh giản nhưng hiệu quả, vừa tôn lên vẻ đẹp tân cổ điển đặc trưng, vừa giúp công trình giữ được sự hài hòa và giá trị thẩm mỹ lâu dài.

Công trình nhà mái Thái tầng lửng sử dụng hệ bậc ngũ cấp được thiết kế cao ráo, cân đối và phù hợp với yếu tố phong thủy, giúp tạo thế nhà vững chãi và thuận lợi trong quá trình sử dụng. Mỗi bậc tam cấp được ốp đá granite màu đen vân mây trắng, vừa tăng tính thẩm mỹ sang trọng vừa đảm bảo độ bền, khả năng chống trơn trượt và dễ vệ sinh. Phần chân tường xung quanh được ốp đá chẻ tự nhiên, có tác dụng bảo vệ công trình khỏi các tác động trực tiếp của thời tiết như mưa nắng, ẩm mốc, đồng thời góp phần tạo điểm nhấn chắc chắn, hài hòa cho tổng thể kiến trúc.

Công trình nhà mái Thái 1 tầng 1 lửng được thiết kế với 3 lối tiếp cận thông thoáng, giúp việc di chuyển trở nên thuận tiện và tăng cường khả năng thông gió, lấy sáng tự nhiên cho toàn bộ không gian bên trong. Toàn bộ hệ cửa của ngôi nhà đều sử dụng nhôm hệ Xingfa cao cấp kết hợp kính cường lực, không chỉ mang lại vẻ đẹp hiện đại, sang trọng mà còn đảm bảo độ bền, khả năng cách âm, cách nhiệt tốt và an toàn trong quá trình sử dụng.

Ngôi nhà mái Thái 1 tầng 1 lửng được thiết kế chừa lại một khoảng không gian bên hông hợp lý, nhằm tạo độ thoáng và tăng khả năng thông gió, lấy sáng tự nhiên cho toàn bộ công trình. Khoảng thoáng này không chỉ giúp các không gian bên trong luôn mát mẻ, hạn chế ẩm thấp mà còn tạo điều kiện thuận lợi cho việc bố trí lối đi hoặc trồng cây xanh. Giải pháp thiết kế này góp phần nâng cao chất lượng không gian sống và hoàn thiện tính tiện nghi cho ngôi nhà.

Ngôi nhà 1 tầng 1 lửng được thiết kế với hệ mái Thái đặc trưng, sử dụng các lớp ngói xếp chồng và giao nhau một cách khoa học, tạo nên hình khối mái cao ráo, cân đối và bề thế. Kiểu mái này không chỉ giúp công trình tăng giá trị thẩm mỹ mà còn phát huy hiệu quả trong việc thoát nước mưa nhanh, hạn chế ứ đọng và chống nóng tốt. Đồng thời, hệ mái Thái còn phù hợp với điều kiện khí hậu nhiệt đới, góp phần mang lại không gian sống mát mẻ, bền vững và lâu dài cho gia đình.

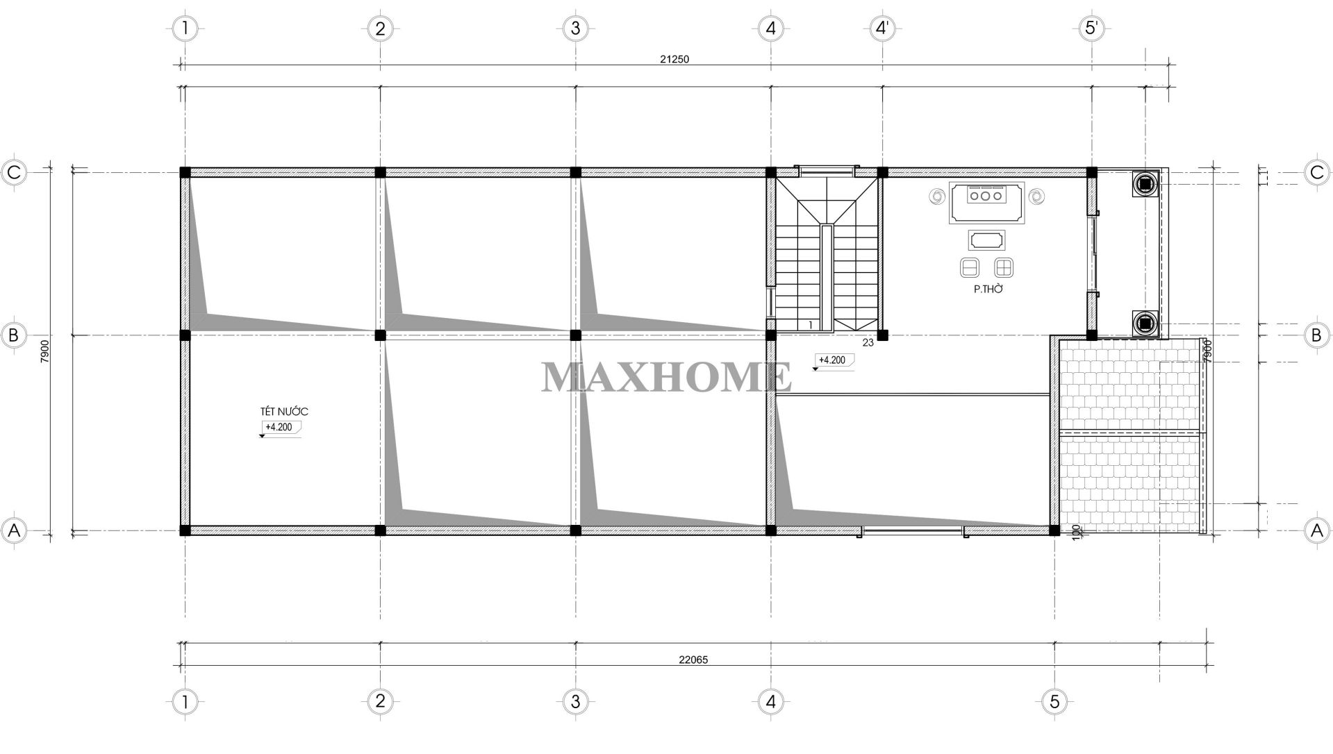
Khám phá công năng nhà mái Thái 1 tầng 1 lửng
Dựa trên bản vẽ định vị mặt bằng, công trình nhà 2 tầng mái Thái được triển khai trên khu đất có kích thước 7,9 x 21,8m, với tổng diện tích sử dụng khoảng 224m². Bố trí không gian sinh hoạt một cách khoa học, đảm bảo sự thông thoáng, thuận tiện cho di chuyển giữa các khu vực chức năng, đồng thời đáp ứng tốt nhu cầu sử dụng của gia đình nhiều thế hệ. Thiết kế còn tạo điều kiện tối ưu ánh sáng và thông gió tự nhiên, góp phần nâng cao chất lượng sống cho gia chủ.

Mẫu nhà 2 tầng mái Thái được bố trí khu vực gara riêng biệt, đảm bảo sự thuận tiện trong sinh hoạt và giữ cho không gian bên trong luôn gọn gàng. Từ cửa chính bước vào là phòng khách rộng rãi, thoáng đãng, đóng vai trò là không gian sinh hoạt chung và đón tiếp khách. Liền kề phía sau là khu bếp – phòng ăn được thiết kế thông minh với lối đi ra sảnh phụ bên hông, giúp tăng cường thông gió, hạn chế mùi và tạo cảm giác thoải mái khi nấu nướng.
Bên cạnh đó, tầng 1 còn được sắp xếp 3 phòng ngủ đặt liền kề nhau, phù hợp cho gia đình đông thành viên, đặc biệt là người lớn tuổi và trẻ nhỏ, vừa đảm bảo sự riêng tư vừa thuận lợi trong quá trình sinh hoạt. Cuối nhà bố trí một nhà vệ sinh chung, thuận tiện cho việc sử dụng hằng ngày.

Tầng lửng được thiết kế theo dạng thông tầng, tạo cảm giác cao ráo và thoáng đãng cho toàn bộ không gian. Khu vực này bố trí phòng thờ trang nghiêm, tách biệt vừa đủ với các không gian sinh hoạt chung, đảm bảo sự yên tĩnh và tính linh thiêng. Cách sắp xếp này không chỉ phù hợp với phong thủy nhà ở truyền thống mà còn giúp gia chủ thuận tiện trong việc thờ cúng, đồng thời tăng chiều sâu thẩm mỹ cho tổng thể kiến trúc ngôi nhà.








