Trong bối cảnh quỹ đất đô thị ngày càng thu hẹp, những mẫu nhà phố hiện đại mặt tiền 5m đang trở thành lựa chọn ưu tiên của nhiều gia đình trẻ. Không chỉ giải quyết bài toán diện tích hạn chế, kiểu nhà này còn đòi hỏi tư duy thiết kế linh hoạt để đảm bảo thẩm mỹ, công năng và sự thông thoáng. Nắm bắt xu hướng đó, Maxhome mang đến giải pháp thiết kế nhà phố hiện đại với hình khối tinh gọn, đường nét mạnh mẽ và cách tổ chức không gian khoa học, giúp mặt tiền 5m vẫn nổi bật, tiện nghi và phù hợp nhịp sống đô thị hiện đại.
Thông tin nhà phố hiện đại mặt tiền 5m
| Chủ đầu tư: Chị Lành Thị Vấn | Địa chỉ: Ea Knuếc, Đắk Lắk |
| Mặt tiền: 4m | Kích thước xây dựng: 5 x 17,6m |
| Số tầng: 3 | Loại hình: Nhà phố hiện đại |
| Tổng diện tích: 191m2 | |
Công năng:
| |
| Đơn vị thiết kế: CÔNG TY TNHH MAXHOME ARCHITECT & DESIGN | |
Ngoại thất nhà phố 3 tầng hiện đại
Trên khuôn viên đất có mặt tiền không quá rộng, đội ngũ kiến trúc sư Maxhome đã khéo léo đưa ra phương án thiết kế nhà phố hiện đại 3 tầng với bố cục khoa học và hình khối tinh gọn. Giải pháp tổ chức không gian theo chiều cao giúp tối ưu diện tích sử dụng, đồng thời đảm bảo đầy đủ công năng sinh hoạt cho gia đình. Mỗi khu vực chức năng được sắp xếp hợp lý, thông thoáng, tận dụng tối đa ánh sáng và gió tự nhiên, mang đến sự tiện nghi, thoải mái và phù hợp với nhịp sống đô thị hiện đại.

Kiến trúc của mẫu nhà phố hiện đại mặt tiền 5m gây ấn tượng với các đường nét vuông vắn, hình khối rõ ràng, toát lên vẻ đẹp trẻ trung và thời thượng. Gam màu trắng được lựa chọn làm tông màu chủ đạo, giúp tổng thể công trình trở nên sáng thoáng và mở rộng cảm giác không gian cho khu đất có mặt tiền hẹp. Điểm nhấn vật liệu được xử lý tinh tế khi khu vực tầng 1 sử dụng gạch granite ốp mặt tiền vừa tăng tính thẩm mỹ, vừa nâng cao độ bền và khả năng chống bám bẩn. Bên cạnh đó, hệ trần các tầng 1, 2 và 3 được ốp gỗ nhựa cao cấp, không chỉ tạo cảm giác ấm cúng, sang trọng mà còn phù hợp với điều kiện khí hậu, đảm bảo độ bền lâu dài cho công trình.

Điểm nhấn nổi bật của mẫu nhà phố hiện đại này nằm ở khu vực tầng 2, nơi được lắp đặt hệ mái lam sắt sơn tĩnh điện với thiết kế đua rộng ra phía trước. Giải pháp này không chỉ giúp hạn chế nắng gắt và mưa hắt trực tiếp vào không gian bên trong, mà còn góp phần tạo chiều sâu cho mặt tiền, tăng tính thẩm mỹ và sự khỏe khoắn cho tổng thể kiến trúc. Đồng thời, mái lam còn hỗ trợ che chắn ban công, cải thiện vi khí hậu và nâng cao độ bền cho công trình trong điều kiện thời tiết đô thị.

Khu vực tầng 3 của mẫu nhà phố hiện đại được bố trí ban công kết hợp sân chơi rộng rãi, mang đến không gian thư giãn thoáng đãng cho các thành viên trong gia đình. Tại đây, kiến trúc sư khéo léo thiết kế bồn hoa và mảng xanh, giúp gia chủ dễ dàng trồng cây cảnh, tạo điểm nhấn sinh động cho mặt tiền. Giải pháp đưa thiên nhiên vào không gian sống không chỉ giúp giảm cảm giác bê tông hóa đô thị, mà còn cải thiện vi khí hậu, tăng sự thông thoáng và mang lại cảm giác thư thái, cân bằng cho tổng thể công trình.

Một trong những điểm ấn tượng của mẫu nhà phố hiện đại 3 tầng này là khu vực gara ô tô được bố trí về cuối nhà, tiếp cận trực tiếp với mặt ngõ, giúp việc di chuyển và quay đầu xe trở nên thuận tiện hơn. Lợi thế bên hông nhà được kiến trúc sư khai thác tối đa bằng hệ cửa sổ bố trí xuyên suốt, mang lại sự thông thoáng và tăng cường khả năng lấy sáng tự nhiên cho không gian bên trong. Toàn bộ hệ cửa sử dụng nhôm Xingfa cao cấp kết hợp kính cường lực, không chỉ đảm bảo độ bền, an toàn mà còn góp phần tạo nên vẻ đẹp hiện đại, tinh tế và nâng cao chất lượng không gian sống.

Mẫu nhà phố 3 tầng được thiết kế hệ thống cổng và tường bao theo phong cách hiện đại, tối giản, ưu tiên sự gọn gàng và đồng bộ với tổng thể kiến trúc. Phần tường bao xây bằng bê tông kiên cố, đảm bảo an ninh và độ bền lâu dài theo thời gian. Cổng chính sử dụng sắt hộp sơn tĩnh điện cao cấp, kết hợp các nan giả vân gỗ xen kẽ tinh tế, vừa tạo điểm nhấn thẩm mỹ ấm áp, vừa mang lại cảm giác sang trọng, hiện đại.

Khám phá công năng nhà phố 3 tầng
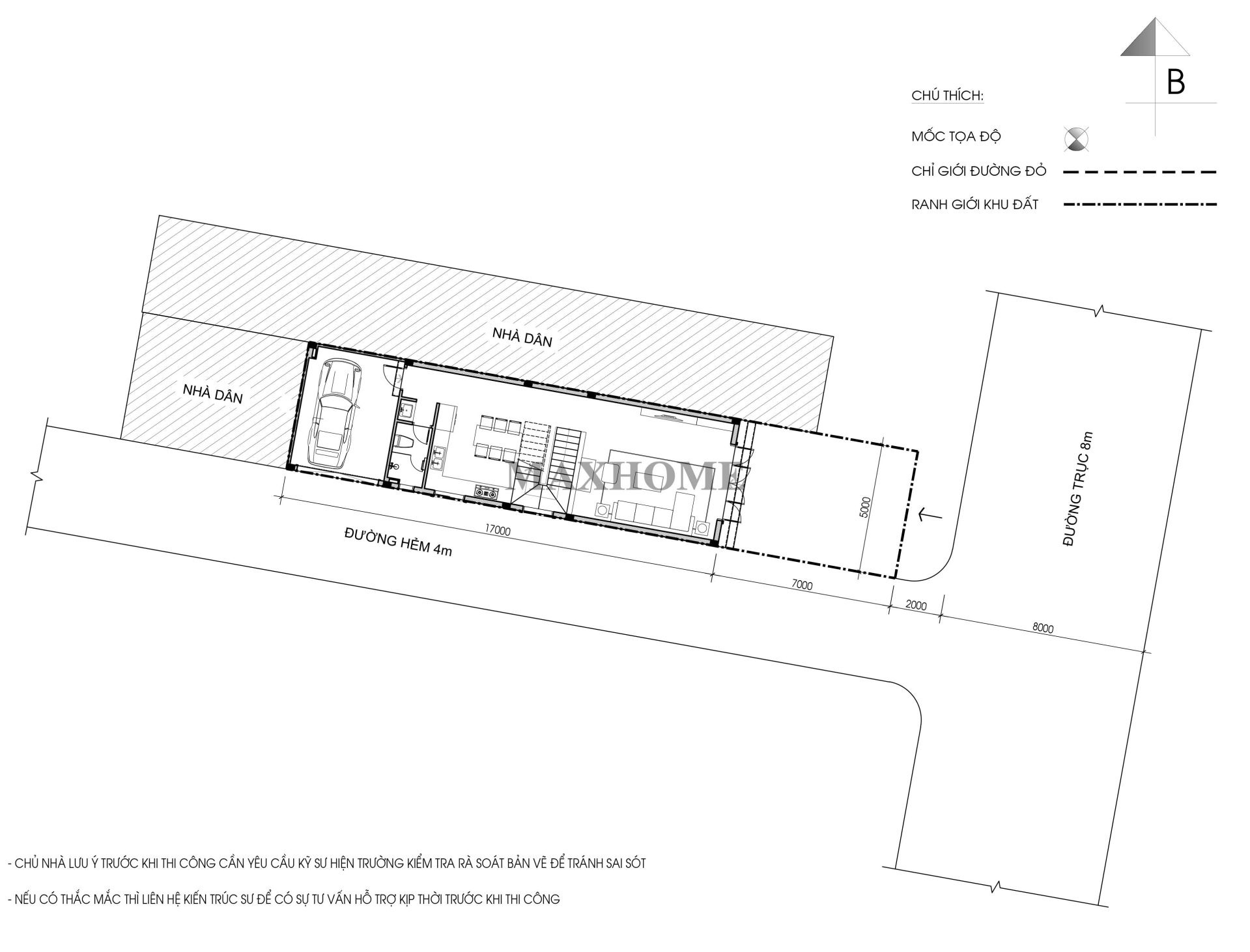
Thông qua mặt bằng định vị, có thể thấy mẫu nhà phố hiện đại sở hữu vị trí vô cùng đắc địa khi mặt tiền tiếp giáp trực tiếp với tuyến đường trục chính, thuận lợi cho việc di chuyển và giao thương. Bên hông công trình giáp mặt ngõ rộng 4m, tạo lợi thế lớn trong việc lấy sáng, thông gió và mở rộng tầm nhìn. Ngôi nhà được xây dựng trên khu đất có kích thước 5 x 17,6m, với cách tổ chức không gian hợp lý theo chiều cao, mang lại tổng diện tích sử dụng khoảng 217m².

Từ cửa chính bước vào là không gian phòng khách được bố trí liền mạch, kết hợp bàn thờ treo gọn gàng, vừa đảm bảo yếu tố trang nghiêm vừa tiết kiệm diện tích, phù hợp với đặc thù nhà phố. Tiến sâu vào bên trong là khu vực bếp và phòng ăn, được sắp xếp cạnh lõi cầu thang giúp tối ưu diện tích và thuận tiện cho sinh hoạt hằng ngày. Ngay bên cạnh là nhà vệ sinh chung, bố trí kín đáo nhưng vẫn dễ tiếp cận. Cuối nhà là khu vực gara để xe, được thiết kế tách biệt, đảm bảo an toàn, thông thoáng và không ảnh hưởng đến không gian sinh hoạt chung của gia đình.

Tầng 2 được bố trí 4 phòng ngủ liền kề, đáp ứng tốt nhu cầu nghỉ ngơi cho các thành viên trong gia đình. Trong đó, phòng ngủ số 04 được ưu tiên thiết kế nhà vệ sinh khép kín, mang lại sự riêng tư và tiện nghi trong quá trình sử dụng. Ba phòng ngủ còn lại sử dụng nhà vệ sinh chung đặt ở cuối nhà, bố trí hợp lý, thuận tiện di chuyển mà vẫn đảm bảo sự tách biệt cần thiết. Cách sắp xếp công năng này giúp tối ưu diện tích, tạo sự thông thoáng và phù hợp với mô hình nhà phố hiện đại có nhiều phòng ngủ.

Tầng 3 được bố trí chủ yếu cho các không gian sân chơi và sân phơi với diện tích rộng rãi, đáp ứng tốt nhu cầu sinh hoạt hằng ngày của gia đình. Khu vực sân phơi được sắp xếp khoa học, thông thoáng, thuận tiện cho việc phơi quần áo và đón nắng gió tự nhiên. Bên cạnh đó, sân chơi ngoài trời được bài trí bộ bàn ghế thư giãn, tạo không gian lý tưởng để các thành viên nghỉ ngơi, trò chuyện hoặc tận hưởng không khí trong lành, góp phần nâng cao chất lượng sống trong môi trường đô thị.








