Ngôi nhà mái Nhật ngói đỏ hiện đại đang trở thành xu hướng nổi bật trong thiết kế nhà ở những năm gần đây, nhờ vẻ đẹp hài hòa giữa truyền thống và hiện đại. Với mẫu nhà đẹp này gây ấn tượng bởi kiến trúc độc đáo, màu ngói đỏ nổi bật và bố trí công năng tiện nghi đáp ứng nhu cầu sinh hoạt của gia đình Việt. Sự kết hợp tinh tế giữa hình khối vững chắc, mái Nhật thanh thoát và phong cách thiết kế hiện đại đã mang đến một không gian sống sang trọng, ấm cúng và đầy tính thẩm mỹ.
Thông tin nhà mái Nhật ngói đỏ sang trọng
| Chủ đầu tư: Chú Nguyễn Thanh Còn | Địa chỉ: Tân Thới Hiệp. TPHCM |
| Mặt tiền: 10,5m | Kích thước xây dựng: 10,5 x 18m |
| Số tầng: 2 tầng | Loại hình: Nhà mái Nhật hiện đại |
| Tổng diện tích: 250m2 | |
Công năng:
| |
| Đơn vị thiết kế: CÔNG TY TNHH MAXHOME ARCHITECT & DESIGN | |
Ngoại thất nhà mái Nhật đầy đủ tiện nghi
Thông thường, khi thiết kế và xây dựng nhà ở, nhiều gia chủ khá e ngại việc sử dụng các tone màu nóng như đỏ hay vàng vì lo ngại cảm giác chói mắt. Tuy nhiên, nếu biết cách phối hợp màu sắc một cách tinh tế, những gam màu này lại có thể tạo nên vẻ đẹp ấm áp, nổi bật và đầy sự sang trọng cho công trình. Tiêu biểu là mẫu nhà 2 tầng mái Nhật do Maxhome thiết kế cho gia đình chú Còn tại Tân Thới Hiệp, TP.HCM có màu đỏ của ngói và vàng diện tường được kết hợp hài hòa, mang đến tổng thể kiến trúc thu hút và hiện đại.

Mẫu nhà mái Nhật ngói đỏ được thiết kế theo phong cách hiện đại với những khối kiến trúc vuông vức, khỏe khoắn, hoàn toàn không sử dụng các chi tiết phào chỉ cầu kỳ. Công trình trở nên nổi bật hơn nhờ sự kết hợp tinh tế của các vật liệu trang trí hiện đại như gạch thẻ, gạch ốp chân tường và đá ốp dưới chân cột chính. Những chất liệu này không chỉ tăng tính thẩm mỹ mà còn giúp bảo vệ bề mặt công trình, mang lại vẻ đẹp bền vững theo thời gian.

Để tăng vẻ bề thế và hoành tráng cho mẫu nhà mái Nhật ngói đỏ, kiến trúc sư đã bố trí hệ bậc ngũ cấp, giúp công trình trở nên cao ráo và nổi bật hơn so với mặt đường chính. Toàn bộ phần chân tường được ốp đá chẻ tự nhiên, vừa tăng tính thẩm mỹ, vừa mang lại khả năng chống thấm hiệu quả và thuận tiện trong quá trình vệ sinh, đảm bảo độ bền cho công trình theo thời gian.

Từ góc nhìn trên cao, mẫu nhà mái Nhật ngói đỏ hiện lên vô cùng nổi bật với thiết kế sảnh chính được đua ra đầy ấn tượng. Phần mái phía trên được lợp ngói chỉnh chu, tạo điểm nhấn khác biệt so với nhiều công trình cùng loại. Sự kết hợp giữa hình khối vững chắc và hệ mái Nhật giật cấp giúp tổng thể ngôi nhà trở nên bề thế, sang trọng và thu hút ngay từ cái nhìn đầu tiên.
Ngoài ra, trong quá trình triển khai bản vẽ, các KTS Maxhome đã tính toán kỹ lưỡng và thiết kế thêm những khoảng mái đua tại vị trí giao giữa tầng 1 và tầng 2. Các mái đua này giúp che chắn hiệu quả cho hệ cửa sổ, hạn chế tối đa tình trạng nước mưa hắt trực tiếp vào bên trong, đồng thời tăng tính thẩm mỹ và độ bền cho công trình.

Khám phá công năng nhà mái Nhật 5 phòng ngủ
Sau quá trình triển khai ý tưởng, Maxhome không chỉ tập trung vào các giải pháp kiến trúc hiện đại mà còn xem xét kỹ lưỡng yếu tố phong thủy dựa trên tuổi và bản mệnh của gia chủ. Nhờ đó, phương án thiết kế được đề xuất vừa đảm bảo thẩm mỹ, tối ưu công năng sử dụng, vừa góp phần thu hút vượng khí, mang lại may mắn và tài lộc cho toàn bộ gia đình.
Đối với công trình nhà mái Nhật ngói đỏ này, gia chủ sở hữu khuôn viên đất khá rộng rãi. Tuy nhiên, Maxhome đã nghiên cứu và quy hoạch diện tích xây dựng phù hợp, với kích thước 10,5 x 18m, đảm bảo không gian thông thoáng, hài hòa với tổng thể khu đất. Tổng diện tích sử dụng của ngôi nhà đạt khoảng 250m², đáp ứng đầy đủ nhu cầu sinh hoạt của gia đình mà vẫn tối ưu được khoảng sân vườn, lối đi và các mảng xanh xung quanh.

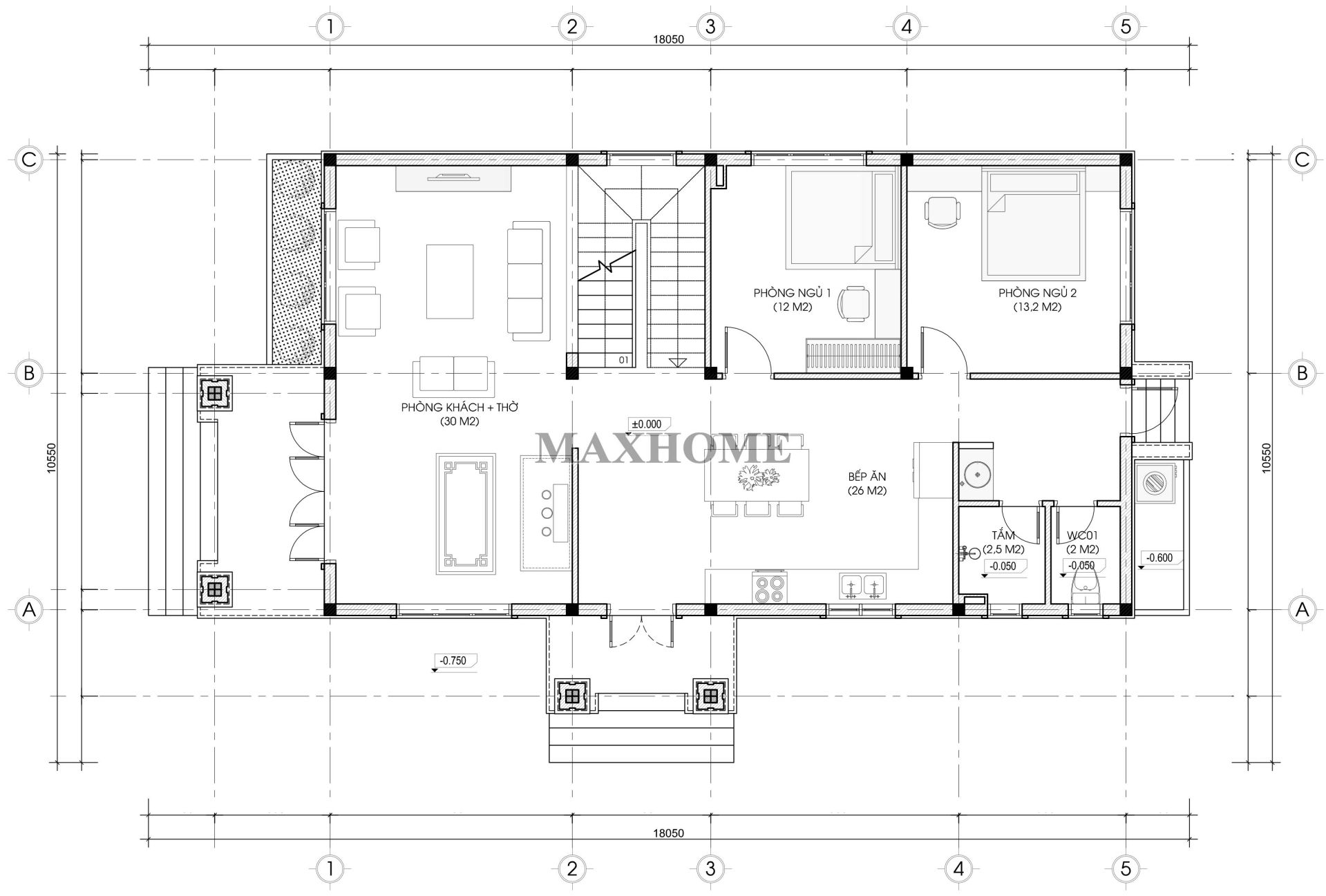
Từ cửa chính bước vào là không gian phòng thờ được bố trí trang trọng, hướng trực tiếp ra sảnh chính để đón sinh khí và đảm bảo yếu tố phong thủy. Bên phải là phòng khách rộng rãi, là nơi tiếp đón khách và sinh hoạt chung của gia đình. Tiếp nối không gian này là phòng bếp ăn, được thiết kế thông thoáng và thuận tiện khi kết nối với sảnh phụ, giúp việc di chuyển và nấu nướng trở nên thuận lợi hơn.
Khu vực cuối nhà là phòng tắm và một nhà vệ sinh chung, đảm bảo phục vụ đầy đủ nhu cầu sinh hoạt hằng ngày. Tầng 1 còn được bố trí thêm hai phòng ngủ liền kề nhau, mang lại sự tiện nghi cho các thành viên trong gia đình, đặc biệt phù hợp cho gia đình có người lớn tuổi hoặc trẻ nhỏ.

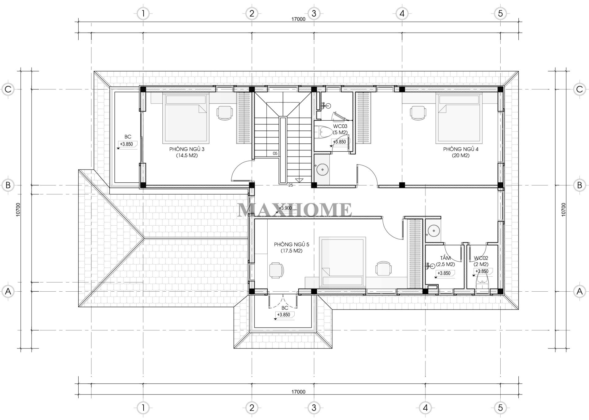
Tầng 2 được bố trí 3 phòng ngủ với không gian sinh hoạt tiện nghi và hợp lý. Trong đó, phòng ngủ 03 và phòng ngủ 05 đều có lối cửa mở ra ban công riêng, giúp đón ánh sáng và gió tự nhiên, tạo cảm giác thoáng mát. Hai phòng này dùng chung một nhà vệ sinh và phòng tắm được đặt gọn gàng ở cuối hành lang, thuận tiện cho việc sử dụng hằng ngày.
Phòng ngủ 04 được thiết kế khép kín với nhà vệ sinh riêng, mang đến sự riêng tư tối đa cho gia chủ hoặc khách lưu trú. Không gian trong phòng cũng được tối ưu để đảm bảo sự thoải mái và tiện nghi trong quá trình sinh hoạt.






