Lâu rồi Maxhome mới giới thiệu một mẫu nhà phố 2 tầng tân cổ ghi dấu mạnh mẽ trong giới yêu xây dựng. Đây không chỉ là bước trở lại sau thời gian dài ấp ủ ý tưởng mà còn là lời khẳng định về năng lực thiết kế của Maxhome khi tiếp tục chinh phục dòng kiến trúc tân cổ điển vốn đòi hỏi độ chính xác cao. Mẫu nhà phố 2 tầng tân cổ đẹp mắt này thuộc về gia đình anh Hậu ở Sài Gòn và được thiết kế dựa trên cảm hứng từ những công trình sang trọng.
Thông tin phố 2 tầng tân cổ sở hữu kiến trúc sang trọng
| Chủ đầu tư: Anh Trần Hiền Hậu | Địa chỉ: Long Điền, TP Hồ Chí Minh |
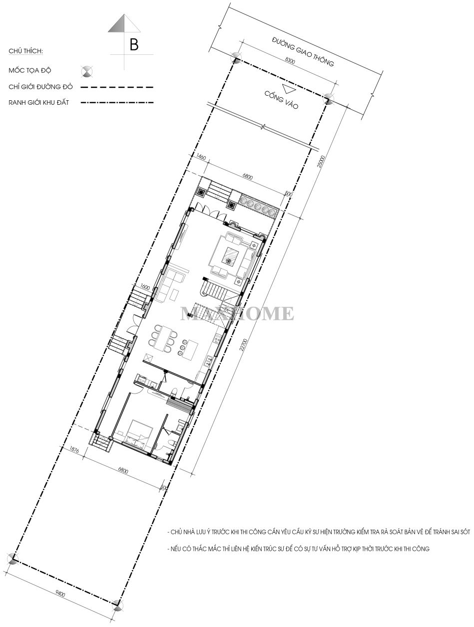
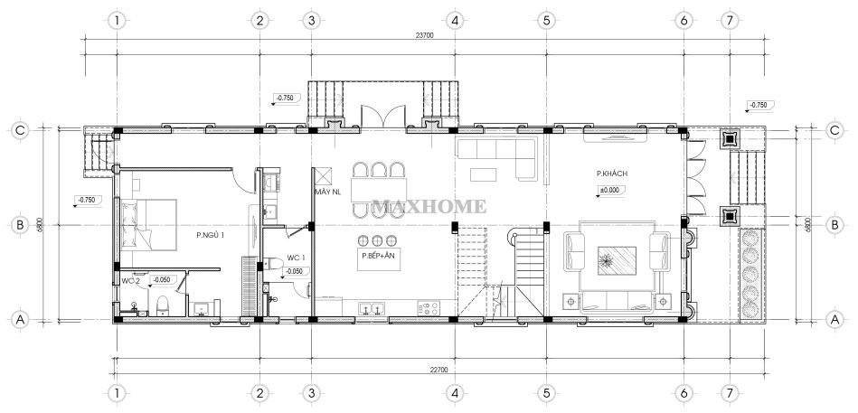
| Mặt tiền: 6,8m | Kích thước xây dựng: 6,8 x 23,7m |
| Số tầng: 2 tầng | Loại hình: Nhà phố mái Thái tân cổ điển |
| Tổng diện tích: 278m2 | |
Công năng:
| |
| Đơn vị thiết kế: CÔNG TY TNHH MAXHOME ARCHITECT & DESIGN | |
Đẹp ngỡ ngàng với thiết kế nhà phố giống nhà vườn sang trọng
Nhìn vào là cảm nhận ngay vẻ bề Hậu, tinh tế và đầy khí chất của một ngôi nhà phố 2 tầng tân cổ được chăm chút tỉ mỉ từ ngoại thất cho đến từng đường gờ phào. Ngay từ cái nhìn đầu tiên, gam màu trắng sáng được chọn làm chủ đạo giúp toàn bộ hình khối công trình trở nên thanh thoát. Màu trắng cũng là màu thể hiện sự bền vững theo thời gian và hợp với nét đẹp tân cổ điển mà gia đình anh Hậu mong muốn.
Trên nền trắng đó, những mảng sơn giả đá ở vị trí cột nhà và phần mái vòm trang trí tạo ra điểm nhấn nhẹ mà sang giúp mặt tiền không bị đơn điệu. Nhờ những chi tiết này mà mẫu nhà đẹp hiện lên vừa hiện đại vừa giữ được thần thái cổ kính đúng tinh thần kiến trúc tân cổ điển.

Sự kết hợp màu sắc cũng là điểm đáng khen khi đội ngũ thiết kế Maxhome đã khéo léo đưa màu đen của khung cửa nhôm kính và lan can ban công sắt vào tổng thể. Màu đen nổi bật trên nền trắng tạo hiệu ứng thị giác mạnh để làm rõ đường nét kiến trúc và tăng chiều sâu cho mặt đứng. Không chỉ đẹp mà các hệ cửa kính còn mang đến nhiều ánh sáng tự nhiên cho không gian bên trong. Cảm giác nhìn từ ngoài vào rất thoáng, vừa đủ lịch sự mà không kín bưng như các mẫu nhà phố truyền thống, nhờ vậy mà công trình vẫn giữ được sự nhẹ nhàng đặc trưng của nhà phố 2 tầng tân cổ nhưng lại có nét mới mẻ hợp xu hướng.

Một điểm tinh tế nữa nằm ở thiết kế những ô cửa của mẫu nhà 2 tầng. Tầng 1 được làm theo hình thức vuông vức tạo cảm giác chắc chắn và an toàn, phù hợp với không gian sinh hoạt chính; lên đến tầng 2, hệ cửa lại được tạo mái vòm mềm mại. Sự chuyển đổi này giúp mặt tiền có cảm giác nhịp nhàng, giảm đi sự cứng nhắc và đồng điệu với hệ mái Thái phía trên. Việc sử dụng mái vòm cũng là một trong những đặc trưng của nhà phố 2 tầng tân cổ mang đến vẻ nhẹ nhàng và sang trọng giống những biệt thự tân cổ điển quy mô lớn.


Nhắc đến mái Thái, đây là phần thể hiện rõ nhất sự công phu trong thiết kế lần này. Mái Thái cao đến 4,6m, tạo ra tỷ lệ rất hài hòa cho tổng thể công trình nhà 2 tầng của anh Hậu. Chiều cao này không chỉ mang lại vẻ thanh thoát mà còn giúp nhà thoáng hơn và giảm nóng trong những ngày nắng gắt. Các mái đều có độ đua hợp lý để thoát nước tốt, hạn chế thấm dột. Nhìn từ xa, phần mái như một chiếc vương miện vừa vững chãi vừa tinh tế và làm nổi bật phong cách tân cổ điển mà Maxhome muốn gửi gắm vào công trình.


Kích thước xây dựng 6,8×23,7m là lợi thế hiếm có với một ngôi nhà phố tại Sài Gòn. Nhờ diện tích rộng rãi này mà Maxhome có thể thoải mái triển khai hình khối và trang trí ngoại thất mà không lo bị bó hẹp như các mẫu nhà phố thường thấy. Cũng chính vì vậy mà mẫu nhà phố 2 tầng tân cổ của anh Hậu trông cân đối và sang hơn rất nhiều. Từ bố cục, màu sắc đến chi tiết trang trí đều được đội ngũ thiết kế Maxhome tính toán kỹ nhằm đạt được sự hài hòa.
Khám phá công năng ấn tượng của nhà phố mái Thái 2 tầng

Thậm chí, ngôi nhà phố 2 tầng tân cổ của anh Hậu sau khi xây dựng còn dư ra khoảng sân trước và sân sau rất rộng rãi, hai bên hông cũng có khoảng thở tuy không rộng nhưng tạo thêm được rất nhiều các ô cửa sổ nên không gian sống bên trong rất thoáng mát. Xin mời bạn cùng Maxhome khám phá công năng bên trong căn nhà phố đẹp này nhé!

Tầng 1 được sắp xếp theo lối đi thông thoáng, ngay từ cửa chính bước vào là phòng khách rộng và bố trí bộ bàn ghế sofa chữ U sang trọng. Phía sau cầu thang là khu bếp cùng bàn ăn đặt liền mạch giúp việc nấu nướng thuận tiện hơn và tạo cảm giác ấm cúng. Tiếp theo là khu vực nghỉ ngơi cho phòng ngủ 01 có nhà vệ sinh riêng bên trong, bên ngoài cũng có nhà vệ sinh chung để mọi người ở ngoài có thể sử dụng một cách thuận tiện.


Lên đến tầng 2, không gian được mở rộng hơn với nhiều phòng chức năng phục vụ sinh hoạt dài lâu. Phòng thờ được đặt ở vị trí trang trọng và yên tĩnh hướng về phía trước. Bên cạnh đó là phòng sinh hoạt chung nơi cả nhà có thể quây quần mỗi tối, trò chuyện hoặc thư giãn. Tiếp theo là phòng học được thiết kế riêng giúp các bé có không gian tập trung để việc học hành hiệu quả hơn. Ngoài ra tầng này có thêm 2 phòng ngủ đều có nhà vệ sinh bên trong giúp mang lại sự riêng tư cho từng thành viên.










