Tiện nghi và tối giản với mẫu nhà 1 tầng mái bằng hiện đại là cảm nhận đầu tiên khi nhìn vào công trình của nhà chú Đức ở Khánh Hoà. Không cầu kỳ hình khối, không phô trương chi tiết, căn nhà mang đến một cảm giác rất tinh tế mà lại có sự khác biệt so với những mẫu nhà cấp 4 quen thuộc. Đây cũng là hướng đi đang được nhiều gia đình trẻ và trung niên lựa chọn khi mong muốn một không gian sống gọn gàng, hiện đại nhưng vẫn bền vững theo thời gian.
Thông tin nhà 1 tầng mái bằng hiện đại
| Chủ đầu tư: Chú Đào Như Đức | Địa chỉ: Phước Tiến, Nha Trang, Khánh Hoà |
| Mặt tiền: 7,6m | Kích thước xây dựng: 7,6 x 18,9m |
| Số tầng: 1 tầng | Loại hình: Nhà mái bằng hiện đại |
| Tổng diện tích: 120m2 | |
| Công năng:
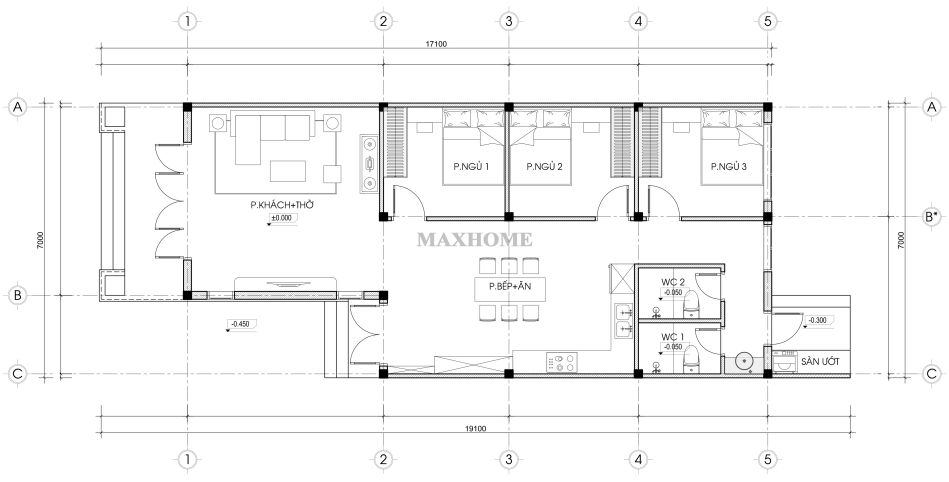
Phòng khách, phòng thờ, phòng bếp, 3 phòng ngủ, 2 wc |
|
| Đơn vị thiết kế: CÔNG TY TNHH MAXHOME ARCHITECT & DESIGN | |
Chi tiết bản thiết kế nhà 2 tầng mái Nhật đẹp
Điểm gây ấn tượng rõ nét nhất chính là cách xử lý kiến trúc của một nhà 1 tầng mái bằng hiện đại đầy cá tính này. Công trình không cần sử dụng mái Nhật hay mái Thái như nhiều mẫu nhà truyền thống khác mà vẫn tạo được dấu ấn riêng. Phần mái bằng được thiết kế gọn gàng, vuông vức giúp tổng thể ngôi nhà trở nên mạnh mẽ, dứt khoát và rất hợp với xu hướng kiến trúc đương đại. Chính sự tối giản này lại làm nổi bật hình khối kiến trúc khiến mẫu nhà đẹp trở nên khác biệt mà không cần thêm quá nhiều chi tiết trang trí.

Về tỷ lệ, công trình có chiều cao 3,9m tính từ cos 00 kết hợp nâng nền cao thêm 450mm, cách xử lý cao độ này giúp ngôi nhà trông bề thế và khang trang hơn hẳn khi nhìn từ ngoài vào. Căn nhà vườn mái bằng không chỉ tạo cảm giác cao ráo, thoáng đãng mà việc nâng nền còn giúp hạn chế ẩm thấp, phù hợp với điều kiện khí hậu ven biển của Khánh Hoà. Đây là một chi tiết nhỏ nhưng thể hiện rõ sự tính toán kỹ lưỡng trong đội ngũ thiết kế Maxhome.

Ngoại thất của nhà 1 tầng mái bằng hiện đại này còn đặc biệt gây chú ý với việc ốp gạch xám vân trắng toàn bộ mặt tiền và bên hông, lựa chọn vật liệu này không chỉ mang lại vẻ sang trọng, hiện đại mà còn rất thực tế trong quá trình sử dụng. Gạch xám vân trắng giúp hạn chế bám bụi, dễ vệ sinh đồng thời giữ cho ngôi nhà luôn sạch sẽ, mới mẻ theo thời gian. Gam màu trung tính còn làm nền hoàn hảo để các chi tiết khác nổi bật hơn giúp tạo nên một tổng thể hài hoà và đắt giá đúng nghĩa.

Khu vực sảnh hiên được thiết kế ấm cúng là nơi chuyển tiếp nhẹ nhàng giữa không gian ngoài trời và bên trong ngôi nhà. Vách lam nhựa giả gỗ ốp tường mang đến cảm giác gần gũi, mềm mại làm giảm đi sự cứng cáp của các mảng tường bê tông. Ngoài ra, đội ngũ thiết kế Maxhome cũng kết hợp hệ đèn led âm trần chiếu ánh sáng dịu nhẹ từ trên xuống giúp sảnh hiên trở thành một điểm nhấn rất tinh tế, đặc biệt đẹp vào buổi tối khi ánh đèn vàng lan tỏa và dễ chịu.

Ngay cạnh hiên nhà, bồn cây xanh được bố trí khéo léo góp phần mang thiên nhiên đến gần hơn với không gian sống. Bệ tường của bồn cây được ốp gạch chẻ màu xám đồng bộ với tổng thể kiến trúc giúp tạo điểm nhấn và vẫn giữ được sự thống nhất trong thiết kế. Màu xanh của cây cối kết hợp với sắc xám hiện đại của vật liệu giúp ngôi nhà chú Đức trở nên mềm mại hơn, tránh cảm giác khô cứng thường thấy ở các mẫu nhà 1 tầng mái bằng hiện đại.


Hệ mái bằng của công trình được đổ bê tông dày và chắc chắn, đảm bảo tính thẩm mỹ và đáp ứng tốt về mặt công năng sử dụng lâu dài. Kết cấu mái được tính toán để hạn chế hấp thụ nhiệt giúp không gian bên trong mát mẻ hơn, đặc biệt phù hợp với khí hậu nắng nhiều như vùng biển Khánh Hoà. Đây là ưu điểm lớn của mái bằng hiện đại khi được thiết kế và thi công đúng kỹ thuật.
Mặt bằng công năng tiện nghi cho cả gia đình

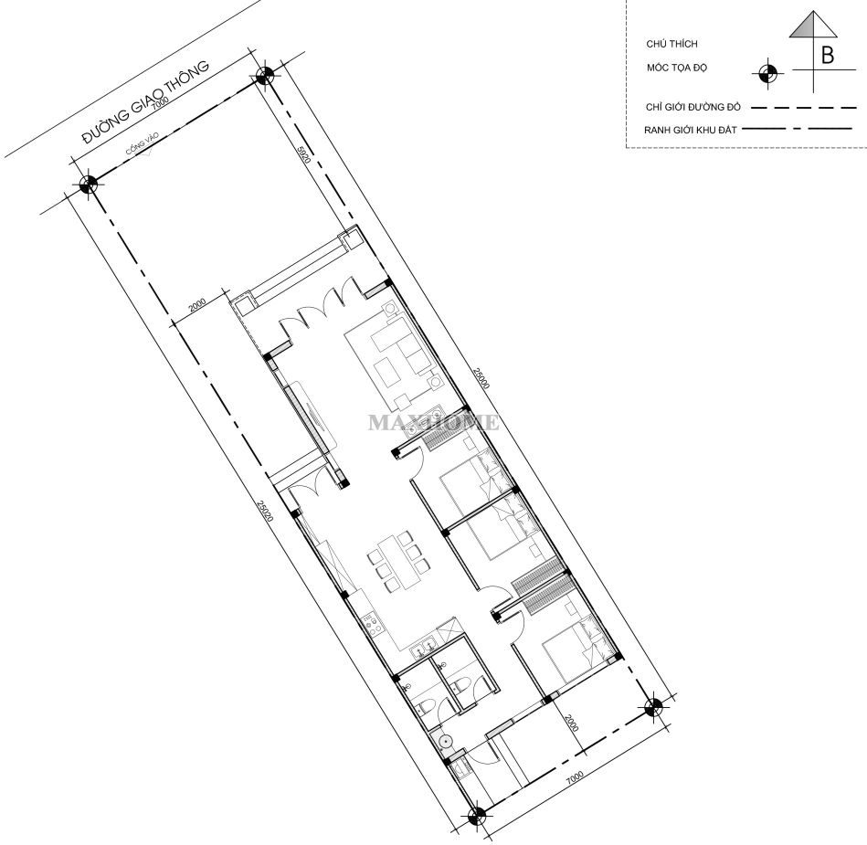
Mẫu nhà mái bằng 1 tầng hiện đại của chú Đức nằm trên mảnh đất có mặt tiền 7,6m nhưng chiều sâu khu đất rất dài, lên tới hơn 35m. Công trình được thiết kế lui về phía sau mảnh đất để tạo khoảng sân chơi rộng lớn phía trước và giúp giữ sự yên tĩnh cho không gian sống nhờ cách xa đường giao thông.

Bước vào bên trong, không gian công năng của ngôi nhà 1 tầng được bố trí rất gọn gàng và dễ sử dụng. Phòng khách được đặt ở ngay sau cửa chính bước vào rất rộng rãi và thoáng sáng, ngay cạnh đó là khu vực phòng thờ được sắp xếp trang trọng, kín đáo nhưng vẫn thuận tiện cho việc thờ cúng.
Đi sâu vào bên trong là không gian bếp kết hợp khu ăn uống ấm cúng đều được bố trí hợp lý để việc nấu nướng, sum họp gia đình luôn thoải mái và gần gũi. Ngôi nhà có 3 phòng ngủ được phân chia khoa học giúp đảm bảo sự riêng tư cho từng thành viên, trong đó phòng ngủ 03 rộng rãi hơn để đáp ứng nhu cầu nghỉ ngơi lâu dài. Nhà vệ sinh chung đặt cuối nhà để cả gia đình dễ dàng sử dụng một cách thuận tiện hơn.

