Mẫu nhà cấp 4 mái Nhật 3 phòng ngủ đang là lựa chọn được nhiều gia đình yêu thích nhờ vẻ đẹp hài hòa, công năng tiện nghi và chi phí hợp lý. Mẫu nhà do Maxhome thiết kế cho gia đình anh Minh tại Hưng Yên ghi điểm bởi kiến trúc tinh tế, bố trí khoa học, phù hợp cả ở nông thôn lẫn ngoại ô. Đây là giải pháp lý tưởng cho những gia chủ muốn sở hữu không gian sống đẹp, bền vững mà vẫn tối ưu ngân sách xây dựng.
Thông tin công trình nhà cấp 4 mái Nhật 3 phòng ngủ
| Chủ đầu tư: Anh Lê Hoàng Minh | Địa chỉ: Sơn Nam, Hưng Yên |
| Mặt tiền: 18,3m | Kích thước xây dựng: 18,3 x 11,8m |
| Số tầng: 1 tầng | Loại hình: Nhà mái Nhật hiện đại |
| Tổng diện tích: 150m² | |
| Công năng: Phòng khách, phòng bếp, 3 phòng ngủ, 3 wc | |
| Đơn vị thiết kế: CÔNG TY TNHH MAXHOME ARCHITECT & DESIGN | |
Bán thiết kế giá rẻ nhà cấp 4 mái Nhật 3 phòng ngủ đẹp mê
Tổng thể mẫu nhà cấp 4 mái Nhật 3 phòng ngủ mang đến ấn tượng mạnh mẽ với bố cục hình khối cân đối, chắc chắn. Hệ mái Nhật thiết kế giật cấp, độ dốc vừa phải, giúp ngôi nhà trở nên thanh thoát đồng thời đảm bảo khả năng thoát nước tốt trong điều kiện khí hậu nhiệt đới. Tông xanh than của ngói được lựa chọn khéo léo, tạo nên sự hài hòa tuyệt đối với gam màu trắng chủ đạo của sơn tường, cùng chân tường ốp gạch màu xám, mang đến chiều sâu và điểm nhấn mạnh mẽ cho ngoại thất.

Mặt tiền ngôi nhà được tạo hình trang nhã với hệ cột vuông vức, khỏe khoắn, góp phần tôn lên vẻ bề thế và cảm giác vững chãi cho tổng thể công trình. Các đường kẻ rãnh chạy dọc thân cột kết hợp cùng phào chỉ ngang trên bề mặt tường được xử lý tinh tế, vừa tạo chiều sâu thị giác, vừa nhấn mạnh sự cân xứng, hài hòa trong bố cục kiến trúc.
Khu vực bậc tam cấp được nâng cao 450mm giúp công trình trở nên cao ráo, hạn chế tình trạng bắn hắt nước mưa và tăng độ bền trong quá trình sử dụng. Toàn bộ mặt sảnh, bậc cấp và chân tường được ốp đá sang trọng, không chỉ bảo vệ công trình trước tác động của thời tiết mà còn mang đến vẻ đẹp chỉn chu, đẳng cấp, giữ được giá trị thẩm mỹ lâu dài theo thời gian.

Cửa chính được chế tác từ gỗ tự nhiên cao cấp, với màu nâu ấm áp và đường vân sang trọng, giúp mặt tiền ngôi nhà trở nên bề thế, đẳng cấp và tạo cảm giác chào đón ngay từ ánh nhìn đầu tiên. Sự kết hợp giữa chất liệu gỗ truyền thống và hình khối kiến trúc hiện đại mang lại vẻ đẹp vừa sang trọng, vừa gần gũi, thể hiện rõ gu thẩm mỹ tinh tế của gia chủ.
Hệ cửa sổ sử dụng kính khung nhôm cao cấp được bố trí hợp lý, giúp ngôi nhà tận dụng tối đa ánh sáng tự nhiên và gió trời, mang đến không gian sống luôn thông thoáng, dễ chịu. Những khung cửa rộng mở không chỉ mở rộng tầm nhìn ra khu vườn xanh mát bên ngoài mà còn tạo sự kết nối hài hòa giữa không gian nội thất và thiên nhiên.

Ngoại thất ngôi nhà cấp 4 3 phòng ngủ ghi điểm với kiến trúc mái Nhật thanh thoát, những đường nét khỏe khoắn, trẻ trung, thể hiện rõ cá tính và gu thẩm mỹ tinh tế của gia chủ.
Bao quanh công trình là sân vườn xanh mát, được bố trí hài hòa giữa cây xanh, tiểu cảnh tạo nên không gian sống đậm chất nghỉ dưỡng, gần gũi với thiên nhiên. Khuôn viên được quy hoạch rộng rãi, thoáng đãng, lý tưởng cho các hoạt động thư giãn, vui chơi ngoài trời của cả gia đình.

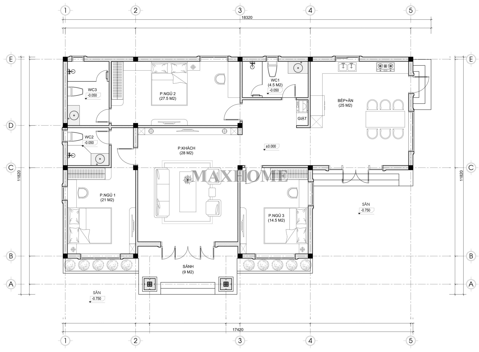
Mặt bằng chi tiết công năng
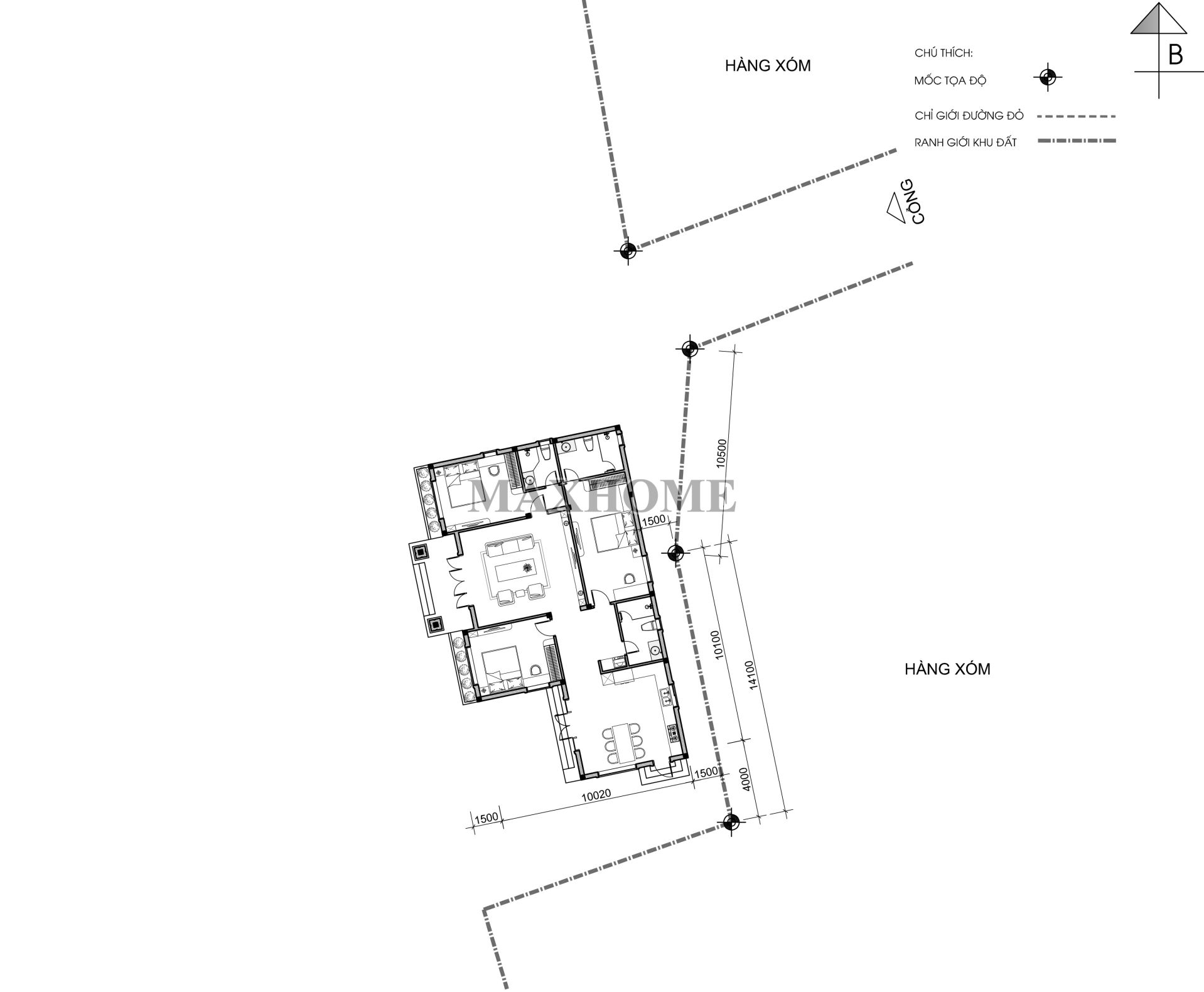
Dựa trên mặt bằng định vị, ngôi nhà được đặt tại hướng Tây Nam với kích thước 18,3 x 11,8m, tạo thế đất đẹp và thuận phong thủy. Tổng diện tích 150m² được khai thác tối ưu với cách bố trí công năng hợp lý, khoa học, đảm bảo sự tiện nghi và liền mạch trong sinh hoạt hằng ngày.

Từ sảnh chính bước vào là không gian phòng khách rộng rãi, sang trọng, được bố trí thông thoáng, mang lại cảm giác chào đón và dễ chịu ngay từ những bước chân đầu tiên.
Ba phòng ngủ được sắp xếp khoa học xung quanh khu vực trung tâm của ngôi nhà, vừa đảm bảo sự riêng tư, vừa tạo nên không khí ấm cúng cho sinh hoạt gia đình. Trong đó, phòng ngủ 01 và phòng ngủ 02 được thiết kế WC khép kín, đáp ứng nhu cầu tiện nghi và thoải mái trong quá trình sử dụng.

Khu vực bếp ăn được kết nối thuận tiện thông qua lối đi cửa phụ, giúp việc di chuyển linh hoạt và tăng cường khả năng lưu thông không khí. Cách bố trí này hạn chế hiệu quả tình trạng ám mùi thức ăn, giữ cho các không gian sinh hoạt chung luôn sạch sẽ, dễ chịu. Cuối cùng là một WC chung được đặt ở vị trí hợp lý, phục vụ nhu cầu sử dụng chung của gia đình và khách, góp phần hoàn thiện công năng một cách khoa học và tiện lợi.




