Chỉ với mặt tiền 7m nhưng mẫu nhà 2 tầng hiện đại chữ L này lại khiến nhiều người phải bất ngờ ngay từ cái nhìn đầu tiên. Nhờ cách tổ chức hình khối thông minh, xử lý không gian khéo léo và bố cục chữ L linh hoạt, ngôi nhà không chỉ xóa bỏ cảm giác chật hẹp thường thấy mà còn mang đến sự thông thoáng, hiện đại và đầy cá tính. Đây chính là giải pháp lý tưởng dành cho những gia chủ sở hữu quỹ đất vừa phải nhưng vẫn mong muốn một không gian sống tiện nghi, thẩm mỹ cao và khác biệt giữa khu phố.
Thông tin nhà 2 tầng hiện đại chữ L
| Chủ đầu tư: Anh Nguyễn Xuân Huyền | Địa chỉ: Lục Nam, Bắc Giang |
| Mặt tiền: 7m | Kích thước xây dựng: 7 × 14,6m |
| Số tầng: 2 | Loại hình: Nhà mái bằng hiện đại |
| Tổng diện tích: 182m2 | |
Công năng:
| |
| Đơn vị thiết kế: CÔNG TY TNHH MAXHOME ARCHITECT & DESIGN | |
Ngoại thất nhà 2 tầng hiện đại chữ L mặt tiền 7m
Mỗi ngôi nhà không đơn thuần chỉ là những khối bê tông cứng nhắc, mà còn là nơi hiện thực hóa giấc mơ về sự bình yên và hạnh phúc gia đình. Với mong muốn sở hữu một không gian sống hiện đại, tiện nghi nhưng vẫn gần gũi và ấm cúng, gia đình anh Huyền tại Đắk Lắk đã tin tưởng lựa chọn Maxhome làm đơn vị thiết kế, đồng hành kiến tạo nên mẫu nhà 2 tầng hiện đại chữ L mang đậm dấu ấn cá nhân, phù hợp với nhu cầu sinh hoạt và phong cách sống của gia đình.

Mẫu nhà chữ L 2 tầng dưới đây được thiết kế theo phong cách hiện đại, nổi bật với các hình khối vuông vức, dứt khoát, mang đến vẻ đẹp trẻ trung và mạnh mẽ. Công trình được tổ chức theo bố cục chữ L, giúp khai thác hiệu quả khuôn viên đất, tạo khoảng không gian mở thông thoáng và thuận lợi cho việc bố trí sân vườn, lối đi cũng như các khu vực sinh hoạt ngoài trời. Giải pháp thiết kế này không chỉ nâng cao giá trị thẩm mỹ mà còn góp phần tối ưu công năng, đáp ứng linh hoạt nhu cầu sinh hoạt của gia đình hiện đại.

Gam màu trắng được lựa chọn làm tông màu chủ đạo, mang đến cảm giác thanh thoát, hiện đại và giúp tổng thể ngôi nhà luôn sáng thoáng. Kết hợp cùng màu ghi được sử dụng làm điểm nhấn tinh tế tại mặt tiền, công trình trở nên nổi bật nhưng vẫn giữ được sự hài hòa, sang trọng. Bên cạnh đó, khu vực mặt tiền được ốp gạch granite cao cấp, không chỉ nâng cao giá trị thẩm mỹ mà còn tăng độ bền, khả năng chống bám bẩn và chịu tác động của thời tiết. Phần bồn hoa được trang trí bằng gạch giả gỗ, tạo điểm nhấn ấm áp, gần gũi với thiên nhiên, góp phần cân bằng giữa nét hiện đại và không gian xanh của ngôi nhà.

Theo phong cách thiết kế hiện đại, mẫu nhà 2 tầng chữ L ưu tiên sử dụng các vật liệu mang tính mở và thẩm mỹ cao. Toàn bộ hệ cửa được lắp đặt bằng kính cường lực kết hợp nhôm Xingfa cao cấp, giúp không gian bên trong luôn tràn ngập ánh sáng tự nhiên, đồng thời đảm bảo độ bền, an toàn và khả năng cách âm, cách nhiệt hiệu quả. Phần lan can ban công cũng sử dụng chất liệu kính, tạo cảm giác thông thoáng, liền mạch về thị giác, góp phần tôn lên vẻ đẹp tinh tế, trẻ trung và hiện đại cho tổng thể công trình.

Nhà 2 tầng sử dụng hệ mái bằng được thiết kế chắc chắn, phía trên tạo độ dốc thoát nước hợp lý, giúp hạn chế tình trạng đọng nước và đảm bảo độ bền cho công trình. Bên trên mái được lợp bổ sung tôn chống nóng chất lượng cao, góp phần giảm hấp thụ nhiệt, giữ cho không gian bên trong luôn mát mẻ và dễ chịu. Giải pháp này đặc biệt phù hợp với điều kiện khí hậu Tây Nguyên, nơi có sự chênh lệch nhiệt độ và cường độ nắng cao, giúp nâng cao hiệu quả sử dụng và tuổi thọ của ngôi nhà theo thời gian.

Cổng chính được thiết kế theo phong cách hiện đại, đồng bộ và hài hòa với kiến trúc tổng thể của ngôi nhà. Cổng sử dụng sắt hộp sơn tĩnh điện cao cấp, không chỉ mang lại vẻ đẹp khỏe khoắn, tinh tế mà còn đảm bảo độ bền cao, chống han gỉ và chịu được tác động của thời tiết. Phần tường bao được xây dựng bằng bê tông kiên cố, bên ngoài ốp gạch giả đá trang trí, vừa tăng tính thẩm mỹ, vừa giúp bảo vệ bề mặt tường, tạo nên tổng thể sang trọng, an toàn và bền vững cho công trình.

Khám phá công năng của mẫu nhà 2 tầng chữ L
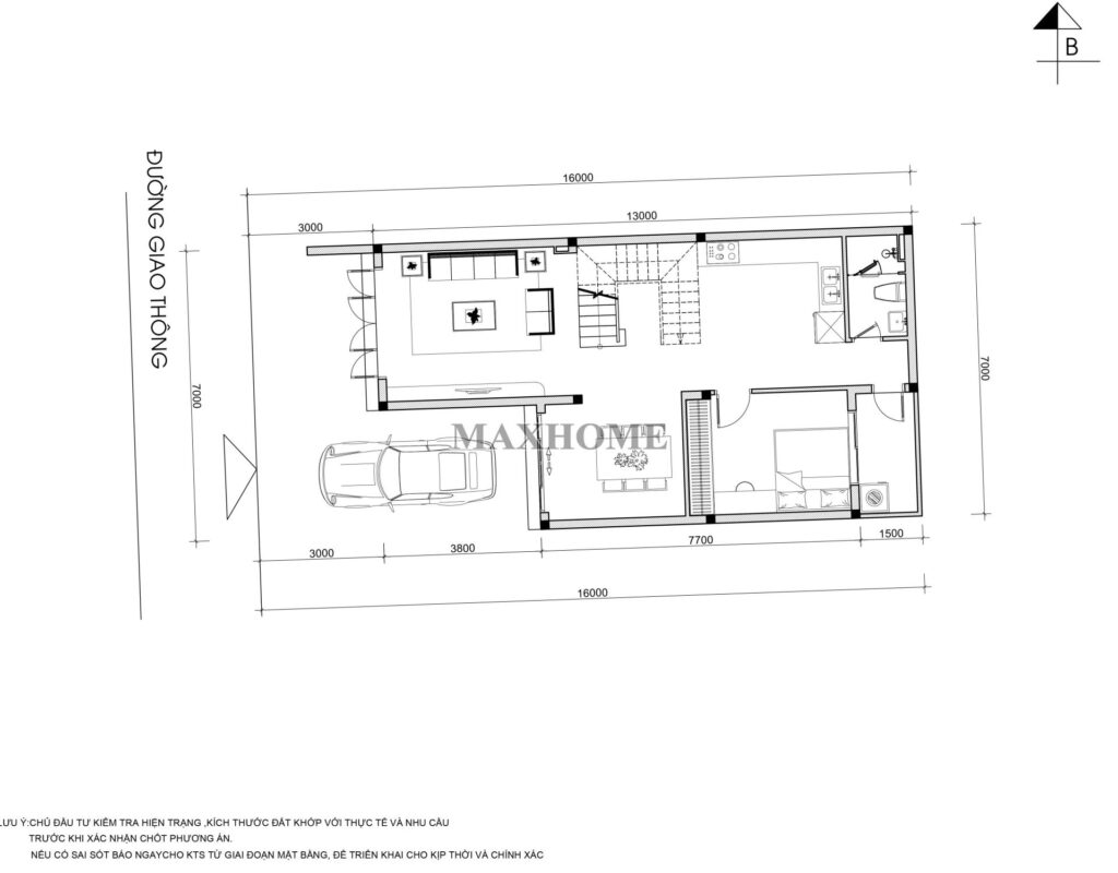
Công trình được bố trí theo bố cục chữ L, tận dụng hiệu quả phần góc chữ L làm khu vực để xe thuận tiện, đảm bảo lối đi thông thoáng và an toàn trong quá trình sử dụng. Ngôi nhà có kích thước xây dựng khoảng 7 × 14,6m, được tổ chức mặt bằng khoa học nhằm tối ưu công năng và khả năng lưu thông không gian. Tổng diện tích sử dụng ước tính khoảng 182m², đáp ứng đầy đủ nhu cầu sinh hoạt của gia đình nhiều thành viên, đồng thời vẫn đảm bảo sự thoải mái, tiện nghi và tính thẩm mỹ cho toàn bộ công trình.

Công năng tầng 1 được bố trí khoa học và hợp lý, đáp ứng tốt nhu cầu sinh hoạt chung của gia đình. Từ lối vào là phòng khách có diện tích rộng rãi, được sắp xếp ở vị trí trung tâm, thuận tiện cho việc tiếp đón khách. Tiếp nối qua khu vực cầu thang là không gian phòng bếp kết hợp phòng ăn, được bố trí tách biệt nhằm đảm bảo sự gọn gàng, hạn chế mùi và tăng tính riêng tư khi nấu nướng.
Cuối nhà bố trí một phòng ngủ, phù hợp cho người lớn tuổi hoặc khách lưu trú. Kề bên là khu sân ướt thông thoáng, hỗ trợ sinh hoạt hằng ngày, đối diện là nhà vệ sinh chung được đặt ở vị trí thuận tiện, giúp tối ưu diện tích và đảm bảo công năng sử dụng cho toàn bộ tầng.

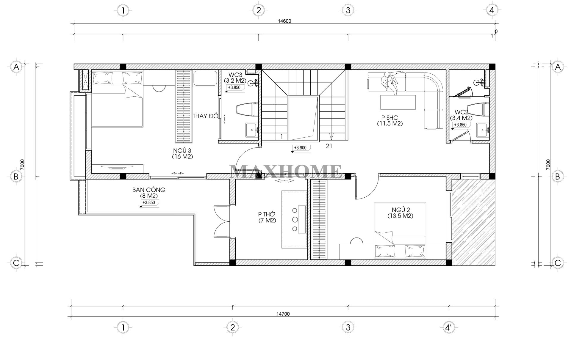
Tầng 2 được bố trí khoa học, đáp ứng đầy đủ nhu cầu sinh hoạt và riêng tư của gia đình. Không gian phòng thờ được đặt ở vị trí trang nghiêm, hướng thẳng ra ban công, giúp đón ánh sáng tự nhiên và đảm bảo yếu tố phong thủy. Bên cạnh đó là phòng sinh hoạt chung rộng khoảng 11,5m², đóng vai trò là nơi kết nối các thành viên sau những giờ làm việc, học tập. Khu vực này được bố trí nhà vệ sinh chung thuận tiện cho việc sử dụng. Ngoài ra, tầng 2 còn có 2 phòng ngủ được thiết kế thoáng đãng, trong đó phòng ngủ số 03 sở hữu nhà vệ sinh khép kín kết hợp phòng thay đồ riêng, mang đến sự tiện nghi, riêng tư và cảm giác nghỉ ngơi thoải mái cho gia chủ.








