Choáng ngợp với mẫu nhà 2 tầng hoành tráng, bề thế và siêu rộng với mặt tiền 14,5m xuất hiện tại Vũ Thư, Thái Bình. Căn nhà đẹp thuộc sở hữu của anh Đức, một người rất có gu về kiến trúc và yêu cầu cao về thiết kế. Maxhome đã hoàn thành bản thiết kế và gửi tới tận gia đình anh Đức bộ bản vẽ và gia đình anh đã rất hài lòng.
Thông tin nhà 2 tầng hoành tráng và đẳng cấp
| Chủ đầu tư: Anh Trịnh Hồng Đức | Địa chỉ: Trung An, Vũ Thư, Thái Bình |
| Mặt tiền: 14,5m | Kích thước xây dựng: 14,5 x 12,5m |
| Số tầng: 2 tầng | Loại hình: Nhà mái Nhật hiện đại |
| Tổng diện tích: 220m2 | |
Công năng:
| |
| Đơn vị thiết kế: CÔNG TY TNHH MAXHOME ARCHITECT & DESIGN | |
Ngoại thất nhà đẹp 2 tầng ở Thái Bình
Bản vẽ nhà 2 tầng chỉ sử dụng hai màu sơn đơn giản trắng và xám nhưng được kết hợp rất hài hoà. Công trình có điểm nhấn rõ nhất từ hệ mái Nhật mái ngói xám đồng điệu không chỉ lợp ngói trên cao mà còn lợp xung quanh đường phân cách tầng 1 và tầng 2 càng làm tăng vẻ đẹp quý phái. Chi phí làm thêm chi tiết mái ngói này sẽ cao hơn nhưng lại giúp bảo vệ tuổi thọ công trình bền lâu bởi có mái đua che nắng mưa rất tốt.

Chiều cao của công trình sẽ gây ấn tượng với bạn vì sự bề thế của nó: nền nhà được nâng cao 750mm, tầng 1 cao 4,2m, tầng 2 cao 3,9m và hệ mái Nhật cao 2,8m. Một mẫu nhà không chỉ đẹp mà còn được xây dựng kiên cố và bền vững theo thời gian. Đặc biệt, căn nhà 2 tầng được thiết kế theo phong cách hiện đại, xu hướng mới nhất và sau thời gian dài vẫn sẽ rất hợp thời bởi sự thẩm mỹ cao.

Sự phối hợp màu sắc ăn ý trong công trình này còn đến từ gạch ốp chân tường màu xám tự nhiên, vững chắc, bảo vệ công trình tránh bị rêu mốc bám nếu vào mùa mưa nhiều. Hai chiếc cột vuông vức với chiều cao 3,2m có đường kẻ chỉ dọc thân cột sơn màu xám tạo sự mạch lạc trong thiết kế mẫu nhà 2 tầng mái Nhật đẹp.

Từ góc nhìn phía sau công trình cũng có thể thấy rõ khu vực sảnh phụ cũng được xây 5 bậc thềm dẫn lối vào nhà, phía trên là mái hiên đỡ chắc chắn bảo vệ cho khu vực này. Hệ cửa của ngôi nhà được bố trí cửa thép vân gỗ cho sảnh chính, còn lại đều là cửa kính cường lực khung nhôm hiện đại phù hợp với phong cách hiện đại của công trình.


Mái Nhật là lựa chọn lý tưởng cho những công trình cần sự bền bỉ, thoáng mát và thẩm mỹ cao. Ưu điểm lớn nhất của kiểu mái này nằm ở độ dốc vừa phải giúp nước mưa thoát nhanh, hạn chế tối đa tình trạng thấm dột hay đọng nước. Kết cấu mái nhà anh Đức đã được Maxhome thiết kế chắc chắn, độ vươn rộng 710mm nên che nắng hiệu quả và tạo bóng mát cho toàn bộ không gian bên dưới. Về thẩm mỹ, dáng mái cân đối, hiện đại nhưng vẫn giữ nét thanh lịch và phù hợp với nhiều phong cách kiến trúc, đặc biệt là căn nhà vườn 2 tầng mái Nhật hiện đại này.
Công năng 2 tầng tiện nghi

Khu đất nhà anh Đức rất rộng, công trình nhà 2 tầng của gia đình anh có diện tích hơn 100m2/sàn được xây gọn gàng trong góc nhưng vẫn để khoảng hở để không khí lưu thông tốt trong nhà. Sân trước còn khoảng trống lớn tạo ra một khuôn viên thoáng đãng để xe cũng như trồng thêm cây xanh tươi tốt.

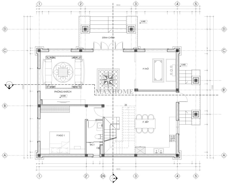
Tầng 1 được bố trí theo hướng tiện nghi và kết nối, phù hợp cho sinh hoạt hằng ngày của gia đình Đức. Ngay khi bước vào đại sảnh, bên cạnh là phòng khách rộng rãi, sang trọng với nội thất gỗ chủ đạo và vách giả đá tạo điểm nhấn. Đối diện là phòng thờ trang nghiêm được bố trí khéo léo để gia chủ dễ dàng thắp hương và giữ nếp sống tâm linh. Khu phòng bếp và bàn ăn được bố trí liền mạch tạo sự ấm cúng và thuận tiện khi cả nhà quây quần. Tầng này cũng có 1 phòng ngủ có nhà vệ sinh chung khép kín phục vụ sinh hoạt cá nhân thuận tiện.


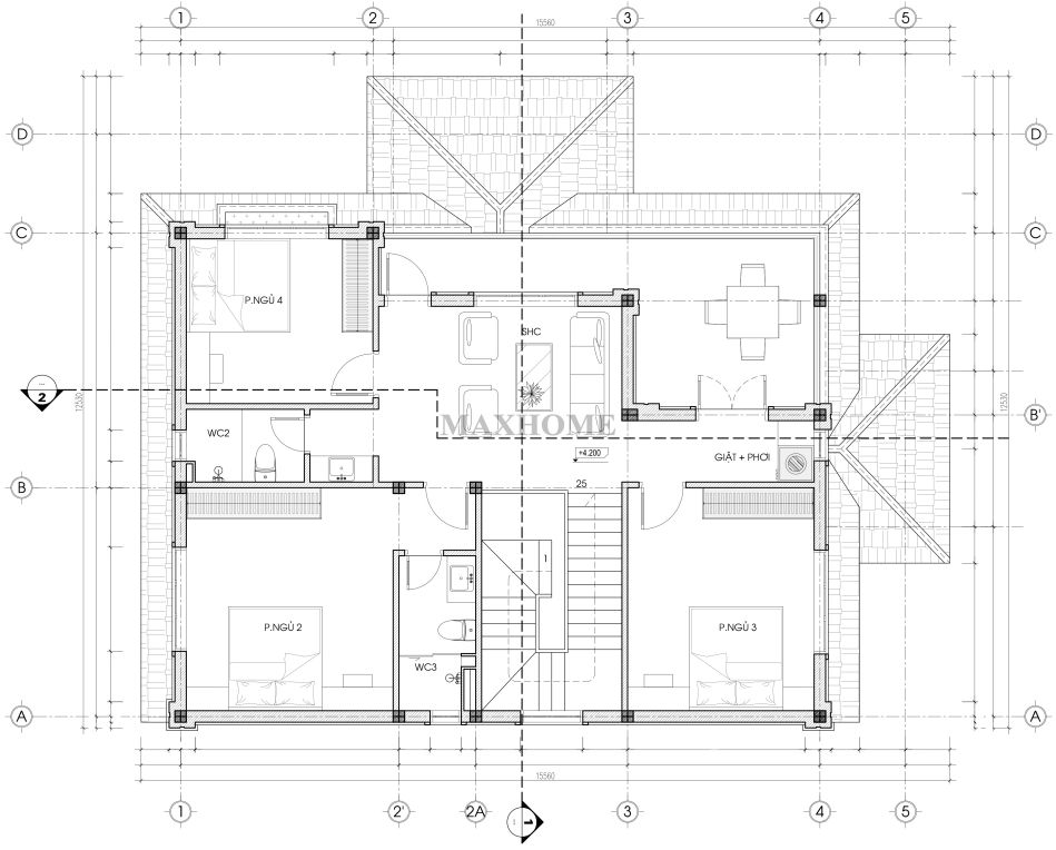
Tầng 2 là không gian thư giãn và nghỉ ngơi chính của gia đình anh Đức được Maxhome thiết kế thoáng sáng và ấm cúng. Trung tâm tầng là phòng sinh hoạt chung để các thành viên có thể trò chuyện và xem TV hoặc tụ họp vào buổi tối. Bao quanh là 3 phòng ngủ rộng rãi, mỗi phòng đều được thiết kế đầy đủ nội thất để đảm bảo sự thoải mái và riêng tư cho từng thành viên. Bố cục tầng 2 cũng được tối ưu với 2 nhà vệ sinh giúp việc sử dụng thuận tiện hơn vào giờ cao điểm, đặc biệt phù hợp với gia đình nhiều người.









