Sự kết hợp hài hòa giữa hình khối mạnh mẽ, màu sắc tinh tế và không gian sân vườn rộng mở đã tạo nên một mẫu nhà 2 tầng 1 tum vô cùng ấn tượng, mọi chi tiết ở công trình này đều toát lên sự tinh tế và đẳng cấp. Mời bạn tham khảo mẫu nhà đẹp do Maxhome thiết kế cho anh Dũng ở Hưng Yên ngay trong bài viết này nhé!
Thông tin nhà 2 tầng 1 tum có vườn rộng xanh mát
| Chủ đầu tư: Anh Vũ Văn Dũng | Địa chỉ: Hòa Phong, Mỹ Hào, Hưng Yên |
| Mặt tiền: 9m | Kích thước xây dựng: 9 x 13m |
| Số tầng: 2 tầng 1 tum | Loại hình: Nhà mái bằng hiện đại |
| Tổng diện tích: 230m2 | |
Công năng:
| |
| Đơn vị thiết kế: CÔNG TY TNHH MAXHOME ARCHITECT & DESIGN | |
Dạo quanh khám phá căn nhà 2 tầng 1 tum đẹp ở Hưng Yên
Ngôi nhà 2 tầng 1 tum này thu hút hơn 250 lượt xem bởi phong cách kiến trúc hiện đại, vuông vắn và dứt khoát khiến nhiều người yêu thích. Maxhome đã khai thác triệt để ưu điểm của hình khối lập phương để mang lại vẻ đẹp tối giản nhưng không hề đơn điệu.
Các mảng tường phẳng, đường nét thẳng kết hợp với hệ cửa kính khung nhôm màu đen nổi bật trên nền sơn trắng chủ đạo đã tạo nên một diện mạo thanh lịch và đầy tinh thần thời đại. Tất cả các yếu tố trên sẽ giúp ngôi nhà anh Dũng không chỉ đẹp về hình thức mà còn đảm bảo độ bền vững theo thời gian.

Maxhome đã khéo léo phối hợp giữa tông trắng tinh khôi và màu xám ghi trang nhã ở mặt tiền công trình. Bên cạnh đó, vị trí tường ốp gỗ nhựa ngoài trời để giúp mặt tiền thêm ấm áp, gần gũi và tự nhiên đồng thời hài hoà màu sắc với cửa chính bằng thép giả gỗ sang trọng. Sự tương phản giữa các vật liệu đã mang lại chiều sâu cho tổng thể khiến căn nhà 2 tầng 1 tum này trở nên khác biệt và có hồn hơn hẳn so với những công trình cùng phong cách.

Ban công tầng 2 với lan can kính cường lực trong suốt là một chi tiết tinh tế góp phần mở rộng tầm nhìn và giúp ngôi nhà trông thoáng đãng hơn. Hệ lam che nắng phía trên được thiết kế khéo léo và giúp giảm bức xạ nhiệt vào mùa hè, chi tiết này khá phù hợp đối với khí hậu miền Bắc. Tất cả đã được Maxhome sắp đặt có chủ đích, thể hiện sự đầu tư kỹ lưỡng trong từng đường nét của đội ngũ thiết kế khiến gia đình anh Dũng rất hài lòng.

Khi quan sát tổng thể từ trên cao, có thể thấy ngôi nhà 2 tầng 1 tum này được đặt giữa khu vườn rộng bao quanh bởi hàng cây xanh tươi mát. Sân trước lát gạch xám sang trọng và sạch sẽ và rộng thoải mái để bố trí khu tiểu cảnh hoặc chỗ đỗ xe thuận tiện. Màu xanh của thiên nhiên hòa cùng gam trắng của ngôi nhà và màu nâu gỗ của mặt tiền, tất cả tạo nên một không gian sống chan hòa, dễ chịu, nơi gia chủ có thể thư giãn và tận hưởng cuộc sống yên bình mỗi ngày.

Khu vực tum được thiết kế thông minh giúp ngôi nhà hiện đại có thêm tầng cao thoáng mà vẫn có thể tận dụng làm kho hoặc không gian chơi ngoài trời trên cao. Mặt tum phẳng kết hợp cùng sân thượng rộng rất phù hợp để trồng cây, phơi đồ hoặc làm góc chill ngoài trời. Đây chính là điểm đặc trưng khiến mẫu nhà 2 tầng 1 tum của anh Dũng trở nên tiện nghi và thực tế hơn so với kiểu nhà 2 tầng truyền thống.

Không chỉ dừng lại ở vẻ đẹp bên ngoài, công trình nhà anh Dũng còn thể hiện phong cách sống hiện đại, tối ưu hóa không gian và ánh sáng tự nhiên. Hệ cửa sổ lớn được bố trí đều khắp các mặt giúp căn nhà luôn tràn ngập ánh sáng và gió trời, tiết kiệm điện năng và mang lại cảm giác gần gũi với thiên nhiên. Những chi tiết tưởng chừng nhỏ bé này lại góp phần lớn trong việc tạo nên một không gian sống đáng mơ ước rất sang trọng mà lại rất tiện ích.
Công năng tiện ích trong mẫu nhà hiện đại

Mỗi một bản thiết kế nhà đẹp mà Maxhome đưa ra đều được khảo sát thực địa tận khu đất của gia chủ, hình ảnh thực tế sẽ được ghi lại gửi về đội ngũ thiết kế để lên ý tưởng. Đặc biệt, khi lên ý tưởng sẽ có gia chủ cùng hợp tác để vừa có thể nói ra nhu cầu vừa giúp cho đội ngũ thiết kế dễ hình dung bám sát vào từng yêu cầu đó để tạo nên mẫu nhà hoàn chỉnh nhất.

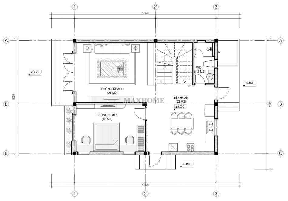
Bước vào tầng 1, không gian đầu tiên đón khách là phòng khách rộng rãi để tiếp đón bạn bè, người thân trong một không gian sang trọng và thân thiện. Nhờ hệ cửa chính 4 cánh lớn mà phòng khách luôn ngập tràn ánh sáng tự nhiên rất dễ chịu. Liền kề đó là phòng bếp và khu ăn uống 22m2 được bố trí gọn gàng nhưng vẫn đủ rộng để cả gia đình anh Dũng cùng quây quần trong những bữa cơm ấm cúng. Ngoài ra, tầng này còn có 1 phòng ngủ riêng hướng ra mặt tiền và có tới 3 ô cửa sổ làm cho căn phòng nghỉ ngơi ngập tràn ánh sáng tự nhiên. Cuối cùng là 1 nhà vệ sinh chung được đặt ở sau cầu thang một cách kín đáo mà vẫn dễ dàng sử dụng.


Tầng 2 bố trí phòng thờ 9m2 ở vị trí trang trọng nhất để thể hiện lòng hiếu kính của gia chủ với tổ tiên. Cạnh bên là 2 phòng ngủ thoáng mát có cửa sổ hướng ra ngoài giúp tận dụng tối đa ánh sáng tự nhiên và lưu thông không khí. Mỗi phòng đều có diện tích hợp lý và đáp ứng đầy đủ nhu cầu nghỉ ngơi của các thành viên trong gia đình. Ngoài ra, tầng này còn được bố trí thêm phòng kho nhỏ rất tiện để cất giữ đồ đạc ít dùng đến, cuối cùng là 1 nhà vệ sinh chung phục vụ cho cả tầng giúp đảm bảo sự tiện nghi.


Tầng tum chính là điểm nhấn hoàn hảo của mẫu nhà 2 tầng 1 tum này, sân thượng rộng rãi được Maxhome thiết kế phẳng và an toàn mà vẫn có thể biến tấu linh hoạt tùy theo nhu cầu sử dụng. Đây là nơi lý tưởng để gia đình anh Dũng trồng cây xanh hoặc đặt vài bộ bàn ghế để thư giãn tại đây. Không gian này vừa là nơi giải tỏa áp lực sau ngày dài làm việc vừa giúp tăng thêm tính thẩm mỹ và giá trị sống cho toàn bộ ngôi nhà.








