Khi tìm một thiết kế vừa đẹp vừa thực tế với mức chi phí hợp lý thì nhiều gia đình đã chọn mẫu nhà vườn mái Nhật 2 tầng. Bản vẽ dưới đây sẽ giới thiệu tới bạn một thiết kế kiến trúc có bố cục gọn, hình khối chắc, mái Nhật thanh thoát và cách tổ chức công năng rất dễ sử dụng. Ngôi nhà đã đáp ứng nhu cầu sinh hoạt của gia đình chú Tơ ở Lạng Sơn, người đã tin tưởng Maxhome để tạo nên bản vẽ nhà đẹp này.
Thông tin nhà vườn mái Nhật 2 tầng
| Chủ đầu tư: Chú Lăng Văn Tơ | Địa chỉ: Tam Thanh, Lạng Sơn |
| Mặt tiền: 10,8m | Kích thước xây dựng: 10,8 x 13,1m |
| Số tầng: 2 tầng | Loại hình: Nhà mái Nhật hiện đại |
| Tổng diện tích: 215m2 | |
Công năng:
| |
| Đơn vị thiết kế: CÔNG TY TNHH MAXHOME ARCHITECT & DESIGN | |
Chủ nhà ưng ý với bản thiết kế nhà đẹp 2 tầng
Công trình này là mẫu nhà vườn mái Nhật 2 tầng mang vẻ hiện đại nhưng vẫn giữ sự ấm áp quen thuộc. Phối cảnh 3D của Maxhome có thể thấy kiến trúc được tổ chức theo trục đối xứng kết hợp những đường nét gọn và chắc. Hệ mái Nhật trải rộng, dốc nhẹ tạo cảm giác thanh thoát cùng màu ngói xanh ghi đậm giúp dáng mái nổi bật hơn và làm tổng thể công trình trông sạch, bền và sang hơn.

Tầng 1 của mẫu nhà vườn mái Nhật 2 tầng này được tạo hình với những khối vững chãi, chân tường ốp đá tối màu cao 450mm và chạy đều quanh nhà giúp tăng độ bền cũng như tạo nét sang trọng cho công trình. Sảnh chính gần 7m2 có mái che riêng được dựa trên hai cột vuông chắc và phần chân cột sơn giả đá. Nhìn gần, cửa chính làm từ thép vân gỗ với các đường chia ô rõ ràng khiến mặt tiền có điểm nhấn ấm và thân thiện. Tiếp theo là bậc tam cấp rộng, lát đá Granite sang trọng để tạo lối vào thoáng và dễ di chuyển.

Màu sắc của mẫu nhà vườn mái Nhật 2 tầng được chia thành hai tông chính với màu trắng và xanh ghi. Các mảng tường thụt vào được sơn xanh tạo chiều sâu cũng như nổi bật trên nền tường trắng, trong khi cửa sổ lớn bằng kính khung nhôm giúp lấy sáng tốt và mở được nhiều góc nhìn ra vườn. Căn nhà của chú Tơ vào ban ngày kết hợp hiệu ứng kính phản chiếu mặt trời sẽ làm mặt tiền sáng hơn, đúng tinh thần của một nhà vườn mái Nhật 2 tầng rộng rãi và thoáng.

Tầng 2 nhẹ nhàng hơn nhờ hệ lan can nhôm đúc màu đồng chạy quanh ban công, chi tiết lan can này có độ sắc sảo vừa đủ giúp tạo điểm nhấn mà không gây rối. Một điều đặc biệt là các cột ở tầng 2 được thiết kế nhỏ gọn hơn tầng 1 nhưng vẫn giữ gờ trang trí ở cả chân và đỉnh để giúp tổng thể cân đối.

Cũng trong bản vẽ này, thiết kế nhà vườn mái Nhật 2 tầng có thêm chi tiết ô cửa thông gió nhỏ xinh, có mái che riêng đồng bộ với mái lớn, nhờ chi tiết này mà mặt tiền mẫu nhà mái Nhật bớt phẳng và nhìn hài hòa hơn.
Không gian cảnh quan cũng đóng vai trò quan trọng vì đây là thiết kế của một nhà vườn mái Nhật 2 tầng đúng nghĩa, sân trước rộng, có chỗ đậu xe và lối đi gọn. Cây bonsai và bồn cây thấp được đặt sát tường để không che mất kiến trúc nhưng vẫn giữ cảm giác xanh và tươi mới.

Công năng nhà vườn 2 tầng

Nhìn vào hình ảnh mặt bằng định vị công trình bạn sẽ thấy rõ hơn cách bố trí của mẫu nhà vườn mái Nhật 2 tầng của chú Tơ. Căn nhà chính được xây gọn trong khuôn viên đất, bên ngoài vẫn còn căn nhà bếp cũ để phục vụ cho những ngày lễ lớn cho con cháu về sum vầy, sân chơi vẫn còn rất rộng rãi và thoải mái để mọi người đậu xe.

Phòng khách trang trọng bố trí bộ bàn ghế gỗ lớn hình chữ L cùng bàn gỗ mặt kính sang trọng để đón tiếp khách. Vách TV cũng được tích hợp làm vách ngăn giữa phòng khách và phòng bếp khéo léo, không bí bách như bức tường ngăn mà còn giúp tạo sự thông thoáng giữa hai vị trí này. Dưới tầng 1 có thêm 2 phòng ngủ đặt ở hai bên lối đi cầu thang giúp mọi người tiện di chuyển giữa 2 tầng. Cuối nhà là nhà vệ sinh chung đặt trong góc gọn gàng và sạch sẽ.


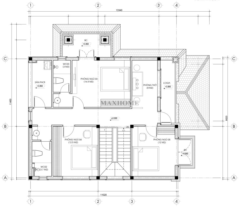
Tầng 2 bố trí phòng thờ trang nghiêm hướng ra ban công rộng lớn phía bên ngoài để lấy sinh khí tươi tốt nhất cho không gian thờ cúng. Trên này có tới 3 phòng ngủ, mỗi phòng đều có cửa sổ và thậm chí có thêm lối ra ban công bên cạnh. Cuối nhà là nhà vệ sinh chung đặt đồng trục với tầng 1 và sân phơi nhỏ đối diện giúp gia đình chú Tơ dễ dàng sinh hoạt và sử dụng trong ngôi nhà vườn mái Nhật 2 tầng này.









