Xu hướng nhà cấp 4 mái bằng chữ L ngày càng được ưa chuộng nhờ kiểu dáng trẻ trung, bố cục linh hoạt và khả năng tối ưu diện tích vượt trội. Nắm bắt tinh thần đó, Maxhome đã thiết kế cho gia đình chú Chu tại Hà Tĩnh một mẫu nhà siêu ấn tượng, kết hợp chuẩn mực thẩm mỹ hiện đại với công năng tiện nghi. Công trình không chỉ cuốn hút bởi đường nét hài hòa mà còn thể hiện rõ phong cách sống tinh tế, cá tính và đầy sự chỉn chu của gia chủ.
Thông tin công trình nhà cấp 4 mái bằng
| Chủ đầu tư: Chú Trương Doãn Chu | Địa chỉ: Đồng Tiến, Hà Tĩnh |
| Mặt tiền: 11,8m | Kích thước xây dựng: 11,8 x 13,8m |
| Số tầng: 1 tầng | Loại hình: Nhà chữ L mái bằng hiện đại |
| Tổng diện tích: 115m² | |
| Công năng:
Phòng khách, phòng thờ, phòng bếp, 3 phòng ngủ, 1 wc |
|
| Đơn vị thiết kế: CÔNG TY TNHH MAXHOME ARCHITECT & DESIGN | |
Mẫu nhà cấp 4 mái bằng thiết kế chữ L siêu ấn tượng
Ngôi nhà cấp 4 chữ L mái bằng gây ấn tượng ngay từ ánh nhìn đầu tiên nhờ hình khối kiến trúc vững chãi và tinh gọn, được tạo nên từ các đường nét thẳng mạnh mẽ và bố cục rõ ràng. Mảng tường sơn giả đá vân mây mang đến vẻ sang trọng hiện đại, trong khi phần ốp gạch trang trí tạo chiều sâu và tăng sức hút cho mặt tiền. Hệ cửa kính lớn giúp không gian luôn tràn ngập ánh sáng và mở rộng tầm nhìn ra cảnh quan xung quanh. Tất cả hòa lại thành một tổng thể hài hòa, sắc nét và mang đậm phong cách sống thời thượng.

Mặt tiền mở rộng tạo cảm giác thoáng và sang. Không gian xung quanh phủ đầy mảng xanh giúp tổng thể nhẹ nhàng và sống động hơn. Tông trắng và xám ghi được phối hợp gọn gàng, kết nối hài hòa với hệ cửa nhôm Xingfa và kính cường lực. Gạch trang trí và đá granite được chọn lọc kỹ, tạo chiều sâu và sự chắc chắn cho công trình. Sự kết hợp giữa màu sắc và các vật liệu ngoại thất tạo nên một mẫu nhà đẹp vừa hiện đại vừa sang trọng.

Ngôi nhà chữ L không chỉ tạo không gian linh hoạt, dễ dàng phân chia khu vực chức năng, mà còn giúp tối ưu hóa diện tích đất. Mẫu nhà được KTS sử dụng toàn bộ hệ cửa bằng nhôm kính cường lực mang đến vẻ đẹp hiện đại, sang trọng và tinh tế.
Hệ cửa kính làm tăng sự kết nối giữa không gian trong và ngoài, đồng thời tận dụng tối đa ánh sáng tự nhiên, tạo cảm giác thoáng đãng, rộng rãi. Đặc biệt, chất liệu nhôm kính không chỉ bền bỉ mà còn đảm bảo an toàn và dễ dàng vệ sinh, góp phần nâng cao chất lượng cuộc sống.

Hệ tam cấp gồm 5 bậc, tổng chiều cao khoảng 750 mm, tạo thế đứng cao ráo và vững vàng cho toàn bộ công trình. Chiều cao này giúp hạn chế nước mưa bắn ngược vào không gian trong nhà, giữ cho khu vực sảnh luôn sạch và khô.
Mặt sảnh và các bậc được ốp đá granite, sắc nét và bền chắc, tạo lối dẫn lên sảnh đón có điểm nhấn rõ ràng. Từng đường nét của bậc tam cấp gắn kết tự nhiên với khối kiến trúc chính, làm nổi bật vẻ sang trọng ngay từ bước chân đầu tiên.


Khám phá công năng tiện nghi vượt trội
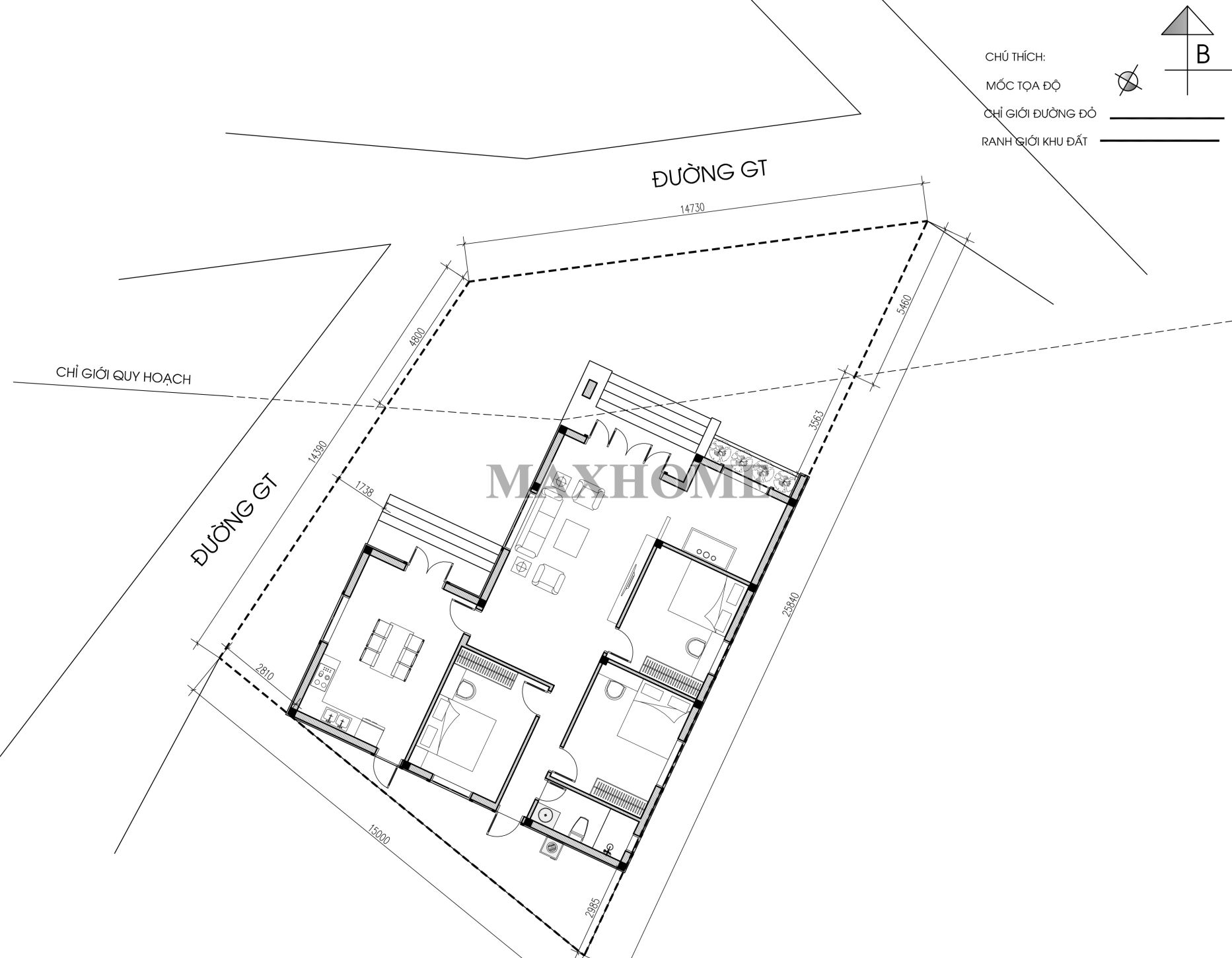
Bên cạnh vẻ đẹp kiến trúc tinh tế, sang trọng thì ngôi nhà cấp 4 chữ L mái bằng còn ghi điểm nhờ cách bố trí công năng hợp lý. Ba phòng ngủ được sắp đặt khoa học, vừa giữ thẩm mỹ vừa đáp ứng yếu tố phong thủy, mang đến cảm giác thoải mái cho mọi thành viên. Công trình nằm ở hướng Đông Bắc, kích thước xây dựng 11,8 x 13,8m với tổng diện tích sử dụng 115m², tạo nên một không gian sống gọn gàng, tiện nghi và dễ chịu.

Từ sảnh chính bước vào là phòng khách rộng và hiện đại, giữ vai trò trung tâm của ngôi nhà. Bên trái là phòng thờ trang nghiêm, tạo sự kết nối mạch lạc nhưng vẫn giữ được sự riêng tư cần thiết.
Sảnh phụ dẫn thẳng vào khu bếp và phòng ăn, nơi được bố trí gọn gàng, thuận tiện cho sinh hoạt mỗi ngày. Ba phòng ngủ được sắp xếp hợp lý, ấm cúng và đủ yên tĩnh để mỗi thành viên có không gian nghỉ ngơi thoải mái. Cuối nhà là WC chung, phục vụ trọn vẹn nhu cầu sinh hoạt của cả gia đình.


