Ngay từ cái nhìn đầu tiên, mẫu nhà cấp 4 mái Thái tân cổ điển của nhà chú Hùng ở Thanh Hoá đã mang đến cảm giác choáng ngợp bởi vẻ đẹp bề thế, chỉn chu và rất có chiều sâu. Đây là một trong những thiết kế nổi bật được thực hiện bởi Maxhome – đơn vị thiết kế kiến trúc hàng đầu Việt Nam.
Thông tin nhà cấp 4 mái Thái tân cổ điển
| Chủ đầu tư: Chú Ngô Quang Hùng | Địa chỉ: Thiệu Toán, Thanh Hoá |
| Mặt tiền: 15,9m | Kích thước xây dựng: 15,9 x 9,5m |
| Số tầng: 1 tầng | Loại hình: Nhà mái Nhật tân cổ điển |
| Tổng diện tích: 115m2 | |
| Công năng: Phòng khách, phòng bếp, 3 phòng ngủ, 1 phòng tắm, 2 wc | |
| Đơn vị thiết kế: CÔNG TY TNHH MAXHOME ARCHITECT & DESIGN | |
Ngoại thất nhà đẹp 1 tầng sang trọng và đẳng cấp
Mẫu nhà cấp 4 mái Thái tân cổ điển không phô trương cầu kỳ mà gây ấn tượng bằng những điểm nhấn tinh tế trong hình khối, màu sắc và cách xử lý chi tiết ngoại thất khiến bất kỳ ai đi ngang qua cũng phải dừng lại ngắm nhìn.
Điểm nhấn đầu tiên không thể không nhắc tới chính là hệ mái Thái đồ sộ, cân đối và mang đậm nét kiến trúc truyền thống Việt. Nhà cấp 4 mái Thái bề thế với màu ngói đỏ rực rỡ mang nét đẹp truyền thống mang cảm giác ấm cúng nhưng vẫn rất sang trọng.

Hệ mái cao tới 3,5m khiến tổng thể mẫu nhà đẹp trông cao ráo, vững chãi và cực kỳ chắc chắn. Đặc biệt, trên mái còn được bố trí thêm chi tiết ô cửa sổ giả đắp phào nổi, viền xung quanh mềm mại giúp phần mái không bị đơn điệu mà trở nên sinh động và có chiều sâu hơn, đúng chất nhà cấp 4 mái Thái tân cổ điển đang được ưa chuộng hiện nay.

Góp phần làm nên vẻ đẹp sang trọng cho công trình chính là cách phối màu sáng tạo và tinh tế từng góc nhìn. Một sự kết hợp hài hoà khác nữa làm nổi bật vẻ đẹp tân cổ điển của mẫu nhà là màu sơn giả đá vàng ở hệ cột và dưới hệ mái Thái sừng sững. Gam màu giả đá vàng mang lại cảm giác vững chãi, bền bỉ giúp các chi tiết cột vuông và phào chỉ trở nên nổi bật hơn hẳn. Khi đặt cạnh màu ngói đỏ, tổng thể công trình vừa có nét cổ điển sang trọng vừa gần gũi với kiến trúc truyền thống, rất phù hợp với thiết kế nhà cấp 4 mái Thái tân cổ điển.

Không gian sảnh chính là một điểm cộng lớn về mặt thẩm mỹ. Với chiều cao thông thuỷ tầng 1 lên tới 3,9m kết hợp cùng sảnh chính có vòm mái đưa lên cao đã giúp cho ngôi nhà cấp 4 càng trở nên cao ráo và thoáng mát hơn. Chi tiết vòm cong được đắp phào chỉ cẩn thận, bo tròn mềm mại tạo cảm giác sang trọng ngay từ lối vào. Phía dưới là hệ bậc tam cấp rộng rãi, cân đối giúp tôn thêm dáng vẻ bề thế cho tổng thể công trình, đồng thời mang đến cảm giác trang trọng mỗi khi bước vào nhà.

Bên cạnh đó, toàn bộ hệ tường được sơn màu trắng làm nền giúp công trình trông sáng sủa và thanh thoát hơn, đồng thời làm nổi bật rõ ràng các chi tiết kiến trúc như cột nhà, hệ mái Thái, phào chỉ và hệ cửa. Nhờ cách xử lý màu sắc khéo léo này mà ngôi nhà của chú Hùng không bị nặng nề hay rối mắt mà ngược lại còn tạo cảm giác hài hoà, dễ chịu, phù hợp với cảnh quan xung quanh tại Thanh Hoá. Đây cũng là lý do vì sao nhiều gia chủ hiện nay ưu tiên lựa chọn phong cách nhà cấp 4 mái Thái tân cổ điển cho tổ ấm của mình.

Hệ cửa cũng là một yếu tố góp phần hoàn thiện vẻ đẹp ngoại thất của công trình. Cửa chính nổi bật với màu nâu gỗ sang trọng, mạnh mẽ ở mặt tiền và mang lại cảm giác ấm áp, gần gũi. Các ô cửa còn lại sử dụng hệ nhôm kính hiện đại giúp đảm bảo ánh sáng tự nhiên và giữ được nét đẹp cổ kính sang trọng của phong cách tân cổ điển. Sự kết hợp này giúp mẫu nhà cấp 4 mái Thái tân cổ điển của nhà chú Hùng không chỉ đẹp về hình thức mà còn thể hiện rõ gu thẩm mỹ tinh tế của gia chủ cũng như dấu ấn thiết kế chuyên nghiệp từ Maxhome.
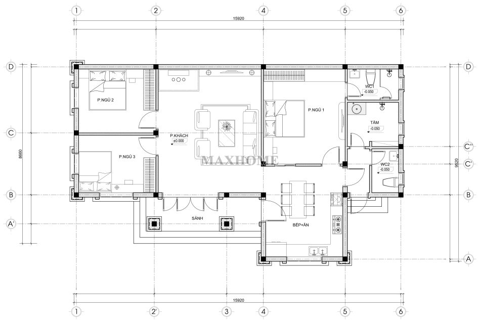
Mặt bằng bố trí tiện nghi cho nhà cấp 4

Không gian phòng khách được đặt ở vị trí trung tâm ở ngay sau sảnh chính giúp thuận tiện đón tiếp khách và cũng là nơi sinh hoạt chung ấm cúng của cả gia đình chú Hùng. Khu vực bếp và phòng ăn được bố trí liền mạch bên cạnh để đảm bảo sự kết nối khi sử dụng nhưng vẫn giữ được cảm giác gọn gàng, riêng tư và thoáng đãng.

Ba phòng ngủ được sắp xếp xung quanh với diện tích vừa phải để đảm bảo sự yên tĩnh và thoải mái cho từng thành viên, phù hợp cho cả người lớn tuổi lẫn con cháu. Bên cạnh đó, ngôi nhà có 1 phòng tắm chung và 2 nhà vệ sinh bố trí hợp lý giúp việc sinh hoạt hằng ngày luôn thuận tiện, tránh tình trạng quá tải vào giờ cao điểm. Tổng thể công năng được Maxhome tính toán kỹ lưỡng, tối ưu diện tích sử dụng giúp mang lại cảm giác tiện nghi, thoải mái và rất phù hợp với nếp sống gia đình Việt.






