Trong những năm gần đây, nhà 2 tầng 1 tum phong cách tân cổ điển đang trở thành lựa chọn được nhiều gia chủ tại Hưng Yên quan tâm nhờ sự kết hợp hài hòa giữa vẻ đẹp sang trọng và công năng sử dụng linh hoạt. Trong bài viết dưới đây, Maxhome xin giới thiệu bản vẽ nhà tân cổ điển được nghiên cứu kỹ lưỡng về công năng, thẩm mỹ và phong thủy, giúp gia chủ dễ dàng hình dung và triển khai xây dựng trong thực tế.
Thông tin nhà 2 tầng 1 tum tân cổ điển
| Chủ đầu tư: Anh Ngô Duy Khiêm | Địa chỉ: Thái Ninh, Hưng Yên |
| Mặt tiền: 6m | Kích thước xây dựng: 6 x 20,9m |
| Số tầng: 2 tầng 1 tum | Loại hình: Nhà phố tân cổ điển |
| Tổng diện tích: 191m2 | |
Công năng:
| |
| Đơn vị thiết kế: CÔNG TY TNHH MAXHOME ARCHITECT & DESIGN | |
Ngoại thất nhà 2 tầng 1 tum tân cổ điển đẹp
Gia đình anh Khiêm sở hữu mảnh đất nằm trên một tuyến phố yên tĩnh tại Hưng Yên với mặt tiền khá hẹp, chỉ hơn 6m nhưng chiều sâu lên tới hơn 20,9m. Từ đặc điểm khu đất này, gia chủ mong muốn xây dựng một ngôi nhà phố dạng ống mang phong cách tân cổ điển, vừa đảm bảo sự bề thế, sang trọng ở mặt tiền, vừa tối ưu công năng cho không gian sinh hoạt bên trong. Đây cũng chính là bài toán thiết kế đòi hỏi sự nghiên cứu kỹ lưỡng về hình khối, tỷ lệ và giải pháp không gian để công trình vừa đẹp, vừa phù hợp với điều kiện thực tế của khu đất.

Khác với nhiều mẫu nhà phố thông thường có mặt tiền phẳng nhằm tối ưu diện tích nhưng dễ tạo cảm giác đơn điệu, mẫu nhà 2 tầng 1 tum phong cách tân cổ điển này được kiến trúc sư xử lý mặt đứng một cách tinh tế và giàu điểm nhấn. Nổi bật tại tầng 2 là chi tiết vương miện vươn ra đầy uy nghi, tạo cảm giác bề thế và mang đến diện mạo mới mẻ, thu hút ngay từ ánh nhìn đầu tiên.
Hệ phào chỉ và hoa văn trang trí được chạm khắc tỉ mỉ, thể hiện rõ đặc trưng của kiến trúc tân cổ điển với bố cục đăng đối, tỷ lệ cân xứng và tính đối xứng chặt chẽ. Sự kết hợp hài hòa giữa các chi tiết trang trí và hình khối kiến trúc không chỉ nâng cao giá trị thẩm mỹ cho mặt tiền, mà còn giúp công trình toát lên vẻ sang trọng, tinh tế và bền vững theo thời gian.

Trong bản vẽ nhà 2 tầng 1 tum phong cách tân cổ điển, gam màu trắng được lựa chọn làm tông màu chủ đạo, giúp tôn lên vẻ thanh lịch, tinh tế và làm nổi bật các chi tiết kiến trúc. Sự kết hợp hài hòa giữa màu trắng và sắc vàng đồng của lan can ban công được xem là “linh hồn” của phong cách tân cổ điển, mang đến cảm giác sang trọng, quý phái và đẳng cấp cho tổng thể công trình. Bên cạnh đó, thiết kế còn khéo léo tạo điểm nhấn bằng gam màu đen huyền bí của hệ cửa sổ nhôm Xingfa kết hợp kính cường lực, vừa tăng tính tương phản thị giác, vừa mang lại nét hiện đại, chắc chắn.

Từ góc quan sát này có thể thấy rõ mẫu nhà 2 tầng 1 tum phong cách tân cổ điển được chăm chút kỹ lưỡng trong từng chi tiết. Lan can ban công tầng tum sử dụng bê tông con tiện với đường nét sắc sảo, cân đối, vừa đảm bảo độ chắc chắn, vừa tôn lên vẻ bề thế và sang trọng cho tổng thể kiến trúc. Thiết kế con tiện mang đậm dấu ấn tân cổ điển, góp phần tạo nên sự hài hòa, thống nhất với các chi tiết phào chỉ và hình khối mặt tiền, đồng thời giúp công trình trở nên nổi bật và cuốn hút hơn khi nhìn từ nhiều góc độ.

Mẫu nhà 2 tầng 1 tum sử dụng hệ mái bằng với kết cấu gọn gàng, khoa học đang được nhiều gia chủ ưu tiên lựa chọn hiện nay. Không chỉ ghi điểm về tính thẩm mỹ hiện đại, mái bằng còn giúp tối ưu chi phí xây dựng và dễ dàng thi công. Bên cạnh đó, phần mái được thiết kế độ dốc thoát nước hợp lý, kết hợp bố trí hệ thống ống thoát nước âm mái dẫn xuống phía dưới, đảm bảo khả năng chống thấm, thoát nước hiệu quả và tăng độ bền vững cho công trình theo thời gian.

Khám phá công năng nhà phố 2 tầng 1 tum
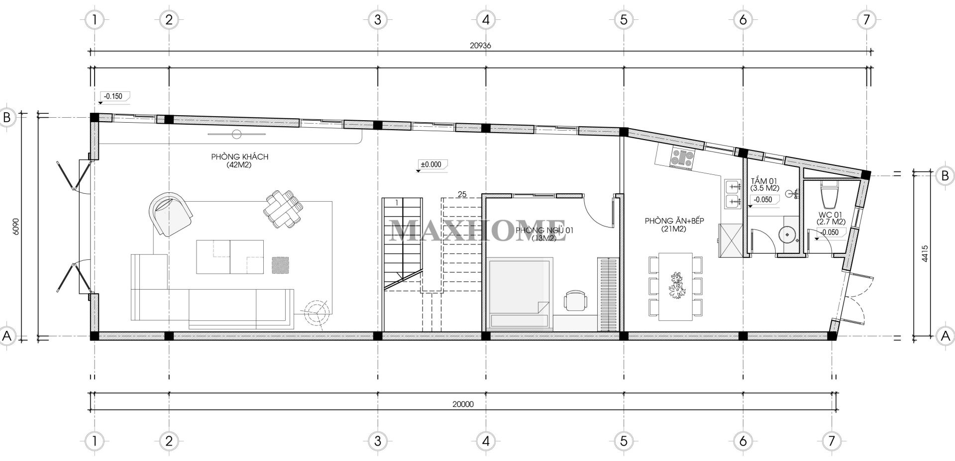
Công trình được xây dựng trên khu đất giáp trực tiếp mặt đường giao thông chính, thuận tiện cho việc di chuyển và sinh hoạt hằng ngày. Với kích thước xây dựng 6 x 20,9m, ngôi nhà được quy hoạch hợp lý theo dạng nhà ống, tận dụng tối đa chiều sâu khu đất. Tổng diện tích sử dụng khoảng 191m², đáp ứng đầy đủ nhu cầu về không gian sinh hoạt, nghỉ ngơi và tiện nghi cho gia đình, đồng thời đảm bảo sự thông thoáng và công năng khoa học trong quá trình sử dụng lâu dài.

Từ cửa chính bước vào là không gian phòng khách rộng rãi, thoáng đãng, được bố trí ở vị trí trung tâm nhằm tạo cảm giác sang trọng và thuận tiện cho việc tiếp đón khách. Tiến sâu vào bên trong, khu vực cầu thang được sắp xếp gọn gàng, vừa đảm bảo lưu thông mạch lạc vừa tối ưu diện tích sử dụng. Kế tiếp là phòng ngủ yên tĩnh, phù hợp cho nhu cầu nghỉ ngơi. Cuối nhà là khu vực bếp và phòng ăn ấm cúng, được bố trí liên thông, thuận tiện cho sinh hoạt gia đình. Bên cạnh bếp là nhà vệ sinh chung và phòng tắm riêng biệt, thiết kế khoa học, đảm bảo sự tiện nghi và sạch sẽ trong quá trình sử dụng.

Tầng 2 được bố trí hợp lý với phòng sinh hoạt chung rộng 13m², là nơi lý tưởng để cả gia đình quây quần và thư giãn. Kế tiếp là 2 phòng ngủ tiện nghi, được thiết kế đảm bảo ánh sáng và thông gió tự nhiên, mang lại không gian nghỉ ngơi thoải mái. Cuối nhà là sân phơi rộng rãi cùng nhà vệ sinh chung, được bố trí khoa học, thuận tiện cho sinh hoạt hàng ngày và giữ gìn sự ngăn nắp, sạch sẽ cho toàn bộ tầng.

Tầng tum được thiết kế là khoảng sân chơi rộng rãi, mang đến không gian thư giãn thoáng đãng cho cả gia đình. Tại đây, gia chủ có thể bố trí bộ bàn trà để thưởng thức cảnh quan, đồng thời trồng cây xanh, hoa lá tạo nên khu vườn mini trên cao, vừa điều hòa không khí vừa tăng tính thẩm mỹ và sự gần gũi với thiên nhiên cho ngôi nhà.







