Sở hữu mảnh đất xéo luôn khiến nhiều gia đình lo lắng không biết nên thiết kế ra sao để ngôi nhà vừa đẹp vừa hợp phong thủy. Nếu bạn đang tìm một giải pháp rõ ràng và hiệu quả, mẫu nhà phố tân cổ điển 3 tầng mà Maxhome thiết kế cho gia đình cô Duyệt tại Lạng Sơn là phương án rất đáng tham khảo. Công trình giữ được vẻ sang trọng của tân cổ điển nhưng vẫn xử lý khéo hình dạng đất, tạo nên mặt tiền cân đối và không gian sống thoáng. Nhờ cách bố trí thông minh, mọi góc nhà đều được tận dụng, mang lại sự tiện nghi mà nhiều chủ nhà có mảnh đất méo đang mong chờ.
Thông tin công trình nhà phố tân cổ điển
| Chủ đầu tư: Cô Nông Thị Thanh Duyệt | Địa chỉ: Đông Kinh, Lạng Sơn |
| Mặt tiền: 8,5m | Kích thước xây dựng: 8,5 x 12,4m |
| Số tầng: 3 tầng | Loại hình: Nhà phố tân cổ điển |
| Tổng diện tích: 260m² | |
Công năng:
|
|
| Đơn vị thiết kế: CÔNG TY TNHH MAXHOME ARCHITECT & DESIGN | |
Thiết kế nhà phố tân cổ điển 3 tầng đẹp hút mắt
Mẫu nhà phố 3 tầng toát lên vẻ sang trọng, bề thế nhưng vẫn giữ được sự thanh lịch đặc trưng của phong cách tân cổ điển hiện đại. Những đường phào chỉ trên mặt tiền được xử lý tinh tế, tạo chiều sâu cho công trình mà không làm nó trở nên nặng nề. Nhờ sự cân bằng giữa hình khối vững chãi và chi tiết trang trí có chọn lọc, ngôi nhà gây ấn tượng ngay từ khoảnh khắc đầu tiên, thể hiện rõ gu thẩm mỹ và sự đầu tư của gia chủ.

Điểm đầu tiên gây chú ý ở mẫu nhà phố tân cổ điển 3 tầng này chính là mặt tiền đối xứng theo chiều ngang, tạo cảm giác cân bằng cho tổng thể dù thửa đất vốn không vuông vức. Đây là bài toán quan trọng mà KTS Maxhome đã xử lý khéo léo. KTS chọn giải pháp điều chỉnh hình khối về phía trái để “giấu” phần xéo đất một cách tự nhiên, đồng thời giữ mặt tiền vuông vắn để công trình trông ngay ngắn và sang hơn. Kết quả là người nhìn khó có thể nhận ra sự bất lợi của thửa đất ban đầu.

Kiến trúc tân cổ điển được thể hiện qua hệ phào chỉ nhẹ, bố cục cột giả chạy thẳng tầng một lên tầng ba và đặc biệt là chi tiết phù điêu lớn ở đỉnh mái. Phần đắp phù điêu được tạo hình cân đối, đường nét gọn và sắc, không bị nặng nề như phong cách cổ điển truyền thống. Nhờ vậy mà công trình giữ được vẻ sang trọng nhưng vẫn hợp thị hiếu hiện nay.
Một trong những điểm nhấn mạnh nhất của ngôi nhà chính là hệ lan can nhôm đúc nghệ thuật mạ vàng. Màu vàng ấm nhẹ, không quá chói, tạo nên sự nổi bật vừa đủ trên nền trắng tinh của sơn ngoại thất. Sự kết hợp này làm mặt tiền sáng và giàu tính thẩm mỹ hơn, đồng thời tăng cảm giác cao cấp cho tổng thể ngôi nhà.

Tầng một được ốp đá sáng màu, chạy đều từ hai cửa cuốn lớn đến các mảng tường bên cạnh. Việc sử dụng đá ốp không chỉ tăng độ bền mà còn giúp phần đế nhà trở nên vững và sạch mắt. Nhìn vào tổng thể, tầng một giống như một bệ đặt chắc chắn cho hai tầng trên. Các đèn tường được bố trí đều, vừa mang lại hiệu quả chiếu sáng vừa làm nổi bật đường nét kiến trúc vào ban đêm.
Hệ cửa được KTS chọn theo tông đen hiện đại, dùng chất liệu kính cường lực kết hợp khung nhôm xingfa chắc chắn. Tông kính ấm nhẹ tạo cảm giác gần gũi và giữ được sự riêng tư cần thiết. Cách phối màu cửa tối – tường trắng – lan can vàng khiến mặt tiền có chiều sâu và độ tương phản tự nhiên, tạo nên vẻ đẹp hài hòa và sang trọng. Đây là kiểu phối màu thịnh hành trong các công trình tân cổ điển mới, vì vừa sang vừa giữ được tính bền vững theo thời gian.

Sang đến tổng thể hình khối, KTS Maxhome đã chọn cách giữ mặt phẳng tường bên hông đơn giản. Những ô cửa nhỏ hình chữ nhật được đặt có chủ đích để đảm bảo lấy sáng và cân chỉnh bố cục. Sự giản lược này tạo cảm giác công trình sang theo kiểu tinh gọn, không cần thêm quá nhiều chi tiết nhưng vẫn đảm bảo đầy đủ công năng và thẩm mỹ.

Từ góc nhìn trên cao, có thể thấy công trình được xây sát một cạnh đất để phần diện tích còn lại được tối ưu làm sân và lối kỹ thuật. Lối tiếp cận nhà rộng, thoáng nhờ khoảng vỉa hè đẹp bên ngoài. Hàng rào gạch bông gió trắng ở cạnh trái là một điểm chấm phá thú vị. Nó vừa tạo sự thoáng khí cho khu sân nhỏ bên trong vừa giữ được tính riêng tư.
Phần mái bằng rộng rãi có thể tận dụng đặt téc nước và thái dương năng mà vẫn còn không gian để gia đình bố trí thêm khu phơi hoặc một góc thư giãn sau này. Không chỉ đẹp, thiết kế còn chú trọng đến mảng xanh. Ban công các tầng đều có chỗ đặt cây cảnh, mang lại sự mềm mại và giảm bớt độ khô của khối nhà. Khi nhìn từ xa, những mảng xanh tạo ra điểm nghỉ cho mắt, giúp công trình trở nên gần gũi và dễ chịu hơn.
Mặt bằng công năng khoa học tiện nghi

Công trình được đặt trên khu đất hướng Đông Nam, một hướng nhận gió tốt và ánh sáng ổn định nên không gian sống luôn thoáng và dễ chịu. Ngôi nhà có kích thước 9,5 x 10,3 m, đủ rộng để KTS tổ chức hình khối vuông vức và bố trí mặt bằng hợp lý dù thửa đất ban đầu không hoàn toàn đều. Với tổng diện tích sử dụng khoảng 260m², công trình đảm bảo đầy đủ không gian sinh hoạt cho gia đình nhiều thế hệ, đồng thời vẫn giữ được sự thông thoáng và tính thẩm mỹ đặc trưng của phong cách tân cổ điển.

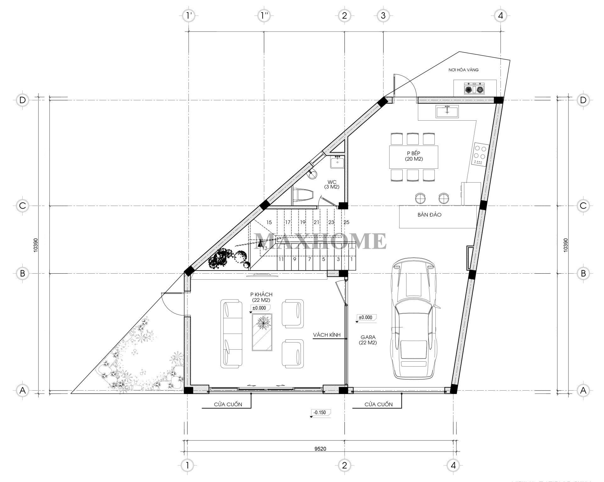
Tầng 1 được bố trí dựa trên hình dạng đất xéo, tạo nên mặt bằng hợp lý và thuận tiện khi sử dụng. Ngay sau cửa cuốn là gara ô tô. Kế bên là phòng khách, đặt tại vị trí vuông vức nhất của tầng, giúp không gian tiếp khách luôn gọn và sang. Hai khu vực này được ngăn bằng vách kính để giữ sự thông thoáng mà vẫn đảm bảo tách biệt rõ ràng.
Ở trung tâm tầng là cầu thang kết hợp tiểu cảnh, vừa làm mềm không gian vừa giảm cảm giác gấp khúc do đất xéo tạo ra. Khu bếp ăn nằm về phía cuối nhà, sở hữu mặt bằng rộng theo chiều dài nên rất dễ bố trí đồ nội thất. Bếp có thêm bàn đảo và cửa mở ra sân sau, giúp căn nhà đón gió tự nhiên và giảm mùi khi nấu nướng. Tầng một còn có một nhà vệ sinh chung đặt kín đáo dưới chân cầu thang, tiện sử dụng mà không ảnh hưởng đến thẩm mỹ chung.

Tầng hai được tổ chức khoa học với hai phòng ngủ rộng rãi đặt ở hai phía, đảm bảo sự riêng tư và thoáng sáng tự nhiên. Phòng ngủ lớn có phòng thay đồ kèm nhà vệ sinh riêng, tạo thành một không gian sinh hoạt khép kín tiện nghi. Phòng ngủ còn lại cũng được bố trí gần khu vệ sinh và khu thông tầng, giúp cả tầng luôn thoáng và dễ sử dụng trong sinh hoạt hằng ngày.

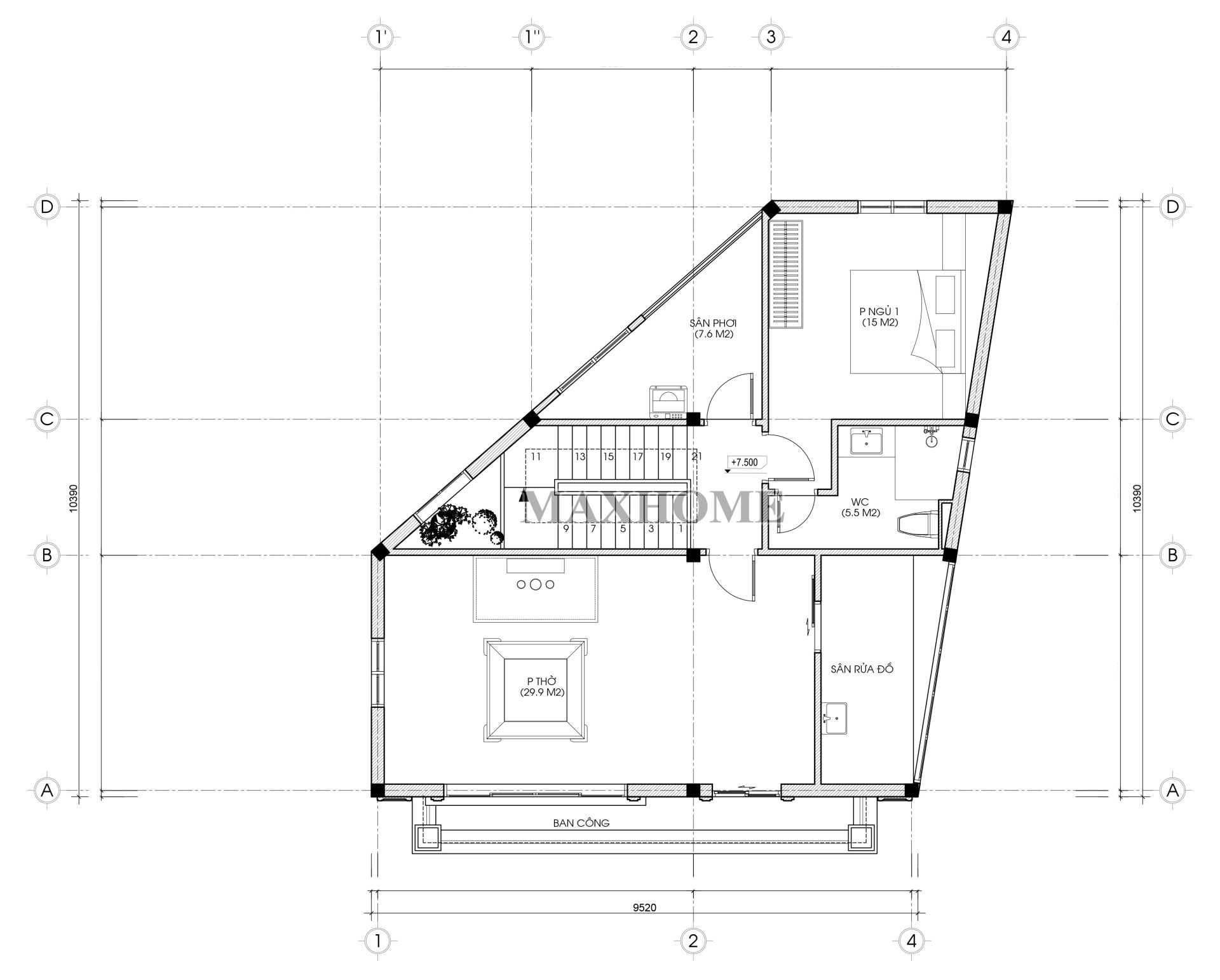
Tầng 3 có phòng thờ gần 30m² mở ra ban công, tạo cảm giác trang nghiêm và luôn thoáng sáng. Bên phải là một phòng ngủ khép kín, bố trí gọn gàng để di chuyển dễ và dùng hằng ngày thuận tiện. Cuối nhà là khu giặt và sân phơi riêng, giúp việc giặt sấy sạch sẽ và không ảnh hưởng đến các phòng khác.

