Đắk Lắk là vùng đất của những đồi cà phê bạt ngàn và cái nắng gió đặc trưng của đại ngàn Tây Nguyên nên những công trình nhà ở tại đây không chỉ đẹp mà còn phải bền bỉ và thông thoáng. Thấu hiểu điều đó, đội ngũ kiến trúc sư Maxhome đã kiến tạo nên một không gian sống lý tưởng cho gia đình anh Tấn mẫu nhà cấp 4 3 phòng ngủ hoàn mỹ giữa nét kiến trúc hiện đại và khả năng thích ứng tuyệt vời với khí hậu địa phương, mang đến một diện mạo thanh lịch nhưng không kém phần vững chãi giữa cao nguyên xanh.
Thông tin nhà cấp 4 3 phòng ngủ ở Đắk Lắk
| Chủ đầu tư: Anh Hà Văn Tấn | Địa chỉ: Ea Súp, Đắk Lắk |
| Mặt tiền: 9,4m | Kích thước xây dựng: 9,4 x 15,1m |
| Số tầng: 1 tầng | Loại hình: Nhà mái Nhật hiện đại |
| Tổng diện tích: 115m2 | |
| Công năng:
Phòng khách, phòng thờ, phòng bếp, 3 phòng ngủ, 1 wc |
|
| Đơn vị thiết kế: CÔNG TY TNHH MAXHOME ARCHITECT & DESIGN | |
Tham quan mẫu nhà đẹp có phối cảnh đẹp như mơ
Ngôi nhà cấp 4 3 phòng ngủ hiện lên đầy ấn tượng với hệ mái Nhật màu xanh nổi bật trên nền sơn trắng tinh khôi. Điểm nhấn kỹ thuật đáng chú ý đầu tiên chính là tỷ lệ vàng trong thiết kế chiều cao: công trình có chiều cao thông thủy lên đến 3,9m kết hợp cùng hệ mái cao 2,7m. Cách tính toán này không chỉ tạo ra sự thanh thoát, cao ráo cho công trình mà còn giúp lưu thông không khí cực tốt, giải quyết triệt để bài toán oi nóng của vùng đất Đắk Lắk vào những ngày nắng gắt.

Đặc biệt, để tôn thêm vị thế và sự bề thế cho mẫu nhà đẹp thì nền nhà được nâng cao 750mm so với mặt sân tạo thành hệ 5 bậc cấp đi vào sảnh chính. Toàn bộ mặt bậc được ốp đá Granite cao cấp với độ bền cơ học cao, chịu được tác động khắc nghiệt của thời tiết đồng thời mang lại cảm giác sang trọng, vững chãi ngay từ những bước chân đầu tiên vào nhà.

Sự tỉ mỉ của Maxhome còn được thể hiện qua các chi tiết trang trí ngoại thất đầy tính nghệ thuật. Khu vực sảnh chính được thiết kế khang trang với hai cột vuông to bản, uy nghi nâng đỡ toàn bộ mái hiên. Điểm khéo léo nằm ở chi tiết đường kẻ chỉ lớn giữa thân cột được sơn màu xanh đồng điệu với hệ mái tạo nên một sợi dây liên kết vô hình nhưng chặt chẽ trong ngôn ngữ thiết kế. Ở phía dưới, phần chân tường bao quanh ngôi nhà được ốp gạch trang trí tông màu đen tuyền giúp bảo vệ diện tường khỏi rêu mốc, bụi bẩn từ đất đỏ bazan và tạo ra một bệ đỡ thị giác cực kỳ vững chắc, làm nổi bật lên vẻ đẹp hiện đại của mẫu nhà cấp 4 3 phòng ngủ này. Trên các diện tường trắng, những đường chỉ âm tường kích thước 40x20mm được kẻ đều đặn, xóa đi sự đơn điệu của những mảng tường phẳng thông thường và mang đến những nhịp điệu kiến trúc tinh tế và sắc nét.

Bên cạnh sảnh chính, hệ thống cửa của ngôi nhà cấp 4 cũng là một điểm cộng lớn về cả thẩm mỹ lẫn công năng. Anh Tấn đã lựa chọn mẫu cửa thép vân gỗ cho cửa chính đang rất hot hiện nay, loại cửa này mô phỏng hoàn hảo vẻ đẹp ấm cúng của gỗ tự nhiên nhưng lại khắc phục hoàn toàn nhược điểm của thời tiết Tây Nguyên như cong vênh hay mối mọt. Để tối ưu ánh sáng tự nhiên, toàn bộ hệ thống cửa sổ đều sử dụng khung nhôm hệ kết hợp kính cường lực dày 8mm.

Những ô cửa kính lớn không chỉ giúp gia đình anh Tấn có thể phóng tầm mắt ngắm nhìn khu vườn xanh mát bên ngoài mà còn tạo cảm giác không gian bên trong mẫu nhà cấp 4 3 phòng ngủ luôn tràn ngập năng lượng. Ngoài ra, ngôi nhà còn được bố trí một sảnh phụ lùi về phía sau với lối đi nhỏ gọn 1,4m có mái che độc đáo giúp thuận tiện trong sinh hoạt hằng ngày và tăng thêm tính đa dạng cho hình khối kiến trúc.

Sự trọn vẹn của mẫu nhà cấp 4 3 phòng ngủ không thể không kể đến hệ thống cổng và tường rào bao quanh được thiết kế đồng bộ hoàn hảo. Tường rào được xây dựng với các khoảng thoáng sử dụng nan bê tông trắng giúp không gian không bị bí bách mà vẫn đảm bảo sự riêng tư và an toàn. Cổng chính với các thanh nan dọc tông màu gỗ hài hòa với cửa chính đã tạo nên một chỉnh thể thống nhất từ ngoài vào trong.

Công năng tiện nghi của căn nhà cấp 4 3 phòng ngủ

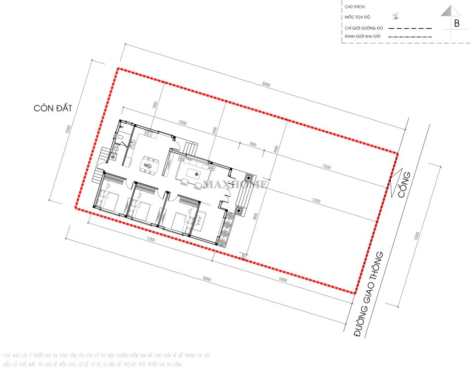
Xét về vị thế, ngôi nhà của anh Tấn được quy hoạch vô cùng bài bản trên một khuôn viên đất rộng rãi, đảm bảo sự thông thoáng tối đa cho một mẫu nhà cấp 4 3 phòng ngủ. Bản vẽ định vị cho thấy công trình được đặt lùi về phía sau khu đất, nhường một khoảng sân trước rất lớn lên đến hơn 13m tính từ cổng chính để chừa một khoảng đệm xanh mát ngăn cách tiếng ồn và khói bụi từ đường giao thông. Với kích thước xây dựng khoảng 9,4×15,1m, ngôi nhà tận dụng được lợi thế đất dài để bố trí các mặt thoáng xung quanh.

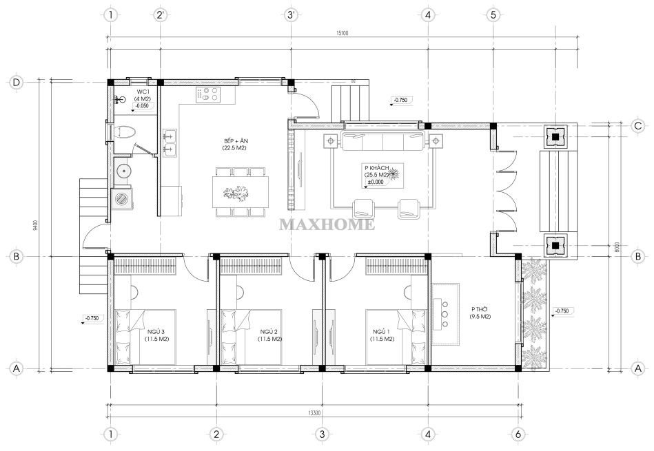
Về phương án bố trí công năng, các kiến trúc sư Maxhome đã khéo léo sắp xếp các khu vực sinh hoạt một cách khoa học và tối ưu diện tích sử dụng. Từ sảnh chính đi vào là không gian phòng khách rộng 25,5m2 sang trọng, cạnh đó là phòng thờ trang nghiêm có diện tích 9,5m2 hướng ra mặt tiền. Khu vực bếp và phòng ăn rộng 22,5m2 được đặt phía sau, có cửa sảnh phụ riêng biệt giúp việc đi lại và thoát mùi thức ăn trở nên thuận tiện hơn.

Điểm nhấn chính của ngôi nhà là hệ thống 3 phòng ngủ được bố trí liền kề nhau dọc theo một trục hành lang, mỗi phòng đều có diện tích 11,5m2 với cửa sổ lớn mở ra không gian bên ngoài. Cách thiết kế này giúp mẫu nhà cấp 4 3 phòng ngủ vừa đảm bảo tính kết nối giữa các thành viên vừa giữ được sự riêng tư cần thiết và đồng thời tối ưu hóa công năng cho một gia đình hiện đại.

