Có ai nói rằng đất méo là khó xây nhà đẹp? Mời bạn tham khảo thử, nhờ mảnh đất tưởng bất lợi của chị Mỹ ở Hà Nội lại trở thành nguồn cảm hứng cho đội ngũ thiết kế Maxhome tạo nên một công trình cực kỳ độc đáo. Mẫu nhà phố 3 tầng trên đất méo này không chỉ khắc phục khéo léo những giới hạn về hình dáng khu đất mà còn biến chúng thành điểm nhấn kiến trúc ấn tượng.
Thông tin nhà phố 3 tầng trên đất méo
| Chủ đầu tư: Chị Phạm Kỳ Mỹ | Địa chỉ: Chuyên Mỹ, Phú Xuyên, Hà Nội |
| Mặt tiền: 9,6m | Kích thước xây dựng: 4 x 2,8 x 4 x 5,6m |
| Số tầng: 3 tầng | Loại hình: Nhà mái bằng hiện đại |
| Tổng diện tích: 160m2 | |
Công năng:
| |
| Đơn vị thiết kế: CÔNG TY TNHH MAXHOME ARCHITECT & DESIGN | |
Mẫu nhà phố 3 tầng độc đáo ở Hà Nội
Ngay từ hình ảnh đầu tiền của mẫu thiết kế nhà phố 3 tầng trên đất méo, công trình gây ấn tượng bởi hình khối kiến trúc độc đáo vừa gọn gàng vừa tinh tế. Phần góc bo tròn mềm mại ở một bên giúp khắc phục sự gãy khúc thường thấy ở các khu đất không vuông vức đồng thời tạo nên nét nhận diện riêng biệt cho công trình. Từng đường cong, từng mảng khối đều được tính toán cẩn thận để ngôi nhà vừa đẹp vừa tiện nghi lại mang đậm phong cách hiện đại của đô thị hôm nay.

Hệ thống cửa kính lớn được bố trí hợp lý trên các tầng giúp nhà phố 3 tầng trên đất méo luôn ngập tràn ánh sáng tự nhiên. Khung cửa nhôm sơn đen mang lại cảm giác chắc chắn, đối lập nhẹ với màu tường trắng giúp tạo nên sự cân bằng hài hòa. Đặc biệt, phần ban công tầng 2 cong nhẹ ở mặt tiền giúp làm điểm nhấn thẩm mỹ và mở rộng tầm nhìn, gia chủ sẽ dễ dàng cảm nhận hơi thở của thiên nhiên ngay giữa phố thị dù khuôn viên không quá rộng rãi.

Từng chi tiết như lan can kính hay cửa vòm trang trí đều được thiết kế tỉ mỉ để đảm bảo tính thẩm mỹ và góp phần che nắng, giảm bức xạ nhiệt cho ngôi nhà. Ngoài ra, màu sơn trắng chủ đạo kết hợp cùng những mảng tường ốp gạch xám trung tính giúp tổng thể ngôi nhà phố 3 tầng toát lên vẻ hiện đại, sạch sẽ và sang trọng. Cách phối màu khéo léo này giúp nổi bật các chi tiết kiến trúc và còn khiến công trình hòa hợp với không gian xung quanh một cách tự nhiên.

Một yếu tố đáng chú ý khác trong thiết kế ngoại thất của công trình nhà chị Mỹ chính là cách Maxhome xử lý phần khối đứng và khối ngang. Ở mẫu nhà phố 3 tầng trên đất méo, đội ngũ thiết kế Maxhome đã tinh tế sắp xếp các mảng tường và cửa sổ so le tạo hiệu ứng thị giác mạnh mẽ để giúp mặt tiền trông sâu và có chiều cao hơn. Dù diện tích đất không lớn với 160m2 cho 3 mặt sàn, ngôi nhà vẫn mang đến cảm giác thoáng đãng và hiện đại nhờ tỷ lệ khối kiến trúc cân đối và hợp lý. Từng tầng đều được nhấn nhá bằng các chi tiết vừa đủ, tránh rườm rà nhưng vẫn thể hiện rõ phong cách riêng của gia chủ.

Phần mái bằng phẳng được bố trí thêm bồn nước và hệ thống năng lượng mặt trời gọn gàng thể hiện sự thực tế và tiện nghi trong thiết kế. Với địa hình đất méo, Maxhome đã khéo léo xử lý phần bên hông nhà bằng các bức tường phẳng do sau này sát vách với hàng xóm nhưng dù sao phương án này cũng giúp tiết kiệm chi phí và tăng khả năng cách nhiệt.

Giữa những khu đô thị lớn, đặc biệt ở thủ đô Hà Nội có quỹ đất hạn chế và hình dáng không vuông vức, mẫu nhà phố 3 tầng trên đất méo của chị Mỹ tại Hà Nội đã mang đến một giải pháp kiến trúc hoàn hảo từ thẩm mỹ tới công năng và sự linh hoạt trong thiết kế để tạo nên một không gian sống đáng mơ ước.
Công năng được tính toán kỹ lưỡng trên mảnh đất không vuông vức

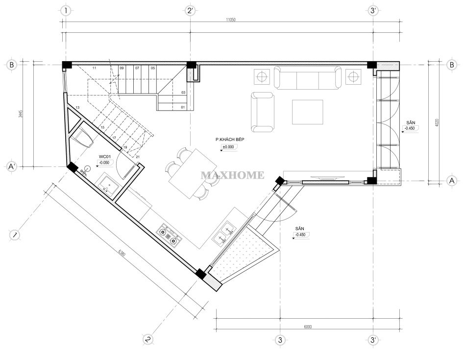
Hình ảnh mặt bằng định vị được chụp từ flycam cho thấy rõ hình dáng khu đất đặc biệt với một tam giác lệch với nhiều góc khác. Đây chính là yếu tố khiến thiết kế mẫu nhà phố 3 tầng trên đất méo của Maxhome trở nên ấn tượng và khác biệt. Đội ngũ thiết kế đã tận dụng tối đa diện tích đất méo đồng thời xử lý khéo léo các góc chéo bằng đường bo cong mềm mại giúp không gian tổng thể vừa gọn gàng vừa đạt hiệu quả thẩm mỹ cao. Dù mảnh đất có hình dạng bất lợi nhưng ngôi nhà vẫn được bố trí hợp lý để có lối ra vào thuận tiện và khoảng sân nhỏ phía trước giúp tạo nên cảm giác thông thoáng ngay từ tầng 1.

Tầng 1 của nhà phố 3 tầng được thiết kế mở mang lại cảm giác rộng rãi và liền mạch. Ngay từ cửa chính bước vào là phòng khách bố trí gọn gàng với bộ sofa hiện đại hướng ra mặt tiền lớn để đón ánh sáng tự nhiên tràn ngập. Khu vực bếp ăn được sắp xếp về phía sau vừa đủ riêng tư nhưng vẫn thuận tiện di chuyển. Không gian nấu ăn được thiết kế hệ tủ bếp hình chữ L và tận dụng triệt để góc méo của khu đất để bố trí bếp, chậu rửa và khu bàn ăn hợp lý. Cuối cùng là 1 nhà vệ sinh chung nằm cạnh cầu thang giúp tối ưu diện tích mà vẫn tiện lợi cho sinh hoạt hằng ngày.

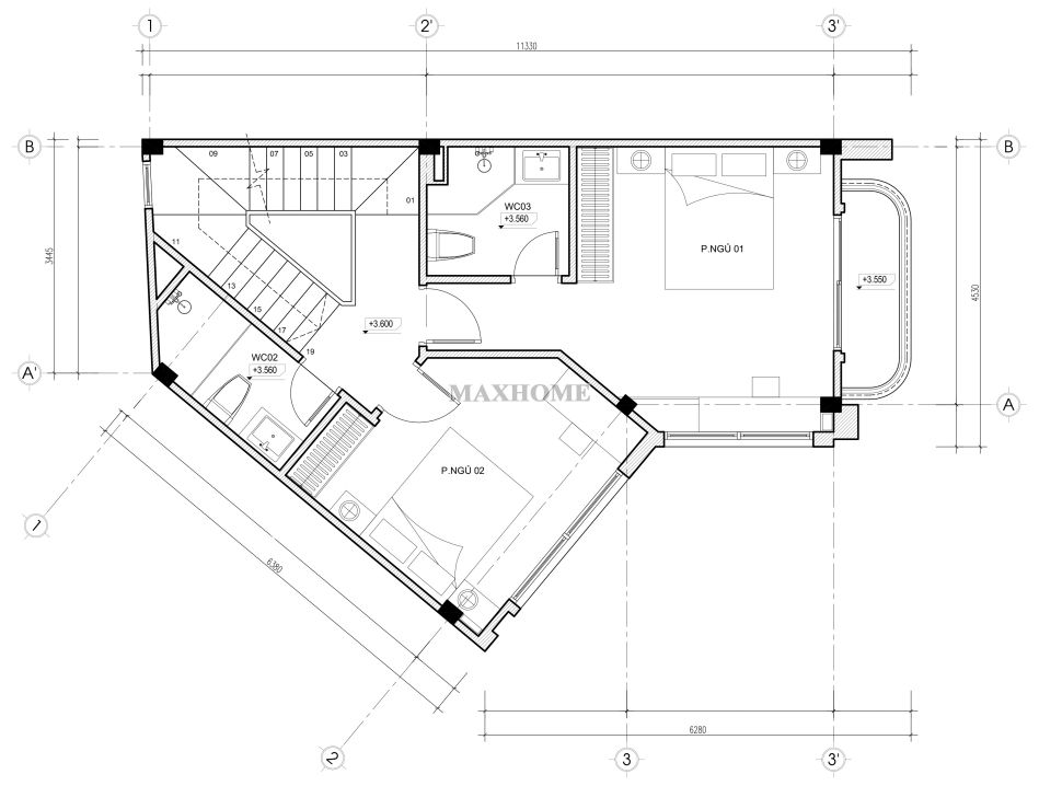
Lên đến tầng 2, ngôi nhà phố được bố trí 2 phòng ngủ khép kín, mỗi phòng đều có cửa sổ hướng ra mặt tiền giúp đảm bảo ánh sáng và gió tự nhiên. Dù diện tích 1 mặt sàn không lớn nhưng nhờ cách sắp xếp khéo léo nên cả hai phòng đều có không gian lưu trữ và khu vực nghỉ ngơi thoải mái. Ngoài ra còn có thêm 2 nhà vệ sinh đặt ở vị trí thuận tiện, thông thoáng và dễ chịu.

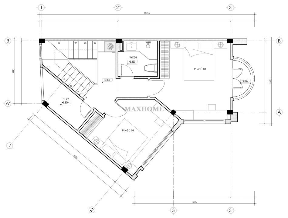
Tầng 3 tiếp tục bố trí 2 phòng ngủ, 1 nhà vệ sinh chung và khu vực sân phơi phía sau. Đây là tầng mang tính tiện ích, kết hợp giữa không gian ở và sinh hoạt gia đình. Hai phòng ngủ được đặt cân đối hai bên cầu thang và vẫn giữ phong cách tối giản cũng như tận dụng tối đa ánh sáng tự nhiên. Sân phơi rộng rãi phía sau nhà được thiết kế thoáng giúp thuận tiện cho việc giặt phơi và trồng thêm cây xanh nhỏ để tăng tính sinh động cho không gian.






