Những mẫu nhà lô phố 5 tầng 1 tum được nhiều gia đình lựa chọn bởi khả năng tận dụng tối đa diện tích đất đồng thời vẫn mang đến không gian sống tiện nghi và sang trọng ở các khu đô thị đông đúc. Công trình nhà anh Sơn ở TP. Hồ Chí Minh do Maxhome thiết kế đã tạo ra một siêu phẩm nhà phố hội tụ đầy đủ yếu tố thẩm mỹ, công năng và phong cách sống hiện đại.
Thông tin nhà lô phố 5 tầng 1 tum mặt tiền 3.8m
| Chủ đầu tư: Anh Vũ Thái Sơn | Địa chỉ: Tân Phú, TP. Hồ Chí Minh |
| Mặt tiền: 3,8m | Kích thước xây dựng: 3,8 x 13,4m |
| Số tầng: 5 tầng 1 tum | Loại hình: Nhà lô phố hiện đại |
| Tổng diện tích: 292m2 | |
Công năng:
(Công trình sử dụng thang máy) | |
| Đơn vị thiết kế: CÔNG TY TNHH MAXHOME ARCHITECT & DESIGN | |
Tham khảo bản vẽ nhà lô phố siêu mỏng với mặt tiền 3,8m
Mẫu nhà lô phố 5 tầng 1 tum được xây dựng trên kích thước 3,8×13,4m nổi bật với hình khối khỏe khoắn, đường nét dứt khoát và mang đậm phong cách kiến trúc hiện đại. Mặt tiền của mẫu nhà lô phố gây ấn tượng mạnh ngay từ ánh nhìn đầu tiên bởi sự kết hợp tinh tế giữa hai gam màu chủ đạo là trắng và xám.
Tông trắng mang lại cảm giác thanh thoát, nhẹ nhàng, trong khi màu xám lại tạo điểm nhấn vững chắc, hiện đại và sang trọng. Hai gam màu đối lập được phối hợp hài hòa giúp tạo chiều sâu cho công trình và giúp tổng thể mặt tiền trở nên nổi bật giữa dãy phố.

Phần mặt tiền tầng 1 và tầng 2 của ngôi nhà được ốp gạch giả đá cao cấp giúp nâng tầm thẩm mỹ và tăng độ bền cho công trình trước những tác động của thời tiết đô thị khắc nghiệt. Họa tiết vân đá tinh tế, tự nhiên kết hợp cùng sắc xám hiện đại mang đến vẻ đẹp sang trọng và đẳng cấp cho phần chân đế của ngôi nhà. Đây cũng là điểm nhấn giúp phân tách rõ ràng các tầng giúp tạo cảm giác kiên cố và bề thế cho tổng thể nhà lô phố 5 tầng 1 tum này.

Một trong những yếu tố tạo nên sự khác biệt cho mẫu thiết kế này chính là ban công bê tông điểm nhấn đường cong kết hợp cùng kính cường lực. Đường cong nhẹ nhàng ở phần lan can giúp mặt tiền trở nên mềm mại và tinh tế hơn, phá vỡ cảm giác khô cứng thường thấy ở các mẫu nhà phố cao tầng. Bên cạnh đó, kính cường lực trong suốt mang lại cảm giác thoáng đãng giúp không gian bên trong nhận được nhiều ánh sáng tự nhiên, đồng thời mở rộng tầm nhìn cho gia chủ.

Là đơn vị thiết kế và thi công trọn gói uy tín hàng đầu Việt nam, Maxhome đã thể hiện rõ sự chuyên nghiệp và tinh tế trong từng chi tiết của công trình. Mỗi vật liệu, màu sắc và chi tiết trang trí đều được tính toán kỹ lưỡng nhằm đảm bảo thẩm mỹ, công năng và độ bền cao. Từ phần ốp gạch giả đá tầng 1 và tầng 2 đến lan can kính uốn cong hay lam trần giả gỗ tầng tum, tất cả hòa quyện thành một tổng thể hài hòa, hiện đại và đầy cá tính.

Ngoài ra, tầng tum là điểm nhấn hoàn hảo vừa mang lại giá trị thẩm mỹ vừa giúp tối ưu công năng sử dụng. Trần tầng tum ốp lam nhựa giả gỗ tạo cảm giác ấm cúng và sang trọng, trần nhà còn có thêm hệ đèn LED trắng bố trí tinh tế xen giữa không chỉ giúp chiếu sáng mà còn tăng hiệu ứng kiến trúc khiến phần tum trở thành điểm nhấn nổi bật nhất của ngôi nhà khi đêm xuống. Đặc biệt, không gian sân thượng được bố trí mở với khu vực ngồi thư giãn, cây xanh và khoảng trống thoáng đãng, giúp mang lại cảm giác an yên giữa lòng đô thị sôi động.

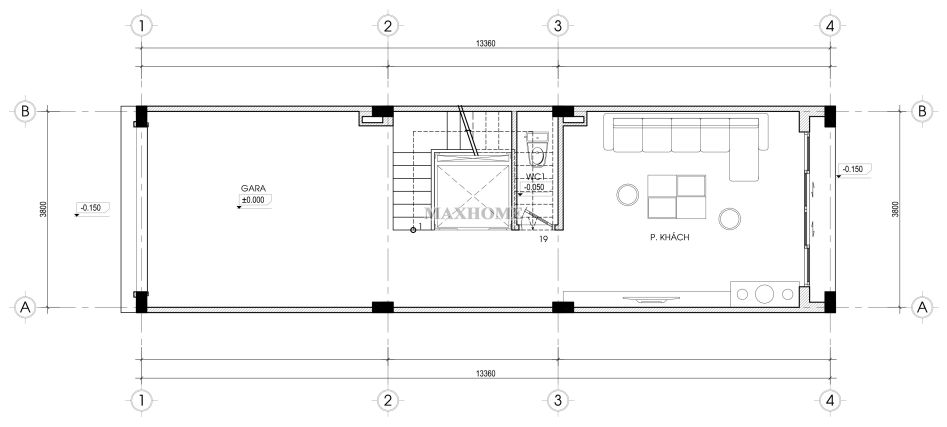
Công năng nhà lô phố 5 tầng 1 tum

Bản vẽ mặt bằng định vị thể hiện rõ vị trí công trình trên khu đất có mặt tiền 3,8m và chiều sâu xây dựng 13,4m tiếp giáp trực tiếp với tuyến đường phía trước. Khu đất có hình chữ nhật kéo dài rất phù hợp để phát triển nhà lô phố 5 tầng 1 tum theo chiều cao mà đồng thời vẫn giữ được khoảng lùi hợp lý phía trước và sau nhằm đảm bảo thông gió tự nhiên. Đội ngũ kỹ thuật Maxhome cũng đã tận dụng tối đa lợi thế của khu đất để bố trí không gian sống hợp lý, đảm bảo sự thông thoáng, tiện nghi và khoa học.

Không gian tầng 1 được bố trí gara để xe ngay mặt tiền, thuận tiện cho việc ra vào đồng thời giúp tiết kiệm diện tích sân. Tiếp nối là phòng khách rộng rãi được thiết kế mở, thoáng và đón sáng tự nhiên từ hệ cửa kính 4 cánh kéo trượt bên cạnh. Phía dưới cầu thang là khu vực vệ sinh chung giúp đảm bảo sự riêng tư và tiện lợi trong sinh hoạt hằng ngày.

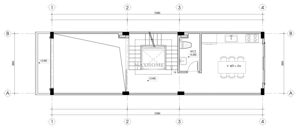
Lên đến tầng 2 là phòng bếp kết hợp khu vực ăn uống được bố trí khoa học, có khoảng thông tầng thông thoáng phía trước giúp khử mùi hiệu quả và giữ cho không gian luôn sạch sẽ. Nhà vệ sinh được đặt riêng biệt giúp đảm bảo tiện nghi mà không ảnh hưởng đến khu vực nấu nướng. Nhờ lợi thế của hệ cửa kính lớn mà gian bếp luôn nhận được ánh sáng và gió trời, mang lại cảm giác dễ chịu và thoải mái.

Tầng 3 và tầng 4 có cách bố trí tương tự nhau bao gồm 1 phòng ngủ lớn, 1 phòng trống và 2 nhà vệ sinh. Phòng ngủ được đặt tại vị trí có view cửa sổ lớn tạo không gian nghỉ ngơi lý tưởng, thoáng đãng và tràn ngập ánh sáng tự nhiên. Phòng trống còn lại có thể linh hoạt tùy biến theo nhu cầu để làm phòng làm việc, phòng đọc sách, phòng giải trí hoặc phòng ngủ phụ. Hai nhà vệ sinh cũng được bố trí hợp lý giúp thuận tiện cho sinh hoạt của từng thành viên.


Tầng 5 sở hữu 2 phòng ngủ rộng rãi và mỗi phòng đều có nhà vệ sinh khép kín. Từng không gian được đảm bảo sự riêng tư tối đa và thích hợp cho các thành viên trong gia đình có nhu cầu sinh hoạt độc lập. Cửa kính lớn và ban công giúp các phòng luôn đón nhận ánh sáng tự nhiên, hạn chế cảm giác bí bách và đây cũng là điểm mạnh của thiết kế nhà lô phố 5 tầng 1 tum.

Tầng tum là nơi mang lại giá trị sử dụng cao cho ngôi nhà khi được bố trí sân chơi và sân phơi tiện dụng, kín đáo nhưng vẫn đảm bảo thông thoáng. Một điểm cộng lớn của mẫu nhà lô phố 5 tầng 1 tum này là hệ thống thang máy được tích hợp gọn gàng ở giữa nhà giúp di chuyển giữa các tầng nhanh chóng và thuận tiện, đặc biệt phù hợp với gia đình có người lớn tuổi hoặc trẻ nhỏ. Sự xuất hiện của thang máy không chỉ nâng cao trải nghiệm sử dụng mà còn tăng thêm giá trị cho công trình, khẳng định sự tiện nghi và hiện đại trong phong cách sống của gia đình anh Sơn.






