Sở hữu thiết kế trẻ trung, đường nét mạnh mẽ và bố cục không gian thông minh, mẫu nhà phố 2 tầng chữ L hiện đại đang trở thành lựa chọn lý tưởng cho các gia đình yêu thích sự tiện nghi và sang trọng. Phối cảnh 3D được thể hiện sống động, giúp người xem cảm nhận trọn vẹn vẻ đẹp kiến trúc, từ hình khối ngoại thất đến cách xử lý màu sắc và vật liệu. Đây không chỉ là một mẫu nhà đẹp mà còn là giải pháp tối ưu cho những khu đất phố muốn khai thác công năng hiệu quả và tạo điểm nhấn độc đáo trong cảnh quan đô thị.
Thông tin nhà phố 2 tầng chữ L hiện đại
| Chủ đầu tư: Anh Nguyễn Văn Thuỵ | Địa chỉ: Phủ Lý, Thái Bình |
| Mặt tiền: 12,9m | Kích thước xây dựng: 12,9 x 9,2m |
| Số tầng: 2 tầng | Loại hình: Nhà chữ L hiện đại |
| Tổng diện tích: 210m2 | |
Công năng:
| |
| Đơn vị thiết kế: CÔNG TY TNHH MAXHOME ARCHITECT & DESIGN | |
Ngoại thất nhà phố 2 tầng chữ L hiện đại
Ngôi nhà phố 2 tầng được thiết kế theo dạng chữ L nhằm tối ưu hóa diện tích trên khuôn viên đất không quá rộng. Gia chủ mong muốn không gian sống phải thật thoáng đãng, đồng thời vẫn có một khoảng sân nhỏ để đón gió và lấy sáng. Hiểu được nhu cầu đó, đội ngũ KTS Maxhome đã đưa ra phương án bố trí hợp lý, tạo nên một mẫu nhà vừa đảm bảo thẩm mỹ, vừa đáp ứng đầy đủ công năng sử dụng cho gia đình.

Nhà 2 tầng chữ L sử dụng gam màu trắng chủ đạo, mang đến vẻ đẹp tinh tế và hiện đại. Đi cùng đó là tông nâu gỗ ấm áp từ các mảng gạch ốp tại một số vị trí mặt tiền, giúp công trình trở nên nổi bật và hài hòa hơn. Bên cạnh đó, hệ lam trang trí được bố trí khéo léo, vừa tạo điểm nhấn ấn tượng, vừa hỗ trợ che nắng và tăng tính riêng tư cho không gian sống.

Đối với mẫu nhà phố 2 tầng chữ L, để hạn chế tình trạng hắt mưa vào khu vực ban công, KTS Maxhome đã khéo léo bố trí mảng tường gạch bông gió. Chi tiết này không chỉ giúp chắn mưa, giảm bức xạ nhiệt mà còn đóng vai trò như một yếu tố trang trí thẩm mỹ, tạo điểm nhấn độc đáo cho mặt tiền công trình. Nhờ vậy, ngôi nhà vừa đảm bảo công năng sử dụng, vừa giữ được nét đẹp hiện đại và thông thoáng.

Từ góc nhìn này xuống, có thể dễ dàng nhận thấy 3 bậc tam cấp được bố trí khoa học, giúp nhà phố 2 tầng chữ L trở nên cao ráo, bề thế hơn. Bên cạnh đó, một ram dốc tiện lợi được thiết kế kèm lan can tay vịn chắc chắn, đảm bảo an toàn cho mọi thành viên trong gia đình, đồng thời tạo sự thuận tiện khi di chuyển và tăng tính thẩm mỹ cho tổng thể mặt tiền công trình.

Nhà mái bằng hiện đại thiết kế với hệ thống cổng hiện đại làm từ sắt sơn tĩnh điện, đảm bảo độ bền cao và khả năng chống oxy hóa tốt. Điểm đặc biệt là cánh cổng chính được bố trí lệch sang một bên thay vì đặt thẳng hàng với cửa nhà, giúp tăng tính phong thủy, hạn chế luồng khí xung trực và tạo cảm giác an toàn, kín đáo hơn. Thiết kế này không chỉ mang lại sự hài hòa cho tổng thể kiến trúc mà còn giúp tối ưu công năng sử dụng trong khuôn viên ngôi nhà.

Khám phá công năng nhà 2 tầng hiện đại
Dựa trên bản vẽ mặt bằng định vị, công trình được xây dựng trong khu vực ngõ với kích thước tổng thể 12,9 x 9,2m. Diện tích này cho phép bố trí không gian sống hợp lý, đáp ứng nhu cầu sinh hoạt của gia đình. Tổng diện tích sử dụng của ngôi nhà vào khoảng 210m², bao gồm đầy đủ các không gian chức năng được phân chia khoa học, tiện nghi và tối ưu cho sinh hoạt hằng ngày.

Từ sảnh chính bước vào là không gian phòng khách rộng 16,4m², được thiết kế thoáng đãng và thuận tiện cho việc tiếp khách. Kế bên là khu vực bếp ăn được bố trí gần sảnh phụ, giúp việc di chuyển và thông gió trở nên dễ dàng hơn. Nhà vệ sinh chung được đặt cạnh khu bếp, đảm bảo sự tiện lợi cho cả gia đình. Ngoài ra, tầng này còn có hai phòng ngủ nằm liền kề nhau, tạo sự gắn kết và thuận tiện trong sinh hoạt hằng ngày.


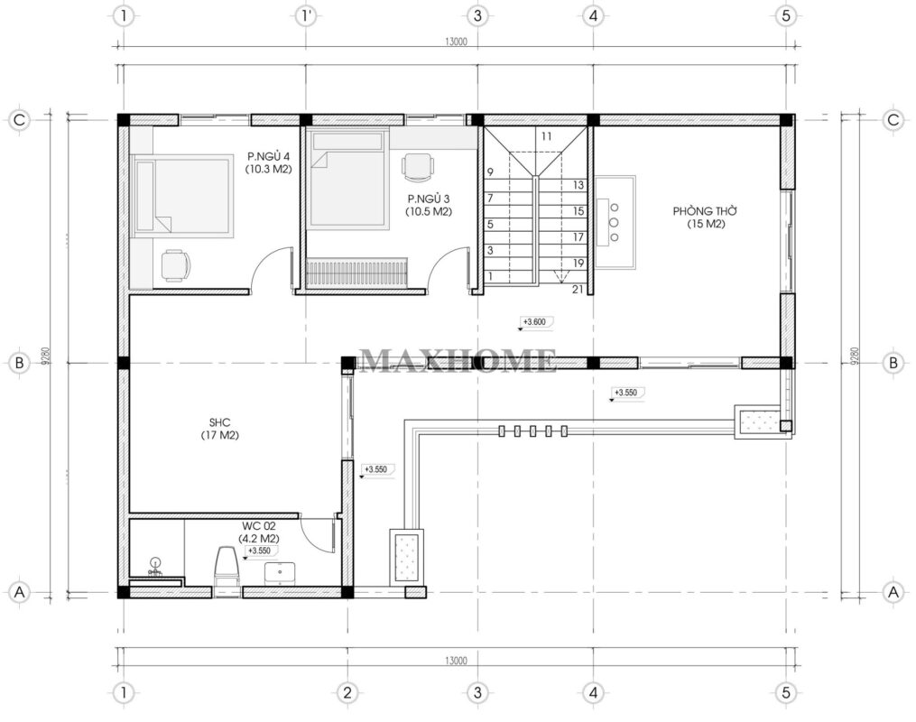
Tầng 2 được bố trí phòng thờ trang nghiêm, có cửa sổ thông thoáng giúp hạn chế ám mùi nhang khói và tạo sự lưu thông không khí. Bên cạnh đó, tầng này gồm hai phòng ngủ được sắp xếp liền kề, mang lại sự thuận tiện trong sinh hoạt. Ngoài ra còn có một phòng sinh hoạt chung làm nơi kết nối các thành viên gia đình, cùng với một nhà vệ sinh chung phục vụ tiện nghi cho cả tầng.











