Cùng Maxhome tham khảo bản vẽ mẫu nhà vườn 1 tầng sang trọng, bề thế mà vẫn giữ được sự gần gũi của không gian sống gia đình. Chúng tôi rất vinh hạnh khi được gia đình anh Chương ở Gia Lai tin tưởng và lựa chọn để tạo nên một mẫu nhà đẹp mơ ước. Ngay sau khi nhận bản vẽ, anh Chương đã rất vui mừng và hài lòng với bản vẽ nhà sang trọng cùng công năng tiện nghi.
Thông tin nhà vườn 1 tầng với phong cách tân cổ điển
| Chủ đầu tư: Anh Trần Văn Chương | Địa chỉ: Ia Grai, Gia Lai |
| Mặt tiền: 9,8m | Kích thước xây dựng: 9,8 x 20,3m |
| Số tầng: 1 tầng | Loại hình: Nhà mái Nhật tân cổ điển |
| Tổng diện tích: 138m2 | |
| Công năng:
Phòng khách, phòng thờ, phòng bếp, 3 phòng ngủ, 1 phòng tắm, 2 wc |
|
| Đơn vị thiết kế: CÔNG TY TNHH MAXHOME ARCHITECT & DESIGN | |
Mẫu nhà vườn 1 tầng bề thế, uy nghi tọa lạc tại Gia Lai
Ngay từ phần ngoại thất, ngôi nhà vườn 1 tầng đã tạo ấn tượng mạnh nhờ phong cách tân cổ điển nhẹ nhàng, tinh tế và cực kỳ phù hợp với những gia đình muốn một không gian sống vừa hiện đại vừa có chiều sâu. Điểm cuốn hút đầu tiên của mẫu nhà đẹp này chính là sự kết hợp màu sắc rất hợp lý. Tông trắng chủ đạo kết hợp cùng màu xanh đặc trưng của Maxhome giúp tổng thể trông nổi bật mà không quá phô trương.

Gam màu trắng làm sáng công trình còn sắc xanh mang lại cảm giác mát mẻ, vững chắc và sang trọng. Hai màu này khi đi cùng nhau tạo nên sự cân bằng, trẻ trung và mang nét chững chạc rất hợp với phong cách tân cổ điển. Ngoài ra, căn nhà cấp 4 này cũng được sử dụng những đường phào chỉ nhẹ ở các mảng tường giúp ngôi nhà có thêm chiều sâu mà không bị rối mắt.

Khu vực sảnh chính là một trong những phần đẹp nhất của ngôi nhà nhờ có cột trụ vuông kết hợp đầu cột trang trí mang hơi hướng tân cổ tạo nét sang trọng mà không hề nặng nề. Mái che trước cửa có đường cong nhẹ giúp giảm độ góc cạnh của phần hình khối và mang lại cảm giác mềm mại, chào đón hơn. Bậc tam cấp cao 750mm được ốp đá tối màu sạch sẽ và cổ bậc sơn trắng giúp tạo sự tương phản để mọi người cẩn thận đi lại ở khu vực này. Hai chậu cây xanh được đặt đối xứng hai bên giúp tổng thể thêm sinh động và đậm chất nhà vườn. Từng chi tiết tại sảnh được Maxhome xử lý có chủ đích để tạo cảm giác trang trọng nhưng vẫn giữ được sự thân thiện của một không gian sống gia đình anh Chương.


Cửa chính và cửa sổ cũng góp phần quan trọng mang đến vẻ đẹp của ngoại thất nhờ sử dụng đồng đều chất liệu khung nhôm kính để tạo nên vẻ hiện đại và giúp lấy sáng rất tốt. Việc bố trí cửa hợp lý mang lại cảm giác thông thoáng cho ngôi nhà đúng tinh thần của một nhà vườn 1 tầng rộng rãi và gần gũi với thiên nhiên. Ánh sáng tự nhiên được đưa vào tối đa giúp không gian bên trong luôn sáng và giảm được nhiều chi phí chiếu sáng nhân tạo vào ban ngày.

Một điểm đặc biệt nữa của thiết kế là hệ thống trang trí tường. Maxhome chia các mảng tường thành từng ô rõ ràng và kết hợp phào chỉ chạy ngang để tạo chiều sâu. Các mảng tường lớn được xử lý tinh tế, không quá phức tạp để giữ vẻ hiện đại nhưng cũng không quá đơn giản để tránh nhàm chán. Dưới chân tường là lớp đá chẻ tối màu giúp tránh bám bẩn và bảo vệ tốt hơn trước tác động của thời tiết.

Nhìn từ xa, tổng thể hài hòa như một khối thống nhất và tạo cảm giác yên tâm ngay từ ánh nhìn đầu tiên. Điểm nhấn tiếp theo nằm ở hệ mái Nhật xanh than được xử lý rất tinh tế và phù hợp với mẫu nhà vườn 1 tầng. Mái lợp cao 2,7m và được thiết kế nhiều lớp, phân khối rõ ràng tạo sự bề thế cho toàn bộ công trình. Kiểu mái này không chỉ đẹp mà còn mang lại hiệu quả chống nóng tốt, đặc biệt phù hợp với khí hậu Gia Lai ở nhà anh Chương.

Không gian sân vườn nhà anh Chương còn rất rộng rãi, thoáng và phù hợp cho sinh hoạt ngoài trời. Những khóm cây xanh và mảng cỏ xung quanh tạo cảm giác bình yên, đúng chất một ngôi nhà vườn 1 tầng ở vùng đất Gia Lai đầy nắng và gió. Sau này nếu có bố trí thêm gara ngoài trời bên hông nhà cũng rất hợp lý để tiện di chuyển và bảo quản xe.
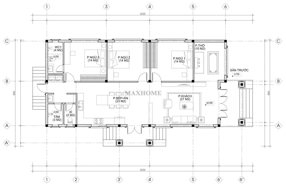
Bố trí công năng nhà vườn tiện ích

Công năng của ngôi nhà vườn được bố trí gọn gàng và hợp lý để mang lại sự tiện nghi trong sinh hoạt hằng ngày. Phòng khách 27m2 nằm ngay vị trí trung tâm, đóng vai trò là không gian sinh hoạt chung và cũng là nơi đón tiếp khách. Ngay bên cạnh là phòng thờ 10m2 đặt ở vị trí trang trọng và thông thoáng, đảm bảo sự yên tĩnh và phù hợp với phong tục truyền thống của gia đình.

Khu vực bếp 23m2 được thiết kế rộng rãi kết hợp bàn đảo và bàn ăn tại chỗ rất tiện lợi và tối ưu công năng trong quá trình nấu nướng. Ba phòng ngủ đồng diện tích 14m2 được bố trí cạnh nhau giúp mỗi thành viên có không gian riêng tư và thoải mái. Phía cuối nhà bố trí khu vực vệ sinh chung gần các phòng ngủ để tiện sử dụng, riêng phòng ngủ 03 có nhà vệ sinh riêng bên trong.

Tất cả những yếu tố trên hòa lại tạo nên một mẫu nhà vườn 1 tầng mang phong cách tân cổ điển nhẹ nhàng, sang trọng và rất phù hợp với gia đình anh Chương ở Gia Lai. Thiết kế của Maxhome không chỉ đẹp ở hình thức mà còn tính toán kỹ về độ bền, công năng sử dụng và sự tiện nghi. Nếu bạn yêu thích một không gian sống thẩm mỹ, bề thế nhưng vẫn gần gũi, đây chắc chắn là mẫu nhà đáng để tham khảo.

