Mẫu nhà phố 2 tầng 1 tum do Maxhome thiết kế cho gia đình anh Long tại Hà Nội gây ấn tượng với phong cách hiện đại, các đường nét kiến trúc được chăm chút kỹ lưỡng, thể hiện rõ dấu ấn cá nhân của gia chủ cùng lối sống thanh lịch, thời thượng. Không chỉ nổi bật ở hình thức bên ngoài, công trình còn cho thấy tư duy thiết kế linh hoạt và sáng tạo của các KTS Maxhome, mang đến không gian sống hài hòa giữa thẩm mỹ, công năng và giá trị sử dụng bền vững, phù hợp với nhu cầu sinh hoạt lâu dài của gia đình Việt.
Thông tin công trình nhà phố 2 tầng 1 tum
| Chủ đầu tư: Anh Nguyễn Tuấn Long | Địa chỉ: Xuân Mai, Hà Nội |
| Mặt tiền: 8,5m | Kích thước xây dựng: 8,5 x 13,2m |
| Số tầng: 2 tầng 1 tum | Loại hình: Nhà phố mái bằng hiện đại |
| Tổng diện tích: 260m² | |
Công năng:
|
|
| Đơn vị thiết kế: CÔNG TY TNHH MAXHOME ARCHITECT & DESIGN | |
Mẫu nhà phố 2 tầng 1 tum đẹp xuất sắc, tối ưu công năng sử dụng
Mẫu nhà phố 2 tầng 1 tum thu hút ánh nhìn ngay từ lần đầu với hình khối kiến trúc gọn gàng, hiện đại nhưng vẫn giữ được sự mềm mại và linh hoạt trong tổng thể. Những chi tiết bo cong khéo léo tại khu vực ban công và phần mái đóng vai trò như điểm nhấn thị giác, góp phần tạo nên vẻ thanh thoát, giúp công trình trở nên hài hòa, nhẹ nhàng và cuốn hút hơn.

Mặt tiền công trình được đầu tư chỉn chu với gam trắng làm chủ đạo, kết hợp hài hòa cùng các mảng tường sơn giả đá tông ghi xám, tạo nên sự đối lập vừa đủ để tôn lên chiều sâu và tính thẩm mỹ tổng thể. Cách phối màu này không chỉ giúp mặt đứng trở nên thoáng sáng, gọn gàng mà còn nhấn mạnh nét hiện đại, tinh tế đặc trưng của kiến trúc nhà phố đương đại.

Bên cạnh đó, lam gỗ nhựa ốp khu vực bồn hoa được bố trí hợp lý, vừa đóng vai trò trang trí vừa tạo lớp chuyển tiếp mềm mại cho mặt tiền. Vật liệu này mang lại cảm giác ấm áp, gần gũi, đồng thời đảm bảo độ bền cao, hạn chế tác động của thời tiết. Sự kết hợp giữa màu sắc, vật liệu và chi tiết kiến trúc giúp công trình đạt được sự cân bằng giữa thẩm mỹ, công năng và giá trị sử dụng lâu dài, phù hợp với nhu cầu sinh hoạt và gu thẩm mỹ của gia đình hiện đại.

Hệ cửa kính lớn kết hợp khung nhôm cao cấp được bố trí đồng bộ cho toàn bộ các tầng, đóng vai trò quan trọng trong việc khai thác tối đa nguồn ánh sáng tự nhiên và mở rộng tầm nhìn cho không gian sống. Thiết kế này giúp các khu vực bên trong luôn thông thoáng, giảm cảm giác bí bách thường gặp ở nhà phố, đồng thời tạo nên sự kết nối linh hoạt giữa nội thất và cảnh quan bên ngoài.
Bên cạnh yếu tố thẩm mỹ, vật liệu nhôm kính còn mang lại khả năng cách âm, cách nhiệt tốt, góp phần nâng cao chất lượng sinh hoạt hàng ngày. Nhờ tận dụng hiệu quả ánh sáng ban ngày, công trình cũng giảm thiểu nhu cầu sử dụng điện chiếu sáng, hướng tới giải pháp nhà ở tiết kiệm năng lượng và bền vững theo thời gian.

Ban công và sân thượng được thiết kế rộng rãi, không chỉ tạo không gian thư giãn thoáng đãng mà còn mang đến tầm nhìn tuyệt đẹp từ trên cao, giúp con người hòa mình vào thiên nhiên.
Các kiến trúc sư đã khéo léo lồng ghép yếu tố thiên nhiên xanh mát vào từng góc của ngôi nhà phố 2 tầng 1 tum, tạo sự hài hòa giữa kiến trúc hiện đại và môi trường xung quanh. Những chậu cảnh tinh tế, các khóm hoa nhỏ xinh được bố trí khắp ban công không chỉ tăng tính thẩm mỹ mà còn mang lại sức sống tươi mới, giúp không gian luôn tràn đầy sinh khí.

Bản vẽ chi tiết mặt bằng công năng
Công trình được xây dựng trên khu đất hướng Tây Nam, với quy mô 8,5 x 13,2m và tổng diện tích sử dụng khoảng 260m², đáp ứng tốt nhu cầu sinh hoạt của gia đình nhiều thế hệ. Dựa trên đặc điểm và điều kiện thực tế của khu đất, kiến trúc sư đã nghiên cứu kỹ lưỡng để đưa ra giải pháp bố trí không gian hợp lý, tăng cường sự thông thoáng và lưu thông không khí tự nhiên.
Mặt bằng công năng được tổ chức theo hướng khoa học, mạch lạc, đảm bảo sự kết nối linh hoạt giữa các khu vực sinh hoạt chung và không gian riêng tư. Mỗi khu vực đều được tính toán dựa trên thói quen sinh hoạt và nhu cầu sử dụng thực tế của gia đình, giúp tối ưu diện tích, nâng cao sự tiện nghi và mang lại cảm giác thoải mái, hài hòa trong quá trình sử dụng lâu dài.

Bước qua cửa chính là phòng khách được thiết kế sang trọng và tinh tế, thể hiện rõ gu thẩm mỹ và lòng hiếu khách của gia chủ; bàn thờ được bố trí ngay tại phòng khách tiện cho việc thờ cúng của gia đình. Đi tiếp là khu vực bếp ăn được sắp xếp gọn gàng, hiện đại, đảm bảo sự tiện nghi tối đa trong quá trình sử dụng.
Phòng ngủ 01 bố trí cuối nhà không chỉ tận dụng không gian hiệu quả mà còn mang đến sự yên tĩnh và riêng tư tuyệt đối. Cuối cùng, nhà vệ sinh chung được đặt ở vị trí thuận tiện dưới gầm cầu thang, phục vụ nhu cầu sinh hoạt hàng ngày.

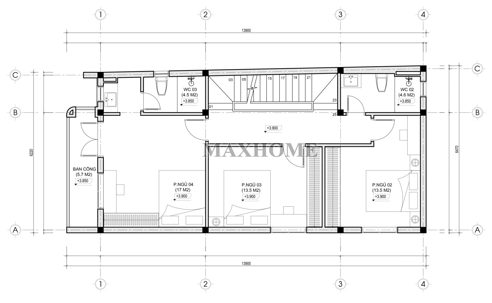
Tầng 2 được bố trí công năng hợp lý với 3 phòng ngủ rộng rãi được thiết kế đầy đủ tiện nghi để mang đến sự thoải mái tối đa; trong đó phòng ngủ 04 có nhà WC khép kín cùng với một nhà WC chung đảm bảo sự thuận tiện trong sinh hoạt.

Không gian tầng tum được bố trí thông minh với khu sân chơi phía trước thoáng đãng, sở hữu tầm nhìn rộng mở, lý tưởng để thư giãn, uống trà hoặc sinh hoạt ngoài trời. Khu vực này được trang bị mái che giúp che nắng, che mưa hiệu quả, đảm bảo sử dụng linh hoạt trong nhiều điều kiện thời tiết.
Vị trí trung tâm là phòng sinh hoạt chung ấm cúng, phía sau là khu giặt đồ và sân phơi rộng rãi, tách biệt hợp lý, vừa đáp ứng nhu cầu sinh hoạt hằng ngày vừa giữ được sự gọn gàng, thẩm mỹ cho toàn bộ công trình.


