Toạ lạc tại Hưng Yên, mẫu nhà 2 tầng 4 phòng ngủ mái Nhật tân cổ điển của gia đình anh Dũng hiện lên như một biểu tượng của sự đẳng cấp và gu thẩm mỹ tinh tế. Được các kiến trúc sư Maxhome thiết kế với sự tâm huyết và chuẩn mực khắt khe, ngôi nhà không chỉ là nơi an cư lý tưởng mà còn là minh chứng cho phong cách sống sang trọng của gia chủ. Từng chi tiết được chăm chút tỉ mỉ, tạo nên một tuyệt phẩm kiến trúc khiến bất kỳ ai đi ngang qua cũng phải dừng chân chiêm ngưỡng.
Thông tin công trình nhà 2 tầng mái Nhật tân cổ điển
| Chủ đầu tư: Anh Tạ Tiến Dũng | Địa chỉ: Hoàng Hoa Thám, Hưng Yên |
| Mặt tiền: 11,5m | Kích thước xây dựng: 11,5 x 15,6m |
| Số tầng: 2 tầng | Loại hình: Nhà mái Nhật tân cổ điển |
| Tổng diện tích: 220m² | |
Công năng:
|
|
| Đơn vị thiết kế: CÔNG TY TNHH MAXHOME ARCHITECT & DESIGN | |
Nhà 2 tầng 4 phòng ngủ mái Nhật tân cổ điển đẹp sang, công năng hoàn hảo
Ngay từ cái nhìn đầu tiên, nhà 2 tầng 4 phòng ngủ mái Nhật tân cổ điển đã tạo dấu ấn mạnh mẽ với hình khối bề thế, cân đối và dứt khoát, toát lên vẻ vững chãi, uy nghi của một tổ ấm đẳng cấp. Mặt tiền được chăm chút kỹ lưỡng với hệ phào chỉ và chi tiết trang trí tinh xảo, khéo léo tôn vinh nét sang trọng và quyền quý cho tổng thể kiến trúc. Không chỉ nổi bật về thẩm mỹ, ngôi nhà còn được bố trí công năng khoa học với 4 phòng ngủ tiện nghi, đáp ứng trọn vẹn nhu cầu sinh hoạt của gia đình.

Toàn bộ ngoại thất được phủ lớp sơn trắng sứ – gam màu biểu tượng cho sự tinh tế và chuẩn mực trong kiến trúc tân cổ điển. Sắc trắng giúp làm nổi bật từng đường phào chỉ, tạo hiệu ứng ánh sáng đẹp mắt khi kết hợp với hệ đèn tường vàng ấm.
Cửa chính làm bằng gỗ tự nhiên màu nâu, cửa sổ sử dụng chất liệu nhôm kính cao cấp màu đen, tạo cảm giác hài hòa với mái ngói xanh than. Sự tương phản tinh tế giữa gam trắng – xanh – nâu khiến tổng thể ngôi nhà 2 tầng 4 phòng ngủ mái Nhật tân cổ điển trở nên hài hòa và đầy sang trọng.

Sảnh chính và sảnh phụ nổi bật với hệ cột trụ vuông chắc khỏe, mang đến cảm giác vững vàng và bề thế. Phía trên là mái sảnh uốn cong mềm mại, kết hợp cùng đèn chùm pha lê tinh tế, góp phần gia tăng vẻ sang trọng và cuốn hút cho không gian mặt tiền.
Cánh cửa gỗ tự nhiên được chế tác công phu với hoa văn tròn đồng tâm tinh xảo, tạo điểm nhấn ấn tượng từ ánh nhìn đầu tiên. Lên đến tầng 2, hệ ban công uốn sắt mỹ thuật màu đen ánh đồng nổi bật với những đường nét mềm mại, sắc sảo, vừa tôn lên vẻ quý phái vừa tạo sự tương phản hài hòa với gam trắng thanh lịch của toàn bộ công trình.

Hệ thống cửa sổ của ngôi nhà 2 tầng mái Nhật tân cổ điển được làm bằng chất liệu hệ nhôm xingfa kính cường lực không chỉ mang lại vẻ đẹp hiện đại mà còn tối ưu hóa ánh sáng tự nhiên và tạo cảm giác thoải mái, mở rộng không gian sống.
Bậc tam cấp với chiều cao 750mm giúp cho ngôi nhà trở nên cao ráo và bề thế. Phần mặt sảnh và bậc ốp đá granite tạo lối dẫn lên sảnh đón sang trọng. Vị trí chân tường cũng được ốp đá chẻ giúp bảo vệ công trình khỏi tác động khắc nghiệt từ thiên nhiên.

Từ góc nhìn trên cao, ngôi nhà toát lên vẻ đẹp chuẩn mực của hình khối cân đối. Khoảng sân rộng lát gạch chống trơn màu ghi xám sạch sẽ, bao quanh ngôi nhà là hàng rào trắng kiên cố, mang đến cảm giác an toàn và riêng tư cho gia chủ.
Không gian xanh được bố trí khéo léo ở nhiều vị trí như trước hiên nhà, trên các ban công và dọc tường rào tạo nên một bức tranh hài hòa giữa kiến trúc và thiên nhiên. Dưới ánh nắng, sắc xanh của cây, sắc trắng của tường và sắc xanh đậm của mái ngói hòa quyện thành một tổng thể dịu mắt, sang trọng và đầy sức sống.


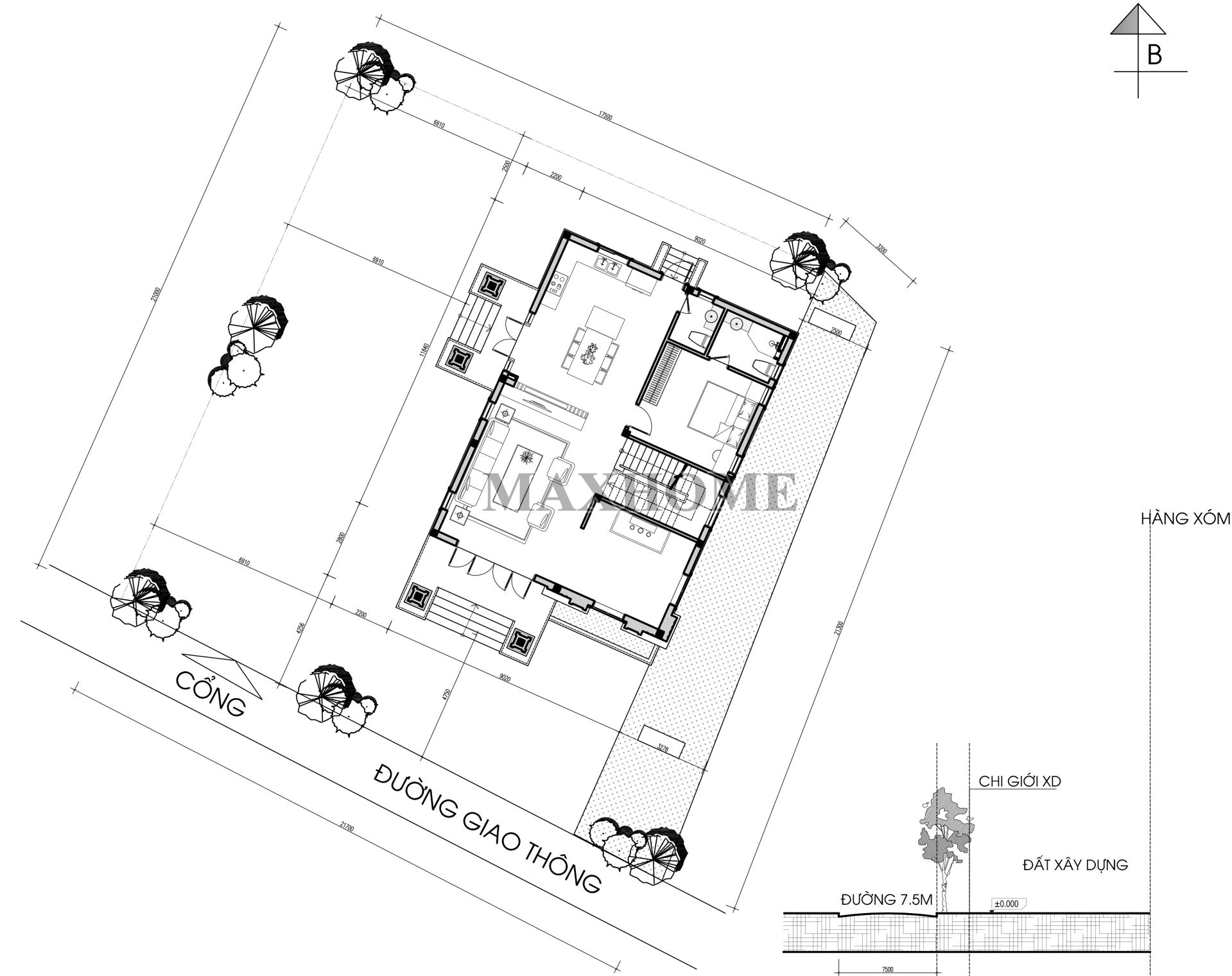
Bản vẽ chi tiết công năng
Về vị trí, ngôi nhà được tọa lạc theo hướng Tây Nam, hướng đón gió mát và ánh sáng hài hòa quanh năm. Công trình sở hữu kích thước ấn tượng 11,5 x 15,6m, với tổng diện tích sử dụng lên tới khoảng 220m², mang đến không gian sống rộng rãi với 4 phòng ngủ tiện nghi cho cả gia đình.

Từ sảnh chính bước vào là không gian phòng khách rộng rãi, sang trọng, tạo cảm giác thoáng đãng và đón tiếp trang trọng. Liên thông về phía bên trái là phòng thờ được bố trí trang nghiêm, nơi kiến trúc sư khéo léo sử dụng vách ngăn CNC nhằm đảm bảo sự yên tĩnh, tách biệt mà vẫn giữ được sự hài hòa với tổng thể.
Lối đi từ sảnh phụ dẫn thẳng vào khu vực bếp và phòng ăn ấm cúng, thuận tiện cho sinh hoạt gia đình. Bên cạnh cầu thang là một phòng ngủ khép kín cùng một nhà vệ sinh chung, được sắp xếp hợp lý, vừa đảm bảo sự riêng tư vừa đáp ứng tối đa nhu cầu sử dụng hằng ngày.

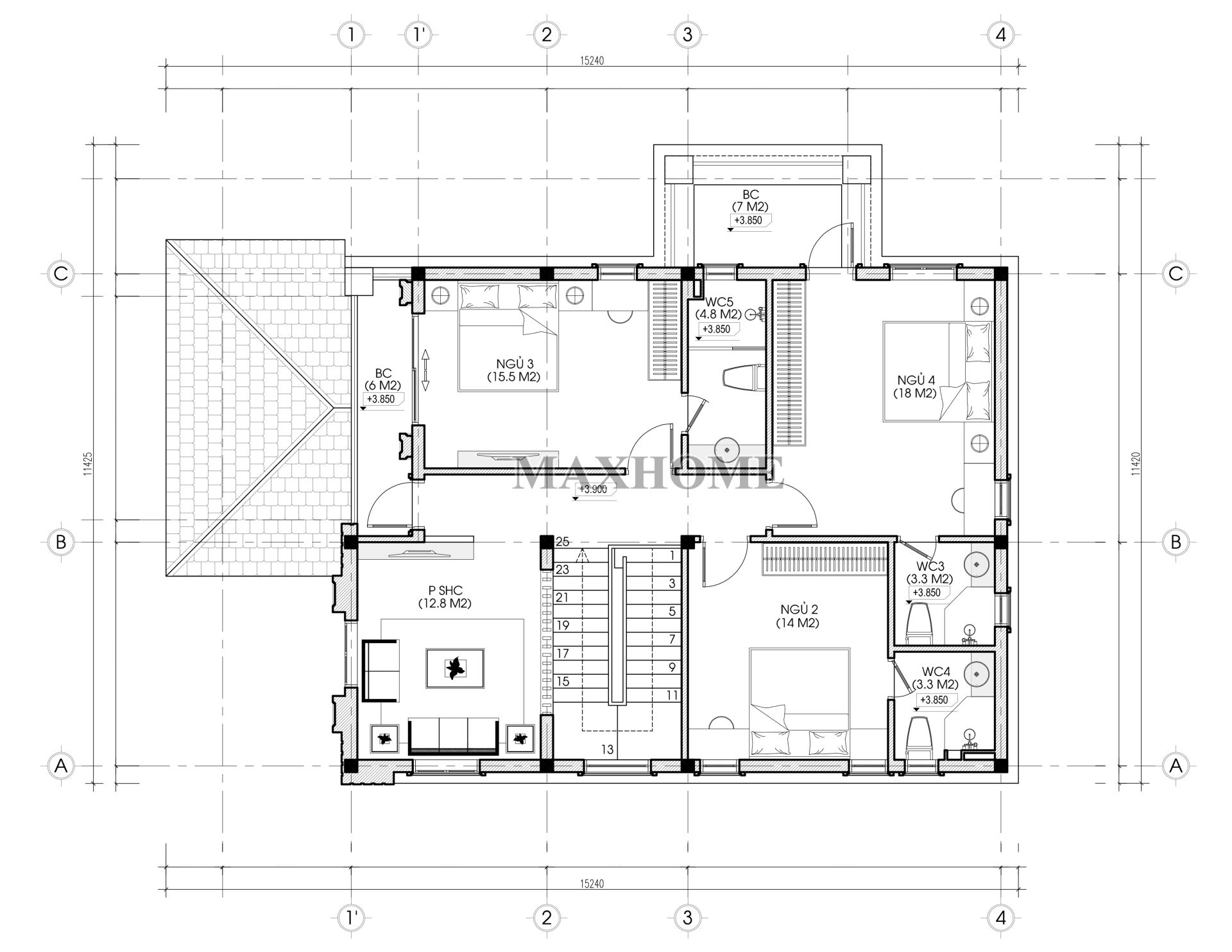
Tầng 2 được bố trí khoa học, vừa đảm bảo sự riêng tư cho từng thành viên, vừa mở ra những không gian sinh hoạt chung đầy gắn kết. Nơi đây gồm 3 phòng ngủ rộng rãi, thoáng mát, tất cả đều được thiết kế WC khép kín tiện nghi cùng một phòng sinh hoạt chung ấm cúng. Ban công đón gió mát với góc thư giãn thưởng trà “chill chill” tạo nên điểm nhấn tinh tế, nâng tầm giá trị sống và khẳng định đẳng cấp kiến trúc vượt trội của công trình.


