Nếu bạn đang tìm kiếm một mẫu nhà vừa đẹp, vừa tiện nghi lại phù hợp với đa số nhu cầu của gia đình Việt, thì mẫu nhà 2 tầng mái Nhật “quốc dân” chắc chắn là lựa chọn không thể bỏ qua. Thiết kế này nổi bật nhờ vẻ đẹp thanh thoát, hiện đại nhưng vẫn giữ được sự ấm cúng và gần gũi. Với bố cục khoa học, thẩm mỹ hài hòa cùng chi phí xây dựng hợp lý, mẫu nhà 2 tầng mái Nhật ngày càng trở thành phương án được nhiều gia chủ tin chọn khi xây dựng tổ ấm.
Thông tin nhà 2 tầng tân cổ điển mái Nhật
| Chủ đầu tư: Anh Phan Xuân Thông | Địa chỉ: Long Hưng, Đồng Nai |
| Mặt tiền: 8,2m | Kích thước xây dựng: 8,2 x 15,7m |
| Số tầng: 2 tầng | Loại hình: Nhà mái Nhật hiện đại |
| Tổng diện tích: 238m2 | |
Công năng:
| |
| Đơn vị thiết kế: CÔNG TY TNHH MAXHOME ARCHITECT & DESIGN | |
Ngoại thất nhà 2 tầng tân cổ điển mái Nhật có 4 phòng ngủ
Mẫu nhà mái Nhật hiện đang “làm mưa làm gió” trên thị trường xây dựng nhờ vẻ đẹp hiện đại, tinh tế và phù hợp với nhiều kiểu diện tích đất. Dù các xu hướng kiến trúc liên tục thay đổi, nhà 2 tầng mái Nhật vẫn giữ được sức hút bền bỉ bởi tính ứng dụng cao, thiết kế tối ưu công năng và khả năng thích nghi tốt với điều kiện khí hậu Việt Nam. Chính vì vậy, mẫu nhà này trở thành lựa chọn yêu thích của rất nhiều gia chủ khi tìm kiếm một không gian sống tiện nghi, thẩm mỹ và bền vững theo thời gian.

Ngôi nhà 2 tầng mái Nhật dưới đây được thiết kế theo phong cách hiện đại, thể hiện rõ qua bố cục hình khối mạnh mẽ và dứt khoát. Các mảng tường phẳng kết hợp với hệ cột vuông vức tạo nên vẻ đẹp tối giản nhưng vẫn toát lên sự sang trọng. Thay vì sử dụng phào chỉ cầu kỳ, kiến trúc tập trung vào những đường nét gọn gàng cùng vật liệu ốp lát chất lượng cao, giúp ngoại thất luôn tinh tế, sạch sẽ và bền bỉ trước tác động của thời tiết.
Gam màu trắng được chọn làm chủ đạo, mang đến cảm giác thanh lịch và thoáng sáng. Đi kèm với đó là những mảng tường xanh nổi bật, cùng hệ gạch Granite và gạch thẻ ốp xung quanh, tạo điểm nhấn hài hòa và tăng chiều sâu cho tổng thể kiến trúc.

Ngoài ra, hệ mái ở tầng 1 của nhà 2 tầng mái Nhật được thiết kế đua rộng, giúp giảm thiểu tối đa tình trạng mưa hắt vào tường và khu vực sảnh chính. Giải pháp này không chỉ bảo vệ bề mặt công trình trước tác động của thời tiết mà còn góp phần duy trì vẻ đẹp ngoại thất theo thời gian. Phần mái đua lớn cũng tạo sự cân đối cho tổng thể kiến trúc, mang đến cảm giác vững chãi, bề thế và tăng thêm nét sang trọng đặc trưng của phong cách mái Nhật.

Công trình nhà 2 tầng mái Nhật được thiết kế với nhiều lối tiếp cận, bao gồm sảnh chính, sảnh phụ và cửa hậu, giúp việc di chuyển trong nhà trở nên thuận tiện và linh hoạt hơn. Riêng khu vực sảnh phụ chỉ bố trí bậc tam cấp đơn giản và không sử dụng hai trụ cột lớn như sảnh chính. Lý do là khuôn viên đất không quá rộng, nếu thiết kế sảnh phụ nhô ra quá nhiều sẽ chiếm diện tích và làm mất sự cân đối tổng thể. Nhờ cách xử lý khéo léo này, ngôi nhà vẫn đảm bảo được tính thẩm mỹ, công năng và sự thoải mái khi sử dụng.

Lan can ban công của mẫu nhà 2 tầng mái Nhật được thi công bằng sắt hộp sơn tĩnh điện, giúp đảm bảo độ bền và khả năng chống gỉ sét theo thời gian. Dù sử dụng chất liệu sắt hay lan can kính cường lực, gia chủ vẫn cần tuân thủ quy định về chiều cao an toàn. Theo tiêu chuẩn xây dựng, lan can phải có chiều cao tối thiểu từ 1,1m trở lên nhằm hạn chế rủi ro và đảm bảo an toàn tuyệt đối cho các thành viên trong gia đình, đặc biệt là trẻ nhỏ.

Hệ mái Nhật mang đến cảm giác thanh thoát cho tổng thể công trình nhờ các đường nét mềm mại và độ dốc vừa phải. Phần mái được thiết kế đua ra ở cả bốn phía, giúp nước mưa thoát nhanh, hạn chế tình trạng ứ đọng và bảo vệ tường nhà hiệu quả hơn. Đây cũng là ưu điểm nổi bật khiến mái Nhật được nhiều gia chủ lựa chọn trong xây dựng nhà ở hiện nay.

Khám phá công năng nhà mái Nhật sang trọng
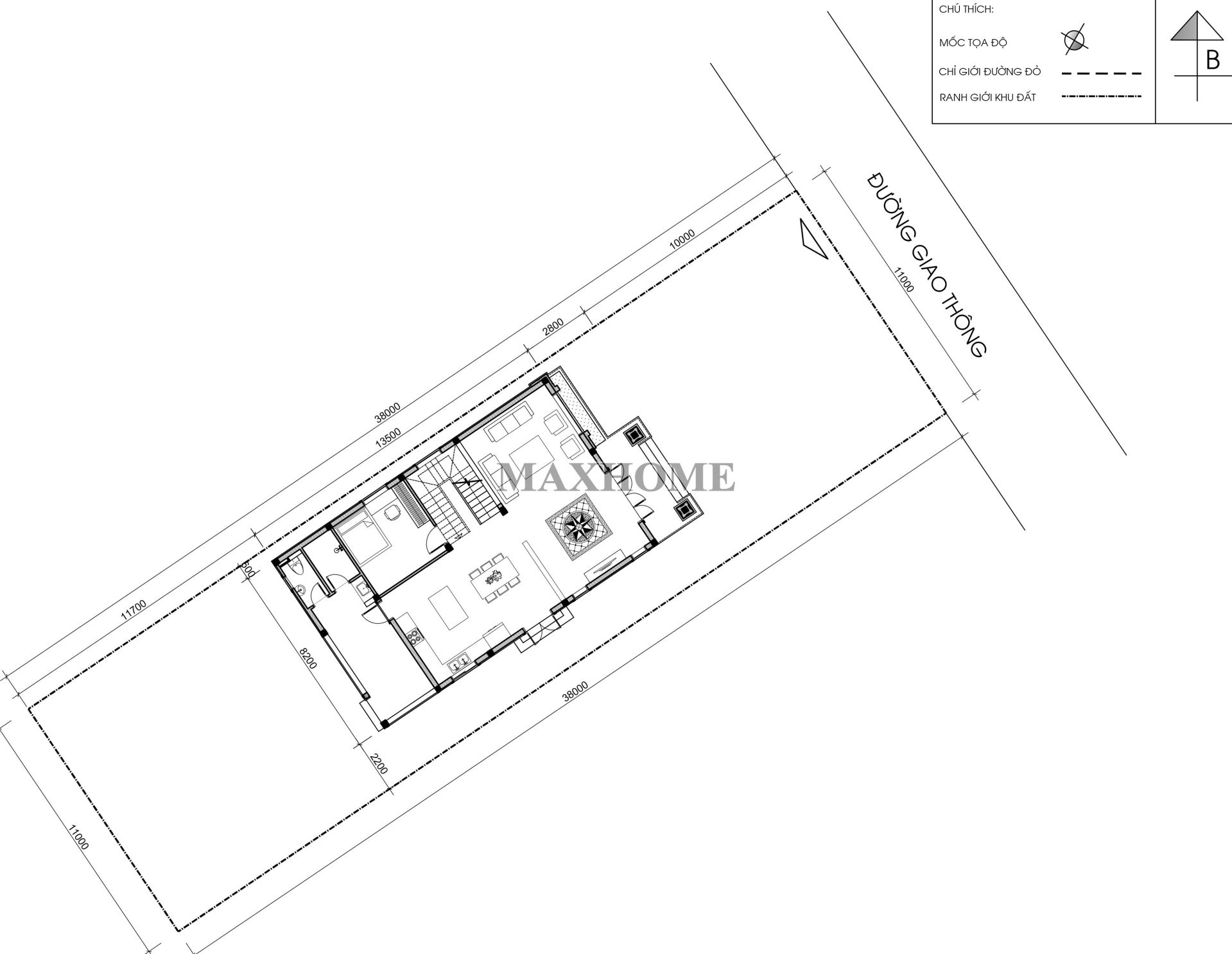
Dựa vào bản vẽ mặt bằng định vị, có thể thấy khuôn viên đất dành cho ngôi nhà 2 tầng có kích thước 8,2 x 15,7m. Với quy mô này, tổng diện tích sử dụng của công trình đạt khoảng 238m², đủ để bố trí đầy đủ các không gian chức năng như phòng khách, phòng bếp – ăn, các phòng ngủ và khu vực sinh hoạt chung, đảm bảo sự tiện nghi và thoải mái cho gia đình.

Từ cửa chính bước vào là khu vực sảnh đệm, tạo khoảng chuyển tiếp trước khi vào không gian sinh hoạt. Tiếp theo là phòng khách rộng rãi, được bố trí thoáng đãng để đón sáng và gió tự nhiên. Đi sâu về cuối nhà là phòng bếp ăn, thiết kế mở và thông ra sảnh phụ giúp hạn chế mùi khi nấu nướng.
Đối diện khu bếp là phòng ngủ số 01, phù hợp cho ông bà hoặc người lớn tuổi thuận tiện di chuyển. Cuối nhà được bố trí 1 phòng tắm, 1 nhà vệ sinh riêng biệt để tăng sự tiện lợi khi sử dụng, và sau cùng là khu vực sân phơi rộng rãi, đảm bảo nhu cầu giặt giũ hằng ngày cho gia đình.

Tầng 2 được bố trí một phòng sinh hoạt chung rộng rãi, có lối mở ra ban công giúp không gian luôn thoáng mát và là nơi lý tưởng để cả gia đình quây quần. Kế đó là phòng thờ đặt ở vị trí trang nghiêm, đảm bảo sự yên tĩnh và hợp phong thủy. Xung quanh tầng 2 được bố trí 3 phòng ngủ, phù hợp cho các thành viên trong gia đình. Cả tầng sử dụng chung một nhà vệ sinh đặt ở cuối nhà, giúp tối ưu diện tích và đảm bảo sự thuận tiện trong quá trình sinh hoạt.








