Siêu phẩm biệt thự 2 tầng 1 hầm với thiết kế ngoại thất độc đáo gợi lên hình ảnh một công trình không chỉ đẹp ở hình thức mà còn sở hữu cách xử lý kiến trúc đầy tinh tế. Chính sự kết hợp giữa công năng hiện đại và vẻ ngoài ấn tượng đã khiến mẫu biệt thự này trở thành lựa chọn đáng mơ ước cho những ai muốn tìm một không gian sống tiện nghi và đầy cảm xúc.
Thông tin biệt thự 2 tầng 1 hầm ở Đồng Nai
| Chủ đầu tư: Chị Thân Thị Ngọc | Địa chỉ: Ấp 9, Lộc Ninh, Đồng Nai |
| Mặt tiền: 8m | Kích thước xây dựng: 8 x 13,5m |
| Số tầng: 2 tầng 1 hầm | Loại hình: Biệt thự mái Nhật tân cổ điển |
| Tổng diện tích: 362m2 | |
Công năng:
| |
| Đơn vị thiết kế: CÔNG TY TNHH MAXHOME ARCHITECT & DESIGN | |
Ngoại thất biệt thự độc đáo với thiết kế tầng hầm
Căn biệt thự 2 tầng 1 hầm với thiết kế ngoại thất độc đáo luôn tạo ấn tượng mạnh ngay từ khoảnh khắc đầu tiên. Nhắc đến căn nhà của chị Ngọc ở Đồng Nai do Maxhome thiết kế, nhiều người sẽ nghĩ đây chỉ là một mẫu biệt thự 2 tầng thông thường khi đứng trước mặt tiền. Tuy nhiên, điểm đặc biệt nằm ở phần tầng hầm được bố trí khéo léo phía sau đã tạo nên một công trình biệt thự 2 tầng 1 hầm thông minh và đầy tính thẩm mỹ. Chính sự kết hợp giữa vẻ đẹp thanh lịch và cách xử lý không gian tinh tế đã giúp căn nhà trở thành mẫu thiết kế đáng chú ý trong thời gian gần đây.

Trước khi nói đến tầng hầm, hãy cùng Maxhome nhìn toàn cảnh ngoại thất để cảm nhận rõ hơn sự độc đáo của căn biệt thự trắng này. Toàn bộ công trình sử dụng màu sơn trắng làm chủ đạo, một lựa chọn tưởng như đơn giản nhưng lại mang đến hiệu ứng sang trọng và tinh tế. Nhờ sắc trắng nhẹ nhàng, từng chi tiết kiến trúc nổi bật và tạo nên sự hài hòa cho một biệt thự 2 tầng 1 hầm hiện đại.

Ngay từ mặt tiền, cửa gỗ lớn là điểm nhấn rõ rệt nhất với chiều cao 2,7m, bộ cửa trở nên bề thế, vững vàng và tạo nên cảm giác chào đón. Gỗ tự nhiên mang đến sự ấm áp trong khi màu nâu nổi bật trên nền trắng giúp mặt tiền trở nên cuốn hút. Đi liền với đó là phần bậc thềm rộng 8m trải dài tạo cảm giác mở rộng không gian và nâng tầm vẻ sang trọng cho căn biệt thự đẹp.

Các hệ cửa còn lại sử dụng vật liệu kính kết hợp khung nhôm trắng giúp không gian ngập tràn ánh sáng tự nhiên và đảm bảo sự thống nhất về màu sắc. Xung quanh viền cửa được đắp phào chỉ nổi giúp từng đường nét tinh tế, thể hiện được sự chăm chút của đội ngũ thiết kế Maxhome trong từng chi tiết. Nhìn vào từng mảng tường, từng khoảng cửa, người xem có thể cảm nhận rõ phong cách kiến trúc thông minh và giữ đúng tinh thần thanh thoát mà Maxhome hướng đến cho biệt thự 2 tầng 1 hầm này.

Từng vị trí chân cột của căn biệt thự được ốp gạch xám giả đá vân mây vừa sang trọng vừa tạo độ vững chắc cho toàn bộ công trình. Tông xám trầm tạo chiều sâu đồng thời nổi bật trên nền tường trắng. Từng lớp gạch được xử lý cẩn thận để tạo cảm giác tự nhiên giống như đá thật, nhờ vậy phần chân cột trở nên mạnh mẽ và uy nghi. Khi ngước nhìn lên tầng 2, lan can sắt sơn đen uốn cong nghệ thuật là điểm làm nhiều người thích thú. Những đường cong mềm mại tạo sự cân bằng với các khối hình học vuông vắn của công trình giúp tổng thể biệt thự mang vẻ đẹp hài hòa và thanh lịch.

Nếu quan sát từ góc nghiêng, bạn sẽ thấy rõ phần tầng hầm được xây dựng kiên cố phía dưới. Tầng hầm không lộ rõ từ phía trước tạo cảm giác công trình nhẹ nhàng nhưng thực tế lại có không gian sử dụng rộng rãi hơn hẳn một căn biệt thự 2 tầng thông thường. Tầng hầm có thể di chuyển ra vào từ cả hai bên hông nhà giúp tiện lợi cho việc lưu trữ vì dưới này là phòng kho. Mỗi cửa ra vào đều lắp đặt cửa cuốn an ninh vừa đảm bảo an toàn vừa phù hợp với phong cách hiện đại của căn nhà.

Ngoài ra, chiều cao tầng hầm được xây dựng cao 2,65m giúp không gian không bị bí bách, tầng 1 cao 3,9m và tầng 2 cao 3,6m cũng giúp tạo nên tỷ lệ hoàn chỉnh, trong khi đó, hệ mái Nhật cao 2,8m giúp tổng thể cân đối, thanh thoát và mượt mà.

Công năng biệt thự 2 tầng 1 hầm siêu tiện nghi

Chị Ngọc sở hữu mảnh đất rất rộng rãi, còn thoải mái khu đất vườn trồng cây và khu vực nhà ở cũ được giữ lại. Căn biệt thự 2 tầng 1 hầm cách mặt đường 5,5m nên vẫn còn một khoảng sân nhỏ phía trước tạo bước đệm trước khi vào nhà rất vừa vặn và thoải mái.

Tầng hầm của căn biệt thự đẹp được dành trọn cho một phòng kho rộng đến 90m2. Không gian lớn như vậy giúp gia đình chị Ngọc thoải mái cất trữ đồ đạc hoặc bố trí thêm các thiết bị cần thiết mà không lo chật chội. Nhờ nằm tách biệt phía dưới nên khu vực này luôn gọn gàng và không ảnh hưởng đến sinh hoạt ở các tầng trên.

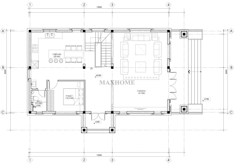
Bước lên tầng 1 là không gian sinh hoạt chính của gia đình chị Ngọc, phòng khách 41m2 được đặt một bộ bàn ghế rất rộng lớn và hoành tráng để đón tiếp bạn bè người thân. Phía sau cầu thang là phòng bếp ấm cúng 20m2 thuận tiện cho việc di chuyển và sinh hoạt hằng ngày. Tầng này còn có 1 phòng ngủ đặt cạnh nhà vệ sinh chung bố trí gọn gàng và dễ sử dụng.


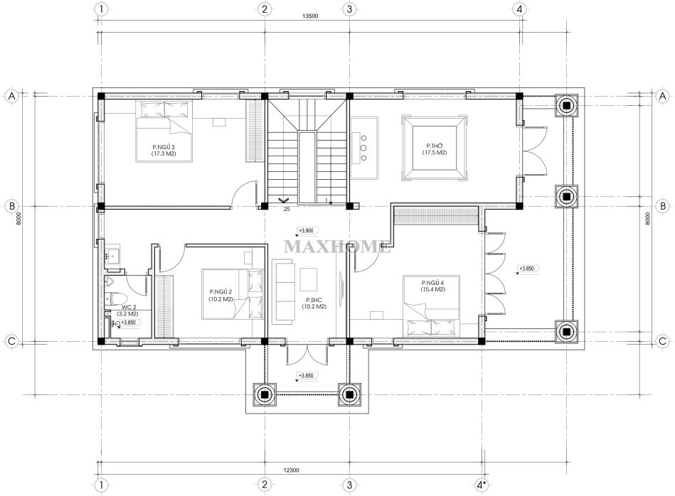
Tầng 3 mang tính riêng tư nhiều hơn, trước mắt có phòng thờ 17,5m2 đặt ở vị trí trang trọng và yên tĩnh. Khu sinh hoạt chung nằm gần ban công phụ để cả nhà chị Ngọc có không gian quây quần trò chuyện. Ngoài ra còn có 3 phòng ngủ được bố trí hợp lý, đủ rộng và thoải mái cho từng thành viên. Một nhà vệ sinh chung cũng được sắp xếp đồng trục với tầng 1 mà vị trí cũng thuận tiện để mọi người sử dụng mà không phải di chuyển xa.











