Mẫu nhà mái bằng 2 tầng 4 phòng ngủ hiện đại do kiến trúc sư Maxhome thiết kế cho gia đình anh Long tại Thanh Hóa là giải pháp lý tưởng dành cho những gia chủ đề cao công năng, thẩm mỹ và sự tiện nghi lâu dài. Công trình gây ấn tượng bởi bố cục không gian mạch lạc, tối ưu từng mét vuông sử dụng, đáp ứng trọn vẹn nhu cầu sinh hoạt của gia đình đông thành viên. Thiết kế còn hướng đến giá trị bền vững, dễ thi công, tiết kiệm chi phí và phù hợp với điều kiện khí hậu, sinh hoạt thực tế của gia đình Việt.
Thông tin công trình nhà 2 tầng mái bằng
| Chủ đầu tư: Anh Ngô Thanh Long | Địa chỉ: Hậu Lộc, Thanh Hoá |
| Mặt tiền: 7,99m | Kích thước xây dựng: 7,99 x 12,2m |
| Số tầng: 2 tầng | Loại hình: Nhà mái bằng hiện đại |
| Tổng diện tích: 195m² | |
Công năng:
| |
| Đơn vị thiết kế: CÔNG TY CỔ PHẦN KIẾN TRÚC VÀ XÂY DỰNG MAXHOME VIỆT NAM | |
Mẫu nhà mái bằng 2 tầng 4 phòng ngủ – Thiết kế hiện đại, tối ưu mọi không gian
Mẫu nhà hiện đại 2 tầng mái bằng gây ấn tượng mạnh ngay từ cái nhìn đầu tiên nhờ tạo hình vuông vức, khỏe khoắn với các khối kiến trúc được sắp xếp có chủ ý, mang lại cảm giác vững chãi và bề thế. Đường nét thiết kế dứt khoát, kết hợp cùng những chi tiết trang trí được tiết chế tinh tế và bảng màu hài hòa, giúp tổng thể công trình toát lên vẻ hiện đại, sang trọng. Tất cả góp phần thể hiện rõ gu thẩm mỹ chỉn chu, tinh tế và phong cách sống thời thượng của gia chủ.

Mặt tiền nổi bật với hệ cửa kính lớn bố trí xuyên suốt, sử dụng nhôm kính cao cấp có độ bền vượt trội, vận hành êm ái và khả năng cách âm, cách nhiệt hiệu quả. Việc lựa chọn vật liệu này không chỉ đảm bảo an toàn, nâng cao tuổi thọ sử dụng mà còn giúp không gian bên trong luôn yên tĩnh, mát mẻ và dễ chịu.
Bên cạnh đó, hệ cửa nhôm kính còn phát huy tối đa lợi thế đón sáng tự nhiên, mang đến cảm giác thoáng đãng, tràn đầy năng lượng, đồng thời góp phần tôn lên vẻ đẹp hiện đại, sang trọng cho tổng thể kiến trúc ngoại thất.

Cách phối màu của công trình được KTS xử lý khéo léo theo tinh thần hiện đại, tạo nên tổng thể hài hòa cả về thẩm mỹ lẫn công năng sử dụng. Gam trắng và ghi sáng đóng vai trò chủ đạo, giúp hình khối kiến trúc trở nên thanh thoát, mở rộng cảm giác không gian và hạn chế hấp thụ nhiệt, phù hợp với điều kiện khí hậu Việt Nam.
Điểm nhấn được tạo nên từ các mảng ốp màu nâu gỗ và xám đậm, vừa tăng chiều sâu thị giác, mang lại cảm giác ấm áp, sang trọng, vừa giúp mặt tiền bớt đơn điệu. Sự kết hợp màu sắc có tính toán này không chỉ tôn lên vẻ đẹp hiện đại, tinh tế của ngôi nhà mà còn góp phần nâng cao hiệu quả sử dụng, tạo nên không gian sống dễ chịu và bền vững theo thời gian.

Khu vực ban công được thiết kế với lan can kính cường lực cao cấp kết hợp tay vịn kim loại chắc chắn, vừa đảm bảo an toàn vừa giữ trọn vẻ thanh thoát cho mặt tiền công trình. Nhờ sử dụng kính trong suốt, không gian ban công luôn rộng mở, đón ánh sáng tự nhiên và tầm nhìn thoáng đãng ra cảnh quan xung quanh.
Đây không chỉ là điểm nhấn kiến trúc tinh tế cho ngôi nhà 2 tầng mái bằng 4 phòng ngủ mà còn là góc “chill” lý tưởng để gia chủ thư giãn, uống trà, đọc sách hay tận hưởng những khoảnh khắc yên bình giữa nhịp sống thường ngày.


Không gian sân vườn và khu vực đỗ xe được quy hoạch gọn gàng, khoa học, kết hợp hài hòa với hệ cây xanh và tiểu cảnh bao quanh, mang lại diện mạo ngoại thất sinh động và tràn đầy sức sống.
Trên cao, mái bằng được lợp tôn giúp hạn chế hấp thụ nhiệt, tăng khả năng chống nóng và đảm bảo độ bền lâu dài cho công trình. Kiến trúc sư còn bố trí giếng trời tại vị trí trung tâm mái nhằm tận dụng ánh sáng tự nhiên và tăng cường lưu thông không khí, tạo cảm giác thông thoáng, dễ chịu cho toàn bộ không gian sống. Đồng thời, hệ thống téc nước và thái dương năng được sắp xếp hợp lý, vừa đáp ứng tốt nhu cầu sử dụng vừa giữ được tính thẩm mỹ tổng thể cho ngôi nhà.

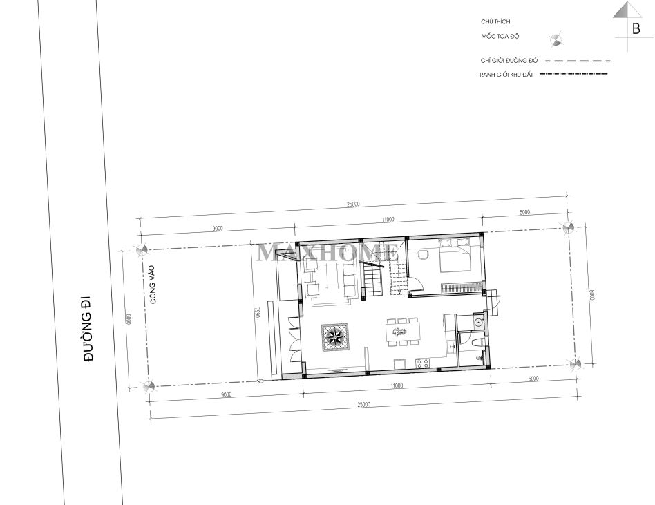
Bản vẽ chi tiết công năng nhà 2 tầng hiện đại
Về vị trí, ngôi nhà 2 tầng mái bằng hiện đại được xây dựng theo hướng Tây Nam, sở hữu kích thước 7,99 x 12,2m với tổng diện tích sử dụng khoảng 195m². Trên nền diện tích này, các kiến trúc sư Maxhome đã nghiên cứu và bố trí mặt bằng công năng một cách khoa học, đảm bảo sự thuận tiện trong sinh hoạt hằng ngày. Mỗi không gian đều được tính toán kỹ lưỡng nhằm mang đến môi trường sống thoải mái, ấm cúng và phù hợp với nhu cầu của từng thành viên trong gia đình.

Từ sảnh chính bước vào là phòng khách rộng rãi, thông thoáng, được đặt ở vị trí trung tâm, vừa tạo cảm giác đón tiếp trang trọng vừa thuận tiện cho giao tiếp hằng ngày. Liền kề là khu vực bếp và phòng ăn thiết kế mở, giúp không gian luôn thông suốt, dễ dàng di chuyển và tăng sự gắn kết giữa các thành viên trong gia đình.
Phía cuối nhà bố trí một phòng ngủ yên tĩnh, phù hợp cho người lớn tuổi hoặc khách đến ở lại, kết hợp cùng nhà vệ sinh chung đặt gọn gàng, kín đáo, đảm bảo tiện nghi mà vẫn giữ được sự riêng tư cho toàn bộ tầng sinh hoạt.

Tầng 2 gồm 3 phòng ngủ với diện tích phù hợp, phân bổ đều hai bên cầu thang, đảm bảo sự yên tĩnh và riêng tư cho từng thành viên. Khu vực phòng thờ được đặt ở vị trí trang trọng, tách biệt, có hướng nhìn thoáng ra ban công phía trước, thuận tiện cho việc thờ cúng và giữ gìn sự tôn nghiêm.
Bên cạnh đó, tầng 2 còn được bố trí sân phơi gọn gàng, nhà vệ sinh chung thuận tiện sử dụng, cùng ban công thoáng đãng giúp lấy sáng, đón gió tự nhiên, mang lại sự thông thoáng và cân bằng cho toàn bộ không gian tầng trên.








