Trong bối cảnh đô thị ngày càng đông đúc, diện tích đất ở ngày càng thu hẹp khiến nhiều gia đình ưu tiên giải pháp xây dựng nhà cao tầng. Mẫu nhà ống 3 tầng với phong cách hiện đại không chỉ có thiết kế gọn gàng, dễ thi công mà còn giúp kiểm soát chi phí hiệu quả, đồng thời gia tăng đáng kể diện tích sử dụng. Hãy cùng chiêm ngưỡng mẫu nhà ống 3 tầng 4x16m của gia đình anh Lâm tại Thanh Hóa do đội ngũ kiến trúc sư Maxhome trực tiếp thiết kế trong bài viết dưới đây nhé!
Thông tin công trình nhà ống 3 tầng
| Chủ đầu tư: Anh Nguyễn Trung Kiên | Địa chỉ: Vĩnh Tường, Vĩnh Phúc |
| Mặt tiền: 4m | Kích thước xây dựng: 4 x 15,9m |
| Số tầng: 3 tầng | Loại hình: Nhà phố mái bằng hiện đại |
| Tổng diện tích: 190m² | |
Công năng:
| |
| Đơn vị thiết kế: CÔNG TY CỔ PHẦN KIẾN TRÚC VÀ XÂY DỰNG MAXHOME VIỆT NAM | |
Nhà ống 3 tầng 4x16m 3 phòng ngủ đẹp hiện đại, ngắm là muốn xây
Mẫu nhà ống 3 tầng 4x16m mái bằng hiện đại đang dần trở thành lựa chọn ưu tiên của nhiều gia đình nhờ diện mạo trẻ trung và tính thẩm mỹ cao. Công trình nổi bật với bố cục hình khối rõ ràng, các mảng kiến trúc vuông vức được phối hợp linh hoạt, tạo nên tổng thể hài hòa nhưng vẫn có điểm nhấn riêng. Thiết kế chú trọng mở rộng không gian bằng hệ ban công, cửa kính và khoảng đệm xanh, mang lại sự thông thoáng, ánh sáng tự nhiên và cảm giác gần gũi với môi trường xung quanh.

Mặt tiền ngôi nhà gây ấn tượng mạnh với cách phối màu và vật liệu hài hòa, vừa hiện đại vừa sang trọng. Tầng 1 được sơn giả đá màu ghi xám với hiệu ứng vân mây tinh tế, không chỉ nâng tầm thẩm mỹ mà còn giúp bảo vệ tốt phần tường ở khu vực thấp, hạn chế bám bẩn và xuống cấp theo thời gian.
Lên đến tầng 2 và tầng 3, gam trắng được sử dụng làm chủ đạo, kết hợp cùng sắc nâu ấm của các mảng lam gỗ nhựa ốp trần mái và khu vực bồn hoa, tạo cảm giác ấm áp và cân bằng thị giác.

Điểm nhấn nổi bật của mặt tiền còn đến từ các mảng xanh được bố trí khéo léo tại ban công, mang lại sự tươi mát và giúp công trình gần gũi hơn với thiên nhiên.
Toàn bộ cửa được làm bằng hệ nhôm kính xingfa cùng với hệ lan can kính cường lực trong suốt kết hợp tay vịn kim loại góp phần mở rộng tầm nhìn, đồng thời hoàn thiện diện mạo hiện đại, thanh thoát cho tổng thể ngôi nhà ống 3 tầng 4x16m.

Bên cạnh giải pháp mở rộng không gian nhằm tận dụng tối đa nguồn sáng tự nhiên, kiến trúc sư còn đặc biệt quan tâm đến việc sắp xếp hệ thống chiếu sáng nhân tạo một cách khoa học.
Các loại đèn được bố trí hợp lý tại mặt tiền, ban công, trần nhà và khu vực giao thông, vừa đảm bảo công năng sử dụng vừa tạo hiệu ứng thẩm mỹ vào ban đêm. Nhờ sự kết hợp hài hòa giữa ánh sáng tự nhiên và ánh sáng đèn, ngôi nhà ống 3 tầng 4x16m luôn giữ được cảm giác sáng sủa, ấm cúng và nổi bật ở mọi thời điểm trong ngày.

Từ góc nhìn trên cao, tổng thể kiến trúc của ngôi nhà ống 3 tầng 4x16m hiện đại được thể hiện rõ nét với bố cục mạch lạc và những điểm nhấn thiết kế tinh tế. Các mảng xanh được khéo léo bố trí đan xen tại ban công, sân thượng và khu vực mặt tiền, góp phần làm mềm không gian ngoại thất, đồng thời mang lại cảm giác trong lành, dễ chịu cho toàn bộ công trình.
Trên tầng mái, hệ giếng trời được sắp xếp khoa học giúp tăng cường khả năng lấy sáng, hỗ trợ lưu thông không khí hiệu quả, qua đó cải thiện đáng kể chất lượng sinh hoạt bên trong ngôi nhà.

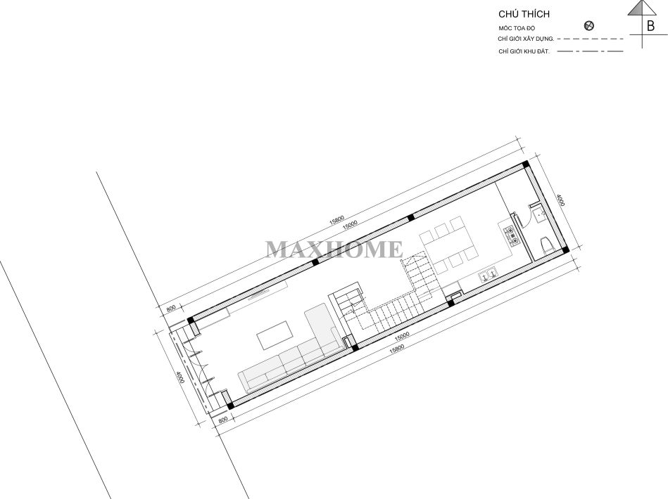
Bản vẽ chi tiết công năng nhà phố 3 tầng
Về vị trí, công trình nằm ở hướng Tây Nam, có kích thước 4x 15,9m. Tổng diện tích sử dụng khoảng 190m2. Mặt bằng công năng của ngôi nhà ống 3 tầng 4x16m được thiết kế chú trọng đến sự tiện nghi, khoa học dựa theo nhu cầu và thói quen sinh hoạt hàng ngày của các thành viên trong gia đình.

Bước qua sảnh chính, không gian phòng khách hiện ra với cảm giác rộng rãi và thông thoáng, được xem như “bộ mặt” của ngôi nhà, nơi thể hiện rõ gu thẩm mỹ cũng như sự chỉn chu và hiếu khách của gia chủ. Chính vì vậy, khu vực này được đầu tư nội thất theo hướng sang trọng, tiện nghi, vừa đảm bảo công năng sử dụng vừa tạo ấn tượng ngay từ cái nhìn đầu tiên.
Liền kề sau sảnh thang là không gian bếp và phòng ăn được bố trí gọn gàng, mang lại cảm giác ấm cúng cho những bữa sum họp gia đình. Ở cuối nhà, khu vệ sinh chung được sắp xếp kín đáo, thuận tiện cho sinh hoạt hằng ngày mà vẫn đảm bảo sự riêng tư cần thiết.

Tầng 2 được bố trí hoàn toàn cho khu vực nghỉ ngơi, mang đến không gian sinh hoạt riêng tư và yên tĩnh cho các thành viên trong gia đình. Hai phòng ngủ tại đây đều có diện tích rộng rãi, được thiết kế nội thất đầy đủ, tiện nghi nhằm đáp ứng tối đa nhu cầu sử dụng. Mỗi phòng đều sở hữu nhà vệ sinh khép kín, giúp tăng tính thuận tiện và đảm bảo sự thoải mái trong quá trình sinh hoạt.

Phòng thờ được bố trí tại tầng 3 nhằm đảm bảo sự yên tĩnh và trang nghiêm cho không gian tâm linh của gia đình. Bàn thờ được đặt theo hướng thẳng ra mặt tiền chính, góp phần đón sinh khí và mang ý nghĩa thu hút may mắn, tài lộc. Khu vực này còn được thiết kế cửa mở ra ban công rộng rãi, tạo sự thông thoáng cùng tầm nhìn đẹp, giúp không gian luôn thanh tịnh và dễ chịu. Phía sau tầng 3 là một phòng ngủ được bố trí gọn gàng, đi kèm nhà vệ sinh chung và khu sân phơi.








