Nghe đến mẫu nhà vườn 4 phòng ngủ siêu rộng tọa lạc tại tỉnh Phú Thọ, nhiều người sẽ hình dung ngay một không gian sống an yên, rộng rãi và tràn ngập hơi thở thiên nhiên. Ngôi nhà của anh Lên do Maxhome thiết kế đã mang tới phong cách sống mà nhiều gia đình đang hướng tới. Từ vẻ ngoài bề thế cho đến những chi tiết nhỏ được chăm chút tỉ mỉ, tất cả cùng nhau tạo nên một công trình vừa cuốn hút vừa gần gũi khiến ai nhìn thấy cũng phải dừng lại ngắm thêm một chút.
Thông tin nhà vườn 4 phòng ngủ siêu rộng
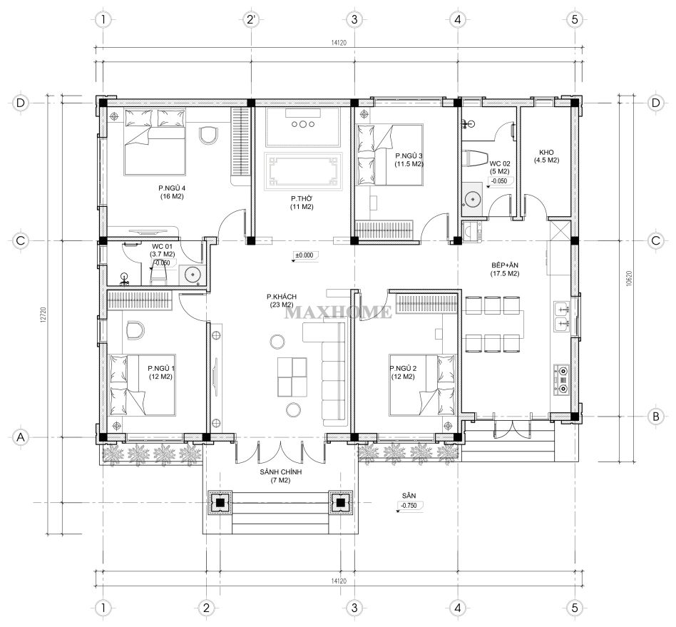
| Chủ đầu tư: Anh Nguyễn Văn Lên | Địa chỉ: Chấn Yên, Hội Thịnh, Phú Thọ |
| Mặt tiền: 14,1m | Kích thước xây dựng: 14,1 x 12,7m |
| Số tầng: 1 tầng | Loại hình: Nhà mái Nhật hiện đại |
| Tổng diện tích: 138m2 | |
| Công năng:
Phòng khách, phòng thờ, phòng bếp, phòng kho, 4 phòng ngủ, 2 wc |
|
| Đơn vị thiết kế: CÔNG TY TNHH MAXHOME ARCHITECT & DESIGN | |
Tham khảo phối cảnh ngoại thất căn nhà cấp 4 đẹp
Mặt tiền rộng 14,1m là lợi thế giúp tổng thể căn nhà vườn 4 phòng ngủ trải dài hết sức bề thế. Không gian phía trước mở ra đầy thoáng đãng cho phép người đứng đối diện cảm nhận trọn vẹn dáng vẻ đồ sộ của mẫu nhà đẹp này.

Maxhome đã khai thác triệt để ưu điểm mẫu nhà vườn cấp 4 này bằng cách tạo hình mạch lạc và các đường nét rõ ràng để giúp công trình trở nên mạnh mẽ nhưng vẫn rất cân đối. Nhìn từ ngoài vào, phần mặt tiền như một mặt phẳng lớn được sắp đặt có chủ đích tạo cảm giác kiên cố và sang trọng ngay cả khi chưa bước vào bên trong.

Cũng giống như nhiều công trình Maxhome khác, nền nhà anh Lên đã được nâng cao để tạo sự thoáng đãng và tăng tính thẩm mỹ. Hai lối vào từ sảnh chính và sảnh phụ được thiết kế với 5 bậc thềm cao ráo. Mỗi mặt bậc đều được ốp đá Granite đen tạo hiệu ứng sang trọng và sạch sẽ, trong khi phần cổ bậc được sơn trắng làm nổi bật sự tương phản mà vẫn nhìn rất hài hòa. Việc chăm chút từng chi tiết như vậy giúp ngoại thất của ngôi nhà vườn 4 phòng ngủ thêm phần hoàn chỉnh và sắc nét.


Điểm gây ấn tượng mạnh tiếp theo chính là hệ cửa, cửa chính dùng thép vân gỗ vừa chắc chắn vừa đem lại vẻ sang trọng, các ô kính cường lực bao quanh cửa chính giúp ánh sáng tự nhiên tràn vào bên trong dễ dàng hơn đồng thời góp phần làm mặt tiền thêm hiện đại. Cửa phụ và hệ thống cửa sổ sử dụng khung nhôm đen kính trong suốt đồng bộ về phong cách nhưng vẫn giữ lại nét tinh tế cần có cho một ngôi nhà vườn 4 phòng ngủ rộng lớn.

Ngoại thất càng hoàn thiện hơn khi Maxhome chú trọng đến hệ thống ánh sáng. Đèn được bố trí ở các cột nhà, dưới hệ mái và trần sảnh. Ban ngày, ngôi nhà tận dụng được ánh sáng tự nhiên thông qua các ô cửa kính nên luôn sáng sủa. Đến tối, đèn led tạo ra ánh vàng dịu nhẹ giúp cả công trình trở nên lung linh và ấm áp. Sự thay đổi giữa hai nguồn sáng giúp ngôi nhà luôn nổi bật, dù là lúc trời sáng hay khi màn đêm buông xuống.

Chiều cao thông thủy của ngôi nhà đạt 3,9m giúp không gian bên trong rất thoáng nhưng nhìn từ ngoài cũng thấy tỷ lệ kiến trúc cân đối và dễ chịu. Trên cùng là hệ mái Nhật cao 3,2m, thiết kế mái Nhật vốn nổi tiếng nhờ tính bền bỉ, thẩm mỹ và khả năng chống nóng tốt. Khi được đưa vào tổng thể mẫu nhà vườn 4 phòng ngủ này, phần mái mang lại vẻ uy nghi và vững chãi.
Hệ mái đua đều 710mm mỗi phía không chỉ giúp che nắng mưa mà còn làm công trình thanh thoát hơn. Bên dưới diềm mái, phần ốp nhựa giả gỗ ngoài trời màu nâu tạo điểm nhấn gần gũi và ấm áp giúp mái không quá đơn điệu mà vẫn giữ được tinh thần sang trọng của phong cách Nhật.

Công năng nhà vườn 4 phòng ngủ siêu rộng

Gia đình anh Lên sở hữu khuôn đất hai mặt tiền nên dự kiến sau khi ngôi nhà vườn 4 phòng ngủ được xây lên chắc chắn sẽ rất nổi bật ở khu vực này. Trước khi lên phương án thiết kế, đội ngũ Maxhome cũng đã tới tận nhà anh Lên để ghi lại hình ảnh hiện trang khu đất để xác định hướng nhà tốt cũng như lên bản thiết kế chuẩn xác nhất.
Bước vào bên trong, không gian đầu tiên là phòng khách rộng rãi, sáng sủa và đón gió tốt nhờ hệ cửa lớn. Ngay cạnh đó là phòng thờ được bố trí trang trọng, tách nhẹ khỏi khu sinh hoạt chung để giữ sự yên tĩnh và ấm cúng cần có. Khu bếp và ăn nằm gần lối đi phụ giúp việc di chuyển, nấu nướng hay sinh hoạt hàng ngày đều tiện lợi hơn.

Ngôi nhà có đến 4 phòng ngủ, mỗi phòng đều được bố trí cửa sổ để lấy sáng và gió, đảm bảo sự thoải mái cho từng thành viên trong gia đình. Ngoài ra còn có 1 phòng kho nhỏ gọn, đủ để cất giữ đồ đạc ít dùng đến. Hai nhà vệ sinh được đặt ở vị trí hợp lý giúp mọi người thuận tiện cho cả khu vực chung lẫn khu vực phòng ngủ.
Tất cả những chi tiết trên hòa quyện vào nhau đã tạo nên một không gian sống thật sự thoải mái. Công trình của anh Lên không chỉ đẹp ở hình khối mà còn có chiều sâu trong cách phối màu, cách lựa chọn vật liệu và cách xử lý ánh sáng. Đây là mẫu nhà vườn 4 phòng ngủ đáng để tham khảo cho những ai yêu thích sự hiện đại, rộng rãi và hài hòa với thiên nhiên.

