Sở hữu một ngôi nhà 2 tầng mái Nhật sang trọng, tiện nghi và tối ưu công năng là mong muốn của nhiều gia đình hiện nay. Hiểu được nhu cầu đó, Maxhome giới thiệu bộ bản vẽ nhà 2 tầng mái Nhật 4 phòng ngủ mẫu thiết kế được nhiều chủ đầu tư đánh giá cao nhờ tính thẩm mỹ hài hòa, bố trí không gian khoa học và phù hợp với nhiều diện tích đất. Bộ hồ sơ đầy đủ, chi tiết, giúp gia chủ dễ dàng triển khai thi công, tiết kiệm chi phí và đảm bảo chất lượng công trình đúng theo mong muốn.
Thông tin nhà 2 tầng mái Nhật 4 phòng ngủ
| Chủ đầu tư: Chú Nguyễn Văn Thắng | Địa chỉ: Đồng Hỷ, Thái Nguyên |
| Mặt tiền: 12,5m | Kích thước xây dựng: 12,5 x 12,1m |
| Số tầng: 2 tầng | Loại hình: Nhà mái Nhật hiện đại |
| Tổng diện tích: 218m2 | |
Công năng:
|
|
| Đơn vị thiết kế: CÔNG TY TNHH MAXHOME ARCHITECT & DESIGN | |
Ngoại thất nhà 2 tầng mái Nhật hiện đại
Ngôi nhà 2 tầng mái Nhật dưới đây được thiết kế theo phong cách hiện đại, mang đến vẻ đẹp thanh lịch và cá tính ngay từ góc nhìn đầu tiên. Mẫu thiết kế này được đông đảo khách hàng yêu thích nhờ sự hài hòa giữa thẩm mỹ ngoại thất và cách bố trí công năng khoa học bên trong. Không chỉ đẹp mắt, ngôi nhà còn đáp ứng đầy đủ nhu cầu sinh hoạt của gia đình, tạo nên không gian sống tiện nghi và tối ưu cho mọi thành viên.

Ngôi nhà 2 tầng mái Nhật 4 phòng ngủ được thiết kế theo bố cục hình chữ L, giúp tận dụng tối đa diện tích khuôn viên đất và tạo nên không gian thông thoáng quanh công trình. Gam màu trắng được chọn làm chủ đạo, kết hợp hài hòa với sắc xanh làm điểm nhấn ở một số mảng tường, giúp tổng thể trở nên nổi bật nhưng vẫn giữ được sự tinh tế. Các kiến trúc hiện đại thường được thiết kế đường kẻ chỉ âm tường chạy quanh mặt tiền và mẫu nhà này cũng không ngoại lệ, tạo nên chiều sâu thẩm mỹ và tăng sức hút cho phần ngoại thất.

Ngôi nhà sở hữu hệ cột vuông vắn ở cả tầng 1 và tầng 2, tạo nên cảm giác vững chãi và cân đối cho toàn bộ mặt tiền. Bên cạnh đó, mẫu nhà 2 tầng mái Nhật được thiết kế với bậc ngũ cấp theo đúng tiêu chuẩn phong thủy, giúp thu hút sinh khí tốt cho gia chủ. Toàn bộ bậc thềm đều được ốp đá granite cao cấp mang lại độ bền vượt trội, đồng thời tăng thêm vẻ sang trọng cho khu vực sảnh chính.

Hệ viền mái của mẫu nhà 2 tầng mái Nhật được thiết kế đua rộng, vừa tăng tính thẩm mỹ vừa giúp che chắn hiệu quả, hạn chế nước mưa hắt vào các ô cửa sổ và tường bao. Ngoài chức năng bảo vệ, toàn bộ viền mái còn được bố trí đèn downlight âm trần, tạo hiệu ứng chiếu sáng đẹp mắt vào ban đêm và góp phần tôn lên vẻ hiện đại, sang trọng cho tổng thể công trình.

Từ góc nhìn trên cao, toàn bộ khuôn viên đất của thiết kế nhà đẹp này hiện lên một cách rõ ràng và hài hòa. Ngoài không gian chính của ngôi nhà, kiến trúc sư còn bố trí thêm một khu vực chồi nghỉ được trồng nhiều cây xanh, tạo điểm nhấn thư giãn và mang lại sự thoáng mát cho tổng thể công trình. Đây cũng là không gian lý tưởng để gia chủ nghỉ ngơi, hít thở không khí trong lành hoặc tận hưởng cảnh quan xung quanh.

Khám phá công năng nhà mái Nhật hiện đại có 4 phòng ngủ
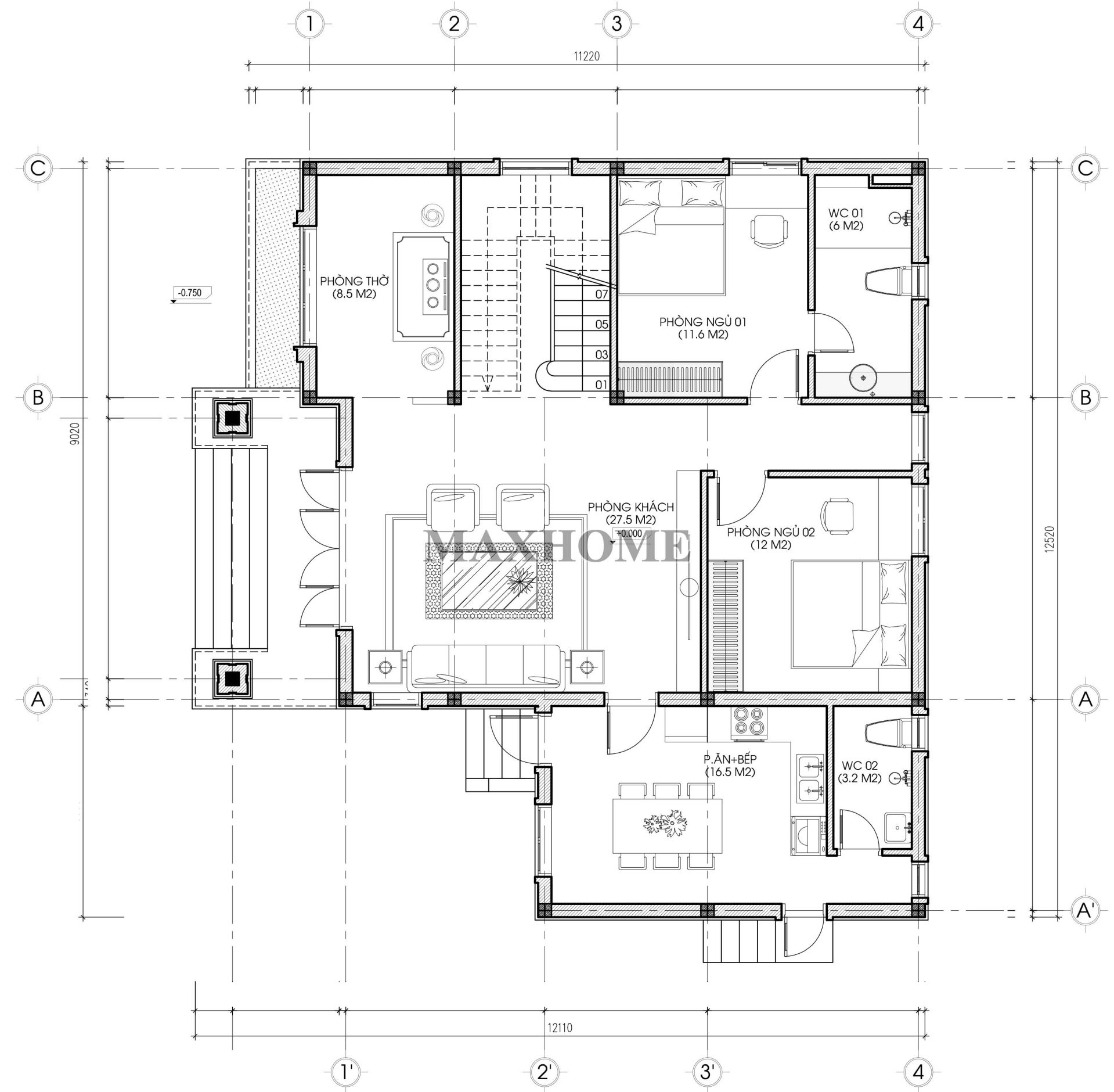
Dưới đây là mặt bằng định vị công trình, thể hiện rõ khuôn viên đất và cách bố trí tổng thể ngôi nhà. Mẫu nhà 2 tầng mái Nhật được sắp xếp lùi về phía sau để tạo khoảng sân trước thông thoáng và thuận tiện cho việc di chuyển. Công trình được thiết kế với kích thước 12,5 x 12,1m, tổng diện tích sử dụng khoảng 218m², đáp ứng đầy đủ không gian sinh hoạt cho gia đình và tối ưu hiệu quả sử dụng đất.

Từ sảnh chính bước vào là không gian phòng khách rộng rãi, được bố trí liên thông và thông thoáng. Phòng thờ trang nghiêm được đặt tại tầng 1, thuận tiện cho việc sinh hoạt và đáp ứng nhu cầu thờ cúng của gia đình. Cuối nhà là 2 phòng ngủ, trong đó phòng ngủ số 01 sở hữu nhà vệ sinh khép kín, đảm bảo sự riêng tư và tiện nghi. Khu vực bếp ăn được bố trí tách biệt nhằm hạn chế ám mùi, đồng thời được trang bị thêm một nhà vệ sinh chung phục vụ cho sinh hoạt hằng ngày.

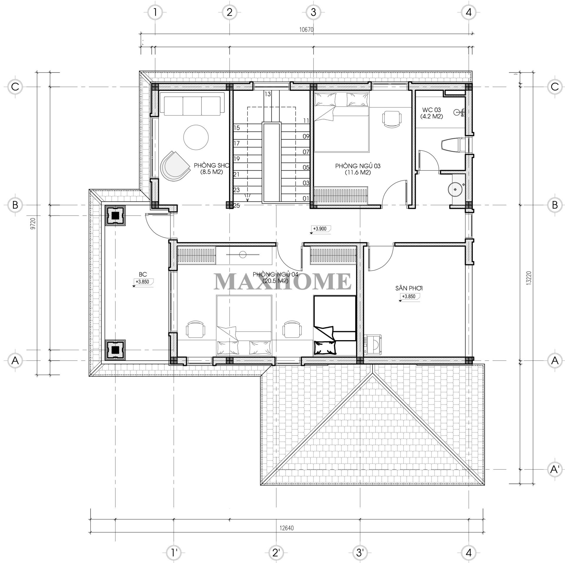
Tầng 2 được bố trí khoa học với một phòng sinh hoạt chung rộng thoáng, là nơi các thành viên quây quần và kết nối. Bên cạnh đó, tầng này có 2 phòng ngủ được thiết kế đảm bảo sự riêng tư và đón sáng tự nhiên. Cuối nhà là một nhà vệ sinh chung thuận tiện cho việc sử dụng. Ngoài ra, khu vực sân phơi được sắp xếp hợp lý, đảm bảo thông gió tốt và phục vụ hiệu quả cho nhu cầu sinh hoạt hằng ngày.


