Trong xu hướng tìm về không gian sống yên bình, gần gũi thiên nhiên nhưng vẫn đảm bảo tiện nghi hiện đại, nhà vườn mái Nhật 3 phòng ngủ đang trở thành lựa chọn được nhiều gia chủ yêu thích. Không phô trương cầu kỳ, kiểu nhà này chinh phục người nhìn bằng vẻ đẹp cân đối, bền vững theo thời gian và cảm giác an yên ngay từ ánh nhìn đầu tiên. Nắm bắt xu hướng đó, Maxhome đã thiết kế mẫu nhà vườn mái Nhật 3 phòng ngủ cho gia đình anh Ninh tại Hưng Yên, đáp ứng trọn vẹn nhu cầu ở, nghỉ ngơi và gắn kết các thành viên.
Thông tin công trình nhà vườn mái Nhật
| Chủ đầu tư: Anh Nguyễn Trọng Ninh | Địa chỉ: Bế Tiến Hưng, Hưng Yên |
| Mặt tiền: 12m | Kích thước xây dựng: 12 x 14,9m |
| Số tầng: 1 tầng | Loại hình: Nhà mái Nhật hiện đại |
| Tổng diện tích: 120m² | |
| Công năng: Phòng khách, phòng thờ, phòng bếp, 3 phòng ngủ, 1 phòng tắm, 1 wc | |
| Đơn vị thiết kế: CÔNG TY TNHH MAXHOME ARCHITECT & DESIGN | |
Mẫu nhà vườn mái Nhật 3 phòng ngủ đẹp, giá rẻ, công năng tiện nghi
Ngôi nhà vườn mái Nhật gây ấn tượng bởi hình khối vuông vắn, bố cục đăng đối và tỷ lệ hài hòa. Hệ mái Nhật xếp lớp gọn gàng, độ dốc vừa phải giúp tổng thể ngôi nhà trở nên thấp thoáng, vững chãi nhưng không nặng nề. Các khối mái giao nhau khéo léo, tạo chiều sâu kiến trúc và giúp công trình nổi bật giữa không gian sân vườn rộng rãi. Đây cũng là ưu điểm lớn của mái Nhật, vừa phù hợp khí hậu Việt Nam, vừa mang lại giá trị thẩm mỹ lâu dài.

Mặt tiền ngôi nhà được xử lý tinh tế với các mảng tường phẳng kết hợp hệ cột vuông khỏe khoắn. Cột trụ ốp đá tự nhiên ở chân cột tạo điểm nhấn chắc chắn, đồng thời giúp công trình thêm sang trọng và bền bỉ trước tác động của thời tiết.
Các đường phào chỉ được tiết chế vừa đủ, không rườm rà nhưng vẫn đủ để tôn lên vẻ thanh lịch, đúng tinh thần của một mẫu nhà vườn mái Nhật 3 phòng ngủ hiện đại.

Ngôi nhà sử dụng bảng màu trung tính dễ chịu với tông trắng kem chủ đạo, kết hợp cùng màu ghi đậm ở phần chân tường và mái ngói. Sự phối hợp này tạo cảm giác sạch sẽ, thoáng đãng, đồng thời giúp công trình luôn giữ được vẻ mới mẻ theo thời gian. Màu mái ghi đậm giúp cân bằng thị giác, làm nổi bật các mảng tường sáng và khung cửa gỗ nâu ấm áp, mang lại cảm giác gần gũi, thân thiện cho gia chủ và khách ghé thăm.

Hệ cửa được bố trí hợp lý ở cả mặt trước và các mặt bên, giúp không gian bên trong luôn ngập tràn ánh sáng tự nhiên và gió trời. Cửa chính bằng gỗ tự nhiên với họa tiết trang trí tinh tế trở thành điểm nhấn sang trọng cho mặt tiền, thể hiện gu thẩm mỹ chỉn chu của gia chủ.
Các cửa sổ lớn sử dụng kính kết hợp khung nhôm xingfa không chỉ tăng tính thẩm mỹ hiện đại mà còn giúp kết nối không gian sống bên trong với khu vườn xanh mát bên ngoài.

Một trong những yếu tố làm nên sức hút của mẫu nhà vườn mái Nhật 3 phòng ngủ này chính là cách tổ chức không gian sân vườn. Khoảng sân rộng phía trước được lát gạch sạch sẽ, thuận tiện cho việc đỗ xe và sinh hoạt ngoài trời.
Xung quanh nhà là hệ thống bồn cây, tiểu cảnh được bố trí gọn gàng, tạo nên lớp đệm xanh giúp ngôi nhà luôn mát mẻ, dễ chịu. Chòi nghỉ nhỏ bên hông nhà là nơi lý tưởng để gia đình thư giãn, uống trà hay trò chuyện vào mỗi buổi chiều, đúng với mong muốn của gia chủ về một cuộc sống bình yên.

Tổng thể, mẫu nhà vườn mái Nhật 3 phòng ngủ này không chỉ là một công trình kiến trúc đẹp mắt, mà còn là lời gợi mở về một phong cách sống lý tưởng: đủ tiện nghi, đủ riêng tư và đủ gần gũi với thiên nhiên.
Với sự kết hợp hài hòa giữa hình khối kiến trúc, màu sắc, vật liệu và cảnh quan xanh, ngôi nhà mang đến cảm giác an cư bền vững, phù hợp với những gia đình đang tìm kiếm một tổ ấm trọn vẹn cho hiện tại và tương lai.

Không chỉ đẹp về hình thức, mẫu nhà này còn được đánh giá cao nhờ công năng khoa học. Với 3 phòng ngủ được bố trí hợp lý, ngôi nhà đáp ứng tốt nhu cầu sinh hoạt của gia đình nhiều thế hệ. Không gian chung rộng rãi giúp các thành viên dễ dàng quây quần, gắn kết, trong khi các phòng riêng vẫn đảm bảo sự riêng tư cần thiết. Đây chính là điều mà nhiều gia chủ tìm kiếm khi quyết định đầu tư xây dựng một ngôi nhà vườn lâu dài.
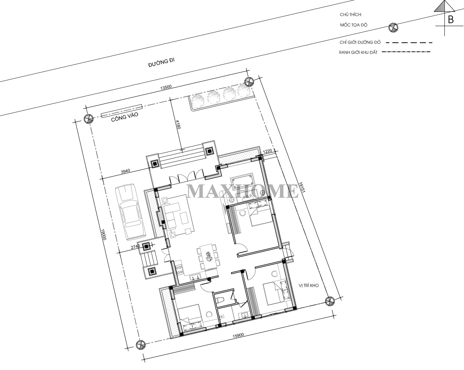
Bản vẽ chi tiết công năng
Từ sảnh chính bước vào là không gian phòng khách rộng rãi, thoáng đãng, nơi nội thất được bố trí tinh tế, hài hòa, toát lên vẻ sang trọng cùng gu thẩm mỹ tinh nhã của gia chủ.
Liền kề phòng khách là khu vực bếp và phòng ăn được thiết kế theo không gian mở, kết nối trực tiếp với sảnh phụ và hướng tầm nhìn ra sân vườn xanh mát, mang lại cảm giác thông thoáng và gần gũi với thiên nhiên.

Khu vực bàn thờ được bố trí khéo léo về phía bên phải ngôi nhà, vừa đảm bảo sự trang nghiêm, tôn kính trong thờ cúng, vừa thuận tiện cho sinh hoạt hằng ngày. Ba phòng ngủ được sắp xếp gọn gàng theo bố cục hình chữ L, đảm bảo sự riêng tư và yên tĩnh, trong khi khu vực phòng tắm và nhà vệ sinh chung đặt ở vị trí trung tâm giúp việc sử dụng trở nên thuận tiện, đáp ứng đầy đủ nhu cầu sinh hoạt của cả gia đình.








